Knaller Sonderaktionen bei STREIF Haus

15806 Zossen
799.500 € Kaufpreis
Wohnfläche
147 m²
Zimmer
4

Kaufpreis

Kaufpreis 799.500 €

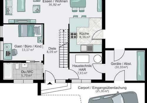
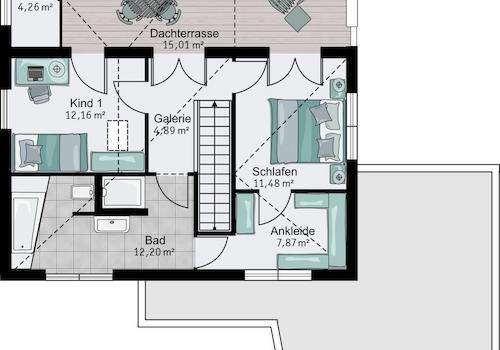
Wohnfläche, Grundstück & Bausubstanz

Wohnfläche147 m²
Grundstücksfläche1.121 m²
Zimmer4
Etagen1
Verfügbar ab Keine Angabe

Beschreibung der Immobilie

Das moderne Energiesparhaus mit Carport setzt mit einer Wohnraumerweiterung und einem überdachten Eingangsbereich, Übereck-Fenstern und einem Carport Akzente. Durch die Wohnraumerweiterung im Eingangsbereich entsteht ein separater Raum für die Garderobe. Der offen gestaltete Wohn-/Ess- und Kochbereich ist großzügig angelegt. Eine XXL-Panorama-Hebeschiebetür, Terrassentüren und bodentiefe Fensterelemente, die übereck angeordnet sind, fluten den gesamten Wohnbereich mit Tageslicht.

Ausstattungsmerkmale

Bad1
Das Streif City Haus wird im Standard KFW 40 PLUS ausgeführt. Grundstück inkl. Innenausstattung aus dem STREIF-Programm in der Ausbaustufe FF+ inklusive Fundamentplatte.

■ Rohbau (geschlossene Gebäudehülle) mit Fenstern, Haustür1 inkl. Dacheindeckung
■ Außenfassade inkl. Außenputz, vor Ort komplett fertiggestellt
■ Komplette Blechner-/Spenglerarbeiten
■ lnnen-/Außenwände wärme- und schallgedämmt und mit Gipsfaserplatten geschlossen
■ Geschosstreppe (außer Bungalow)
■ Decken wärme- und schallgedämmt und mit Gipskartonbau platten geschlossen
■ Elektroinstallation, einschließlich erforderlichem Zählerschrank und Inbetriebnahme
■ Heizungsanlage inkl. Inbetriebnahme
■ Innenfensterbänke Kunststeinbänke (Gussmarmorbänke) inkl. Einbau
■ Estrich
■ Sanitärräume mit Wand- und Bodenfliesen
■ Sanitärräume mit Sanitärobjekten
■ 6,23 kWP Photovoltaikanlage und 7,7 kWh Speicher

Die Innentüren sowie Wand-, Decken- und Bodenbeläge der übrigen Räume sind Eigenleistungen des Bauherren.

STREIF Frischluft-Wärmepumpen-Technologie - inklusive
- Heizen mit frischer Außenluft
- Kein Gasanschluss, kein Öl- oder Pelletlagerraum
- Keine Heizkörper
- Wärmetauscher mit bis zu 85% Wärmerückgewinnung

Die dargestellten Bilder können Sonderausstattungen beinhalten, die nicht im Preis enthalten sind!

zzgl. Ortüblicher Baunebenkosten

Selbstverständlich können wir Ihr Haus auch schlüsselfertig / bezugsfertig errichten.
■ Bodenbeläge, Sockel leisten verlegt
■ Maler- und Tapezierarbeiten
■ Innentüren inkl. Einbau

Karte wird geladen...
15806 Zossen

Lage & Infrastruktur

Unsere Grundstücke befinden sich in ausgewählten, attraktiven Lagen und erfüllen höchste Ansprüche an Lebensqualität und Wertbeständigkeit.

Aus Diskretions- und Datenschutzgründen bitten wir um Verständnis, dass Grundstücksdaten ausschließlich im Rahmen eines persönlichen Beratungstermins und ausschließlich für unsere Kunden weitergegeben werden.

Sonstige Informationen

Sie wünschen Bauplanung und Begleitung aus einer Hand? Dann sind wir Ihr Baupartner! Wir stehen Ihnen von Anfang an zur Seite und führen Sie auf dem Weg in Ihr neues perfektes Zuhause!

Mit STREIF haben Sie einen Baupartner mit Bau-Know-how, der seit 1929 auf fast 100 Jahre und 100.000 realisierte Wohnträume zurückblicken kann.

Jedes Haus von STREIF wird individuell als Energiesparhaus geplant und gebaut. Eine nachhaltige, ökologische und wohngesunde Bauweise, eine zertifizierte Ausführungsqualität und eine kurze Bauzeit, dafür stehen wir.

Im Anschluss der gemeinsamen Bedarfsermittlung erstellen wir Ihnen Ihren individuellen Planungsvorschlag mit einer detaillierten & realistisch ermittelten Aufstellung der Gesamt-Investition.

Ansprechpartner/in: Herr Andreas Ott
STREIF Haus GmbH
Josef-Streif-Straße 1, 54595 Weinsheim

Weitere Angebote in Christinendorf