EFH in Kirchditmold, offene Hausbesichtigung am Sa., 18.04.26 um 10 Uhr! KEINE KÄUFERPROVISION

34130 Kassel
315.000 € Kaufpreis
Wohnfläche
104 m²
Zimmer
4

Kaufpreis

Kaufpreis 315.000 €

Wohnfläche, Grundstück & Bausubstanz

Wohnfläche104 m²
Grundstücksfläche497 m²
Zimmer4
Baujahr1938
Verfügbar ab Keine Angabe
ZustandGepflegt

Beschreibung der Immobilie

Dieses Einfamilienhaus aus dem Jahr 1938 überzeugt mit seinem gepflegten Zustand und einer durchdachten Raumaufteilung – ideal für Paare oder kleine Familien mit einem Kind.
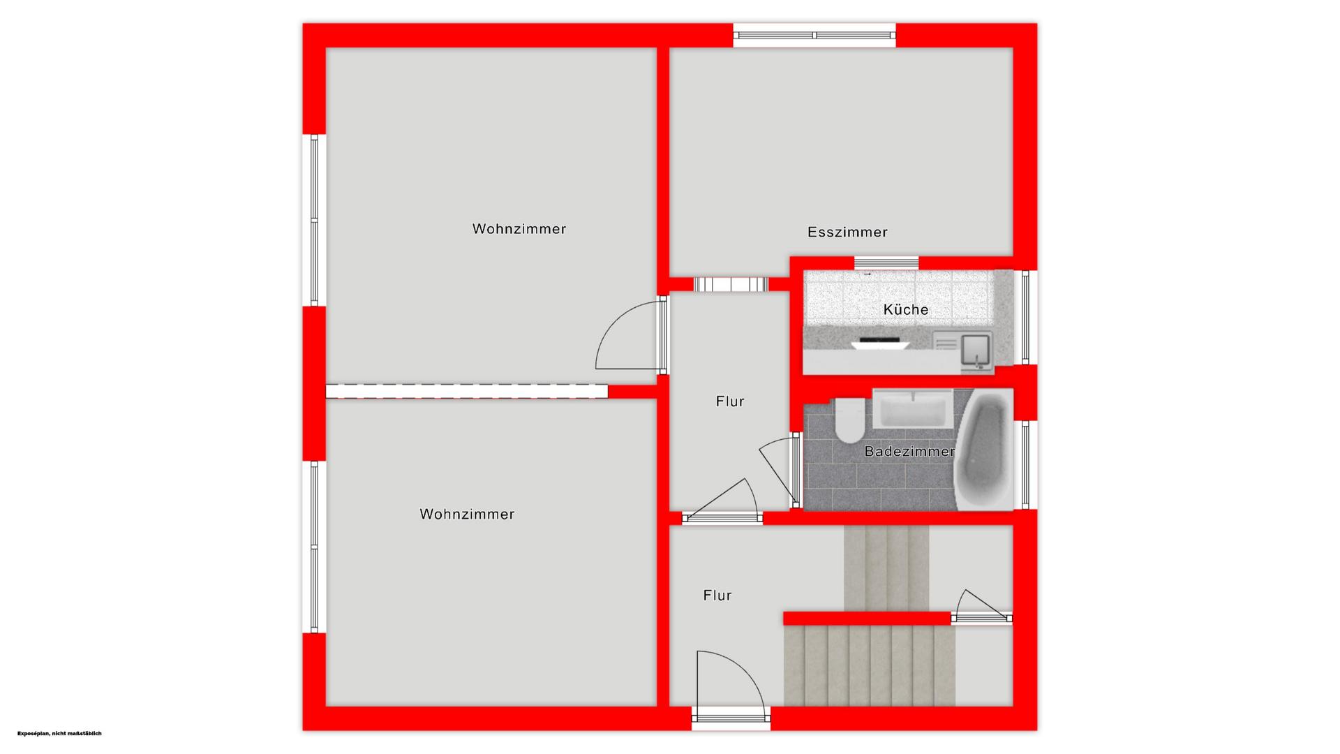
Im Erdgeschoss bildet das großzügige Wohnzimmer den Mittelpunkt des Hauses und bietet viel Raum für gemeinsame Stunden. Ergänzt wird diese Ebene durch ein separates Esszimmer, eine kompakte Küche sowie ein modernisiertes Badezimmer. Die Küche ist derzeit eher klein gehalten, lässt sich jedoch mit überschaubarem Aufwand durch Einbeziehung des Esszimmers erweitern und so an heutige Wohnansprüche anpassen.
Das Dachgeschoss wurde im Jahr 1988 durch die Vergrößerung einer bestehenden Gaube erweitert, wodurch zusätzlicher Wohnraum geschaffen wurde. Hier stehen zwei weitere Zimmer zur Verfügung, die sich flexibel als Schlaf-, Kinder- oder Arbeitszimmer nutzen lassen. Ein Duschbad komplettiert diese Etage.
Das Haus ist zudem vollständig unterkellert und bietet somit wertvolle zusätzliche Nutzfläche. Neben klassischen Abstellräumen befinden sich hier ein Heizungsraum, eine Waschküche sowie ein weiteres Zimmer, das sich hervorragend als Büro oder Gästebereich eignet.
Das liebevoll gestaltete Grundstück mit einer Größe von 497 m² rundet das Angebot ab und bietet ausreichend Platz für Erholung, Spiel und Gartenliebhaber.
Ein Haus mit viel Potenzial und angenehmer Wohnatmosphäre – perfekt für alle, die ein gemütliches Zuhause mit Entwicklungsmöglichkeiten suchen.
Sind Sie neugierig geworden? Dann besuchen Sie doch einfach unsere offen Hausbesichtigung am Samstag, den 18.04.26 um 10 Uhr!
Bitte sehen Sie sich auch unseren virtuellen 360°-Rundgang zu dieser Immobilie an! So bekommen Sie bereits vorab einen realistischen Eindruck von den Gegebenheiten vor Ort.

Ausstattungsmerkmale

Das Haus ist mit einer Gasbrennwertheizung aus dem Jahr 2006, Kunststofffenstern mit Isolierverglasung aus den 1970er Jahren, zwei Bädern - eines davon erst vor wenigen Jahren renoviert -, Echtholzfußböden im Erdgeschoss, Vollkeller, Garage, überdachtem Freisitz und Terrasse ausgestattet. Die Elektrik wurde überwiegend in 2006 modernisiert. Das Haus befindet sich in gepflegtem Zustand und wurde stets in einem ordentlichen und funktionsfähigen Zustand erhalten. Gleichwohl stehen für eine zeitgemäße Wohnnutzung aber Renovierungs- und Modernisierungsmaßnahmen an.

Energie

H
Energieeffizienzklasse H · 369.90 kWh/(m²*a)
EnergieausweistypBedarfsausweis
Gültig bis2036-03-29
Baujahr (laut Energieausweis)1938
EnergieeffizienzklasseH
Endenergiebedarf369.90
Heizungsart Zentralheizung
Wesentlicher EnergieträgerGas
Energieträger/Befeuerung Gas

Karte wird geladen...
34130 Kassel

Lage & Infrastruktur

Kassel-Kirchditmold zählt zu den gefragtesten Wohnlagen der documenta-Stadt und überzeugt durch seinen charmanten Mix aus urbanem Leben und naturnahem Wohnen. Der Stadtteil besticht durch seine gewachsene Struktur mit stilvollen Altbauten, ruhigen Wohnstraßen und einer ausgezeichneten Infrastruktur. Einkaufsmöglichkeiten, Cafés, Schulen und Ärzte befinden sich in unmittelbarer Nähe. Die gute Anbindung an die Kasseler Innenstadt sowie die Nähe zu den Grünflächen des Bergparks Wilhelmshöhe machen Kirchditmold besonders attraktiv für Familien, Berufstätige und Ruhesuchende gleichermaßen. Eine Lage, die Lebensqualität und Wertstabilität vereint.

Sonstige Informationen

https://koenig-immobilien.de/
Ansprechpartner/in: Firma
0049568199299
König Immobilien GmbH
Ziegenhainer Str. 13, 34576 Homberg
0049568199299

Weitere Angebote in Kassel