Stillvolle Doppelhaushälfte in Zentraler Lage von Fürth- modernes Wohnen für höchstes Ansprüche

Poppenreuther straße 90765 Fürth, Bayern
Frei ab: 01.08.2026
2.000 € Kaltmiete
11,11 € Preis/m² ca.
Wohnfläche
180 m²
Zimmer
6
Einbauküche
Balkon
Terrasse
Garten
Keller

Mietpreis & Nebenkosten

Kaltmiete (netto)2.000 €
Nebenkosten 150 €
Kaution 4.500 €

Wohnfläche, Grundstück & Bausubstanz

Wohnfläche180 m²
Grundstücksfläche180 m²
Zimmer6
Etagen3
Baujahr2021
Verfügbar ab 01.08.2026
ZustandNeuwertig

Beschreibung der Immobilie

Diese außergewöhnlich gepflegte Doppelhaushälfte aus dem Jahr 2021 vereint modernes Design, hochwertige Ausstattung und eine zentrale, zugleich familienfreundliche Lage in Fürth.

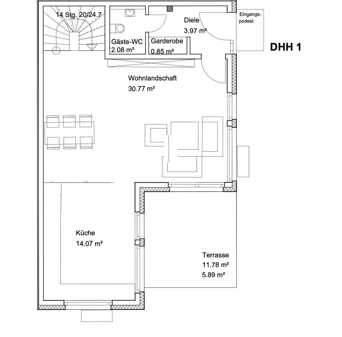
Schon beim Betreten des Hauses entsteht ein Gefühl von Großzügigkeit und Klarheit. Der Wohn- und der Essbereich präsentiert sich lichtdurchflutet und bildet das Herzstück des Hauses. Große Fensterflächen schaffen eine angenehme Wohnatmosphäre und verbinden den Innenbereich harmonisch mit der sonnigen Terrasse und dem liebevoll angelegten Garten. Zusätzlich findet man in EG ein Gast WC und Dusche.

Die moderne Einbauküche fügt sich stilvoll in das Wohnkonzept ein und überzeugt durch ihre hochwertige Ausführung – ein Ort, der sowohl funktional als auch ästhetisch höchsten Ansprüchen gerecht wird.
Die Raumaufteilung ist ideal auf die Bedürfnisse einer Familie abgestimmt. Im Obergeschoss befinden sich zwei helle und gut geschnittene Kinderzimmer sowie ein modernes Badezimmer.

Das Dachgeschoss ist als privater Rückzugsort der Eltern gestaltet und bietet neben dem Schlafzimmer ein separates Ankleidezimmer sowie Zugang zum Balkon mit einem schönen Blick ins Grüne. Das Dachgeschoss verfügt über ein integriertes Badezimmer, sodass man nicht zwischen den Etagen hin- und herwechseln muss.
Ein besonderes Merkmal dieser Immobilie ist die hervorragende Eignung für modernes Arbeiten von zu Hause. Dank integrierter LAN-Verkabelung lassen sich Homeoffice und Alltag optimal miteinander verbinden.

Der voll ausgebaute Keller erweitert die Wohn- und Nutzfläche erheblich und bietet vielfältige Nutzungsmöglichkeiten – von Hobbyraum bis Fitnessbereich. Alle Zimmer im Keller sind mit einer Fußbodenheizung ausgestattet.

Ausstattungsmerkmale

KücheEinbauküche
Bad3
Bad (Ausstattung)Dusche, Wanne
BodenFliesen, Parkett
Balkone1
Terrassen1
GartenJa
KellerJa
Balkon, Terrasse, Garten, Keller, Vollbad, Duschbad, Einbauküche, Gäste-WC, Parkett, Fliesen

Bemerkungen:
Die Ausstattung dieser Immobilie entspricht einem modernen und hochwertigen Wohnstandard:

- Fußbodenheizung in allen Räumen, einschließlich Keller
- Energieeffiziente Wärmepumpe
- Smart-Home-System für komfortable Steuerung (LCN Bus System)
- Elektrische Rollläden
-LAN-Verkabelung für Homeoffice
- Wasserenthärtungsanlage (BWT)
- Hochwertige Dusch-WCs
- Drei stilvoll ausgestattete Badezimmer
-Großzügiger Wohn- und Essbereich mit viel Tageslicht
- Moderne Einbauküche (75 € monatlich)
-Teilweise möbliert (Schränke, TV Wand, Küche, Badezimmer Zubehör etc)
- Voll unterkellert
- Außenbereich ( Hochwertige Terrassenüberdachung mit LED und Heizstrahler, Sichtschutz Glasschiebetür, Schöne Garten mit Rollrasen mit doppelstabmattenzaun für Privatsphäre)

Die Immobilie bietet einen ansprechend gestalteten Außenbereich, der sowohl Erholung als auch Lebensqualität schafft.

Die überdachte Terrasse lädt zu entspannten Stunden im Freien ein, während der Garten ausreichend Platz für Kinder oder Freizeitaktivitäten bietet. Der Balkon im Dachgeschoss eröffnet einen angenehmen Blick ins Grüne und rundet das Gesamtbild ab.

Ein Stellplatz direkt am Haus sorgt für zusätzlichen Komfort im Alltag.

Energie

Heizungsart Fußbodenheizung
Energieträger/Befeuerung Luft-Wärme-Pumpe

Karte wird geladen...
Poppenreuther straße
90765 Fürth – Bayern

Lage & Infrastruktur

Die Lage dieser Immobilie verbindet urbanes Leben mit hoher Wohnqualität.

Einkaufsmöglichkeiten, Supermärkte sowie der Busbahnhof sind bequem fußläufig erreichbar. Besonders attraktiv ist die Nähe zu Bildungseinrichtungen: Kindergarten, Kinderkrippe und Grundschule befinden sich in nur etwa 300 Metern Entfernung.

Trotz der zentralen Lage überzeugt die Umgebung durch ihre Ruhe und Familienfreundlichkeit.
Infrastruktur (im Umkreis von 5 km):
Apotheke, Lebensmittel-Discount, Allgemeinmediziner, Kindergarten, Grundschule, Hauptschule, Realschule, Gymnasium, Öffentliche Verkehrsmittel

Sonstige Informationen

Heizungsart: Fußbodenheizung
Energieträger: Luft-/Wasserwärme
Energieausweis nicht vorhanden

Die Immobilie wird bevorzugt an Nichtraucher vermietet. Haustiere sind nicht gestattet.

- Ein Einkommensnachweis ist Voraussetzung für die Vereinbarung eines Besichtigungstermins.
- Bitte beachten Sie, dass eine Mindestmietdauer von 2 Jahren gilt.

Makleranfragen nicht erwünscht. Nach § 7 UWG sind unaufgeforderte Kontaktaufnahmen durch Makler ohne ausdrückliche Einwilligung des Empfängers verboten!

ohne-makler (OM) ist weder Anbieter noch Vermittler der Immobilie. OM betreibt eine Plattform für Immobilieneigentümer, die unter anderem die gleichzeitige Veröffentlichung einzelner Inserate auf mehreren Immobilienportalen ermöglicht. Die Inhalte dieser Inserate werden ausschließlich von Dritten verantwortet. Für die Richtigkeit, Vollständigkeit oder Rechtmäßigkeit der Angaben übernimmt OM keine Haftung. Hinweise auf mögliche Rechtsverstöße können jederzeit gemeldet werden und werden nach Prüfung umgehend bearbeitet.
Ansprechpartner/in: Privat von Shakti Saxena
OM PropTech GmbH
Humboldtstraße 25a, 21509 Glinde

Weitere Angebote in Fürth