NEUBAU - Reihenmittelhaus mit Garten, Garage und zusätzlichem Stellplatz

91154 Roth OT
1.680 € Kaltmiete
9,17 € Preis/m² ca.
Wohnfläche
183,28 m²
Zimmer
5
Terrasse
Garten

Mietpreis & Nebenkosten

Kaltmiete1.680 €
Nebenkosten 150 €
Heizkosten enthaltenJa
Kaution 3.560 €

Wohnfläche, Grundstück & Bausubstanz

Wohnfläche183,28 m²
Grundstücksfläche167 m²
Zimmer5
Etagen3
Baujahr2026
Verfügbar ab Keine Angabe
ZustandErstbezug

Ausstattungsmerkmale

Bad2
Bad (Ausstattung)Dusche, Wanne, Fenster
BodenFliesen, Kunststoff
Terrassen1
GartenJa
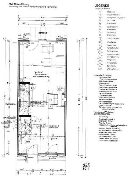
Gebäude: Das Gebäude wird voraussichtlich im Februar 2026 in Massivbauweise (KFW 40) fertig gestellt werden und wird über Nahwärme beheizt. Im Erdgeschoss des Hauses befinden sich ein großzügiger Wohn- /Essbereich mit einer offenen Küche, eine Diele und ein Gäste - WC.
Unter der Treppe, die ins Obergeschoss führt, ist ein Abstellraum für die Unterbringung eines Staubsaugers usw. geplant. Vom Wohnbereich aus haben die Kinder Zugang zum Garten und die Eltern können an sonnigen Tagen auf die Terrasse grillen. An der Hauswand zur Terrasse ist ein
Stromanschluss vorhanden. Der Garten ist mit Rasen und einem Gartenzaun angelegt.

Das gesamte Erdgeschoss ist mit einer Fußbodenheizung ausgestattet. Als Bodenbelag sind Fliesen im Eingangsbereich und dem Gäste – WC verlegt, sonst ist im Erdgeschoss Vinylboden zu finden. Auf Wunsch kann das Haus mit einer Einbauküche angemietet werden

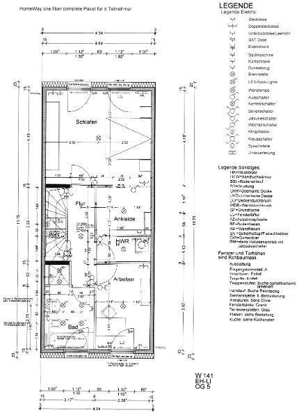
Im Obergeschoss befinden sich ein Bad mit Badewanne und Dusche, Das Elternschlafzimmer mit Zugang zu einem Ankleideraum, ein Kinder- /oder Arbeitszimmer und der Hauswirtschaftsraum. Das Bad ist gefliest, die anderen Räume, sowie der Flur sind mit Vinylboden versehen.

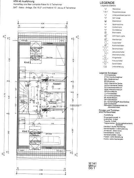
Im Dachgeschoss sind über den Flur zwei weitere Kinder- /oder Arbeitszimmer, ein zweites Bad (mit Dusche) und ein Abstellraum zu erreichen. Die Bodenbeläge sind hier ebenfalls Fliesen (im Bad) und ansonsten überall Vinylböden. Alle Räume des Hauses sind mit Fernsehanschlüssen und
Netzwerkanschlüssen versehen. Der Fernsehempfang ist über SAT oder Internet vorgesehen. Als Internetzugang ist Glasfaser verfügbar, der Anschluss wird über das DG verteilt.

Zum Objekt gehören eine Garage und ein Stellplatz. Haustiere sind im Objekt leider nicht möglich. Das Objekt wird zum Erstbezug übergeben.

Baujahr: 2026

Grundstück: ca. 167 m²

Wohnfläche: ca. 183,28 m²

Heizung: Nahwärmeversorgung (mit Pelletheizung)

Haustiere: Haustiere sind im Haus leider nicht möglich

Internet: Glasfaser 1.000 ist mit bis zu 1.000 MBit/s im Download und bis zu 500 MBit/s im Upload verfügbar (gem. Online-Auskunft der Telekom)

Energiepass: vorhanden
(Bedarf)

Miete/Monat: € 1680.- kalt

Garage/Monat: € 60.-

Stellplatz/Monat: € 40.-

Nebenkosten/Monat: € 150.- (Heizkosten werden über den Versorger abgerechnet, Nebenkosten werden jährlich abgerechnet, exkl. GEZ, Internet, Strom usw.)

Kaution: € 3560.-

Bezug: ab 01.03.2026

Energie

B
Energieeffizienzklasse B · 48.4 kWh/(m²*a)
EnergieausweistypBedarfsausweis
Ausstellungsdatum22. 10. 2025
Gültig bis10-2035
Baujahr (laut Energieausweis)2026
EnergieeffizienzklasseB
Endenergiebedarf48.4
Heizungsart Fernwärme, Fußbodenheizung
Energieträger/Befeuerung Fernwärme, Pellet

Karte wird geladen...
91154 Roth OT

Lage & Infrastruktur

Lage: Das angebotene Reihenmittelhaus befindet sich in einem Neubaugebiet in Eckersmühlen. Eckersmühlen ist ein Gemeindeteil der Kreisstadt Roth im Landkreis Roth (Mittelfranken, Bayern). Die Gemeinde Eckersmühlen hat 2776 Einwohner und über die Bundesstraße 2 ist Nürnberg in ca. 20 Minuten erreichbar. Die A9 (München – Nürnberg) liegt mit der Auffahrt Allersberg etwa 25 Minuten entfernt. Roth (ca. 5km) und Hilpoltestein (ca. 4 km) sind ebenfalls schnell erreichbar. Als Naherholungsgebiet ist man schnell am Rothsee.

In Eckersmühlen selbst gibt es eine Grundschule. Realschulen und Gymnasien gibt es in Roth und Hilpoltstein. Sämtliche Einkaufsmöglichkeiten sind in Roth gegeben. In Eckersmühlen selbst gibt es einen Allgemeinarzt, weitere Ärzte sind in Roth zu finden. Weiterhin gibt es in Eckersmühlen auch eine Zugverbindung nach Roth und Hilpoltstein. Die Planungen für einen S-Bahn-Anschluss bis Nürnberg sind auch bereits freigegeben. 

Sonstige Informationen

Bitte beachten Sie mein vollständiges Angebot unter www.mulfinger-immobilien.de
Ansprechpartner/in: Herr Volker Mulfinger
0171 2441686
Mulfinger Immobilien
Braungardtstrasse 13, 91325 Adelsdorf-Neuhaus
0171 2441686

Weitere Angebote in Roth