Schluß mit Kompromissen! Diese Wohnung hat alles.

Koloniestr. 147 13357 Berlin, Berlin
Frei ab: 01.08.2026
159.900 € Kaufpreis
Wohnfläche
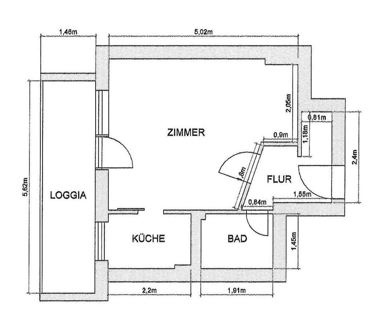
32 m²
Zimmer
1
Etage
1
Einbauküche
Balkon
Terrasse
Fahrstuhl
Keller

Kaufpreis

Kaufpreis 159.900 €
Hausgeld307 €
Maklerprovisionkeine Provision, courtagefrei

Wohnfläche, Grundstück & Bausubstanz

Wohnfläche32 m²
Zimmer1
Stockwerk1
Baujahr1961
Verfügbar ab 01.08.2026
ZustandGepflegt

Beschreibung der Immobilie

Zentrale Innenstadt-Lage oder ein ruhiger Rückzugsort? Perfekte Anbindung oder lieber Frühstück auf dem Sonnenbalkon, mit Blick ins Grüne? Schluß mit Kompromissen! Diese Wohnung hat alles.

+ Gepflegtes Haus aus dem Baujahr 1961
+ 53 Wohneinheiten
+ Weitläufiger, grüner Hof
+ Aufzug
+ Komfortable Erhaltungsrücklage
+ Neue Heizungsanlage von 2025

Ausstattungsmerkmale

KücheEinbauküche
Bad1
BodenFliesen, Laminat
Balkone1
Terrassen0
Fahrstuhl
KellerJa
Balkon, Keller, Fahrstuhl, Einbauküche, Laminat, Fliesen

Bemerkungen:
Die Wohnung wird möbliert, mit der abgebildeten Einrichtung verkauft. Zur Wohnung gehört auch ein trockener Kellerraum.

+ 1. OG zum ruhigen, weiten Hof
+ Großzügiger Sonnenbalkon nach Westen
+ 1 Zimmer, Küche, Bad, Flur, Abstellraum
+ Gefliestes Badezimmer mit Einbaudusche
+ Einbauküche mit Kühlschrank
+ Waschmaschine

Energie

F
Energieeffizienzklasse F · 169 kWh/(m²*a)
EnergieausweistypVerbrauch
EnergieeffizienzklasseF
Energieverbrauchkennwert169 kWh/(m²*a)
Heizungsart Zentralheizung
Energieträger/Befeuerung Öl

Karte wird geladen...
Koloniestr. 147
13357 Berlin – Berlin

Lage & Infrastruktur

Durch beste Anbindung an den ÖPNV und die zentrale City-Lage, ist die ganze Innenstadt Ihr Kiez. Mit der Ausrichtigung in den weitläufigen und grünen Hof, bietet Ihnen Ihre sonnendurchflutete Wohnung gleichzeitig einen ruhigen Rückzugsort.

+ Zentrale City-Lage
+ Hervorragende Anbindung (U-Bahn, Tram)
+ U-Osloer Str. und U-Pankstr. fußläufig in 5 min
+ 4 Stationen mit der U8 bis Mitte
+ Mit Straßenbahn direkt nach Prenzlauer Berg
+ Überregionale Anbindung durch den nahen Bhf. Gesundbrunnen
+ Supermärkte und Restaurants fußläufig
Infrastruktur (im Umkreis von 5 km):
Apotheke, Lebensmittel-Discount, Allgemeinmediziner, Öffentliche Verkehrsmittel

Sonstige Informationen

Heizungsart: Zentralheizung
Energieträger: Öl

Die Wohnung ist zum 31.7.26 bezugsfrei. Weitere Informationen und Besichtigungen auf Anfrage.

Für Anleger: Ca. 198 € des Hausgeldes sind auf den Mieter umlegbare Kosten, hauptsächlich Heiz- und Wasserkosten. Mit Bewohnerwechsel und geringerem Verbrauch senkt sich das Hausgeld wieder ab.

Der Verkauf der Wohnung erfolgt direkt, von Privat. Es fällt daher KEINE Maklerprovision an.

Alle Informationen nach bestem Wissen. Irtum und Auslassungen vorbehalten.

Makleranfragen nicht erwünscht. Nach § 7 UWG sind unaufgeforderte Kontaktaufnahmen durch Makler ohne ausdrückliche Einwilligung des Empfängers verboten!

ohne-makler (OM) ist weder Anbieter noch Vermittler der Immobilie. OM betreibt eine Plattform für Immobilieneigentümer, die unter anderem die gleichzeitige Veröffentlichung einzelner Inserate auf mehreren Immobilienportalen ermöglicht. Die Inhalte dieser Inserate werden ausschließlich von Dritten verantwortet. Für die Richtigkeit, Vollständigkeit oder Rechtmäßigkeit der Angaben übernimmt OM keine Haftung. Hinweise auf mögliche Rechtsverstöße können jederzeit gemeldet werden und werden nach Prüfung umgehend bearbeitet.
Ansprechpartner/in: Privat vom Eigentümer
OM PropTech GmbH
Humboldtstraße 25a, 21509 Glinde

Weitere Angebote in Berlin