„DAS ALTE HOSPITAL“

25832 Tönning, Schleswig-Holstein
Frei ab: nach Absprache
285.000 € Kaufpreis
Wohnfläche
138 m²
Zimmer
7
Garten

Kaufpreis

Kaufpreis 285.000 €
Maklerprovisionkeine Provision, courtagefrei

Wohnfläche, Grundstück & Bausubstanz

Wohnfläche138 m²
Grundstücksfläche736 m²
Zimmer7
Etagen1
Baujahr1602
Verfügbar ab nach Absprache
ZustandTeil Vollsaniert

Beschreibung der Immobilie

„DAS ALTE HOSPITAL“ (Privatverkauf)
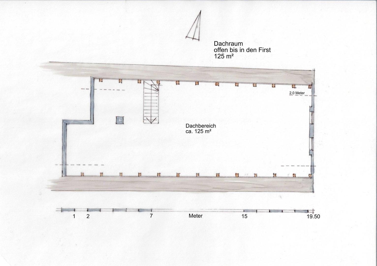
Vielfältige Nutzungsmöglichkeiten bietet das 1602 erbaute hochrangige Baukulturgut im charmanten, historischen und repräsentativen Ambiente. Es handelt sich hier um das älteste Haus der Stadt Tönning. 1988 wurde das Gebäude kernsaniert und dabei in einen annähernden Neubauzustand versetzt. Anschließend wurde das „Alte Hospital“ als Museum genutzt, ab 1999 als Architekturbüro. Dies ist auch der derzeitige Ist-Zustand. Das Erdgeschoß zeigt sich durch die vielen großen Fenster tageslichtdurchflutet, die üppige Raumhöhe sorgt für ein großzügiges Raumgefühl. Die originalen Deckenbalken und historischen Holzständer mit breiten Deckendielen geben in Verbindung mit dem Ziegelpflaster- und teilweise Holzdielenboden ein warmes und elegantes Ambiente. Derzeit sind im größten Bereich des Erdgeschosses reversible Leichtbau- und Glaswände eingesetzt. Diese können rückstandslos entfernt werden und ermöglichen weitere vielfältige Nutzungsmöglichkeiten. Der imposante Dachraum ist bis unter den First offen gestaltet, das originale Gebälk ist komplett sichtbar. Die Dachschrägen sind nach außen mit massiven Holzdielen verkleidet. Alle Fenster und Türen wurden 1988 sehr hochwertig ausgeführt und befinden sich im guten Zustand. Baurechtlich (Baugenehmigung liegt vor) ist das Haus Wohnraum (Wohnfläche 138m² + Nutzfläche 125m²), kann aber auch gewerblich genutzt werden. Bei dem hier angebotenen Gebäudeteil handelt es sich um den Ostflügel des „Alten Hospitals von 1602“, die WEG Teilung liegt vor. Zum Haus gehört ein Grundstücksanteil von 736/2 m², ein weiterer Grundstücksanteil (Bauland) kann dazu erworben werden. Weitere und ausführliche Informationen erhalten Sie gerne auf Anfrage vom Verkäufer. Privatverkauf – keine Courtage!

Ausstattungsmerkmale

GartenJa
Garten, Sonstiges (s. Text)

Energie

Heizungsart Zentralheizung
Energieträger/Befeuerung Gas

Karte wird geladen...
25832 Tönning – Schleswig-Holstein

Lage & Infrastruktur

TÖNNING: Hafenstadt an der Eider auf der Halbinsel EIDERSTEDT in NORDFRIESLAND, unmittelbare Nähe zu ST. PETER-ORDING an der NORDSEE sowie der "Holländerstadt" FRIEDRICHSTADT und den Kreisstädten HUSUM (Nordfriesland) und HEIDE (Dithmarschen), NATIONALPARK WATTENMEER.
Infrastruktur (im Umkreis von 5 km):
Apotheke, Lebensmittel-Discount, Allgemeinmediziner, Kindergarten, Grundschule, Hauptschule, Realschule, Gymnasium, Gesamtschule, Öffentliche Verkehrsmittel

Sonstige Informationen

Heizungsart: Zentralheizung
Energieträger: Gas


Makleranfragen nicht erwünscht. Nach § 7 UWG sind unaufgeforderte Kontaktaufnahmen durch Makler ohne ausdrückliche Einwilligung des Empfängers verboten!

ohne-makler (OM) ist weder Anbieter noch Vermittler der Immobilie. OM betreibt eine Plattform für Immobilieneigentümer, die unter anderem die gleichzeitige Veröffentlichung einzelner Inserate auf mehreren Immobilienportalen ermöglicht. Die Inhalte dieser Inserate werden ausschließlich von Dritten verantwortet. Für die Richtigkeit, Vollständigkeit oder Rechtmäßigkeit der Angaben übernimmt OM keine Haftung. Hinweise auf mögliche Rechtsverstöße können jederzeit gemeldet werden und werden nach Prüfung umgehend bearbeitet.
Ansprechpartner/in: Privat von Herr Bracker
OM PropTech GmbH
Humboldtstraße 25a, 21509 Glinde

Weitere Angebote in Kotzenbüll