Wohnen, Vermieten, Investieren – Provisionsfreies Haus mit vielen Optionen

26871 Papenburg
Frei ab: nach Vereinbarung
299.000 € Kaufpreis
Wohnfläche
185 m²
Zimmer
5
Einbauküche
Balkon
Stellplatz

Kaufpreis

Kaufpreis 299.000 €

Wohnfläche, Grundstück & Bausubstanz

Wohnfläche185 m²
Grundstücksfläche870 m²
Zimmer5
Baujahr1960
Letzte Modernisierung2019
Verfügbar ab nach Vereinbarung
ZustandModernisiert

Beschreibung der Immobilie

Provisionsfrei für Käufer – vielseitiges Einfamilienhaus mit Einlieger-/Gästeeinheiten in zentraler Lage von Papenburg

Was Sie aus diesem äußerst gepflegten und umfassend renovierten Einfamilienhaus mit separatem Obergeschoss machen, bleibt ganz Ihnen überlassen. Ob großzügiges Wohnen für die Familie, Mehrgenerationenhaus oder attraktive Gäste- bzw. Ferienvermietung – diese Immobilie eröffnet Ihnen zahlreiche Nutzungsmöglichkeiten.

Aktuell wird das Erdgeschoss selbst genutzt. Das Obergeschoss ist in mehrere Zimmer mit jeweils eigenen Duschbädern aufgeteilt und eignet sich hervorragend für die Gäste- und Ferienvermietung (Papenburger Gästehaus). Besonders komfortabel: Die Räume im Obergeschoss sind zusätzlich über eine separate Außentreppe erreichbar.

Das Haus befindet sich in einem erstklassigen Gesamtzustand. Durch kontinuierliche Renovierungen und Modernisierungen in den vergangenen Jahren kann die Immobilie ohne Renovierungsstau übernommen werden. Die letzte umfangreiche Renovierung erfolgte im Jahr 2019, unter anderem mit der Erneuerung der Fliesen und Innentüren im Erdgeschoss.

Zwei Terrassen – eine großzügige und eine kleinere – bieten einen herrlichen Blick in den sehr gepflegten, nahezu uneinsehbaren Garten und laden sowohl Bewohner als auch Gäste zum Entspannen und Verweilen ein.

Zur Senkung der laufenden Energiekosten trägt eine 9 kW-Photovoltaikanlage auf dem Dach des Hauptgebäudes bei. Ein weiteres attraktives Plus: Im hinteren Bereich des Grundstücks besteht zusätzliches Bebauungspotenzial. Eine Bauvoranfrage wurde bereits gestellt.

Ein rundum überzeugendes Objekt mit Perspektive – anschauen lohnt sich.

Ausstattungsmerkmale

KücheEinbauküche
Bad3
Bad (Ausstattung)Dusche, Wanne, Fenster
BodenFliesen
Balkone1
Garage/Stellplätze1
Bodenbeläge
Im Erdgeschoss dominieren moderne, schwarze Hochglanzfliesen. Die Küche ist mit hochwertigem Designboden ausgestattet, das Badezimmer im Erdgeschoss mit blau marmorierten Bodenfliesen. Im Obergeschoss wurden in den Schlafzimmern Designböden und in den Duschbädern pflegeleichte Bodenfliesen verlegt.

Küchen
Zwei Küchen sind im Kaufpreis enthalten.
- Im Obergeschoss befindet sich eine funktionale Teeküche.
- Im Erdgeschoss überzeugt eine hochwertige, weiße Einbauküche im modernen Design, die zum Kochen und Genießen einlädt.

Bäder
Insgesamt stehen drei Badezimmer sowie ein zusätzliches Gäste-WC zur Verfügung.

- Das Badezimmer im Erdgeschoss verfügt über eine ebenerdige Dusche, Badewanne, wandhängendes WC sowie ein Handwaschbecken mit Spiegelschrank.
- Die beiden Duschbäder im Obergeschoss wurden 2013 erneuert.
- Zusätzlich befindet sich dort eine separate Toilette.

Garage und Stellplätze

Eine Flachdachgarage steht für Ihr Fahrzeug zur Verfügung. Weitere PKW-Stellplätze bieten ausreichend Parkmöglichkeiten für Gäste.

Grundstück

Das ca. 870 m² große Grundstück ist nahezu uneinsehbar und äußerst gepflegt. Die Hoffläche auf der Vorderseite ist mit modernen roten Vierkantsteinen gepflastert und bietet eine ansprechende Zufahrt zum Haus und zur Garage. Über eine große Pforte gelangen Sie bequem in den Gartenbereich.

Der Garten ist überwiegend pflegeleicht angelegt, mit großzügiger Rasenfläche, eingefasst von roten Vierkantsteinen. Eine hohe, immergrüne Hecke sorgt im hinteren Grundstücksbereich für Privatsphäre. Ein Gartenhaus bietet praktischen Stauraum für Gartenmöbel und Geräte. Auch die Terrassenflächen sind hochwertig gepflastert.

Energie

G
Energieeffizienzklasse G · 225.5 kWh/(m²*a)
EnergieausweistypBedarfsausweis
Ausstellungsdatum12. 01. 2022
Gültig bis11.01.2032
EnergieeffizienzklasseG
Endenergiebedarf225.5
Wesentlicher EnergieträgerErdgas Leicht

Karte wird geladen...
26871 Papenburg

Lage & Infrastruktur

Die Immobilie befindet sich in zentraler und äußerst gefragter Lage von Papenburg, in unmittelbarer Nähe der Historisch-Ökologischen Bildungsstätte Emsland e. V.. Diese besondere Umgebung verbindet ruhiges Wohnen mit kurzen Wegen zu Bildung, Kultur und Natur.

Einkaufsmöglichkeiten, Gastronomie, Ärzte sowie weitere Einrichtungen des täglichen Bedarfs sind bequem erreichbar. Die Nähe zur Innenstadt macht diese Lage sowohl für Eigennutzer als auch für Gäste und Ferienvermietung besonders attraktiv.

Papenburg als Wohnort – attraktiv, zentral und naturnah

Papenburg ist ein gefragter Wohnort im nördlichen Emsland und überzeugt durch eine hohe Lebensqualität, eine sehr gute Infrastruktur und ein attraktives Wohnumfeld. Die Stadt verbindet urbanes Leben mit naturnaher Umgebung und bietet ideale Voraussetzungen für Familien, Paare, Senioren und Kapitalanleger.

Als Wirtschaftsstandort ist Papenburg insbesondere durch die Meyer Werft sowie zahlreiche mittelständische Unternehmen bekannt. Dadurch stehen viele Arbeitsplätze in der Region zur Verfügung. Gleichzeitig sind Einkaufsmöglichkeiten, Ärzte, Apotheken, Schulen, Kindergärten und gastronomische Angebote bequem erreichbar.

Die historische Fehnlandschaft mit ihren Kanälen, Grünanlagen und Radwegen prägt das Stadtbild und sorgt für einen hohen Freizeit- und Erholungswert. Sportvereine, kulturelle Veranstaltungen und Freizeitangebote machen Wohnen in Papenburg besonders abwechslungsreich.

Durch die gute Verkehrsanbindung in Richtung Leer, Meppen und Oldenburg sowie die Nähe zur niederländischen Grenze ist Papenburg auch für Pendler attraktiv. Kurze Wege, ein gepflegtes Stadtbild und ein sicheres Umfeld unterstreichen die Beliebtheit des Standorts.

Papenburg als Wohnort steht für eine ausgewogene Mischung aus Arbeiten, Wohnen und Erholen – ein Standort mit langfristiger Wertstabilität und hoher Nachfrage auf dem Immobilienmarkt.

Sonstige Informationen

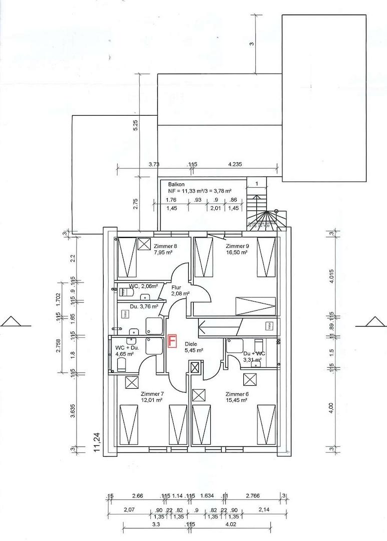
Wohnflächenaufteilung

Erdgeschoss
Windfang ca. 4,37 m²
Bad/WC ca. 6,87 m²
Wohn-/Esszimmer ca. 31,17 m²
Schlafzimmer ca. 16,55 m²
Flure 1 & 2 ca. 9,13 m²
Küche ca. 9,62 m²
Zwischenflur ca. 10,53 m²
Hauswirtschaftsraum ca. 17,85 m²
Abstellraum ca. 9,46 m²

Obergeschoss
Flur ca. 5,45 m²
Duschbad/WC 1 ca. 4,65 m²
Duschbad/WC 2 ca. 3,76 m²
Toilette ca. 2,06 m²
Schlafzimmer 1 ca. 16,50 m²
Schlafzimmer 2 ca. 16,66 m²
Schlafzimmer 3 ca. 15,45 m²

Nutzflächen
Keller, Garage, Gartenhaus
Ansprechpartner/in: Herr Ralf Gründer
Gründer Immobilien
Hauptstrasse 97, 26892 Dörpen

Weitere Angebote in Aschendorf