Hochwertiges Ferienhaus an der Nordseeküste

26349 Jade
245.000 € Kaufpreis
Wohnfläche
72,63 m²
Zimmer
3
Offene Küche
Terrasse
Garten

Kaufpreis

Kaufpreis 245.000 €
Maklerprovision3 % des Kaufpreises einschließl. MwSt. zzgl. Notar- und Gerichtskosten

Wohnfläche, Grundstück & Bausubstanz

Wohnfläche72,63 m²
Grundstücksfläche538 m²
Zimmer3
Baujahr2014
Verfügbar ab Keine Angabe

Beschreibung der Immobilie

Dieses in massiver Bauweise errichtete Wohnhaus befindet sich im Feriendorf "Jade - Sehestedt" in direkter Nähe des Deiches mit dem Strandbad Sehestedt am Jadebusen.

Das Haus besticht durch eine zeitgemäße Architektur, Materialien und gefällige Raumgestaltung.

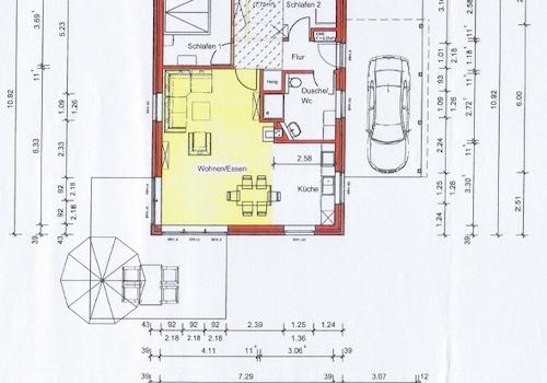
Ca. 73 m² ebenerdige Wohnfläche verteilen sich, wie nachstehend beschrieben:

Das großzügige Wohn-Esszimmer mit integrierter Küche vermittelt durch einen offenen Raum bis zum First sowie überdurchschnittlichem Lichteinfall eine sehr angenehme Wohnatmosphäre.
Zwei Zugänge auf Süd- oder West-Terrasse sowie ein Kaminofen runden das Bild ab.
Schlaf- und Kinderzimmer lassen sich mittels Rollläden verdunkeln.
Im Kinderzimmer befindet sich eine halboffene Zwischendecke mit Leiteraufgang und bietet dort einen Rückzugsort mit besonderem Charakter.
Das Duschbad mit WC bietet, wie das gesamte Wohnhaus, Barrierefreiheit und ist insofern für Senioren bestens geeignet.

Bauausführung & Ausstattung:

- Betonpfahlgründung, Stahlbetonsohlplatte mit 3 cm Perimeterdämmung
- Außenwände: Hohlschichtmauerwerk, Porenbeton innen, Hohlschicht mit 10 cm Kerndämmplatten, Verblendmauerwerk außen
- Dachschrägen mit 20 cm Klemmfilzbahnen gedämmt
- Dacheindeckung mit engobierten Tonpfannen nebst Zink-Dachrinnen
- Gas-Brennwert-Thermenheizung mit Warmwasserbereitung
- Kunststofffenster und Türen mit Wärmeschutzverglasung
- Carport
- Einbauküche mit Elektrogeräten
- Kaminofen
- im Kaufpreis enthalten ist das gesamte Mobiliar und Inventar

Ausstattungsmerkmale

KücheOffene Küche
Bad1
Bad (Ausstattung)Dusche
Terrassen1
GartenJa

Energie

C
Energieeffizienzklasse C · 82.1 kWh/(m²*a)
EnergieausweistypVerbrauch
Ausstellungsdatum31. 03. 2026
Gültig bis2036-03-31
Baujahr (laut Energieausweis)2014
EnergieeffizienzklasseC
Energieverbrauchkennwert82.1 kWh/(m²*a)
Heizungsart Zentralheizung
Wesentlicher EnergieträgerErdgas H

Karte wird geladen...
26349 Jade

Lage & Infrastruktur

Der Naherholungsort Sehestedt am Jadebusen ist berühmt für das „Schwimmende Moor“, das weltweit einzige Hochmoor im Außenbereich, das bei Sturmfluten aufschwimmt. Es liegt direkt im UNESCO-Weltnaturerbe Wattenmeer, bietet einen Naturstrand, Salzwiesen, einen Bohlenweg sowie eine Nationalpark-Erlebnisstation, die von Mai bis September über das einzigartige Ökosystem informiert.
Highlights und Aktivitäten:

Schwimmendes Moor: Ein ca. 10 Hektar großes, ökologisch wertvolles Moor, das sich bei Sturmfluten hebt. Ein 150 Meter langer Bohlenweg führt zu einer Vogelbeobachtungshütte.
Strandbad Sehestedt: Ein naturbelassener Strand mit Liegewiesen, Spielplatz und Badeinsel, ideal für eine Pause.
Nationalpark-Erlebnisstation: Erlebnisstation mit Aquarium und Ausstellungen zu Moor und Deichbau (geöffnet Mai bis Mitte September).
Salzwiesen-Erlebnispfad: Ein 5 km langer Lehrpfad bietet Einblicke in die Flora und Fauna der Küste.

Die Immobilie befindet sich in einem ruhigen Wohngebiet, das von einer naturnahen Umgebung geprägt ist. Der nächste Supermarkt ist etwa 7,5 Kilometer entfernt und bietet eine gute Versorgung für den täglichen Bedarf. Für Freizeitaktivitäten bietet das nahegelegene Strandbad Sehestedt, das etwa 1,6 Kilometer entfernt ist, vielfältige Möglichkeiten wie Spaziergänge oder Badeausflüge am Jadebusen. Eine Bushaltestelle mit Anbindung an den öffentlichen Nahverkehr befindet sich in rund 300 Metern Entfernung. Die Stadt Varel, mit weiteren Einkaufsmöglichkeiten, Restaurants und kulturellen Angeboten, liegt etwa 15 Autominuten entfernt oder per Bus erreichbar.
Die Seestadt Bremerhaven und auch Wilhelmshaven sind in ca. 40 Minuten mit dem PKW erreichbar, Oldenburg in ca. 30 Minuten.

Die generell naturnahe Umgebung und das ruhige Wohnumfeld machen diesen Standort besonders attraktiv für Familien, Ruhesuchende und Naturliebhaber.
Ansprechpartner/in: Herr Walter Rätzke
Rätzke Immobilienkontor GmbH
Nebbsallee 16, 26316 Varel

Weitere Angebote in Jade