Haus in Seenähe
795.000 €
Kaufpreis
150 m²
Wohnfläche
74 m²
Nutzfläche
5
Zimmer
immobilien.de Nr.: 9542899
Objektnummer: 25-9389
Kaufpreis
| Kaufpreis | 795.000 € |
| Maklerprovision | 3,57 % |
Wohnfläche, Grundstück & Bausubstanz
| Wohnfläche | 150 m² |
| Nutzfläche | 74 m² |
| Grundstücksfläche | 884 m² |
| Zimmer | 5 |
| Baujahr | 1992 |
| Verfügbar ab | nach Absprache |
Energie
| Energieausweistyp | Verbrauch |
| Gültig bis | 2035-09-16 |
| Energieverbrauchkennwert | 104,50 kWh/(m²*a) |
| Energieträger/Befeuerung | Gas |
Beschreibung der Immobilie
Dieses großzügige Einfamilienhaus wurde in massiver Bauweise errichtet – „Stein auf Stein“ .Das Haus befindet sich in einer idyllischen und ruhigen Lage von Hemmelsdorf, nur einen kurzen Spaziergang vom malerischen See entfernt.
Diese Immobilie beeindruckt durch eine großzügige Raumaufteilung und eine durchdachte Architektur, die perfekt mit der naturnahen Umgebung harmoniert.
Die Autobahnauffahrt zur A 1 ist nur ca. 5 km vom Haus entfernt.
Das 1992 erbaute Haus wurde im Jahr 2000 durch einen attraktiven Anbau mit bodentiefen Fenstern erweitert und bietet somit insgesamt ca. 150 m² Wohnfläche.
Ein wunderschön eingewachsenes Grundstück, das viel Privatsphäre bietet und sich perfekt für Familien und Gartenliebhaber eignet.
Der wohnraumähnlich ausgebaute Vollkeller mit separatem seitlichen Eingang und einer Nutzfläche von ca. 74 m² bietet vielfältige Nutzungsmöglichkeiten – z.B. als Hobbyraum, Büro oder Gästebereich.
Ein Carport und ein PKW Stellplatz befinden sich direkt am Haus.
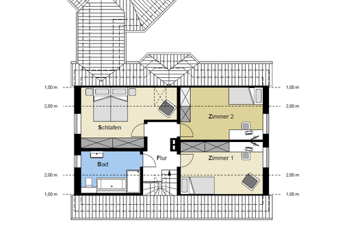
Aufteilung:
EG: moderne EBK, Gäste-WC, imposanter Wohn-Essbereich mit Kamin und Kaminofen
OG: 3 Zimmer, modernes Vollbad mit Tageslicht
KG: ausgebaut mit separatem Außenzugang
Überzeugen Sie sich von den Vorzügen dieser begehrenswerten Immobilie in Seenähe. Nur einen Katzensprung vom See entfernt, genießen Sie hier Ruhe und Natur in perfekter Lage. Als Einwohner von Hemmelsdorf haben Sie exklusiven Zugang zur Badestelle am See.
Der beschauliche Ort bietet vieles, was das Herz begehrt. Wer Lust auf etwas mehr Trubel hat, findet im knapp 3 km entfernten Badeort Timmendorfer Strand zahlreiche Möglichkeiten.
Nutzen Sie die Gelegenheit und überzeugen Sie sich persönlich von dieser einzigartigen Immobilie.
Gerne vereinbaren wir mit Ihnen einen vielversprechenden Besichtigungstermin.
Energieausweis: Verbrauchsausweis 104,5 kWh(m²a)Gas, Bj. Haus 1992, Anbau 2000, Baujahr Wärmeerzeuger: 1992 +2000 , D
Ansprechpartner für dieses Objekt:
Joachim Holz
04531 / 508-75735
Mobil 0151 / 122 122 07
Diese Immobilie beeindruckt durch eine großzügige Raumaufteilung und eine durchdachte Architektur, die perfekt mit der naturnahen Umgebung harmoniert.
Die Autobahnauffahrt zur A 1 ist nur ca. 5 km vom Haus entfernt.
Das 1992 erbaute Haus wurde im Jahr 2000 durch einen attraktiven Anbau mit bodentiefen Fenstern erweitert und bietet somit insgesamt ca. 150 m² Wohnfläche.
Ein wunderschön eingewachsenes Grundstück, das viel Privatsphäre bietet und sich perfekt für Familien und Gartenliebhaber eignet.
Der wohnraumähnlich ausgebaute Vollkeller mit separatem seitlichen Eingang und einer Nutzfläche von ca. 74 m² bietet vielfältige Nutzungsmöglichkeiten – z.B. als Hobbyraum, Büro oder Gästebereich.
Ein Carport und ein PKW Stellplatz befinden sich direkt am Haus.
Aufteilung:
EG: moderne EBK, Gäste-WC, imposanter Wohn-Essbereich mit Kamin und Kaminofen
OG: 3 Zimmer, modernes Vollbad mit Tageslicht
KG: ausgebaut mit separatem Außenzugang
Überzeugen Sie sich von den Vorzügen dieser begehrenswerten Immobilie in Seenähe. Nur einen Katzensprung vom See entfernt, genießen Sie hier Ruhe und Natur in perfekter Lage. Als Einwohner von Hemmelsdorf haben Sie exklusiven Zugang zur Badestelle am See.
Der beschauliche Ort bietet vieles, was das Herz begehrt. Wer Lust auf etwas mehr Trubel hat, findet im knapp 3 km entfernten Badeort Timmendorfer Strand zahlreiche Möglichkeiten.
Nutzen Sie die Gelegenheit und überzeugen Sie sich persönlich von dieser einzigartigen Immobilie.
Gerne vereinbaren wir mit Ihnen einen vielversprechenden Besichtigungstermin.
Energieausweis: Verbrauchsausweis 104,5 kWh(m²a)Gas, Bj. Haus 1992, Anbau 2000, Baujahr Wärmeerzeuger: 1992 +2000 , D
Ansprechpartner für dieses Objekt:
Joachim Holz
04531 / 508-75735
Mobil 0151 / 122 122 07
Ausstattungsmerkmale
| Keller |
exklusiver Zugang zum Badesee
Tageslicht Gäste WC und Vollbad
elektrische Außenrollläden
Kamin und Kaminofen
Fußbodenheizung
Carport + PKW Stellplatz
Gartenhaus
Vollkeller ausgebaut mit separatem Eingang
Tageslicht Gäste WC und Vollbad
elektrische Außenrollläden
Kamin und Kaminofen
Fußbodenheizung
Carport + PKW Stellplatz
Gartenhaus
Vollkeller ausgebaut mit separatem Eingang
Karte wird geladen...
Objektstandort
23669 Timmendorfer Strand
- Schleswig-Holstein
Lage & Infrastruktur
Objektstandort
23669 Timmendorfer Strand
- Schleswig-Holstein
Hemmelsdorf
Kleiner Ort mit großem Gewässer
Rund 600 Einwohner leben in dem schönen Örtchen Hemmelsdorf. Das Highlight ist hier nicht zu übersehen: ein riesiger Binnensee mit 4,6 km² Fläche schafft die Grundlage für so ziemlich alles, was das Herz eines jeden Naturliebhabers begehrt.
Im Herzen des Ortes finden Sie ein trendiges Restaurant direkt am See. Eine kleine Idylle mit ganz besonderer Atmosphäre.
Geselligkeit wird in Hemmelsdorf groß geschrieben. Das jährliche Seefest lockt Besucher von nah und fern, um gemeinsam mit der ortsansässigen freiwilligen Feuerwehr den Sommer auf der Koppel eines Hemmelsdorfer Bauerns zu feiern.
Von der See an den See – durch das Naturschutzgebiet der Aalbeek Niederung
Nach einem ausgiebigen Spaziergang durch das Naturschutzgebiet um die Aalbeek Niederung auf dem Weg zum Hemmelsdorfer See, sollten Sie den besten Rundblick über den malerischen fünf Kilometer langen See, seinen Schilfgürtel, das Wald-, Busch- und Wiesengebiet vom Herman-Löns-Aussichtsturm genießen. Dieser Turm ist 20 Meter hoch und steht am Nordrand des Sees, wo sich auch der Abfluss in die Ostsee befindet.
Der See, den eiszeitliche Gletscher gebildet haben, teilt sich bei der Möweninsel in zwei Becken. Das südliche Seebecken ist mit 39,5 Metern Tiefe Deutschlands zweittiefster Punkt unter Normalnull. Dies wurde im Zuge einer Exkursion der Hamburger HafenCity-Universität mit modernsten Geräten gemessen.
Zum Baden im Hemmelsdorfer See lockt heute (Geheimtipp!) besonders die Badestelle in Offendorf. Doch ungleich dem ähnlich unergründlichen Loch Ness teilen sich die Badenden in Hemmelsdorf das erfrischende Nass nur mit einigen Wasservögeln und Fischen. Und wer noch mehr Uferromantik sucht, der fährt einfach weiter nach Kreuzkamp, Wilmsdorf und Häven, wie die hübschen Dörfer am Seeufer heißen.
Kleiner Ort mit großem Gewässer
Rund 600 Einwohner leben in dem schönen Örtchen Hemmelsdorf. Das Highlight ist hier nicht zu übersehen: ein riesiger Binnensee mit 4,6 km² Fläche schafft die Grundlage für so ziemlich alles, was das Herz eines jeden Naturliebhabers begehrt.
Im Herzen des Ortes finden Sie ein trendiges Restaurant direkt am See. Eine kleine Idylle mit ganz besonderer Atmosphäre.
Geselligkeit wird in Hemmelsdorf groß geschrieben. Das jährliche Seefest lockt Besucher von nah und fern, um gemeinsam mit der ortsansässigen freiwilligen Feuerwehr den Sommer auf der Koppel eines Hemmelsdorfer Bauerns zu feiern.
Von der See an den See – durch das Naturschutzgebiet der Aalbeek Niederung
Nach einem ausgiebigen Spaziergang durch das Naturschutzgebiet um die Aalbeek Niederung auf dem Weg zum Hemmelsdorfer See, sollten Sie den besten Rundblick über den malerischen fünf Kilometer langen See, seinen Schilfgürtel, das Wald-, Busch- und Wiesengebiet vom Herman-Löns-Aussichtsturm genießen. Dieser Turm ist 20 Meter hoch und steht am Nordrand des Sees, wo sich auch der Abfluss in die Ostsee befindet.
Der See, den eiszeitliche Gletscher gebildet haben, teilt sich bei der Möweninsel in zwei Becken. Das südliche Seebecken ist mit 39,5 Metern Tiefe Deutschlands zweittiefster Punkt unter Normalnull. Dies wurde im Zuge einer Exkursion der Hamburger HafenCity-Universität mit modernsten Geräten gemessen.
Zum Baden im Hemmelsdorfer See lockt heute (Geheimtipp!) besonders die Badestelle in Offendorf. Doch ungleich dem ähnlich unergründlichen Loch Ness teilen sich die Badenden in Hemmelsdorf das erfrischende Nass nur mit einigen Wasservögeln und Fischen. Und wer noch mehr Uferromantik sucht, der fährt einfach weiter nach Kreuzkamp, Wilmsdorf und Häven, wie die hübschen Dörfer am Seeufer heißen.
Kontaktanfrage senden
Über den Anbieter
SIG Holstein mbH & Co. KG
Hagenstraße 19
23843 Bad Oldesloe
Kontakt
| Telefon | 04531 508 75735 |
| Mobil | 0151 12212207 |
| Fax | 04531 508 77710 |
| Website | www.sig-holstein.de |
Ansprechpartner/in
Herr Joachim Holz
Weitere Angebote des Anbieters
26
Ein-/Zweifamilienhaus in Heiligenhafen
Haus
23774 Heiligenhafen
Dieses charmante Einfamilienhaus in Heiligenhafen bietet viel Platz und Potenzial für individuelle Wohnträume. Ursprünglich ca. 1930 erbaut und in den Jahren 1954 sowie 1976 erweitert, präsentiert sich die Immobilie ...
319.000 €
Kaufpreis
140 m²
Wohnfläche
7
Zimmer
21
Haus in Seenähe
Haus
23669 Timmendorfer Strand
Dieses großzügige Einfamilienhaus wurde in massiver Bauweise errichtet – „Stein auf Stein“ .Das Haus befindet sich in einer idyllischen und ruhigen Lage von Hemmelsdorf, nur einen kurzen Spaziergang vom malerischen See ...
795.000 €
Kaufpreis
150 m²
Wohnfläche
5
Zimmer
14
Modernes EFH mit Einliegerwohnung
Haus
23843 Bad Oldesloe
Dieses moderne Einfamilienhaus aus dem Baujahr 2011 besticht durch seine hochwertige, neuwertige Bauweise und die durchdachte Raumaufteilung – ideal für Eigenbedarf, Vermietung oder als Mehrgenerationenhaus. Das Haus ...
749.000 €
Kaufpreis
185 m²
Wohnfläche
6
Zimmer
18
Einfamilienhaus in ruhiger Lage
Haus
23858 Reinfeld
Bei dieser etwa 1974 errichteten Doppelhaushälfte handelt es sich um ein modernes und gut gepflegtes Zuhause, das durch zahlreiche Sanierungen den heutigen Wohnansprüchen voll entspricht. Die Straße ist bereits mit ...
390.000 €
Kaufpreis
130 m²
Wohnfläche
5
Zimmer
34
Mietwohnung mit Balkon in Schleswig
Wohnung
24837 Schleswig
In unmittelbarer Lage zur Schlei, mit einem fantastischen Blick über die Schlei, deren Ufern und der Stadt Schleswig stehen Ihnen mit dem Quartier „Schleiblick” sieben exklusive Stadtvillen mit komfortablen ...
1.341 €
Kaltmiete (netto)
78,88 m²
Wohnfläche
2
Zimmer