*von Privat* freistehendes EFH mit PV-Anlage, beheiztem Profi-Pool & Außensauna

26906 Dersum, Niedersachsen
Frei ab: nach Absprache
523.000 € Kaufpreis
Wohnfläche
283,57 m²
Zimmer
7
Einbauküche
Balkon
Terrasse
Garten
Barrierefrei
Stellplatz

Kaufpreis

Kaufpreis 523.000 €
Maklerprovisionkeine Provision, courtagefrei

Wohnfläche, Grundstück & Bausubstanz

Wohnfläche283,57 m²
Grundstücksfläche943 m²
Zimmer7
Etagen2
Baujahr2000
Verfügbar ab nach Absprache
ZustandModernisiert

Beschreibung der Immobilie

283 m² Familienanwesen in Massivbauweise mit beheiztem und überdachtem Pool, PV Anlage & idealer Wohnsituation für Familien - komplett eingefriedet

Kaufpreis: 523.000 € (1.848,-€/m²)

Viel Raum. Viel Ausstattung. Viel Lebensqualität.
Ein außergewöhnliches Zuhause für Familien, die unbeschwert leben möchten.

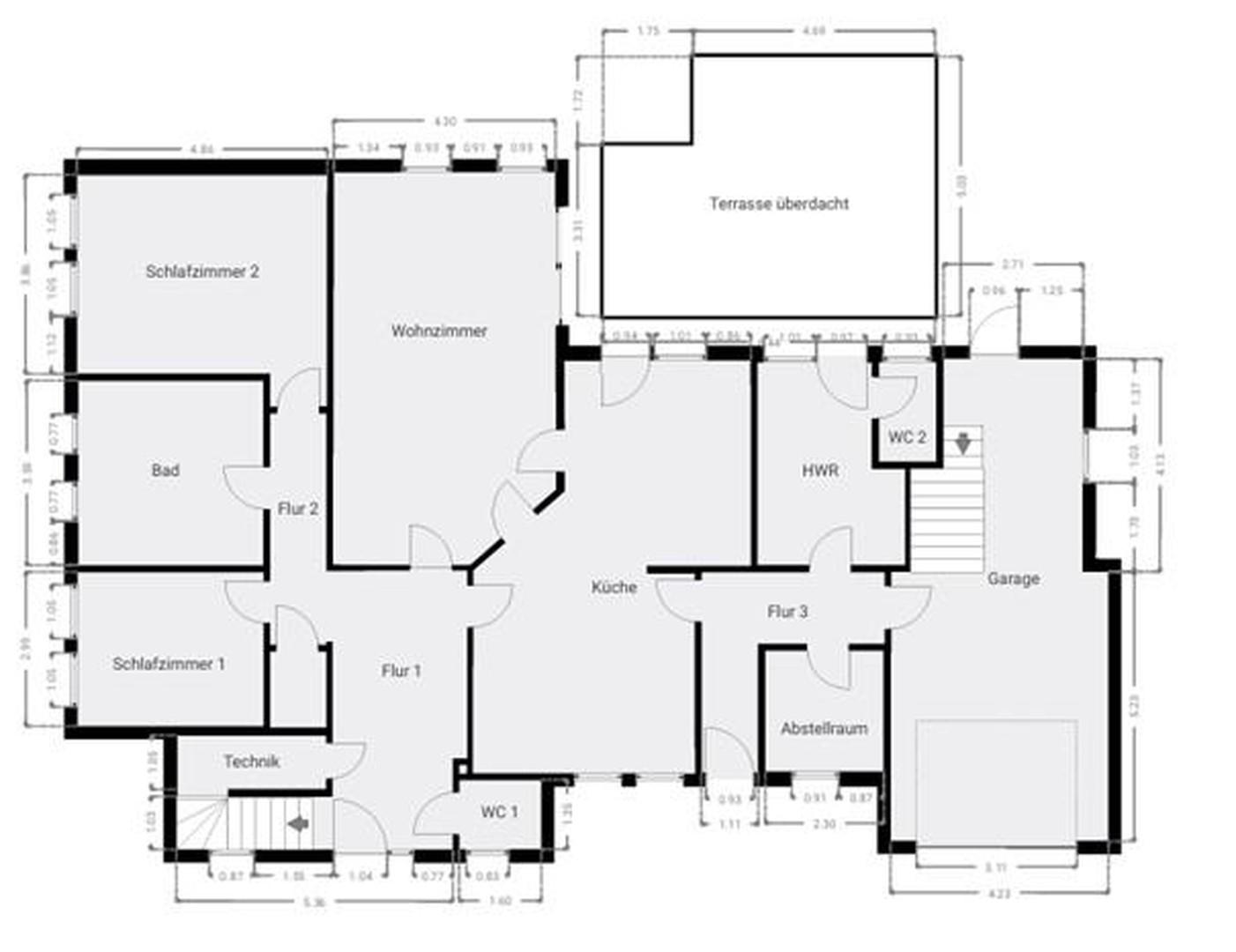
Mit 169 m² im Erdgeschoss und 115 m² im Obergeschoss bietet unsere Immobilie ein großzügiges Raumangebot, das in dieser Größenordnung selten zu finden ist. Der Kaufpreis von 523.000 € hat bei dieser Ausstattung ein sehr attraktives Preis-Leistungs-Verhältnis, welches deutlich über den üblichen Standard hinausgeht.

Raum für Familie & Zukunft

Sieben flexibel nutzbare Zimmer schaffen ideale Voraussetzungen für mehrere Kinder, Homeoffice, Gästezimmer oder ein Mehr-Generationen-Haus.

Im EG bildet der großzügige Wohn- und Essbereich mit Kamin einen zentralen Mittelpunkt des Hauses. Die Küche ist im Essbereich integriert und ermöglicht unter anderem einen direkten Zugang zur überdachten und wettergeschützten Terrasse.

Aufgrund dessen lässt sich der Außenbereich bei nahezu jedem Wetter nutzen. Auf dieser Etage befinden sich außerdem ein großes Schlafzimmer, ein Dusch,-/Badezimmer, ein Gäste-WC sowie ein Zimmer welches derzeit als Ankleidezimmer genutzt wird.

Ein Hauswirtschaftsraum, ein Hausanschlussraum, sowie ein Vorratsraum und der direkte Zugang zu einer der zwei Garagen ergänzen das Raumangebot im EG. Somit haben Sie die Möglichkeit immer trockenen Fußes in das Haus zu gelangen.

Das Badezimmer ist modern ausgestattet und verfügt über eine ebenerdige Dusche, Badewanne, wandhängendes WC, Waschbecken mit Wandspiegel sowie einen Handtuchwärmeheizkörper – alles auf Langlebigkeit und Komfort ausgerichtet.

Im OG befinden sich ein großes Schlafzimmer mit Klimaanlage, 2 Gästezimmer, ein Büro, ein weiteres Gäste-WC sowie ein sehr großes Duschbad mit Infrarot-Wärmekabine.

Die Aufteilung dieser Etage ermöglicht auch eine teilweise getrennte Nutzung, beispielsweise für Familienangehörige oder Gäste.

Mittels einer einfachen Grundrissoptimierung / Umbau im EG Eingangsbereich könnten die Etagen komplett getrennt werden, sodass auch eine Nutzung als Einlieger,- / Ferienwohnung möglich wäre.
Ein Waschmaschinenanschluss sowie ein Küchenanschluss sind im OG vorhanden.

Das Grundstück ist vollständig eingefriedet und verfügt über ein großes Einfahrtstor mit Stellplatz z.B. für ein Wohnmobil.
Der Garten bietet Platz für Erholung und Freizeit. Ebenfalls verfügt die Immobilie über ein gemütliches Saunahaus neben dem Schwimmbad.

Wellness & Lebensqualität im eigenen Garten

Ein professioneller Außenpool (GFK - Herstellergarantie bis 2041) mit einer Größe von 8 * 4 m und eigener Wärmepumpe zur Beheizung sowie einer vollautomatischen Wasseraufbereitung erweitert das Wellnessangebot. Die Schiebehalle des Pools, die eine Nutzung auch bei schlechtem Wetter ermöglicht, ist im geschlossenen Zustand abschließbar und somit komplett kindersicher.

Die Betriebskosten belaufen sich aufgrund der energetischen Bauweise der Gesamtanlage, bezogen auf die Nutzung in der Saison von April bis September auf max. 200 € gesamt.

Erdgeschoss: großer heller Eingangsbereich, Schlafzimmer, Ankleidezimmer, Bad, Gäste WC, Küche, Wohnzimmer, Abstellraum, HWR, Garten WC, gemütliche Terrasse überdacht und wettergeschützt.

OG: Büro, 3 Schlafzimmer, Duschbad mit Infrarotkabine, separates WC

Familienfreundliche Lage

Besonders attraktiv für junge Familien:
Kindergarten und Grundschule sind fußläufig durch die Siedlung erreichbar – ohne Hauptstraßen oder lange Wege.

Die ruhige, gewachsene Wohnlage verbindet ländliche Lebensqualität mit praktischer Infrastruktur.

Dateien


Ausstattungsmerkmale

KücheEinbauküche
Bad2
Bad (Ausstattung)Dusche, Wanne
BodenFliesen, Kunststoff
Balkone0
Terrassen1
GartenJa
BarrierefreiJa
Garage/Stellplätze2
Terrasse, Wintergarten, Garten, Vollbad, Duschbad, Sauna, Pool · Schwimmbad, Einbauküche, Gäste-WC, Kamin, Barrierefrei, Fliesen

Bemerkungen:
- Glasfaser derzeit im Ausbau, aktuell DSL 50
- Zentralheizung und teilweise Fußbodenheizung
- Garteneinfriedung mit 3m Tor sowie Stellplatz aus 2021
- Vaillant Heizungsanlage aus 2021
- komplette Poolanlage aus 2021 - Herstellergarantie bis 2041
- Badezimmer + Gäste WC im EG + Gäste WC OG aus 2021
- Vinyl Böden aus 2021
- Kamin mit Edelstahl Außenschornstein aus 2022
- elektrische Garagentore aus 2022
- Gartenbewässerung durch Brunnenwasseranlage aus 2022
- Klimasplit Anlage im OG aus 2022
- PV Anlage mit 9,6 kW, Batteriespeicher mit 16 kW aus 2023
- Elektroschaltschrank in 2025 komplett erneuert

Energie

EnergieausweistypBedarfsausweis
Endenergiebedarf94
Heizungsart Zentralheizung
Energieträger/Befeuerung Gas

Karte wird geladen...
26906 Dersum – Niedersachsen

Lage & Infrastruktur

Das Haus liegt in dem kleinen, familienfreundlichen Ort Dersum / Nähe Dörpen im Emsland.

Einkaufsmöglichkeiten, Ärzte, Apotheken, Friseur, Eisdiele, Imbiss und Restaurants sind mit dem Auto / Fahrrad schnell zu erreichen.

Das hier angebotene Objekt besticht durch seine idyllische Lage direkt an der Ems.
Sehr gut angebundene Radwege entlang des Ems-Radwegs, die zu ausgedehnten Touren durch das Emsland und bis nach Ostfriesland einladen, beginnen direkt vor der Haustür. Freizeit, Natur und Aktiv sein lassen sich hier perfekt verbinden.

Nur ca. 18 km entfernt liegt die charmante Stadt Papenburg, bekannt für ihren einzigartigen maritimen Charakter: Papenburg ist die älteste und längste Fehnkolonie Deutschlands und begeistert mit weit verzweigten Kanälen, historischen Bauwerken und der weltbekannten Meyer Werft, einer der größten Werften für Kreuzfahrtschiffe.

Freizeitmöglichkeiten umgeben von schöner Natur gibt es in der direkten Umgebung.

Badeseen, Marina Walchum, Touren mit dem Rad, Freizeitschloss Dankern, Festung Bourtange (NL), die Blauwestad (NL), Reitsportmöglichkeiten, Trip in die Niederlande mit Einkaufsmöglichkeiten auch an Sonntagen sowie Ausflugsmöglichkeiten zur Nordseeküste.

Die Verkehrsanbindung ist ebenfalls hervorragend: Die Autobahn A31 ist in wenigen Minuten erreichbar – sorgt für optimale Anbindung Richtung Ruhrgebiet und Nordsee, bleibt jedoch komplett außerhalb der Hör- und Sichtweite.
Infrastruktur (im Umkreis von 5 km):
Lebensmittel-Discount, Allgemeinmediziner, Kindergarten, Grundschule, Öffentliche Verkehrsmittel

Sonstige Informationen

Heizungsart: Zentralheizung
Energieträger: Gas

Energieausweis C
Heizungsart: Gas Zentralheizung, teilweise Fußbodenheizung

Wir übernehmen keine Haftung für die Richtigkeit und Vollständigkeit der Angaben, Änderungen, Irrtümer und Druckfehler sind ausdrücklich vorbehalten. Das gilt natürlich nicht bei vorsätzlichen oder grob fahrlässigen falschen Angaben. Als verbindlich gelten ausschließlich die Angaben im Notarvertrag und den vom Verkäufer zur Verfügung gestellten und gegengezeichneten Unterlagen.

Besichtigungen erfolgen nach individueller Terminvereinbarung.
Aufgrund der Größe und hochwertigen Ausstattung werden Termine bevorzugt an Interessenten vergeben, die sich bereits mit ihrer Finanzierung befasst haben.
Unser Haus wird durch uns selbst bewohnt - kein Mietverhältnis.
Eine Übergabe ist kurzfristig, nach Absprache möglich.
Keine Maklercourtage, da Privatverkauf.
Käufer trägt zusätzlich die allgemeinen Kaufnebenkosten, Grunderwerbsteuer, Notar- und Grundbuchkosten.
Finanzierungsfragen mit der Bank bitte vor einer Besichtigung des Objektes klären.
Ein Notartermin findet erst nach offizieller Bankbestätigung/Bankbürgschaft statt.

Besichtigungen finden nur unter Angabe der vollständigen Personendaten statt.

Makleranfragen sind nicht erwünscht!

Makleranfragen nicht erwünscht. Nach § 7 UWG sind unaufgeforderte Kontaktaufnahmen durch Makler ohne ausdrückliche Einwilligung des Empfängers verboten!

ohne-makler (OM) ist weder Anbieter noch Vermittler der Immobilie. OM betreibt eine Plattform für Immobilieneigentümer, die unter anderem die gleichzeitige Veröffentlichung einzelner Inserate auf mehreren Immobilienportalen ermöglicht. Die Inhalte dieser Inserate werden ausschließlich von Dritten verantwortet. Für die Richtigkeit, Vollständigkeit oder Rechtmäßigkeit der Angaben übernimmt OM keine Haftung. Hinweise auf mögliche Rechtsverstöße können jederzeit gemeldet werden und werden nach Prüfung umgehend bearbeitet.
Ansprechpartner/in: Privat vom Eigentümer
OM PropTech GmbH
Humboldtstraße 25a, 21509 Glinde

Weitere Angebote in Dersum