Provisionsfrei für Käufer! Exklusive Villa mit traumhaftem Grundstück an der Ems

26892 Kluse
Frei ab: nach Vereinbarung
569.000 € Kaufpreis
Wohnfläche
280 m²
Zimmer
8
Einbauküche
Balkon
Stellplatz

Kaufpreis

Kaufpreis 569.000 €

Wohnfläche, Grundstück & Bausubstanz

Wohnfläche280 m²
Grundstücksfläche1.529 m²
Zimmer8
Baujahr1983
Verfügbar ab nach Vereinbarung
ZustandGepflegt

Beschreibung der Immobilie

Provisionsfrei für Käufer! Sie suchen eine erstklassige Immobilie in traumhafter Lage und auch noch direkt am Wasser? Denn haben wir hier genau das Richtige. Wir bieten Ihnen hier eine exklusive Villa mit dem Charme der 80ziger und einer hochwertigen Ausstattung, wie z. B. dem Wellnessbereich mit extragroßem Whirlpool und Sauna. Das Objekt verfügt über insgesamt 290 m² Wohnfläche auf zwei Ebenen. Alle Räume sind hell und lichtdurchflutet und bieten viel Raum für die ganze Familie. Für Sonnenanbeter steht die große Terrasse zum Garten und ein extragroßer Balkon im Obergeschoss zur Verfügung. Wer es etwas schattiger mag ist im großen Wintergarten mit Beschattung gut aufgehoben. Dieses Objekt eignet sich sowohl für Senioren, durch die Möglichkeit des ebenerdigen Wohnens, als auch für Familien mit Kindern. Der zum Haus gehörende praktische Kriechkeller bzw. Installationskeller eignet sich ideal für Unterbringung und Wartung der Haustechnik. Hier können Sie Ihre Heizungsanlage, Elektroinstallationen und andere technische Einrichtungen bequem zugänglich und gut organisiert halten.

Einmalig und unverbaubar ist natürlich der Blick vom Garten in die Natur und auf die angrenzende Ems. Dieses traumhafte Ambiente wird jeden Naturfreund und Wasserliebhaber begeistern. Durch die Nähe zum Jachthafen MARINA-PARK dürfte diese Immobilie auch für Bootsbesitzer interessant sein. Also nicht lange warten – ansehen lohnt sich.

Daten Energieausweis: In Vorbereitung!

Ausstattungsmerkmale

KücheEinbauküche
Bad3
Bad (Ausstattung)Dusche, Wanne, Fenster, Bidet, Pissoir
BodenFliesen, Teppich, Laminat, Marmor
Balkone1
Garage/Stellplätze2
Bodenbeläge:
Das Erdgeschoss des Wohnhauses ist zum großen Teil mit hellen zeitlosen Marmorfliesen bestückt. Die vorhandene Fußbodenheizung kann separat für jeden Raum geregelt werden. In den Schlafräumen befindet sich Laminat oder Teppichboden.

Treppe:
Freitragende halbgeschwungene Treppe mit Marmorstufen und handgeschmiedetem Geländer und Handlauf

Bäder und Wellness:
Die zeitgenössischen Bäder im Erd- und Obergeschoss sind mit hochwertigen Armaturen ausgestattet. Das Badezimmer im EG ist mit einem Badmöbelschrank mit integriertem Doppelwaschbecken, sowie einer behinderten gerechten Toilette, einem Urinal und einem Bidet ausgestattet. Das Bad im OG verfügt über einen Badezimmerschrank mit integriertem Handwaschbecken, eine Badewanne, eine Duschkabine, sowie einem wandhängendem WC und Bidet.

Der großzügig ausgestattete Wellnessbereich mit extragroßem Whirlpool und Sauna lädt sie förmlich zum Relaxen ein. Zusätzlich findet sie dort eine begehbare Dusche und eine separate Toilette. In diese schöne Wohlfühloase können sie sich zurückziehen und Energie tanken.

Garage:
Die an das Haus grenzende große Doppelgarage mit elektrischem Garagentor und Geräteraum bietet ausreichend Platz für Ihren Pkw.

Dach: Winkel-Walmdach mit Fledermausgaube und Biberschwanz-Dachpfannen.

Grundstück:
Grundstücke in dieser Größe und der einmaligen Lage sind rar gesät und handverlesen. Das Grundstück ist ca. 1.529 m² groß und liegt direkt an der schönen Ems. In dieser grünen Idylle können sie sich als Hobbygärtner verwirklichen. Die Zuwegung zum und ums Haus sowie zur Garage und die große Sonnenterrasse sind mit roten Klinkerpflastersteinen gepflastert und Granitsteinen verziert. Ein Gehweg führt bis an Ende des Grundstückes, von wo Sie durch eine Pforte direkten Zugang zum Radwanderweg und der Ems haben. Einfach gesagt – Natur pur.

Lassen Sie sich bei einer Besichtigung von uns inspirieren damit Ihr Traum vom Eigenheim wahr wird. Hier bieten wir Ihnen die einmalige Gelegenheit zum Wohnen und Leben an der wunderschönen Ems. Anschauen – es lohnt sich.

Energie

Wesentlicher EnergieträgerErdgas Leicht

Karte wird geladen...
26892 Kluse

Lage & Infrastruktur

Steinbild, ein beschaulicher Ortsteil der Gemeinde Kluse im Herzen des Emslandes, bietet eine einzigartige Kombination aus ländlicher Idylle und guter Erreichbarkeit. Gelegen direkt an der Ems, präsentiert sich das Dorf mit seiner reizvollen Landschaft, die von weiten Feldern, grünen Wäldern und der Nähe zum Wasser geprägt ist. Diese Umgebung lädt zu zahlreichen Freizeitaktivitäten ein, wie Spaziergänge, Radtouren oder Kanufahrten auf der Ems, die das Leben hier so ausmacht.

Die ruhige und sichere Atmosphäre macht Steinbild zu einem idealen Wohnort, insbesondere für Familien mit Kindern und allen, die einen Rückzugsort abseits des städtischen Trubels suchen. Gleichzeitig sorgt die gute Verkehrsanbindung dafür, dass wichtige Einrichtungen und größere Städte wie Papenburg oder Lingen schnell erreichbar sind. Trotz seiner ländlichen Lage sind Bildungseinrichtungen, Einkaufsmöglichkeiten und kulturelle Angebote nicht weit entfernt.

Die lange Geschichte des Ortes spiegelt sich in seinen charmanten Gebäuden und lokalen Traditionen wider, die das Gemeinschaftsgefühl stärken. Wer in Steinbild lebt, genießt eine hohe Lebensqualität, die geprägt ist von der Nähe zur Natur, einer herzlichen Nachbarschaft und der Möglichkeit, das Leben in vollen Zügen zu entschleunigen.

Sonstige Informationen

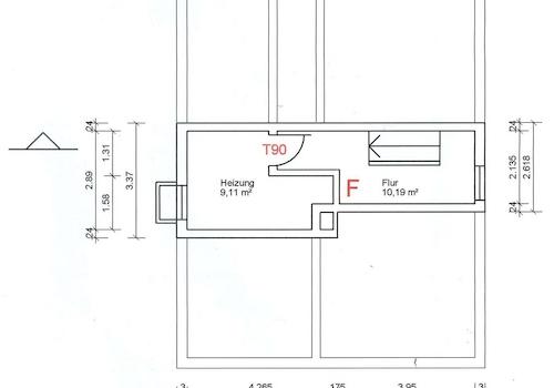
Wohnflächenaufteilung:

Erdgeschoss:
Diele/Windfang ca. 9,45 m²
Gäste-WC ca. 1,63 m²
Bad ca. 7,38 m²
Ankleide ca. 6,59 m²
Wohn/Esszimmer ca. 41,92 m²
Schlafzimmer ca. 16,67 m²
Flur ca. 14,10 m²
Küche ca. 10,04 m²
Wintergarten ca. 35,00 m²
Wellnessbereich mit Sauna ca. 48,50 m²

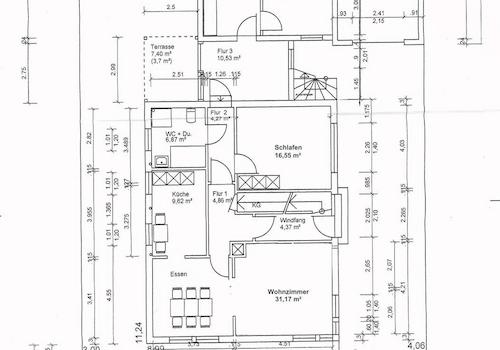
Obergeschoss:
Flur ca. 15,77 m²
Schlafzimmer 1 ca. 20,09 m²
Schlafzimmer 2 ca. 19,19 m²
Schlafzimmer 3 ca. 26,27 m²
Badezimmer ca. 9,07 m²

Nutzflächen:
Doppelgarage, Keller, Kriechkeller, Dachterrasse
Ansprechpartner/in: Herr Ralf Gründer
Gründer Immobilien
Hauptstrasse 97, 26892 Dörpen

Weitere Angebote in Dörpen