TOP gepflegte 2-Zimmer Perle in Bedingrade
139.999 €
Kaufpreis
57 m²
Wohnfläche
2
Zimmer
immobilien.de Nr.: 9536785
Objektnummer: 436590
Kaufpreis
| Kaufpreis | 139.999 € |
| Hausgeld | 267 € |
| Maklerprovision | keine Provision, courtagefrei |
Wohnfläche, Grundstück & Bausubstanz
| Wohnfläche | 57 m² |
| Zimmer | 2 |
| Baujahr | 1962 |
| Verfügbar ab | nach Absprache |
| Zustand | Gepflegt |
Energie
| Energieausweistyp | Verbrauch |
| Energieeffizienzklasse | C |
| Energieverbrauchkennwert | 95 kWh/(m²*a) |
| Heizungsart | Zentralheizung |
| Energieträger/Befeuerung | Fernwärme |
Beschreibung der Immobilie
Attraktive Kapitalanlage in gepflegter Wohnanlage – zuverlässig vermietet
Diese gepflegte Eigentumswohnung überzeugt durch eine langfristige Vermietung, eine ruhige Wohnlage und ein angenehmes Wohnumfeld.
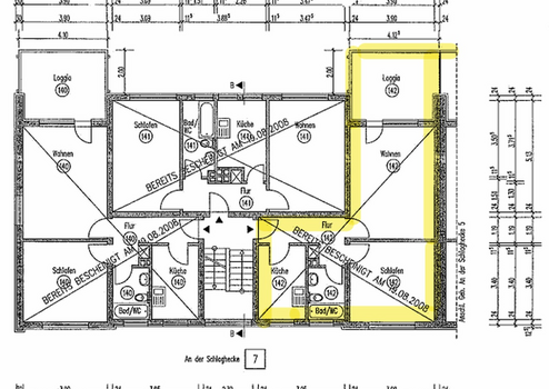
Die Wohnung befindet sich im 2. Obergeschoss eines sehr gepflegten Mehrfamilienhauses aus dem Jahr 1962 und verfügt über eine Wohnfläche von ca. 57 m². Das Objekt ist bereits seit vielen Jahren zuverlässig vermietet und bietet somit eine sofortige Einnahmequelle.
Der durchdachte Grundriss umfasst ein helles Wohnzimmer mit Zugang zur großzügigen, ca. 14 m² großen Terrasse, die nach Südwest ausgerichtet ist. Der Außenbereich bietet den Mietern einen angenehmen Rückzugsort zum Entspannen und Genießen.
Ergänzt wird das Raumangebot durch ein ruhiges Schlafzimmer, eine separate Küche sowie ein Tageslichtbad. Die Waschmaschine kann im gemeinschaftlichen Waschkeller oder – wie aktuell vom Mieter praktiziert – in der Küche untergebracht werden.
Zusätzlichen Stauraum bieten zwei eigene Kellerräume sowie ein Abstellabteil im Dachgeschoss.
Die Jahreskaltmiete beträgt 5.880 €. Somit stellt diese Wohnung eine interessante und stabile Kapitalanlage dar. Dank der ruhigen und dennoch gut angebundenen Lage ist auch langfristig eine gute Vermietbarkeit gegeben.
Nach Rücksprache mit der Mieterin stellt auch die Nutzung durch Eigenbedarf kein grundsätzliches Problem dar
Diese gepflegte Eigentumswohnung überzeugt durch eine langfristige Vermietung, eine ruhige Wohnlage und ein angenehmes Wohnumfeld.
Die Wohnung befindet sich im 2. Obergeschoss eines sehr gepflegten Mehrfamilienhauses aus dem Jahr 1962 und verfügt über eine Wohnfläche von ca. 57 m². Das Objekt ist bereits seit vielen Jahren zuverlässig vermietet und bietet somit eine sofortige Einnahmequelle.
Der durchdachte Grundriss umfasst ein helles Wohnzimmer mit Zugang zur großzügigen, ca. 14 m² großen Terrasse, die nach Südwest ausgerichtet ist. Der Außenbereich bietet den Mietern einen angenehmen Rückzugsort zum Entspannen und Genießen.
Ergänzt wird das Raumangebot durch ein ruhiges Schlafzimmer, eine separate Küche sowie ein Tageslichtbad. Die Waschmaschine kann im gemeinschaftlichen Waschkeller oder – wie aktuell vom Mieter praktiziert – in der Küche untergebracht werden.
Zusätzlichen Stauraum bieten zwei eigene Kellerräume sowie ein Abstellabteil im Dachgeschoss.
Die Jahreskaltmiete beträgt 5.880 €. Somit stellt diese Wohnung eine interessante und stabile Kapitalanlage dar. Dank der ruhigen und dennoch gut angebundenen Lage ist auch langfristig eine gute Vermietbarkeit gegeben.
Nach Rücksprache mit der Mieterin stellt auch die Nutzung durch Eigenbedarf kein grundsätzliches Problem dar
Ausstattungsmerkmale
| Anzahl der Etagen im Haus | 2 |
| Inserat befindet sich im Stockwerk | 2 |
| Küche | Einbauküche |
| Bad | 1 |
| Bad | Dusche |
| Boden | Fliesen, Kunststoff |
| Balkone | 1 |
| Terrassen | 0 |
| Keller |
Keller, Dachterrasse, Duschbad, Einbauküche, Fliesen
Sonstige Informationen
Heizungsart: Zentralheizung
Energieträger: Fernwärme
Wir bitten ausschließlich um Kontaktaufnahme per Kontaktformular oder Mail.
Da die Wohnung aktuell vermietet ist können wir nur beschränkt Besichtigungstermine anbieten. Wir bitten hier bereits im Vorfeld um Vorlage von Bonitätsnachweisen.
Vielen Dank
Provision für Käufer: 2,38 % inkl. MwSt.
Makleranfragen nicht erwünscht. Nach § 7 UWG sind unaufgeforderte Kontaktaufnahmen durch Makler ohne ausdrückliche Einwilligung des Empfängers verboten!
ohne-makler (OM) ist weder Anbieter noch Vermittler der Immobilie. OM betreibt eine Plattform für Immobilieneigentümer, die unter anderem die gleichzeitige Veröffentlichung einzelner Inserate auf mehreren Immobilienportalen ermöglicht. Die Inhalte dieser Inserate werden ausschließlich von Dritten verantwortet. Für die Richtigkeit, Vollständigkeit oder Rechtmäßigkeit der Angaben übernimmt OM keine Haftung. Hinweise auf mögliche Rechtsverstöße können jederzeit gemeldet werden und werden nach Prüfung umgehend bearbeitet.
Energieträger: Fernwärme
Wir bitten ausschließlich um Kontaktaufnahme per Kontaktformular oder Mail.
Da die Wohnung aktuell vermietet ist können wir nur beschränkt Besichtigungstermine anbieten. Wir bitten hier bereits im Vorfeld um Vorlage von Bonitätsnachweisen.
Vielen Dank
Provision für Käufer: 2,38 % inkl. MwSt.
Makleranfragen nicht erwünscht. Nach § 7 UWG sind unaufgeforderte Kontaktaufnahmen durch Makler ohne ausdrückliche Einwilligung des Empfängers verboten!
ohne-makler (OM) ist weder Anbieter noch Vermittler der Immobilie. OM betreibt eine Plattform für Immobilieneigentümer, die unter anderem die gleichzeitige Veröffentlichung einzelner Inserate auf mehreren Immobilienportalen ermöglicht. Die Inhalte dieser Inserate werden ausschließlich von Dritten verantwortet. Für die Richtigkeit, Vollständigkeit oder Rechtmäßigkeit der Angaben übernimmt OM keine Haftung. Hinweise auf mögliche Rechtsverstöße können jederzeit gemeldet werden und werden nach Prüfung umgehend bearbeitet.
Karte wird geladen...
Objektstandort
45359 Essen
- Nordrhein-Westfalen
Lage & Infrastruktur
Objektstandort
45359 Essen
- Nordrhein-Westfalen
Die Einheit befindet sich im beliebten Essener Stadtteil Bedingrade – einer ruhigen und grünen Wohnlage im Essener Westen. Die Umgebung ist geprägt von gepflegten Mehrfamilienhäusern, viel Grün und einer angenehmen, gewachsenen Nachbarschaft.
In direkter Nähe befindet sich ein weitläufiger Park mit seinem historischen Wasserschloss Borbeck, welcher zu Spaziergängen, sportlichen Aktivitäten und erholsamen Stunden im Grünen einlädt und so einen hohen Freizeitwert bietet.
Trotz der ruhigen Wohnlage ist die Verkehrsanbindung hervorragend. Über die nahegelegene Autobahn A40 sind sowohl die Essener Innenstadt als auch die umliegenden Städte des Ruhrgebiets schnell erreichbar. Auch die Städte Oberhausen und Mülheim an der Ruhr befinden sich in unmittelbarer Nähe. Besonders Oberhausen bietet mit dem bekannten Einkaufs- und Freizeitzentrum Westfield Centro ein umfangreiches Angebot an Einkaufsmöglichkeiten, Gastronomie und Freizeitaktivitäten.
Geschäfte des täglichen Bedarfs, Supermärkte, Apotheken, Ärzte, Banken sowie Schulen und Kindergärten befinden sich in der näheren Umgebung und sind bequem erreichbar. Auch der öffentliche Nahverkehr ist gut ausgebaut und sorgt für eine schnelle Verbindung in die umliegenden Stadtteile und die Essener Innenstadt.
Die Kombination aus ruhiger, grüner Wohnlage und gleichzeitig guter Infrastruktur macht diesen Standort sowohl für Mieter als auch für Kapitalanleger besonders attraktiv.
Infrastruktur (im Umkreis von 5 km):
Lebensmittel-Discount, Öffentliche Verkehrsmittel
In direkter Nähe befindet sich ein weitläufiger Park mit seinem historischen Wasserschloss Borbeck, welcher zu Spaziergängen, sportlichen Aktivitäten und erholsamen Stunden im Grünen einlädt und so einen hohen Freizeitwert bietet.
Trotz der ruhigen Wohnlage ist die Verkehrsanbindung hervorragend. Über die nahegelegene Autobahn A40 sind sowohl die Essener Innenstadt als auch die umliegenden Städte des Ruhrgebiets schnell erreichbar. Auch die Städte Oberhausen und Mülheim an der Ruhr befinden sich in unmittelbarer Nähe. Besonders Oberhausen bietet mit dem bekannten Einkaufs- und Freizeitzentrum Westfield Centro ein umfangreiches Angebot an Einkaufsmöglichkeiten, Gastronomie und Freizeitaktivitäten.
Geschäfte des täglichen Bedarfs, Supermärkte, Apotheken, Ärzte, Banken sowie Schulen und Kindergärten befinden sich in der näheren Umgebung und sind bequem erreichbar. Auch der öffentliche Nahverkehr ist gut ausgebaut und sorgt für eine schnelle Verbindung in die umliegenden Stadtteile und die Essener Innenstadt.
Die Kombination aus ruhiger, grüner Wohnlage und gleichzeitig guter Infrastruktur macht diesen Standort sowohl für Mieter als auch für Kapitalanleger besonders attraktiv.
Infrastruktur (im Umkreis von 5 km):
Lebensmittel-Discount, Öffentliche Verkehrsmittel
Kontaktanfrage senden
Über den Anbieter
OM PropTech GmbH
Humboldtstraße 25a
21509 Glinde
Kontakt
| Telefon | - |
| Fax | - |
| Website | www.ohne-makler.net |
Ansprechpartner/in
Angebot von Kamil Kosmal
Weitere Angebote des Anbieters
45
Witten-Bommern: grosses Haus mit großem Grundstück zu ...
Haus
58452 Witten
Individuell ausgestattetes freistehendes Haus mit Fernblick, einem uneinsehbaren Innenhof und einem uneinsehbaren Grundstück mit einem großen Garten! Das Mietobjekt ist nur etwas für Gartenfreunde! Details werden nach ...
2.000 €
Kaltmiete (netto)
250 m²
Wohnfläche
8
Zimmer
27
Objekt Domblick 61, 53639 Königswinter Thomasberg WE 04 ...
Wohnung
53639 Königswinter
In 2018 stellten wir ein Mehrfamilienhaus in Königswinter Thomasberg fertig, das seit diesem Datum vermietet wird. Sämtliche Wohneinheiten werden von der Feldhoff Projekte GmbH + Co. KG als Eigentümerin vermietet und ...
1.240 €
Kaltmiete (netto)
94 m²
Wohnfläche
3
Zimmer
8
Ab sofort! Helle, ruhige 2-Zi-WHG in Sendling! Kein ...
Wohnung
81369 München
Prüfen Sie regelmäßig Ihren SPAM-Ordner wenn Sie eine Anfrage versenet haben, vielen Dank! Keine WG möglich - Durchgangszimmer! - Bad mit Wanne - Küchenzeile, offene Küche - Böden: Fliesenboden, Laminat - Zustand: ...
1.180 €
Kaltmiete (netto)
50 m²
Wohnfläche
2
Zimmer
6
Gewerbegrundstück in Top-Sichtlage bei Lüneburg ...
Grundstück
21339 Lüneburg
Zum Verkauf steht ein hochinteressantes Gewerbebaugrundstück mit einer Gesamtfläche von ca. 2.403 m² im etablierten und stark frequentierten Gewerbegebiet von Adendorf. Die Lage überzeugt durch ihre direkte ...
399.000 €
Kaufpreis
2.403 m²
Grundstücksfläche
26
Massive DHH in ruhiger Lage mit Blick auf die Natur
Haus
86706 Weichering OT Lichtenau
Die süd-westlich ausgerichtete Doppelhaushälfte in Massivbauweise, besticht durch ihre ruhige Lage, der tolle Ausblick auf die Felder sowie die Waldrandnähe lädt zum Verweilen ein. Ideal nicht nur für Hundebesitzer ...
539.000 €
Kaufpreis
125 m²
Wohnfläche
5
Zimmer