Helle, großzügige 140 m² Wohnung mit viel Tageslicht im Herzen von Vörden
950 €
Kaltmiete
140 m²
Wohnfläche
5
Zimmer
immobilien.de Nr.: 9536395
Objektnummer: 135877-[16068]
Mietpreis & Nebenkosten
| Kaltmiete | 950 € |
| Nebenkosten | 125 € |
| Heizkosten | 190 € |
| Maklerprovision | |
| Kaution | 2.850 € |
Wohnfläche, Grundstück & Bausubstanz
| Wohnfläche | 140 m² |
| Zimmer | 5 |
| Baujahr | 1923 |
| Verfügbar ab | 01.06.2026 |
| Zustand | Gepflegt |
Energie
| Heizungsart | Zentralheizung |
| Energieträger/Befeuerung | Gas, Solar |
Beschreibung der Immobilie
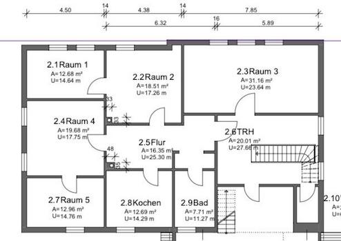
Attraktive 140 m² Wohnung im Herzen von Vörden - großzügig, hell & zum Wohlfühlen
Diese großzügig geschnittene Wohnung mit ca. 140 m² Wohnfläche befindet sich in zentraler Lage von Vörden und überzeugt durch ihre helle, freundliche Atmosphäre sowie ein durchdachtes Raumkonzept.
Das Herzstück der Wohnung ist der weitläufige Wohn- und Essbereich, der durch große Fensterflächen mit viel Tageslicht durchflutet wird. Hier entsteht ein offenes und einladendes Wohngefühl - ideal für entspannte Stunden mit der Familie oder gesellige Abende mit Freunden.
Die Wohnung bietet ausreichend Platz für individuelles Wohnen und punktet mit gut geschnittenen Räumen, die vielseitig nutzbar sind - ob als Schlafzimmer, Kinderzimmer oder Homeoffice. Die vorhandene Raumaufteilung sorgt für eine angenehme Balance zwischen Rückzugsorten und gemeinschaftlichen Wohnbereichen.
Die zentrale Lage in Vörden ermöglicht kurze Wege zu Einkaufsmöglichkeiten, Schulen, Kindergärten sowie allen Einrichtungen des täglichen Bedarfs. Gleichzeitig bietet die Umgebung eine angenehme Wohnqualität mit guter Anbindung an die A1 mit den Anschlusstellen Rieste und Neuenkirchen-Vörden.
Außerdem befindet sich der Niedersachsenpark mit zahlreichen Unternehmen in unmittelbarer Nähe.
Diese Wohnung ist ideal für Familien, Paare mit Platzbedarf oder alle, die großzügiges Wohnen in zentraler Lage schätzen.
Diese großzügig geschnittene Wohnung mit ca. 140 m² Wohnfläche befindet sich in zentraler Lage von Vörden und überzeugt durch ihre helle, freundliche Atmosphäre sowie ein durchdachtes Raumkonzept.
Das Herzstück der Wohnung ist der weitläufige Wohn- und Essbereich, der durch große Fensterflächen mit viel Tageslicht durchflutet wird. Hier entsteht ein offenes und einladendes Wohngefühl - ideal für entspannte Stunden mit der Familie oder gesellige Abende mit Freunden.
Die Wohnung bietet ausreichend Platz für individuelles Wohnen und punktet mit gut geschnittenen Räumen, die vielseitig nutzbar sind - ob als Schlafzimmer, Kinderzimmer oder Homeoffice. Die vorhandene Raumaufteilung sorgt für eine angenehme Balance zwischen Rückzugsorten und gemeinschaftlichen Wohnbereichen.
Die zentrale Lage in Vörden ermöglicht kurze Wege zu Einkaufsmöglichkeiten, Schulen, Kindergärten sowie allen Einrichtungen des täglichen Bedarfs. Gleichzeitig bietet die Umgebung eine angenehme Wohnqualität mit guter Anbindung an die A1 mit den Anschlusstellen Rieste und Neuenkirchen-Vörden.
Außerdem befindet sich der Niedersachsenpark mit zahlreichen Unternehmen in unmittelbarer Nähe.
Diese Wohnung ist ideal für Familien, Paare mit Platzbedarf oder alle, die großzügiges Wohnen in zentraler Lage schätzen.
Ausstattungsmerkmale
| Inserat befindet sich im Stockwerk | 1 |
| Küche | Einbauküche |
| Bad | Dusche, Wanne, Fenster |
- Einbauküche
- 2 PKW Stellplätze
- 2 PKW Stellplätze
Karte wird geladen...
Objektstandort
49434 Neuenkirchen-Vörden
- Niedersachsen
Kontaktanfrage senden
Über den Anbieter
immo-for-less Privat vom Eigentümer
Bierweg 19
99310 Arnstadt
Kontakt
| Telefon | |
| Mobil | |
| Fax | |
| Website | www.immo-for-less.de |
Ansprechpartner/in
von
Privat
Weitere Angebote des Anbieters
12
Provisionsfrei* Zweizimmerwohnung mit Balkon, Dielen, ...
Wohnung
20537 Hamburg
Wir bieten eine vermietete, gut geschnittene Zweizimmerwohnung in Hamm an der Grenze zu Borgfelde an, zentral gelegen in einer ruhigen Seitenstraße mit Alleebäumen und Kopfsteinpflaster, 1 Minute vom U-Bahnhof ...
200.000 €
Kaufpreis
48 m²
Wohnfläche
2
Zimmer
6
Drei Zimmer Wohnung im Ortskern mit Dachterrasse und ...
Wohnung
48329 Havixbeck
Die Wohnung befindet sich im Ortskern von Havixbeck. Insgesamt hat das Haus zehn Parteien die untereinander eine gute Gemeinschaft bilden. Alle wichtigen Einrichtungen wie Ärzte und Einkaufsmöglichkeiten sind fußläufig ...
690 €
Kaltmiete
80 m²
Wohnfläche
3
Zimmer
20
Moderne Dachgeschosswohnung
Wohnung
71093 Weil im Schönbuch
Elegante und moderne 2 Zimmer-Wohnung in Neuweiler zu vermieten, Solarthermie auf dem Dach, die Wasser auch vom Mieter erwärmen, geeignet für 1 - 2 Personen
940 €
Kaltmiete
79,6 m²
Wohnfläche
2
Zimmer
43
Exklusives Penthouse mit 4 Zimmern und Dachterrasse in ...
Wohnung
32545 Bad Oeynhausen
Willkommen in diesem exklusiven Penthouse mit ca. 160 m² Wohnfläche, das sich im 2. Obergeschoss eines modernen Gebäudes befindet und über 4 Zimmer verfügt. Die Wohnung besticht durch ihre großzügige Raumaufteilung und ...
1.530 €
Kaltmiete
10 €
Mietpreis pro m²
160 m²
Wohnfläche
4
Zimmer
22
Provisionsfrei* AA 1a TOPLAGE neuw. 5,5 Zi. DHH 160 ...
Haus
73434 Aalen
. Neuwertige DHH vollunterkellert in AA - Unterrombach - Wehrleshalde Massivbau in Niedrigenergiebauweise 36 er Mauerstärke .
689.000 €
Kaufpreis
160 m²
Wohnfläche
5,5
Zimmer