Ihre neue Traumvilla in Arnoldshain - stilvoll & modern
624.615 €
Kaufpreis
154,45 m²
Wohnfläche
5
Zimmer
immobilien.de Nr.: 9534396
Objektnummer: BV.MP.Stadtvilla.SA54
Kaufpreis
| Kaufpreis | 624.615 € |
Wohnfläche, Grundstück & Bausubstanz
| Wohnfläche | 154,45 m² |
| Grundstücksfläche | 1.683 m² |
| Zimmer | 5 |
| Verfügbar ab | keine Angabe |
| Zustand | Projektiert |
Energie
| Energietyp | KfW-40 |
| Heizungsart | Zentralheizung |
| Energieträger/Befeuerung | Luft-Wärme-Pumpe |
Beschreibung der Immobilie
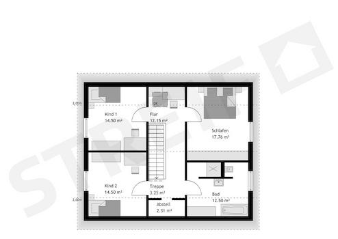
Willkommen in Ihrem zukünftigen Traumhaus in Schmitten-Arnoldshain! Dieses wunderschöne Einfamilienhaus, das nach Ihren individuellen Wünschen projektiert wird, bietet Ihnen nicht nur ein modernes Zuhause, sondern auch die Möglichkeit, es ganz nach Ihren Vorstellungen zu gestalten. Mit 5.0 Zimmern und einer großzügigen Wohnfläche von 154,45 m² auf einem weitläufigen Grundstück von 1683,00 m² haben Sie ausreichend Platz für Ihre Familie und Freunde. Die durchdachte Raumaufteilung umfasst drei Schlafzimmer, ein stilvolles Badezimmer mit Dusche, Wanne und Fenster sowie ein zusätzliches Gäste-WC.
Das Baukonzept von STREIF ermöglicht es Ihnen, Ihr Einfamilienhaus in einer der vier verschiedenen Ausbaustufen zu realisieren, wobei die STREIF-Standard-Ausbaustufe "Fast-Fertig Plus" Ihnen eine hervorragende Grundlage bietet. Durch die Möglichkeit, Eigenleistungen in Form einer Muskelhypothek einzubringen, können Sie nicht nur Kosten sparen, sondern auch Ihre persönlichen Akzente setzen. Vor dem Bau steht eine umfassende Beratung, in der wir Ihre Vorstellungen und Wünsche ermitteln, um ein maßgeschneidertes Zuhause für Sie zu planen. Erst wenn Sie mit dem Grundriss vollkommen zufrieden sind, beginnen wir mit der Umsetzung, die wir innerhalb weniger Monate realisieren.
Das Baukonzept von STREIF ermöglicht es Ihnen, Ihr Einfamilienhaus in einer der vier verschiedenen Ausbaustufen zu realisieren, wobei die STREIF-Standard-Ausbaustufe "Fast-Fertig Plus" Ihnen eine hervorragende Grundlage bietet. Durch die Möglichkeit, Eigenleistungen in Form einer Muskelhypothek einzubringen, können Sie nicht nur Kosten sparen, sondern auch Ihre persönlichen Akzente setzen. Vor dem Bau steht eine umfassende Beratung, in der wir Ihre Vorstellungen und Wünsche ermitteln, um ein maßgeschneidertes Zuhause für Sie zu planen. Erst wenn Sie mit dem Grundriss vollkommen zufrieden sind, beginnen wir mit der Umsetzung, die wir innerhalb weniger Monate realisieren.
Ausstattungsmerkmale
| Anzahl der Etagen im Haus | 2 |
| Küche | Offene Küche |
| Bad | 1 |
| Bad | Dusche, Wanne, Fenster |
| Garten | |
| Terrassen | 1 |
Das Einfamilienhaus besticht durch eine gehobene Ausstattung. Die Befeuerungsart erfolgt über eine umweltfreundliche Wärmepumpe, die effizient und nachhaltig ist, wodurch Sie nicht nur die Umwelt, sondern auch Ihre Energiekosten schonen. Der Energietyp entspricht dem KFW40 Standard, was Ihnen zusätzliche Vorteile bei der Finanzierung bietet. Das Badezimmer ist mit hochwertigen Sanitärobjekten ausgestattet und bietet sowohl eine Dusche als auch eine Wanne - ideal für entspannende Momente. Durch die große Fensterfronten wird Ihr Zuhause mit viel natürlichem Licht durchflutet, was für ein angenehmes Raumklima sorgt.
Sonstige Informationen
Sie haben die Möglichkeit, Ihr Einfamilienhaus in der von Ihnen gewünschten Ausbaustufe zu erhalten. Die STREIF-Standard-Ausbaustufe "Fast-Fertig Plus" beinhaltet bereits viele hochwertige Ausstattungsmerkmale. Darüber hinaus bieten wir Ihnen verschiedene Dienstleistungspakete an, um den Bauprozess für Sie so angenehm wie möglich zu gestalten. Von der ersten Beratung bis zur schlüsselfertigen Übergabe stehen wir Ihnen zur Seite und unterstützen Sie bei jedem Schritt. Vertrauen Sie auf STREIF und realisieren Sie Ihr Traumhaus ganz nach Ihren Wünschen.
Karte wird geladen...
Objektstandort
61389 Schmitten- Arnoldshain
Lage & Infrastruktur
Objektstandort
61389 Schmitten- Arnoldshain
Ihr neues Zuhause befindet sich in einer ruhigen und familienfreundlichen Wohngegend in Schmitten-Arnoldshain. Die Lage bietet Ihnen eine hervorragende Anbindung an die umliegenden Städte und eine gute Infrastruktur. Einkaufsmöglichkeiten, Schulen und Kindergärten sind in der Nähe und bequem zu erreichen. Für Freizeitaktivitäten stehen Ihnen zahlreiche Möglichkeiten in der Umgebung zur Verfügung, darunter Wander- und Radwege, die die herrliche Natur der Region hervorheben. Genießen Sie die Ruhe und Erholung in Ihrem neuen Zuhause, während die pulsierende Stadt in greifbarer Nähe liegt.
Kontaktanfrage senden
Über den Anbieter
STREIF Haus GmbH
Josef-Streif-Straße 1
54595 Weinsheim
Kontakt
| Mobil | +49 172 6999060 |
| Website | www.streif.de |
Ansprechpartner/in
Herr Matthias Poppe - STREIF Handelsvertreter
Weitere Angebote des Anbieters
20
Sehr schöne Stadtvilla in erstklassiger Lage von St. ...
Haus
66386 St. Ingbert
Viel Platz und von Licht erfüllte Räume bietet diese traumhafte Stadtvilla. Im Erdgeschoss bildet der offen gestaltete Wohn-, Ess- und Kochbereich mit 49 m² das Herzstück des Hauses. Der gesamte Wohnbereich wird von ...
608.000 €
Kaufpreis
186 m²
Wohnfläche
5
Zimmer
30
STREIF baut Euer perfektes Zuhause
Haus
76707 Hambrücken
Das zweieinhalbgeschossige Mehrfamilienhaus mit zwei Wohnungen überzeugt mit einer klassisch eleganten Architektur mit Satteldach und zwei behaglichen Terrassen. Der Hausentwurf kann mit Stahlbalkonen an der ...
1.293.936 €
Kaufpreis
358 m²
Wohnfläche
18
Zimmer
30
STREIF baut Euer perfektes Zuhause
Haus
76707 Hambrücken
Das zweigeschossige Mehrfamilienhaus mit zwei Wohnungen überzeugt mit einer klassisch eleganten Architektur mit Walmdach und zwei behaglichen Terrassen. Der Hausentwurf kann mit Stahlbalkonen an der Gartenseite ...
1.139.664 €
Kaufpreis
301 m²
Wohnfläche
18
Zimmer
30
STREIF baut Euer perfektes Zuhause
Haus
76707 Hambrücken
Das zweigeschossige Mehrfamilienhaus mit zwei Wohnungen überzeugt mit einer klassisch eleganten Architektur mit Walmdach und einer behaglichen Terrasse. Der Hausentwurf kann mit einem Carport und einer darüberliegenden ...
828.414 €
Kaufpreis
186 m²
Wohnfläche
10
Zimmer
17
STREIF baut Euer perfektes Zuhause
Haus
76707 Hambrücken
STREIF-Villa 4: Exklusives Wohnen mit Flachdach, zwei Erkern, Galerie und Dachterrasse Der Entwurf der exklusiven STREIF-Villa 4 bietet seinen Bewohnern zahlreiche luxuriöse Merkmale, darunter eine zweigeschossige ...
950.650 €
Kaufpreis
210 m²
Wohnfläche
8
Zimmer