Frisch renoviert & sofort bezugsfrei – Charmante 1,5-Zimmerwohnung mit cleverem Grundriss im 2. OG!
109.900 €
Kaufpreis
44 m²
Wohnfläche
1,5
Zimmer
immobilien.de Nr.: 9533515
Objektnummer: 441127
Kaufpreis
| Kaufpreis | 109.900 € |
| Hausgeld | 330 € |
| Maklerprovision | keine Provision, courtagefrei |
Wohnfläche, Grundstück & Bausubstanz
| Wohnfläche | 44 m² |
| Zimmer | 1,5 |
| Baujahr | 1968 |
| Verfügbar ab | sofort |
| Zustand | Modernisiert |
Energie
| Energieausweistyp | Verbrauch |
| Energieeffizienzklasse | E |
| Energieverbrauchkennwert | 155 kWh/(m²*a) |
| Heizungsart | Zentralheizung |
| Energieträger/Befeuerung | Fernwärme |
Beschreibung der Immobilie
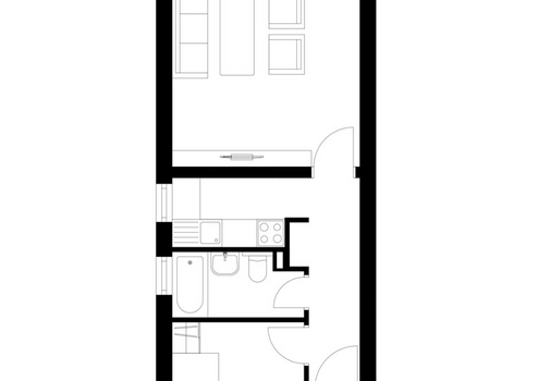
Zum Verkauf steht eine frisch renovierte 1,5-Zimmerwohnung im 2. Obergeschoss eines gepflegten Mehrfamilienhauses im Masurenring 47, Kiel. Die Wohnung überzeugt durch ihren funktionalen Grundriss und eignet sich ideal als Kapitalanlage oder zur Eigennutzung.
Ausstattungsmerkmale
| Anzahl der Etagen im Haus | 2 |
| Inserat befindet sich im Stockwerk | 2 |
| Boden | Laminat |
| Balkone | 1 |
| Terrassen | 0 |
| Keller |
Balkon, Keller, Laminat
Bemerkungen:
Die Wohnung wurde kürzlich renoviert und befindet sich in einem sehr gepflegten Zustand.
•Heller Wohn- und Schlafbereich mit optimaler Raumaufteilung
•Separate Schlafnische / halbes Zimmer
•Neu renovierte Wände und Bodenbeläge
•Große Fenster mit guten Lichtverhältnissen
•Keller- und Dachbodenraum bieten ausreichend Stauraum
Das Mehrfamilienhaus umfasst insgesamt 24 Wohnungen und befindet sich in einem sehr gepflegten Zustand und Instandhaltungsstau.
In den letzten Jahren wurde:
- auf Fernwärme umgestellt
- die Hauseingangstür, Brief- und Klingelanlage erneuert
- die Laubengänge umfangreich saniert
- Wohnungstüren erneuert
Bemerkungen:
Die Wohnung wurde kürzlich renoviert und befindet sich in einem sehr gepflegten Zustand.
•Heller Wohn- und Schlafbereich mit optimaler Raumaufteilung
•Separate Schlafnische / halbes Zimmer
•Neu renovierte Wände und Bodenbeläge
•Große Fenster mit guten Lichtverhältnissen
•Keller- und Dachbodenraum bieten ausreichend Stauraum
Das Mehrfamilienhaus umfasst insgesamt 24 Wohnungen und befindet sich in einem sehr gepflegten Zustand und Instandhaltungsstau.
In den letzten Jahren wurde:
- auf Fernwärme umgestellt
- die Hauseingangstür, Brief- und Klingelanlage erneuert
- die Laubengänge umfangreich saniert
- Wohnungstüren erneuert
Sonstige Informationen
Heizungsart: Zentralheizung
Energieträger: Fernwärme
Der Verkauf erfolgt direkt vom Eigentümer (ohne Makler).
Makleranfragen nicht erwünscht. Nach § 7 UWG sind unaufgeforderte Kontaktaufnahmen durch Makler ohne ausdrückliche Einwilligung des Empfängers verboten!
ohne-makler (OM) ist weder Anbieter noch Vermittler der Immobilie. OM betreibt eine Plattform für Immobilieneigentümer, die unter anderem die gleichzeitige Veröffentlichung einzelner Inserate auf mehreren Immobilienportalen ermöglicht. Die Inhalte dieser Inserate werden ausschließlich von Dritten verantwortet. Für die Richtigkeit, Vollständigkeit oder Rechtmäßigkeit der Angaben übernimmt OM keine Haftung. Hinweise auf mögliche Rechtsverstöße können jederzeit gemeldet werden und werden nach Prüfung umgehend bearbeitet.
Energieträger: Fernwärme
Der Verkauf erfolgt direkt vom Eigentümer (ohne Makler).
Makleranfragen nicht erwünscht. Nach § 7 UWG sind unaufgeforderte Kontaktaufnahmen durch Makler ohne ausdrückliche Einwilligung des Empfängers verboten!
ohne-makler (OM) ist weder Anbieter noch Vermittler der Immobilie. OM betreibt eine Plattform für Immobilieneigentümer, die unter anderem die gleichzeitige Veröffentlichung einzelner Inserate auf mehreren Immobilienportalen ermöglicht. Die Inhalte dieser Inserate werden ausschließlich von Dritten verantwortet. Für die Richtigkeit, Vollständigkeit oder Rechtmäßigkeit der Angaben übernimmt OM keine Haftung. Hinweise auf mögliche Rechtsverstöße können jederzeit gemeldet werden und werden nach Prüfung umgehend bearbeitet.
Karte wird geladen...
Objektstandort
Masurenring 47
24149 Kiel
- Schleswig-Holstein
Lage & Infrastruktur
Objektstandort
Masurenring 47
24149 Kiel
- Schleswig-Holstein
Die Immobilie liegt in einer ruhigen, dennoch gut angebundenen Wohngegend. Einkaufsmöglichkeiten, öffentliche Verkehrsmittel sowie alle Einrichtungen des täglichen Bedarfs sind schnell erreichbar. Grünflächen in der Umgebung sorgen für zusätzliche Lebensqualität.
Infrastruktur (im Umkreis von 5 km):
Apotheke, Lebensmittel-Discount, Allgemeinmediziner, Kindergarten, Grundschule, Hauptschule, Realschule, Gymnasium, Gesamtschule, Öffentliche Verkehrsmittel
Infrastruktur (im Umkreis von 5 km):
Apotheke, Lebensmittel-Discount, Allgemeinmediziner, Kindergarten, Grundschule, Hauptschule, Realschule, Gymnasium, Gesamtschule, Öffentliche Verkehrsmittel
Kontaktanfrage senden
Über den Anbieter
OM PropTech GmbH
Humboldtstraße 25a
21509 Glinde
Kontakt
| Telefon | - |
| Fax | - |
| Website | www.ohne-makler.net |
Ansprechpartner/in
Privat von Bengt M. Schulz
Weitere Angebote des Anbieters
11
Gepflegte 2 Zimmer-Wohnung mit Stellplatz in ...
Wohnung
70374 Stuttgart - Bad-Cannstatt
Diese charmante, vermietete Wohnung in ruhiger Lage von Stuttgart-Bad Cannstatt verbindet solides Investment mit Wohlfühl-Charakter. Mit jährlichen Kaltmieteinnahmen von rund 18.600 €, einer sehr guten Energieeffizienz ...
249.000 €
Kaufpreis
58 m²
Wohnfläche
2
Zimmer
9
Wohnung zu vermieten- Nach Sanierung
Wohnung
45468 Mülheim
Die Wohnung befindet sich in eine ruhigen Seitenstraße. Alle notwendigen Einrichtungen befinden sich in der Nähe. Die Wohnung wurde komplett renoviert und steht sofort zur Verfügung. Ideal für Singles und Leute die ...
550 €
Kaltmiete (netto)
50 m²
Wohnfläche
3
Zimmer
7
schöne 3 Zimmer Wohnung in Ingelheim
Wohnung
55218 Ingelheim am Rhein
Die 3 Zimmer Wohnung ist in einem sehr guten Zustand. Die Zimmer sind sehr großzügig geschnitten.
1.164 €
Kaltmiete (netto)
66 m²
Wohnfläche
3
Zimmer
22
Dein Traum - eine eigene Pension an der Ostseeküste!
Gastgewerbe
18211 Börgerende-Rethwisch
Sofort loslegen: fertig ausgestattete Frühstückspension mit Internet-Auftritt und Buchungssoftware. Sehr gute Auslastung in 2024! Dein Traum war es schon immer, eine kleine Frühstücks-Pension zu besitzen? Oder Du ...
850.000 €
Kaufpreis
350 m²
Gesamtfläche
12
Flexibel nutzbar: 110 m² Ladenlokal/Büro/Praxis in ...
Einzelhandel
45138 Essen
Objektbeschreibung: Zur Vermietung steht eine attraktive, vielseitig nutzbare Gewerbefläche von ca. 110 m² im gefragten Südostviertel von Essen. Ob als modernes Büro, repräsentative Praxis, charmantes Ladenlokal oder ...
1.300 €
Kaltmiete (netto)
115 m²
Gesamtfläche