Gut vermietetes Mehrfamilienhaus sucht Kapitanleger!
385.000 €
Kaufpreis
251,78 m²
Wohnfläche
8
Zimmer
immobilien.de Nr.: 9533224
Objektnummer: 432110
Kaufpreis
| Kaufpreis | 385.000 € |
| Maklerprovision | keine Provision, courtagefrei |
Wohnfläche, Grundstück & Bausubstanz
| Wohnfläche | 251,78 m² |
| Grundstücksfläche | 770 m² |
| Zimmer | 8 |
| Baujahr | 1792 |
| Verfügbar ab | sofort |
Energie
| Energieausweistyp | Bedarfsausweis |
| Energieeffizienzklasse | H |
| Endenergiebedarf | 282 |
| Heizungsart | Zentralheizung |
| Energieträger/Befeuerung | Öl |
Beschreibung der Immobilie
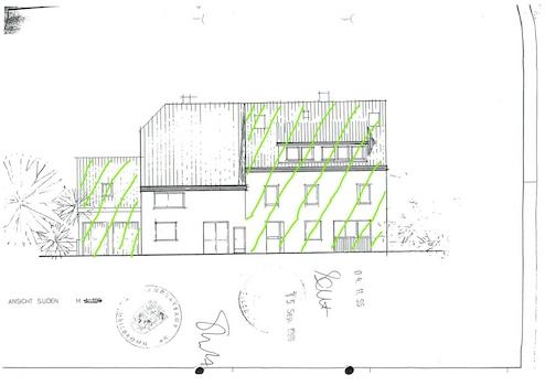
Dieses 3-Familienhaus eignet sich ideal als Kapitalanlage.
Ursprünglich war das gesamte Anwesen eine Schreinerei und wurde 1996 in Wohneigentumsanteile aufgeteilt.
Jede Wohnung verfügt über ein eigenes Grundbuch.
Zur angebotenen Immobilie gehören noch eine Doppelgarage und zwei Stellplätze davor sowie eine Werkstatt bzw. ein Lagerraum in der, unter anderem, die Heizanlage untergebracht ist.
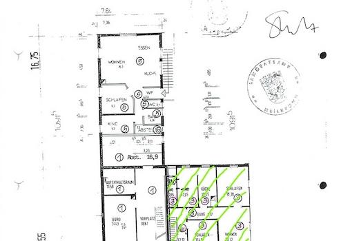
UG: Gewölbekeller (23,58 m²)
EG: 2 Zi. Wohnung (42,76 m² Wfl. ohne Lagerraum/Werkstatt) mit Küche, Bad und WC, große Terrasse. Kaltmiete aktuell 400,- €.
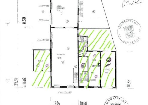
Werkstatt/Lagerraum (ca. 40 m² Nutzfläche) diese wird teilweise vom Mieter der EG Wohnung genutzt.
OG: 3 Zi. Wohnung (92,79 m² Wfl.) mit Küche, Bad/WC, Balkon. Kaltmiete aktuell 640,- € inkl. Garage und Abstellplatz vor der Garage.
DG: 5 Zi. Maissonette (116,23 m² Wfl.) mit Küche und Bad und 2 WCs. Kaltmiete 850,- € inkl. Garage und Abstellplatz vor der Garage.
Der Lagerraum/Werkstatt im EG kann eventuell auch als Garage benutzt werden.
Zu den beiden anderen Wohnungen gehört jeweils eine Garage mit Autoabstellplatz davor, eine davon mit Grube. Sowie jeweils der Hälfte der Bühne über der Garage (nicht in der Nutzfläche berücksichtigt)
Das Grundstück hinter dem Haus gehört teilweise zu den Wohnungen und teilweise zum direkten Nachbarn.
Für eine monatliche Nutzungsentschädigung ist diesem, die zu den Wohnungen gehörende Fläche, überlassen. Er kümmert sich dafür um die Pflege des gesamten Gartens.
Die Gesamtgrundstücksfläche beträgt 1.684 m².
Vereinbaren Sie einfach einen Besichtigungstermin mit mir um sich von den Möglichkeiten dieser Immobilie zu überzeugen.
Ursprünglich war das gesamte Anwesen eine Schreinerei und wurde 1996 in Wohneigentumsanteile aufgeteilt.
Jede Wohnung verfügt über ein eigenes Grundbuch.
Zur angebotenen Immobilie gehören noch eine Doppelgarage und zwei Stellplätze davor sowie eine Werkstatt bzw. ein Lagerraum in der, unter anderem, die Heizanlage untergebracht ist.
UG: Gewölbekeller (23,58 m²)
EG: 2 Zi. Wohnung (42,76 m² Wfl. ohne Lagerraum/Werkstatt) mit Küche, Bad und WC, große Terrasse. Kaltmiete aktuell 400,- €.
Werkstatt/Lagerraum (ca. 40 m² Nutzfläche) diese wird teilweise vom Mieter der EG Wohnung genutzt.
OG: 3 Zi. Wohnung (92,79 m² Wfl.) mit Küche, Bad/WC, Balkon. Kaltmiete aktuell 640,- € inkl. Garage und Abstellplatz vor der Garage.
DG: 5 Zi. Maissonette (116,23 m² Wfl.) mit Küche und Bad und 2 WCs. Kaltmiete 850,- € inkl. Garage und Abstellplatz vor der Garage.
Der Lagerraum/Werkstatt im EG kann eventuell auch als Garage benutzt werden.
Zu den beiden anderen Wohnungen gehört jeweils eine Garage mit Autoabstellplatz davor, eine davon mit Grube. Sowie jeweils der Hälfte der Bühne über der Garage (nicht in der Nutzfläche berücksichtigt)
Das Grundstück hinter dem Haus gehört teilweise zu den Wohnungen und teilweise zum direkten Nachbarn.
Für eine monatliche Nutzungsentschädigung ist diesem, die zu den Wohnungen gehörende Fläche, überlassen. Er kümmert sich dafür um die Pflege des gesamten Gartens.
Die Gesamtgrundstücksfläche beträgt 1.684 m².
Vereinbaren Sie einfach einen Besichtigungstermin mit mir um sich von den Möglichkeiten dieser Immobilie zu überzeugen.
Ausstattungsmerkmale
| Küche | Einbauküche |
| Bad | 3 |
| Boden | Fliesen, Laminat |
| Balkone | 0 |
| Terrassen | 1 |
| Garage/Stellplätze | 2 |
| Keller |
Terrasse, Keller, Einbauküche, Laminat, Fliesen
Sonstige Informationen
Heizungsart: Zentralheizung
Energieträger: Öl
ohne-makler (OM) ist weder Anbieter noch Vermittler der Immobilie. OM betreibt eine Plattform für Immobilieneigentümer, die unter anderem die gleichzeitige Veröffentlichung einzelner Inserate auf mehreren Immobilienportalen ermöglicht. Die Inhalte dieser Inserate werden ausschließlich von Dritten verantwortet. Für die Richtigkeit, Vollständigkeit oder Rechtmäßigkeit der Angaben übernimmt OM keine Haftung. Hinweise auf mögliche Rechtsverstöße können jederzeit gemeldet werden und werden nach Prüfung umgehend bearbeitet.
Energieträger: Öl
ohne-makler (OM) ist weder Anbieter noch Vermittler der Immobilie. OM betreibt eine Plattform für Immobilieneigentümer, die unter anderem die gleichzeitige Veröffentlichung einzelner Inserate auf mehreren Immobilienportalen ermöglicht. Die Inhalte dieser Inserate werden ausschließlich von Dritten verantwortet. Für die Richtigkeit, Vollständigkeit oder Rechtmäßigkeit der Angaben übernimmt OM keine Haftung. Hinweise auf mögliche Rechtsverstöße können jederzeit gemeldet werden und werden nach Prüfung umgehend bearbeitet.
Karte wird geladen...
Objektstandort
Heilbronner Str. 9/1
74246 Eberstadt Hölzern
- Baden-Württemberg
Lage & Infrastruktur
Objektstandort
Heilbronner Str. 9/1
74246 Eberstadt Hölzern
- Baden-Württemberg
Der größte der Eberstädter Ortsteile liegt circa 1 km östlich des Hauptortes in Richtung Öhringen. Den Namen Hölzern trägt dieser Ortsteil wegen seiner Nähe zu waldreichem Gebiet.
Heute dient Hölzern in erster Linie dem Wohnen in ländlicher Atmosphäre. Die Nähe zu Eberstadt und zu den übrigen Orten im Weinsberger Tal gewährleisten jedoch eine gute infrastrukturelle Versorgung und Ausstattung. Trotz der Verkehrsbelastung durch die im Ort verlaufende Landesstraße sprechen die rund 320 Einwohner mit Stolz und Gefallen von "ihrem Hölzern".
Heute dient Hölzern in erster Linie dem Wohnen in ländlicher Atmosphäre. Die Nähe zu Eberstadt und zu den übrigen Orten im Weinsberger Tal gewährleisten jedoch eine gute infrastrukturelle Versorgung und Ausstattung. Trotz der Verkehrsbelastung durch die im Ort verlaufende Landesstraße sprechen die rund 320 Einwohner mit Stolz und Gefallen von "ihrem Hölzern".
Kontaktanfrage senden
Über den Anbieter
OM PropTech GmbH
Humboldtstraße 25a
21509 Glinde
Kontakt
| Telefon | - |
| Fax | - |
| Website | www.ohne-makler.net |
Ansprechpartner/in
Privat von Bernd Munz
Weitere Angebote des Anbieters
10
Attraktive 2-Zimmer-Wohnung in charmanter Stadtvilla ...
Wohnung
98617 Meiningen
Die angebotene 2-Zimmer-Wohnung befindet sich in einer charmanten Stadtvilla nahe dem historischen Zentrum und englischen Garten von Meiningen. Sie kann ab sofort bezogen werden. Keine Anmietung für eine Wohngemeinschaf ...
365 €
Kaltmiete (netto)
49,92 m²
Wohnfläche
2
Zimmer
26
Neuwertige Exclusive/Moderne/Helle Maisonettwohnung 4 ...
Wohnung
97526 Sennfeld
Die Wohnung befindet sich im Dachgeschoß über 2 Etagen in einem 6-Familienwohnhaus im Neubaugebiet "Rempertshag", Reichsdorfstraße 5 in Sennfeld
1.220 €
Kaltmiete (netto)
103 m²
Wohnfläche
4
Zimmer
45
Witten-Bommern: grosses Haus mit großem Grundstück zu ...
Haus
58452 Witten
Individuell ausgestattetes freistehendes Haus mit Fernblick, einem uneinsehbaren Innenhof und einem uneinsehbaren Grundstück mit einem großen Garten! Das Mietobjekt ist nur etwas für Gartenfreunde! Details werden nach ...
2.000 €
Kaltmiete (netto)
250 m²
Wohnfläche
8
Zimmer
19
Urbanes Wohnerlebnis auf Stralau: 3-Zimmer-Wohnung in ...
Wohnung
10245 Berlin
Urbanes Wohnerlebnis auf Stralau: 3-Zimmer-Wohnung in absoluter Ruhelage – Provisionsfrei Erleben Sie Lebensqualität zwischen Spree und See. Auf der begehrten Halbinsel Stralau erwartet Sie diese helle 84 m² ...
439.000 €
Kaufpreis
84 m²
Wohnfläche
3
Zimmer
15
Nachmieter gesucht - Moderne 2-Zimmer-Wohnung nahe ...
Wohnung
13359 Berlin
Wir suchen einen Nachmieter für unsere moderne und vollständig möblierte Wohnung in ruhiger Lage. Eckdaten: Wohnfläche: 45,34 m² Neubau (Baujahr 2020) Unbefristeter Mietvertrag Mindestmietdauer: 2 Jahre Balkon & Keller ...
1.390 €
Kaltmiete (netto)
46 m²
Wohnfläche
2
Zimmer