Gräfelfing – Substanz trifft Lagequalität: Mehrfamilienhaus für Investoren - jetzt anfragen.
2.260.000 €
Kaufpreis
271 m²
Wohnfläche
12
Zimmer
immobilien.de Nr.: 9532908
Objektnummer: 1000-211
Kaufpreis
| Kaufpreis | 2.260.000 € |
| Stellplatz Freiplatz Kaufpreis | 0 € |
| Stellplatz Garage Kaufpreis | 0 € |
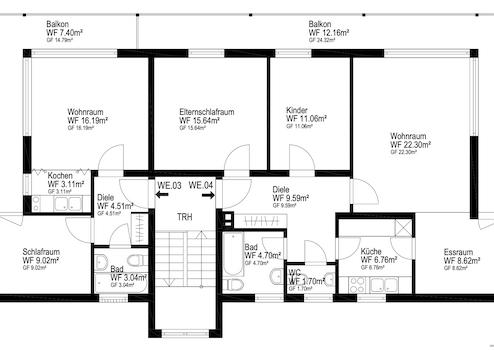
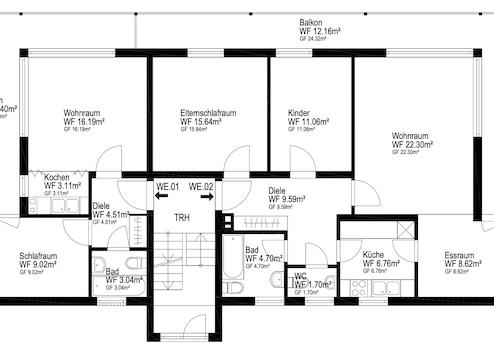
Wohnfläche, Grundstück & Bausubstanz
| Wohnfläche | 271 m² |
| Grundstücksfläche | 942 m² |
| Zimmer | 12 |
| Baujahr | 1976 |
| Verfügbar ab | keine Angabe |
Energie
| Energieausweistyp | Verbrauch |
| Gültig bis | 2034-11-23 |
| Baujahr (laut Energieausweis) | 1976 |
| Energieeffizienzklasse | G |
| Energieverbrauchkennwert | 202.99 kWh/(m²*a) |
| Heizungsart | Zentralheizung |
| Wesentlicher Energieträger | Oel |
| Energieträger/Befeuerung | Öl |
Beschreibung der Immobilie
Klare Zahlen. Klare Struktur. Klare Entscheidung.
Dieses Mehrfamilienhaus in Gräfelfing bietet Ihnen alles, was Kapitalanleger suchen: Top-Lage im Münchner Westen, vier Wohneinheiten, attraktive Außenflächen, solide Substanz – und vor allem: Potenzial für Wertsteigerung und Optimierung.
Die Fakten:
- 4 Einheiten, flexibel nutzbar
- Zwei Vollgeschosse mit durchdachten, vermietungsstarken Grundrissen
- Separater Zugang zu jeder Einheit
- Rund 942 m² Grundstück in begehrter, ruhiger Wohnlage
- 3 Garagen + 3 Außenstellplätze = Parkplatzsicherheit für alle Mieter
- Großer Garten – als Wohnwertsteigerung oder Aufwertungspotenzial nutzbar
- Balkone nach Westen und Süden – begehrte Ausrichtung, optimale Vermietbarkeit
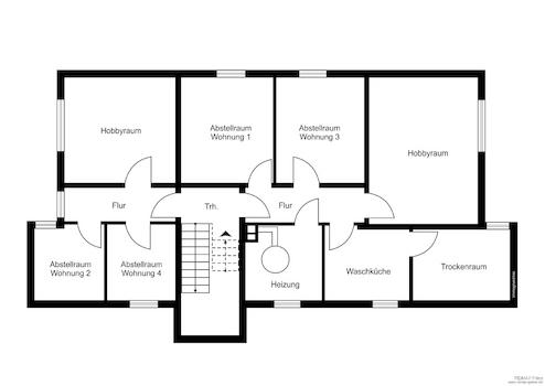
- Hobbyräume im UG mit klarer Mehrwertfunktion: Fitness, Lager, Homeoffice
- Solide Bauweise, gepflegter Zustand, sofort weiter nutzbar oder schrittweise entwickelbar
Für wen ist dieses Objekt interessant?
+ Für Investoren, die beste Vermietbarkeit mit Entwicklungspotenzial kombinieren möchten
+ Für Kapitalanleger, die auf ruhige, stabile Lagen im Münchner Umland setzen
+ Für Käufer mit Weitblick, die Substanz und Struktur zu schätzen wissen
Ihr Vorteil:
Gräfelfing zählt zu den wertstabilsten Lagen Münchens. Der Mix aus ruhigem Wohnumfeld, exzellenter Anbindung (S-Bahn, A96, A99) und hoher Nachfrage macht dieses Objekt zu einer sicheren, skalierbaren Investition. Die Größe und Aufteilung der Einheiten ermöglicht flexible Nutzung: Mehrgenerationenwohnen, Teil-Selbstnutzung, Vollvermietung oder möblierte Kurzzeitvermietung – alles ist denkbar.
Kurzum:
Dieses Objekt liefert sofortige Mieteinnahmen, langfristige Wertstabilität und strategische Entwicklungsmöglichkeiten in einem der gefragtesten Wohnstandorte Bayerns.
Zahlen. Strategie. Performance. Genau das, was kluge Investoren erwarten.
Dieses Mehrfamilienhaus in Gräfelfing bietet Ihnen alles, was Kapitalanleger suchen: Top-Lage im Münchner Westen, vier Wohneinheiten, attraktive Außenflächen, solide Substanz – und vor allem: Potenzial für Wertsteigerung und Optimierung.
Die Fakten:
- 4 Einheiten, flexibel nutzbar
- Zwei Vollgeschosse mit durchdachten, vermietungsstarken Grundrissen
- Separater Zugang zu jeder Einheit
- Rund 942 m² Grundstück in begehrter, ruhiger Wohnlage
- 3 Garagen + 3 Außenstellplätze = Parkplatzsicherheit für alle Mieter
- Großer Garten – als Wohnwertsteigerung oder Aufwertungspotenzial nutzbar
- Balkone nach Westen und Süden – begehrte Ausrichtung, optimale Vermietbarkeit
- Hobbyräume im UG mit klarer Mehrwertfunktion: Fitness, Lager, Homeoffice
- Solide Bauweise, gepflegter Zustand, sofort weiter nutzbar oder schrittweise entwickelbar
Für wen ist dieses Objekt interessant?
+ Für Investoren, die beste Vermietbarkeit mit Entwicklungspotenzial kombinieren möchten
+ Für Kapitalanleger, die auf ruhige, stabile Lagen im Münchner Umland setzen
+ Für Käufer mit Weitblick, die Substanz und Struktur zu schätzen wissen
Ihr Vorteil:
Gräfelfing zählt zu den wertstabilsten Lagen Münchens. Der Mix aus ruhigem Wohnumfeld, exzellenter Anbindung (S-Bahn, A96, A99) und hoher Nachfrage macht dieses Objekt zu einer sicheren, skalierbaren Investition. Die Größe und Aufteilung der Einheiten ermöglicht flexible Nutzung: Mehrgenerationenwohnen, Teil-Selbstnutzung, Vollvermietung oder möblierte Kurzzeitvermietung – alles ist denkbar.
Kurzum:
Dieses Objekt liefert sofortige Mieteinnahmen, langfristige Wertstabilität und strategische Entwicklungsmöglichkeiten in einem der gefragtesten Wohnstandorte Bayerns.
Zahlen. Strategie. Performance. Genau das, was kluge Investoren erwarten.
Ausstattungsmerkmale
| Bad | 6 |
| Garage/Stellplätze | 3 |
Ausstattung & Investment-Argumente – Substanz, Skalierbarkeit, Strategie
Flächen, die rechnen:
- Wohnfläche ca. 271 m²
- Grundstücksgröße ca. 942 m²
Das ist keine Standard-Immobilie – das ist Investorenfläche mit Perspektive. Großzügig, flexibel nutzbar, solide verwertbar. Hier wird nicht gewohnt – hier wird Rendite generiert.
Effiziente Struktur:
- 4 Wohneinheiten, klare Aufteilung
- 1 Einheit vermietet, 3 Einheiten sofort verfügbar
Maximale Gestaltungsfreiheit: sofort Einnahmen erzielen, Leerstand strategisch neu ausrichten, möblieren, aufwerten oder selbst nutzen – Sie entscheiden.
Raumvorteil:
- 12 Zimmer · 6 Schlafzimmer · 4 Bäder
Flächenproduktivität par excellence. Perfekt für breite Zielgruppen im Mietmarkt – von Familien über Senioren bis hin zu Co-Living-Konzepten.
- Helle Einheiten – starke Nachfrage:
- Große Fensterflächen in allen Einheiten
Belichtungsqualität als Miethebel. Freundliche Wohnatmosphäre = geringere Fluktuation + höhere Miete.
Substanz mit Spielraum:
- Bodenbeläge: Parkett, Laminat, Teppich – gepflegt und funktional
- Bäder mit Modernisierungspotenzial = Wertsteigerung auf Abruf
Hier investieren Sie nicht in Sanierungsstau, sondern in gezieltes Upgrading mit Renditehebel.
Parkraum – ein rares Gut:
- 3 Garagen
- 3 Außenstellplätze
In dieser Lage ein echtes Plus – steigert nicht nur den Mietpreis, sondern reduziert Verhandlungsbedarf beim Neuabschluss.
Technik, die mitdenkt:
- Öl-Zentralheizung, Heizkessel 2024 neu
Energieeffizienz auf aktuellem Stand. Zuverlässigkeit, Wartungsarmut, Kalkulationssicherheit.
Außenfläche mit Mehrwert:
- Großer, gepflegter Garten
Erhöhter Wohnkomfort für Mieter – oder Zukunftsoption für Terrassen, Spielflächen, Outdoor-Wohnen oder Mietsteigerungen.
Lage – kompromisslos gut:
- Gräfelfing, München-West: wer hier investiert, investiert in Wertstabilität, Nachfragekontinuität und Top-Mieterzielgruppen.
Fazit für Performance-orientierte Investoren:
Diese Immobilie liefert: Cashflow, Kontrolle und Entwicklungsspielraum. Kein Denkmal. Kein Risikoobjekt. Ein Investment mit Substanz, Skalierbarkeit und Potenzial zur Performance-Optimierung.
Flächen, die rechnen:
- Wohnfläche ca. 271 m²
- Grundstücksgröße ca. 942 m²
Das ist keine Standard-Immobilie – das ist Investorenfläche mit Perspektive. Großzügig, flexibel nutzbar, solide verwertbar. Hier wird nicht gewohnt – hier wird Rendite generiert.
Effiziente Struktur:
- 4 Wohneinheiten, klare Aufteilung
- 1 Einheit vermietet, 3 Einheiten sofort verfügbar
Maximale Gestaltungsfreiheit: sofort Einnahmen erzielen, Leerstand strategisch neu ausrichten, möblieren, aufwerten oder selbst nutzen – Sie entscheiden.
Raumvorteil:
- 12 Zimmer · 6 Schlafzimmer · 4 Bäder
Flächenproduktivität par excellence. Perfekt für breite Zielgruppen im Mietmarkt – von Familien über Senioren bis hin zu Co-Living-Konzepten.
- Helle Einheiten – starke Nachfrage:
- Große Fensterflächen in allen Einheiten
Belichtungsqualität als Miethebel. Freundliche Wohnatmosphäre = geringere Fluktuation + höhere Miete.
Substanz mit Spielraum:
- Bodenbeläge: Parkett, Laminat, Teppich – gepflegt und funktional
- Bäder mit Modernisierungspotenzial = Wertsteigerung auf Abruf
Hier investieren Sie nicht in Sanierungsstau, sondern in gezieltes Upgrading mit Renditehebel.
Parkraum – ein rares Gut:
- 3 Garagen
- 3 Außenstellplätze
In dieser Lage ein echtes Plus – steigert nicht nur den Mietpreis, sondern reduziert Verhandlungsbedarf beim Neuabschluss.
Technik, die mitdenkt:
- Öl-Zentralheizung, Heizkessel 2024 neu
Energieeffizienz auf aktuellem Stand. Zuverlässigkeit, Wartungsarmut, Kalkulationssicherheit.
Außenfläche mit Mehrwert:
- Großer, gepflegter Garten
Erhöhter Wohnkomfort für Mieter – oder Zukunftsoption für Terrassen, Spielflächen, Outdoor-Wohnen oder Mietsteigerungen.
Lage – kompromisslos gut:
- Gräfelfing, München-West: wer hier investiert, investiert in Wertstabilität, Nachfragekontinuität und Top-Mieterzielgruppen.
Fazit für Performance-orientierte Investoren:
Diese Immobilie liefert: Cashflow, Kontrolle und Entwicklungsspielraum. Kein Denkmal. Kein Risikoobjekt. Ein Investment mit Substanz, Skalierbarkeit und Potenzial zur Performance-Optimierung.
Sonstige Informationen
Rechtlicher Hinweis:
Maklercourtage: Ohne zusätzliche Käuferprovision.
Der Makler hat nur mit dem Verkäufer einen Makler-Vertrag abgeschlossen. Gemäß § 656d BGB ist seitens des Verkäufers beabsichtigt, dass der Verkäufer eine Provision in Höhe von maximal 3,57 %, inkl. MwSt., auf den Käufer abwälzt. Zur Abwälzung muss der Käufer sein Einverständnis erklären und stellt eine gesonderte Position im künftigen notariellen Kaufvertrag dar.
Wir haben die Wohnfläche durch Ansicht der Pläne über einen spezialisierten, externen Anbieter Wohnflächenberechnung überprüfen lassen. Wir übernehmen keine Haftung für Angaben Dritter. Ebenso haben wir die Flächen zur Gartennutzung und Grundstücksgröße nicht überprüft, bzw. nachgemessen.
Die Angaben zum Baujahr konnten wir nicht eindeutig ermitteln. Auf Grundlage der vorliegenden Bauunterlagen gehen wir davon aus, dass das Gebäude im Jahr 1976 errichtet wurde; der Schlussabnahmeschein datiert aus dem Jahr 1977. Darüber hinaus übernehmen wir die Angaben aus dem aktuellen Energieausweis.
Da wir Objektangaben nicht selbst ermitteln, sondern diese von Dritten, wie Bauträgern, Architekten sowie Eigentümern stammen, übernehmen wir hierfür keine Haftung. Wir übernehmen keine Haftung für die Vollständigkeit, Richtigkeit und Aktualität dieser Angaben.
Dieses Exposé ist nur für Sie persönlich bestimmt. Eine Weitergabe an Dritte ist an unsere ausdrückliche Zustimmung gebunden. Alle Gespräche sind über unser Büro zu führen. Bei Zuwiderhandlungen behalten wir uns Schadensersatzansprüche vor. Ein Zwischenverkauf ist nicht ausgeschlossen. Diese Immobilie wird im Exklusivvertrag durch unser Haus angeboten.
Die Grunderwerbssteuer, Notar- und Grundbuchkosten sind vom Käufer zu tragen.
In unseren Angeboten wird aus Gründen der besseren Lesbarkeit das generische Maskulinum verwendet.
Exposé Stand: 29.12.2025 - Änderungen vorbehalten
Maklercourtage: Ohne zusätzliche Käuferprovision.
Der Makler hat nur mit dem Verkäufer einen Makler-Vertrag abgeschlossen. Gemäß § 656d BGB ist seitens des Verkäufers beabsichtigt, dass der Verkäufer eine Provision in Höhe von maximal 3,57 %, inkl. MwSt., auf den Käufer abwälzt. Zur Abwälzung muss der Käufer sein Einverständnis erklären und stellt eine gesonderte Position im künftigen notariellen Kaufvertrag dar.
Wir haben die Wohnfläche durch Ansicht der Pläne über einen spezialisierten, externen Anbieter Wohnflächenberechnung überprüfen lassen. Wir übernehmen keine Haftung für Angaben Dritter. Ebenso haben wir die Flächen zur Gartennutzung und Grundstücksgröße nicht überprüft, bzw. nachgemessen.
Die Angaben zum Baujahr konnten wir nicht eindeutig ermitteln. Auf Grundlage der vorliegenden Bauunterlagen gehen wir davon aus, dass das Gebäude im Jahr 1976 errichtet wurde; der Schlussabnahmeschein datiert aus dem Jahr 1977. Darüber hinaus übernehmen wir die Angaben aus dem aktuellen Energieausweis.
Da wir Objektangaben nicht selbst ermitteln, sondern diese von Dritten, wie Bauträgern, Architekten sowie Eigentümern stammen, übernehmen wir hierfür keine Haftung. Wir übernehmen keine Haftung für die Vollständigkeit, Richtigkeit und Aktualität dieser Angaben.
Dieses Exposé ist nur für Sie persönlich bestimmt. Eine Weitergabe an Dritte ist an unsere ausdrückliche Zustimmung gebunden. Alle Gespräche sind über unser Büro zu führen. Bei Zuwiderhandlungen behalten wir uns Schadensersatzansprüche vor. Ein Zwischenverkauf ist nicht ausgeschlossen. Diese Immobilie wird im Exklusivvertrag durch unser Haus angeboten.
Die Grunderwerbssteuer, Notar- und Grundbuchkosten sind vom Käufer zu tragen.
In unseren Angeboten wird aus Gründen der besseren Lesbarkeit das generische Maskulinum verwendet.
Exposé Stand: 29.12.2025 - Änderungen vorbehalten
Karte wird geladen...
Objektstandort
82166 Gräfelfing
- Bayern
Lage & Infrastruktur
Objektstandort
82166 Gräfelfing
- Bayern
Dieses Mehrfamilienhaus befindet sich in einer der etablierten Wohngegenden von Gräfelfing, nur wenige Minuten vom lebendigen Ortskern entfernt. Die Nahversorgung ist hervorragend: Supermärkte wie EDEKA, REWE und Landsmann sind schnell erreichbar, ebenso Bäckereien, Apotheken, Ärzte und kleine, lokale Geschäfte.
In unmittelbarer Nähe befinden sich:
- Grundschule Gräfelfing
- Grundschule Lochham
- Gymnasium Gräfelfing (Kurt-Huber-Gymnasium)
- mehrere Kindergärten und Kinderbetreuungseinrichtungen
Die Anbindung an den öffentlichen Nahverkehr ist komfortabel und alltagsfreundlich:
Die S-Bahn-Linie S6 (Station Gräfelfing) ist gut erreichbar und bietet eine schnelle Verbindung Richtung München Innenstadt sowie nach Starnberg/Tutzing.
- Mehrere Buslinien (268, 259, 267) sorgen für eine zuverlässige Anbindung an die umliegenden Ortsteile, zahlreiche Einkaufsmöglichkeiten sowie den S- und U-Bahnhof – ideal für eine flexible Mobilität im Alltag.
- Auch mit dem Auto ist man optimal angebunden: Über die A96 und den Mittleren Ring erreicht man München zügig, während zugleich die Würmtal-Region eine landschaftlich attraktive und ruhige Umgebung bietet.
Erholung beginnt direkt vor der Haustür: Spazierwege entlang des Würmparks, kleine Grünflächen sowie gewachsene Gärten prägen das ruhige Wohnumfeld und unterstreichen den hohen Freizeitwert dieser Lage.
Diese Kombination aus Infrastruktur, Natur, guter Erreichbarkeit und einem sicheren, gepflegten Umfeld macht die Adresse zu einem besonders gefragten Standort im Münchner Westen.
In unmittelbarer Nähe befinden sich:
- Grundschule Gräfelfing
- Grundschule Lochham
- Gymnasium Gräfelfing (Kurt-Huber-Gymnasium)
- mehrere Kindergärten und Kinderbetreuungseinrichtungen
Die Anbindung an den öffentlichen Nahverkehr ist komfortabel und alltagsfreundlich:
Die S-Bahn-Linie S6 (Station Gräfelfing) ist gut erreichbar und bietet eine schnelle Verbindung Richtung München Innenstadt sowie nach Starnberg/Tutzing.
- Mehrere Buslinien (268, 259, 267) sorgen für eine zuverlässige Anbindung an die umliegenden Ortsteile, zahlreiche Einkaufsmöglichkeiten sowie den S- und U-Bahnhof – ideal für eine flexible Mobilität im Alltag.
- Auch mit dem Auto ist man optimal angebunden: Über die A96 und den Mittleren Ring erreicht man München zügig, während zugleich die Würmtal-Region eine landschaftlich attraktive und ruhige Umgebung bietet.
Erholung beginnt direkt vor der Haustür: Spazierwege entlang des Würmparks, kleine Grünflächen sowie gewachsene Gärten prägen das ruhige Wohnumfeld und unterstreichen den hohen Freizeitwert dieser Lage.
Diese Kombination aus Infrastruktur, Natur, guter Erreichbarkeit und einem sicheren, gepflegten Umfeld macht die Adresse zu einem besonders gefragten Standort im Münchner Westen.
Kontaktanfrage senden
Über den Anbieter
Baldur Immobilien GmbH | RE/MAX Prime
Semmelweisstr. 8
82152 Planegg
Kontakt
| Telefon | 004989904204681 |
| Mobil | 004915257858765 |
| Website | www.remax-prime.de |
Ansprechpartner/in
Frau Kristina Kühn
Weitere Angebote des Anbieters
20
Zwei Etagen, ein großes Familienkapitel – vielseitiges ...
Haus
82166 Gräfelfing
Manche Immobilien sind wie ein Maßanzug: Sie passen einfach. In einer der charmantesten Ecken des Münchner Westens wartet ein Objekt auf Sie, das so flexibel ist, dass es eigentlich Yoga-Unterricht geben könnte. Dieses ...
2.260.000 €
Kaufpreis
271 m²
Wohnfläche
12
Zimmer
21
Gräfelfing – Substanz trifft Lagequalität: ...
Haus
82166 Gräfelfing
Klare Zahlen. Klare Struktur. Klare Entscheidung. Dieses Mehrfamilienhaus in Gräfelfing bietet Ihnen alles, was Kapitalanleger suchen: Top-Lage im Münchner Westen, vier Wohneinheiten, attraktive Außenflächen, solide ...
2.260.000 €
Kaufpreis
271 m²
Wohnfläche
12
Zimmer
20
Zwei Etagen, ein großes Familienkapitel – vielseitiges ...
Haus
82166 Gräfelfing
Ein Zuhause fürs Leben. In einer der schönsten und familienfreundlichsten Wohnlagen im Münchner Westen liegt dieses besondere Mehrfamilienhaus – ein Ort, der weit mehr ist als nur eine Immobilie: Es ist ein echtes ...
2.260.000 €
Kaufpreis
271 m²
Wohnfläche
12
Zimmer
21
Die Mathematik der Vernunft: In Gräfelfing kauft man ...
Haus
82166 Gräfelfing
Die Mathematik der Vernunft: In Gräfelfing kauft man Boden – und bekommt das Haus geschenkt. Es gibt Gelegenheiten, bei denen selbst der kühlste Rechner kurz innehalten muss. Im Investment-Olymp des Münchner Westens – ...
2.260.000 €
Kaufpreis
271 m²
Wohnfläche
12
Zimmer
9
Ruhig und zentral: 1-Zimmer-Wohnung mit separater ...
Wohnung
80797 München
SDiese gepflegte Einzimmerwohnung mit separater Küche (ca. 33 m²) richtet sich an Menschen, die Wert auf eine praktische Raumaufteilung, gut nutzbare Flächen und ein ruhiges, gepflegtes Wohnumfeld legen. Die Wohnung ...
1.145 €
Kaltmiete
33 m²
Wohnfläche
1
Zimmer