Wohnen mit Zukunft in Aalen Stilvolle Neubauwohnung im Effizienzhaus 40 mit attraktiver Förderung
358.500 €
Kaufpreis
86 m²
Wohnfläche
3
Zimmer
immobilien.de Nr.: 9532105
Objektnummer: 440426
Kaufpreis
| Kaufpreis | 358.500 € |
| Hausgeld | 175 € |
| Maklerprovision | keine Provision, courtagefrei |
| Stellplatz Freiplatz Kaufpreis | 4.000 € |
Wohnfläche, Grundstück & Bausubstanz
| Wohnfläche | 86 m² |
| Zimmer | 3 |
| Baujahr | 2026 |
| Verfügbar ab | nach Absprache |
| Zustand | Erstbezug |
Energie
| Heizungsart | Fußbodenheizung |
| Energieträger/Befeuerung | Luft-Wärme-Pumpe |
Beschreibung der Immobilie
Willkommen Zuhause
Stellen Sie sich vor, Sie kommen nach Hause – in eine Wohnung, die nicht nur modern und hochwertig ist, sondern sich vom ersten Moment an richtig anfühlt. Lichtdurchflutete Räume, eine durchdachte Architektur und das gute Gefühl, in eine nachhaltige Zukunft zu investieren.
In der Wöhrstraße 7/1 im charmanten Stadtteil Unterkochen von Aalen entsteht bis August 2026 eine exklusive Neubauwohnung, die Lebensqualität, Energieeffizienz und Wohnkomfort perfekt vereint. Ob als neues Zuhause für Sie und Ihre Familie oder als wertbeständige Kapitalanlage – diese Immobilie bietet Ihnen mehr als nur vier Wände.
Objektbeschreibung
Die hochwertig geplante 3-Zimmer-Wohnung befindet sich in einem modernen Neubau im Effizienzhaus-40-Standard. Hier wohnen Sie nicht nur stilvoll, sondern auch besonders energieeffizient und zukunftssicher.
Dank innovativer Technik wie einer Luft-Wasser-Wärmepumpe und einer integrierten Photovoltaikanlage profitieren Sie langfristig von niedrigen Energiekosten und einem nachhaltigen Lebensstil.
Ein besonderes Highlight: Nutzen Sie die Möglichkeit einer staatlichen Förderung von bis zu 100.000 € zu einem Zinssatz von nur ca. 0,96 % p.a. – eine seltene Chance, sich günstige Finanzierungskonditionen langfristig zu sichern.
Ausstattung – Qualität, die man spürt
Effizienzhaus 40 – zukunftssicher & energiesparend
Luft-Wasser-Wärmepumpe
Photovoltaikanlage für nachhaltige Energiegewinnung
Hochwertige 3-fach verglaste Fenster
Personenaufzug – komfortabel und barrierearm
Moderner Neubau – Erstbezug
Eigener Stellplatz direkt am Haus
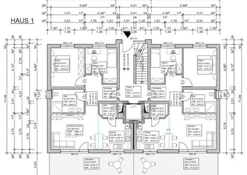
Wohnungsdetails auf einen Blick
Wohnfläche: ca. 86 m²
Zimmer: 3
2 ruhige Schlafzimmer
Großzügige, offene Wohnküche als Herzstück der Wohnung
1 modernes Badezimmer
1 Stellplatz
Raumgefühl & Wohnkomfort
Die offene Wohnküche bildet das Zentrum Ihres neuen Zuhauses – ein Ort für gemeinsame Abende, Gespräche und unvergessliche Momente. Große Fensterflächen lassen viel Tageslicht herein und schaffen eine warme, einladende Atmosphäre.
Die beiden Schlafzimmer bieten Rückzugsorte für Ruhe und Erholung – ideal für Paare, kleine Familien oder das Homeoffice.
Stellen Sie sich vor, Sie kommen nach Hause – in eine Wohnung, die nicht nur modern und hochwertig ist, sondern sich vom ersten Moment an richtig anfühlt. Lichtdurchflutete Räume, eine durchdachte Architektur und das gute Gefühl, in eine nachhaltige Zukunft zu investieren.
In der Wöhrstraße 7/1 im charmanten Stadtteil Unterkochen von Aalen entsteht bis August 2026 eine exklusive Neubauwohnung, die Lebensqualität, Energieeffizienz und Wohnkomfort perfekt vereint. Ob als neues Zuhause für Sie und Ihre Familie oder als wertbeständige Kapitalanlage – diese Immobilie bietet Ihnen mehr als nur vier Wände.
Objektbeschreibung
Die hochwertig geplante 3-Zimmer-Wohnung befindet sich in einem modernen Neubau im Effizienzhaus-40-Standard. Hier wohnen Sie nicht nur stilvoll, sondern auch besonders energieeffizient und zukunftssicher.
Dank innovativer Technik wie einer Luft-Wasser-Wärmepumpe und einer integrierten Photovoltaikanlage profitieren Sie langfristig von niedrigen Energiekosten und einem nachhaltigen Lebensstil.
Ein besonderes Highlight: Nutzen Sie die Möglichkeit einer staatlichen Förderung von bis zu 100.000 € zu einem Zinssatz von nur ca. 0,96 % p.a. – eine seltene Chance, sich günstige Finanzierungskonditionen langfristig zu sichern.
Ausstattung – Qualität, die man spürt
Effizienzhaus 40 – zukunftssicher & energiesparend
Luft-Wasser-Wärmepumpe
Photovoltaikanlage für nachhaltige Energiegewinnung
Hochwertige 3-fach verglaste Fenster
Personenaufzug – komfortabel und barrierearm
Moderner Neubau – Erstbezug
Eigener Stellplatz direkt am Haus
Wohnungsdetails auf einen Blick
Wohnfläche: ca. 86 m²
Zimmer: 3
2 ruhige Schlafzimmer
Großzügige, offene Wohnküche als Herzstück der Wohnung
1 modernes Badezimmer
1 Stellplatz
Raumgefühl & Wohnkomfort
Die offene Wohnküche bildet das Zentrum Ihres neuen Zuhauses – ein Ort für gemeinsame Abende, Gespräche und unvergessliche Momente. Große Fensterflächen lassen viel Tageslicht herein und schaffen eine warme, einladende Atmosphäre.
Die beiden Schlafzimmer bieten Rückzugsorte für Ruhe und Erholung – ideal für Paare, kleine Familien oder das Homeoffice.
Ausstattungsmerkmale
| Anzahl der Etagen im Haus | 2 |
| Inserat befindet sich im Stockwerk | 0 |
| Bad | 1 |
| Bad | Dusche |
| Boden | Fliesen, Kunststoff |
| Balkone | 1 |
| Garten | |
| Terrassen | 1 |
| Fahrstuhl |
Balkon, Terrasse, Garten, Fahrstuhl, Duschbad, Fliesen
Bemerkungen:
Nachhaltigkeit & Zukunftssicherheit
Diese Immobilie ist mehr als ein Zuhause – sie ist eine Investition in die Zukunft. Durch den hohen Energiestandard und moderne Technik profitieren Sie von:
Niedrigen Energiekosten
Unabhängigkeit von steigenden Energiepreisen
Nachhaltigem und umweltbewusstem Wohnen
Bemerkungen:
Nachhaltigkeit & Zukunftssicherheit
Diese Immobilie ist mehr als ein Zuhause – sie ist eine Investition in die Zukunft. Durch den hohen Energiestandard und moderne Technik profitieren Sie von:
Niedrigen Energiekosten
Unabhängigkeit von steigenden Energiepreisen
Nachhaltigem und umweltbewusstem Wohnen
Sonstige Informationen
Heizungsart: Fußbodenheizung
Energieträger: Luft-/Wasserwärme
Diese Neubauwohnung vereint modernes Design, nachhaltige Bauweise und attraktive Finanzierungsmöglichkeiten zu einem außergewöhnlichen Gesamtpaket. Hier entsteht nicht nur Wohnraum – hier entsteht ein Zuhause mit Zukunft.
Lassen Sie sich diese besondere Gelegenheit nicht entgehen.
Gerne senden wir Ihnen weitere Unterlagen oder vereinbaren einen persönlichen Beratungstermin.
Wir freuen uns auf Ihre Anfrage!
Makleranfragen nicht erwünscht. Nach § 7 UWG sind unaufgeforderte Kontaktaufnahmen durch Makler ohne ausdrückliche Einwilligung des Empfängers verboten!
ohne-makler (OM) ist weder Anbieter noch Vermittler der Immobilie. OM betreibt eine Plattform für Immobilieneigentümer, die unter anderem die gleichzeitige Veröffentlichung einzelner Inserate auf mehreren Immobilienportalen ermöglicht. Die Inhalte dieser Inserate werden ausschließlich von Dritten verantwortet. Für die Richtigkeit, Vollständigkeit oder Rechtmäßigkeit der Angaben übernimmt OM keine Haftung. Hinweise auf mögliche Rechtsverstöße können jederzeit gemeldet werden und werden nach Prüfung umgehend bearbeitet.
Energieträger: Luft-/Wasserwärme
Diese Neubauwohnung vereint modernes Design, nachhaltige Bauweise und attraktive Finanzierungsmöglichkeiten zu einem außergewöhnlichen Gesamtpaket. Hier entsteht nicht nur Wohnraum – hier entsteht ein Zuhause mit Zukunft.
Lassen Sie sich diese besondere Gelegenheit nicht entgehen.
Gerne senden wir Ihnen weitere Unterlagen oder vereinbaren einen persönlichen Beratungstermin.
Wir freuen uns auf Ihre Anfrage!
Makleranfragen nicht erwünscht. Nach § 7 UWG sind unaufgeforderte Kontaktaufnahmen durch Makler ohne ausdrückliche Einwilligung des Empfängers verboten!
ohne-makler (OM) ist weder Anbieter noch Vermittler der Immobilie. OM betreibt eine Plattform für Immobilieneigentümer, die unter anderem die gleichzeitige Veröffentlichung einzelner Inserate auf mehreren Immobilienportalen ermöglicht. Die Inhalte dieser Inserate werden ausschließlich von Dritten verantwortet. Für die Richtigkeit, Vollständigkeit oder Rechtmäßigkeit der Angaben übernimmt OM keine Haftung. Hinweise auf mögliche Rechtsverstöße können jederzeit gemeldet werden und werden nach Prüfung umgehend bearbeitet.
Karte wird geladen...
Objektstandort
Wöhrstrasse 7/1
73432 Aalen
- Baden-Württemberg
Lage & Infrastruktur
Objektstandort
Wöhrstrasse 7/1
73432 Aalen
- Baden-Württemberg
Lage – Leben in Aalen-Unterkochen
Die Immobilie befindet sich in der Wöhrstraße 7/1 im beliebten Stadtteil Unterkochen, einem der attraktivsten Wohngebiete von Aalen.
Hier genießen Sie die perfekte Balance aus naturnahem Wohnen und guter Infrastruktur:
Ruhige, familienfreundliche Umgebung
Schnelle Anbindung an die Aalener Innenstadt
Einkaufsmöglichkeiten, Schulen und Kindergärten in der Nähe
Umgeben von Natur, ideal für Spaziergänge und Freizeitaktivitäten
Unterkochen überzeugt durch seinen charmanten, gewachsenen Charakter und bietet gleichzeitig alles, was man für den Alltag braucht – ein Ort, an dem man sich langfristig zuhause fühlt.
Infrastruktur (im Umkreis von 5 km):
Apotheke, Lebensmittel-Discount, Allgemeinmediziner, Kindergarten, Grundschule, Hauptschule, Realschule, Gymnasium, Gesamtschule
Die Immobilie befindet sich in der Wöhrstraße 7/1 im beliebten Stadtteil Unterkochen, einem der attraktivsten Wohngebiete von Aalen.
Hier genießen Sie die perfekte Balance aus naturnahem Wohnen und guter Infrastruktur:
Ruhige, familienfreundliche Umgebung
Schnelle Anbindung an die Aalener Innenstadt
Einkaufsmöglichkeiten, Schulen und Kindergärten in der Nähe
Umgeben von Natur, ideal für Spaziergänge und Freizeitaktivitäten
Unterkochen überzeugt durch seinen charmanten, gewachsenen Charakter und bietet gleichzeitig alles, was man für den Alltag braucht – ein Ort, an dem man sich langfristig zuhause fühlt.
Infrastruktur (im Umkreis von 5 km):
Apotheke, Lebensmittel-Discount, Allgemeinmediziner, Kindergarten, Grundschule, Hauptschule, Realschule, Gymnasium, Gesamtschule
Kontaktanfrage senden
Über den Anbieter
OM PropTech GmbH
Humboldtstraße 25a
21509 Glinde
Kontakt
| Telefon | - |
| Fax | - |
| Website | www.ohne-makler.net |
Ansprechpartner/in
Privat vom Eigentümer
Weitere Angebote des Anbieters
30
Große GARAGE, Labor, Praxis, Büro, Reinräume - teilbar ...
Büro / Praxen
67069 Ludwigshafen am Rhein
Große GARAGE und Labor-, Praxis-, Büro- und Reinräume in Ludwigshafen-Pfingstweide zu vermieten. Zur Vermietung stehen vielseitig nutzbare Labor-, Praxis-, Büro- und Lagerräume in 67069 Ludwigshafen (Pfingstweide). Die ...
keine Angabe
Preis
500 m²
Gesamtfläche
17
Hochwertig ausgestattete, helle Wohnung mit eigenem ...
Wohnung
91052 Erlangen
Der Gebäudekomplex der "Röthelheimgärten" vereint stilvolles Wohnen, modern und naturnah. Die Immobilie verfügt über 10 Wohneinheiten, die sich über drei Etagen erstrecken. Gemeinschaftsanlagen: Aufzug, Trockenraum, ...
365.000 €
Kaufpreis
64 m²
Wohnfläche
2
Zimmer
12
Charmantes Reihenendhaus mit Garten, Balkon & ...
Haus
48429 Rheine
Dieses charmante Reihenendhaus überzeugt durch eine durchdachte Raumaufteilung, ein großzügiges Platzangebot sowie einen schönen Garten mit Terrasse. Die Immobilie verfügt über ca. 87 m² Wohnfläche und bietet ...
245.000 €
Kaufpreis
87 m²
Wohnfläche
4
Zimmer
12
Senioren WG - Gemeinsam statt einsam!
Zimmer
01277 Dresden
Mitten im beliebten Stadtteil Striesen - Ost entsteht ein Zuhause für Menschen, die auch im Alter noch aktiv, selbstbestimmt, eigenständig und nicht allein leben möchten. In dieser barrierearmen Senioren-WG teilen sich ...
843 €
Kaltmiete (netto)
146 m²
Wohnfläche
1
Zimmer
45
Witten-Bommern: grosses Haus mit großem Grundstück zu ...
Haus
58452 Witten
Individuell ausgestattetes freistehendes Haus mit Fernblick, einem uneinsehbaren Innenhof und einem uneinsehbaren Grundstück mit einem großen Garten! Das Mietobjekt ist nur etwas für Gartenfreunde! Details werden nach ...
2.000 €
Kaltmiete (netto)
250 m²
Wohnfläche
8
Zimmer