Freistehendes Dreifamilienhaus (3 Eigentumswohnungen) in Recklinghausen provisionsfrei zu verkaufen!
299.900 €
Kaufpreis
220 m²
Wohnfläche
6
Zimmer
immobilien.de Nr.: 9531044
Objektnummer: 379424
Kaufpreis
| Kaufpreis | 299.900 € |
| Maklerprovision | keine Provision, courtagefrei |
Wohnfläche, Grundstück & Bausubstanz
| Wohnfläche | 220 m² |
| Grundstücksfläche | 360 m² |
| Zimmer | 6 |
| Baujahr | 1900 |
| Verfügbar ab | sofort |
| Zustand | Gepflegt |
Energie
| Energieausweistyp | Bedarfsausweis |
| Energieeffizienzklasse | D |
| Endenergiebedarf | 128 |
| Heizungsart | Zentralheizung |
| Energieträger/Befeuerung | Gas |
Beschreibung der Immobilie
FREIESLEBEN-IMMOBILIEN präsentiert Ihnen dieses vielseitig nutzbare Dreifamilienhaus, aufgeteilt in drei Eigentumswohnungen, in gepflegter Umgebung von Recklinghausen Süd / König-Ludwig.
Das Dreifamilienhaus wurde ca. im Jahr 1900 in massiver Bauweise und voll unterkellert auf einem ca. 360m² großen Eigengrundstück errichtet.
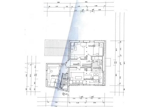
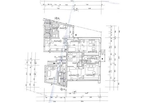
Es bietet ca. 220m² Wohnfläche, aufgeteilt auf zwei Wohnungen im Erdgeschoss mit ca. 63m² bzw. 60m² Wohnfläche sowie eine Wohnung im Dachgeschoss mit ca. 97m² Wohnfläche.
Es gibt bereits einen Teilungsplan und für jede der Wohnungen ein Grundbuchblatt. Es sind also bereits drei separate Eigentumswohnungen vorhanden, die nach Erwerb selbst genutzt, vermietet oder auch einzeln wieder verkauft werden können.
Die größere Wohnung mit ca. 63m2 im Erdgeschoss des hier angebotenen Dreifamilienhauses bietet ein Wohnzimmer, ein Schlafzimmer, eine ca. 12m² große Küche, ein Büro, ein Duschbad, eine Diele und einen Windfang.
Die kleinere Wohnung mit ca. 60m2 im Erdgeschoss bietet ein Wohnzimmer, ein Schlafzimmer, eine ca. 16m² große Küche, eine ca. 11m² große Diele und ein Tageslicht-Badezimmer.
Die Wohnung im Dachgeschoss bietet ca. 97m² Wohnfläche, verteilt auf ein ca. 27m² großes Wohnzimmer, ein ca. 21m² großes Schlafzimmer, ein ca. 23m² großes Kinderzimmer, eine Küche, ein Tageslicht-Badezimmer mit stylischer Eckbadewanne, eine großzügige Diele und einen Windfang.
Alle drei Wohnungen sind über das Treppenhaus begehbar und haben separate Eingänge.
Im Kellergeschoss befinden sich ein Waschkeller mit Heizanlage und Hausanschlüssen, ein Trockenraum, drei separate Kellerräume, ein Durchgangsraum sowie ein Flur.
Für die PKW stehen drei Stellplätze zur Verfügung.
Beheizt wird das Haus durch eine Gaszentralheizung aus dem Jahr 2015.
Zurzeit steht das Haus leer.
Das im Süden direkt angrenzende Wohn- und Geschäftshaus wird in naher Zukunft ebenfalls durch unser Unternehmen zum Kauf angeboten. Es besteht daher die Möglichkeit, beide Immobilien zusammen zu erwerben.
Sie möchten sofort besichtigen?
Dann senden Sie uns bitte eine Anfrage über das Kontaktformular oder per eMail unter:
info@immobilienmakler12.de, wir kontaktieren Sie umgehend.
Schriftliche Anfragen werden deutlich schneller bearbeitet als telefonische Anfragen!
PROVISIONSFREI FÜR DEN KÄUFER
Das Dreifamilienhaus wurde ca. im Jahr 1900 in massiver Bauweise und voll unterkellert auf einem ca. 360m² großen Eigengrundstück errichtet.
Es bietet ca. 220m² Wohnfläche, aufgeteilt auf zwei Wohnungen im Erdgeschoss mit ca. 63m² bzw. 60m² Wohnfläche sowie eine Wohnung im Dachgeschoss mit ca. 97m² Wohnfläche.
Es gibt bereits einen Teilungsplan und für jede der Wohnungen ein Grundbuchblatt. Es sind also bereits drei separate Eigentumswohnungen vorhanden, die nach Erwerb selbst genutzt, vermietet oder auch einzeln wieder verkauft werden können.
Die größere Wohnung mit ca. 63m2 im Erdgeschoss des hier angebotenen Dreifamilienhauses bietet ein Wohnzimmer, ein Schlafzimmer, eine ca. 12m² große Küche, ein Büro, ein Duschbad, eine Diele und einen Windfang.
Die kleinere Wohnung mit ca. 60m2 im Erdgeschoss bietet ein Wohnzimmer, ein Schlafzimmer, eine ca. 16m² große Küche, eine ca. 11m² große Diele und ein Tageslicht-Badezimmer.
Die Wohnung im Dachgeschoss bietet ca. 97m² Wohnfläche, verteilt auf ein ca. 27m² großes Wohnzimmer, ein ca. 21m² großes Schlafzimmer, ein ca. 23m² großes Kinderzimmer, eine Küche, ein Tageslicht-Badezimmer mit stylischer Eckbadewanne, eine großzügige Diele und einen Windfang.
Alle drei Wohnungen sind über das Treppenhaus begehbar und haben separate Eingänge.
Im Kellergeschoss befinden sich ein Waschkeller mit Heizanlage und Hausanschlüssen, ein Trockenraum, drei separate Kellerräume, ein Durchgangsraum sowie ein Flur.
Für die PKW stehen drei Stellplätze zur Verfügung.
Beheizt wird das Haus durch eine Gaszentralheizung aus dem Jahr 2015.
Zurzeit steht das Haus leer.
Das im Süden direkt angrenzende Wohn- und Geschäftshaus wird in naher Zukunft ebenfalls durch unser Unternehmen zum Kauf angeboten. Es besteht daher die Möglichkeit, beide Immobilien zusammen zu erwerben.
Sie möchten sofort besichtigen?
Dann senden Sie uns bitte eine Anfrage über das Kontaktformular oder per eMail unter:
info@immobilienmakler12.de, wir kontaktieren Sie umgehend.
Schriftliche Anfragen werden deutlich schneller bearbeitet als telefonische Anfragen!
PROVISIONSFREI FÜR DEN KÄUFER
Ausstattungsmerkmale
| Anzahl der Etagen im Haus | 2 |
| Küche | Einbauküche |
| Bad | 3 |
| Bad | Dusche, Wanne |
| Boden | Fliesen, Parkett, Laminat |
| Keller |
Keller, Vollbad, Duschbad, Einbauküche, Parkett, Laminat, Fliesen
Bemerkungen:
- Vielseitig nutzbares Dreifamilienhaus
- Ca. 220m² Wohnfläche
- Bereits aufgeteilt in drei Eigentumswohnungen
- Baujahr ca. 1900
- Massive Bauweise
- Voll unterkellert
- Ca. 360m² großes Eigengrundstück
- Separater Eingang für jede Wohnung
- 3 PKW-Stellplätze
Bemerkungen:
- Vielseitig nutzbares Dreifamilienhaus
- Ca. 220m² Wohnfläche
- Bereits aufgeteilt in drei Eigentumswohnungen
- Baujahr ca. 1900
- Massive Bauweise
- Voll unterkellert
- Ca. 360m² großes Eigengrundstück
- Separater Eingang für jede Wohnung
- 3 PKW-Stellplätze
Sonstige Informationen
Heizungsart: Zentralheizung
Energieträger: Gas
Dies ist ein freibleibendes Angebot der
FREIESLEBEN GmbH,
Steinstraße 14
45657 Recklinghausen
Tel.: 02361 - 90 61 030
Internet: www.immobilienmakler12.de
eMail: info@immobilienmakler12.de
Sie können uns MONTAG bis SONNTAG
von 7:00 Uhr bis 22:00 Uhr telefonisch erreichen. Am Wochenende bieten wir Ihnen zusätzlich unseren Service für Immobilienbewertungen, Objektbesichtigungen und das Persönliche-Kennenlernen.
Hinsichtlich des Objektes sind wir auf die Auskünfte der Eigentümer und Behörden angewiesen. Für die Richtigkeit und Vollständigkeit der Angaben kann keine Haftung übernommen werden. Darüber hinaus kann für das Objekt keine Gewähr übernommen und für die Liquidität der Vertragspartner nicht gehaftet werden.
Sie möchten Ihre Immobilie auch professionell vermarkten lassen?
- Nutzen Sie unseren kostenfreien Service und lassen den aktuellen Wert Ihrer Immobilie durch einen unserer Immobilienspezialisten schätzen.
- Optimieren Sie die Verkaufschancen Ihrer Immobilie, indem wir einen speziell auf Ihr Objekt abgestimmten Vermarktungsplan erstellen.
- Nutzen Sie unser hervorragendes, bundesweites Netzwerk um Ihnen Kaufinteressenten zeitnah zuzuführen. 100te Interessenten warten auf Sie!
Rufen Sie uns an, wir freuen uns auf Sie!
Zentrale Münsterland: Tel.: 0251 - 39 444 998
Zentrale Ruhrgebiet: Tel.: 0234 - 92 56 98 00
Makleranfragen nicht erwünscht. Nach § 7 UWG sind unaufgeforderte Kontaktaufnahmen durch Makler ohne ausdrückliche Einwilligung des Empfängers verboten!
ohne-makler (OM) ist weder Anbieter noch Vermittler der Immobilie. OM betreibt eine Plattform für Immobilieneigentümer, die unter anderem die gleichzeitige Veröffentlichung einzelner Inserate auf mehreren Immobilienportalen ermöglicht. Die Inhalte dieser Inserate werden ausschließlich von Dritten verantwortet. Für die Richtigkeit, Vollständigkeit oder Rechtmäßigkeit der Angaben übernimmt OM keine Haftung. Hinweise auf mögliche Rechtsverstöße können jederzeit gemeldet werden und werden nach Prüfung umgehend bearbeitet.
Energieträger: Gas
Dies ist ein freibleibendes Angebot der
FREIESLEBEN GmbH,
Steinstraße 14
45657 Recklinghausen
Tel.: 02361 - 90 61 030
Internet: www.immobilienmakler12.de
eMail: info@immobilienmakler12.de
Sie können uns MONTAG bis SONNTAG
von 7:00 Uhr bis 22:00 Uhr telefonisch erreichen. Am Wochenende bieten wir Ihnen zusätzlich unseren Service für Immobilienbewertungen, Objektbesichtigungen und das Persönliche-Kennenlernen.
Hinsichtlich des Objektes sind wir auf die Auskünfte der Eigentümer und Behörden angewiesen. Für die Richtigkeit und Vollständigkeit der Angaben kann keine Haftung übernommen werden. Darüber hinaus kann für das Objekt keine Gewähr übernommen und für die Liquidität der Vertragspartner nicht gehaftet werden.
Sie möchten Ihre Immobilie auch professionell vermarkten lassen?
- Nutzen Sie unseren kostenfreien Service und lassen den aktuellen Wert Ihrer Immobilie durch einen unserer Immobilienspezialisten schätzen.
- Optimieren Sie die Verkaufschancen Ihrer Immobilie, indem wir einen speziell auf Ihr Objekt abgestimmten Vermarktungsplan erstellen.
- Nutzen Sie unser hervorragendes, bundesweites Netzwerk um Ihnen Kaufinteressenten zeitnah zuzuführen. 100te Interessenten warten auf Sie!
Rufen Sie uns an, wir freuen uns auf Sie!
Zentrale Münsterland: Tel.: 0251 - 39 444 998
Zentrale Ruhrgebiet: Tel.: 0234 - 92 56 98 00
Makleranfragen nicht erwünscht. Nach § 7 UWG sind unaufgeforderte Kontaktaufnahmen durch Makler ohne ausdrückliche Einwilligung des Empfängers verboten!
ohne-makler (OM) ist weder Anbieter noch Vermittler der Immobilie. OM betreibt eine Plattform für Immobilieneigentümer, die unter anderem die gleichzeitige Veröffentlichung einzelner Inserate auf mehreren Immobilienportalen ermöglicht. Die Inhalte dieser Inserate werden ausschließlich von Dritten verantwortet. Für die Richtigkeit, Vollständigkeit oder Rechtmäßigkeit der Angaben übernimmt OM keine Haftung. Hinweise auf mögliche Rechtsverstöße können jederzeit gemeldet werden und werden nach Prüfung umgehend bearbeitet.
Karte wird geladen...
Objektstandort
45663 Recklinghausen
- Nordrhein-Westfalen
Lage & Infrastruktur
Objektstandort
45663 Recklinghausen
- Nordrhein-Westfalen
Das attraktive Dreifamilienhaus in einem gepflegten Mischgebiet des beliebten Recklinghausener Stadtteils König-Ludwig.
Schulen, Kindergärten, Ärzte, Apotheken und Einkaufsmöglichkeiten für den täglichen Bedarf sind in der näheren Umgebung vorhanden.
Das fußläuig erreichbare Südbad (Frei-/ und Hallenbad an der Pappelallee) sowie Spazierwege an der Emscher laden zu Freizeitaktivitäten ein.
Bushaltestellen des gut ausgebauten Netzes des ÖPNV sind ebenfalls zu Fuß erreichbar.
Mit dem PKW erreicht man die Innenstadt von Recklinghausen in ca. 15 Minuten. Über die nahe gelegenen Autobahnen A43 und A2 ist man gut an die Städte des Ruhrgebiets und des Münsterlandes angebunden.
Infrastruktur (im Umkreis von 5 km):
Apotheke, Lebensmittel-Discount, Allgemeinmediziner, Kindergarten, Grundschule, Hauptschule, Realschule, Gymnasium, Gesamtschule, Öffentliche Verkehrsmittel
Schulen, Kindergärten, Ärzte, Apotheken und Einkaufsmöglichkeiten für den täglichen Bedarf sind in der näheren Umgebung vorhanden.
Das fußläuig erreichbare Südbad (Frei-/ und Hallenbad an der Pappelallee) sowie Spazierwege an der Emscher laden zu Freizeitaktivitäten ein.
Bushaltestellen des gut ausgebauten Netzes des ÖPNV sind ebenfalls zu Fuß erreichbar.
Mit dem PKW erreicht man die Innenstadt von Recklinghausen in ca. 15 Minuten. Über die nahe gelegenen Autobahnen A43 und A2 ist man gut an die Städte des Ruhrgebiets und des Münsterlandes angebunden.
Infrastruktur (im Umkreis von 5 km):
Apotheke, Lebensmittel-Discount, Allgemeinmediziner, Kindergarten, Grundschule, Hauptschule, Realschule, Gymnasium, Gesamtschule, Öffentliche Verkehrsmittel
Kontaktanfrage senden
Über den Anbieter
OM PropTech GmbH
Humboldtstraße 25a
21509 Glinde
Kontakt
| Telefon | - |
| Fax | - |
| Website | www.ohne-makler.net |
Ansprechpartner/in
Angebot von Joachim Freiesleben - Gerfried Gogolin
Weitere Angebote des Anbieters
7
Ruhige 2 Zimmer Wohnung im Grünen
Wohnung
25373 Ellerhoop
Die schmucke 2-Zimmerwohnung befindet sich in unserem Bauernhaus in ruhiger Lage. Die kleine Wohngemeinschaft umfasst 4 Wohnungen.
520 €
Kaltmiete (netto)
56 m²
Wohnfläche
2
Zimmer
26
|Alleinlage|Naturjuwel am Hirschenstein|Hütte mit ...
Haus
94505 Bernried
Stellen Sie sich vor, Sie lassen den Lärm der Welt hinter sich. Die Straße wird schmaler, der Weg führt tief hinein in das sanfte Rauschen der Nadelwälder, bis sich auf ca. 700 Metern Höhe eine Lichtung öffnet. Hier, ...
129.000 €
Kaufpreis
50 m²
Wohnfläche
2
Zimmer
7
von privat ohne Provision! Kapitalanlage: vermietete 4 ...
Wohnung
63450 Hanau
Das hier zum Verkauf stehende Objekt befindet sich in einem gepflegten Mehrfamilienhaus in zentraler Innenstadtlage, bestehend aus insgesamt 14 Parteien. Die Wohnung liegt im 2. OG und ist trotz ihrer zentralen Lage ...
249.000 €
Kaufpreis
74 m²
Wohnfläche
4
Zimmer
29
Erstbezug nach Renovierung- 5 WG-Zimmer zu vermieten - ...
Zimmer
76131 Karlsruhe
In dieser frisch renovierten bzw. sanierten Wohnung im 3. OG entsteht eine neue 5er-WG. Alle Zimmer werden erstmals nach der Sanierung vermietet – perfekt für alle, die Lust haben, eine WG von Anfang an mitzugestalten ...
400 €
Kaltmiete (netto)
15 m²
Wohnfläche
1
Zimmer
8
renovierte 3-Zimmer Wohnung in Seligenstadt (zentrale ...
Wohnung
63500 Seligenstadt
Zu vermieten: frisch renovierte 3- Zimmer-Wohnung in zentraler und ruhiger Lage von Seligenstadt Die 3-Zimmer-Wohnung befindet sich in ruhiger und zugleich zentraler Lage von Seligenstadt und wird derzeit umfassend ...
1.150 €
Kaltmiete (netto)
89 m²
Wohnfläche
3
Zimmer