Neubau KFW 40-QNG Plus Reiheneckhaus im Ortskern von Dettingen
549.000 €
Kaufpreis
137 m²
Wohnfläche
6,5
Zimmer
immobilien.de Nr.: 9530807
Objektnummer: 440311
Kaufpreis
| Kaufpreis | 549.000 € |
| Maklerprovision | keine Provision, courtagefrei |
Wohnfläche, Grundstück & Bausubstanz
| Wohnfläche | 137 m² |
| Grundstücksfläche | 405 m² |
| Zimmer | 6,5 |
| Baujahr | 2026 |
| Verfügbar ab | 01.03.2027 |
| Zustand | Erstbezug |
Energie
| Heizungsart | Fußbodenheizung |
| Energieträger/Befeuerung | Luft-Wärme-Pumpe |
Beschreibung der Immobilie
***TAG DER OFFENEN BAUSTELLE AM 24.04.2026 VON 13:00 BIS 16:00 UHR***
Im neuen, zentral gelegenen Baugebiet in Dettingen an der Iller entstehen ab Frühjahr 2026, 11 moderne Reiheneck- und Reihenmittelhäuser.
Ein besonderes Qualitätsmerkmal des Neubauprojekts ist die nachhaltige Bauweise:
Alle Häuser entstehen im KfW-40 Standard und werden mit dem QNG-Plus-Siegel zertifiziert. Das sorgt für energieeffizientes Wohnen, geringe Betriebskosten und langfristigen Werterhalt der Immobilie. Zusätzlich wird jedes Haus mit einer Photovoltaikanlage ausgestattet – ein weiterer Pluspunkt für umweltbewusstes, zukunftsorientiertes Wohnen.
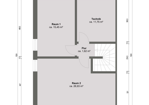
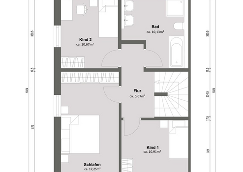
Die Wohnhäuser werden ohne Keller gebaut, bieten jedoch durch eine durchdachte Planung mit 4,5 bis 6,5 Wohnräumen (je nach gewählter Sonderausstattung) sowie einem separaten Abstellbereich ausreichend Platz für individuelle Lebensentwürfe. Ob als großzügiges Familienzuhause oder als moderne Lösung für Wohnen und Arbeiten unter einem Dach – diese Häuser schaffen Flexibilität für jede Lebensphase.
Der offene Wohn- und Essbereich bildet das Herzstück des Hauses und lädt zum Verweilen ein. Es stehen Ihnen private Gärten und Terrassen zur Verfügung – ideal für entspannte Stunden im Freien.
Die ruhige Lage mitten im Ort, kombiniert mit kurzen Wegen zu allen wichtigen Einrichtungen, macht dieses Projekt zu einer besonders attraktiven Wohnlösung – sowohl für Familien mit Kindern als auch für Paare oder Berufstätige.
Haben wir Ihr Interesse geweckt dann kontaktieren Sie uns gerne. Wir freuen uns auf Ihre Anfrage.
Im neuen, zentral gelegenen Baugebiet in Dettingen an der Iller entstehen ab Frühjahr 2026, 11 moderne Reiheneck- und Reihenmittelhäuser.
Ein besonderes Qualitätsmerkmal des Neubauprojekts ist die nachhaltige Bauweise:
Alle Häuser entstehen im KfW-40 Standard und werden mit dem QNG-Plus-Siegel zertifiziert. Das sorgt für energieeffizientes Wohnen, geringe Betriebskosten und langfristigen Werterhalt der Immobilie. Zusätzlich wird jedes Haus mit einer Photovoltaikanlage ausgestattet – ein weiterer Pluspunkt für umweltbewusstes, zukunftsorientiertes Wohnen.
Die Wohnhäuser werden ohne Keller gebaut, bieten jedoch durch eine durchdachte Planung mit 4,5 bis 6,5 Wohnräumen (je nach gewählter Sonderausstattung) sowie einem separaten Abstellbereich ausreichend Platz für individuelle Lebensentwürfe. Ob als großzügiges Familienzuhause oder als moderne Lösung für Wohnen und Arbeiten unter einem Dach – diese Häuser schaffen Flexibilität für jede Lebensphase.
Der offene Wohn- und Essbereich bildet das Herzstück des Hauses und lädt zum Verweilen ein. Es stehen Ihnen private Gärten und Terrassen zur Verfügung – ideal für entspannte Stunden im Freien.
Die ruhige Lage mitten im Ort, kombiniert mit kurzen Wegen zu allen wichtigen Einrichtungen, macht dieses Projekt zu einer besonders attraktiven Wohnlösung – sowohl für Familien mit Kindern als auch für Paare oder Berufstätige.
Haben wir Ihr Interesse geweckt dann kontaktieren Sie uns gerne. Wir freuen uns auf Ihre Anfrage.
Ausstattungsmerkmale
| Bad | Wanne |
| Boden | Fliesen, Kunststoff |
| Balkone | 0 |
| Garten | |
| Terrassen | 1 |
Terrasse, Garten, Vollbad, Gäste-WC, Fliesen
Bemerkungen:
Die wichtigsten Eckdaten auf einen Blick:
- KFW 40 Standard
- QNG-Plus zertifiziert
- Gedämmtes Ziegelmauerwerk
- Wohnfläche: 137 m²
- Zimmer 6,5
- Vinylböden und Fliesen
- Durchdachter Grundriss mit Abstellraum
- Großer offener Wohn-/ Essbereich
- Ausgebautes Dachgeschoss
- Badewanne & Dusche
- Garage (optional)
Technische Details:
- 3-fach verglaste Kunststofffenster
- Luft-Wärmepumpe
- Fußbodenheizung
- elektrische Rollläden
- PV-Anlage
- Batteriespeicher (optional)
Optionale Ausstattung möglich (Beispiel Sonderwünsche)
-Batteriespeicher PV-Anlage
-Einzelgarage
Nicht enthalten ist die Anlage der Rasenansaat
Geplanter Baubeginn Frühjahr 2026; Geplante Fertigstellung II. Quartal 2027
Bemerkungen:
Die wichtigsten Eckdaten auf einen Blick:
- KFW 40 Standard
- QNG-Plus zertifiziert
- Gedämmtes Ziegelmauerwerk
- Wohnfläche: 137 m²
- Zimmer 6,5
- Vinylböden und Fliesen
- Durchdachter Grundriss mit Abstellraum
- Großer offener Wohn-/ Essbereich
- Ausgebautes Dachgeschoss
- Badewanne & Dusche
- Garage (optional)
Technische Details:
- 3-fach verglaste Kunststofffenster
- Luft-Wärmepumpe
- Fußbodenheizung
- elektrische Rollläden
- PV-Anlage
- Batteriespeicher (optional)
Optionale Ausstattung möglich (Beispiel Sonderwünsche)
-Batteriespeicher PV-Anlage
-Einzelgarage
Nicht enthalten ist die Anlage der Rasenansaat
Geplanter Baubeginn Frühjahr 2026; Geplante Fertigstellung II. Quartal 2027
Sonstige Informationen
Heizungsart: Fußbodenheizung
Energieträger: Luft-/Wasserwärme
Energieausweis nicht vorhanden
***TAG DER OFFENEN BAUSTELLE AM 24.04.2026 VON 13:00 BIS 16:00 UHR***
-Energieausweis besteht noch nicht, da es ein Neubauprojekt ist
-Wir freuen uns auf Ihre Anfrage
Setzen Sie sich gerne mit uns in Verbindung unter 08395 910769 0
Impressum
Max Wild GmbH
Leutkircher Straße 22
88450 Berkheim
Telefon: +49 8395 920-0
Telefax: +49 8395 920-650
info@maxwild.com
www.maxwild.com
Vertretungsberechtigte Geschäftsführer: Max Wild, Roland Wild, Elmar Wild, Jochen Wild, Christian Wild
Registergericht: Amtsgericht Ulm
Registernummer: HRB 640308
Umsatzsteuer-Identifikationsnummer gemäß § 27 a Umsatzsteuergesetz:
DE 144891755
Haftungshinweis: Trotz sorgfältiger inhaltlicher Kontrolle übernehmen wir keine Haftung für die Inhalte externer Links. Für den Inhalt der verlinkten Seiten sind ausschließlich deren Betreiber verantwortlich.
https://www.maxwild.com/impressum/
Makleranfragen nicht erwünscht. Nach § 7 UWG sind unaufgeforderte Kontaktaufnahmen durch Makler ohne ausdrückliche Einwilligung des Empfängers verboten!
ohne-makler (OM) ist weder Anbieter noch Vermittler der Immobilie. OM betreibt eine Plattform für Immobilieneigentümer, die unter anderem die gleichzeitige Veröffentlichung einzelner Inserate auf mehreren Immobilienportalen ermöglicht. Die Inhalte dieser Inserate werden ausschließlich von Dritten verantwortet. Für die Richtigkeit, Vollständigkeit oder Rechtmäßigkeit der Angaben übernimmt OM keine Haftung. Hinweise auf mögliche Rechtsverstöße können jederzeit gemeldet werden und werden nach Prüfung umgehend bearbeitet.
Energieträger: Luft-/Wasserwärme
Energieausweis nicht vorhanden
***TAG DER OFFENEN BAUSTELLE AM 24.04.2026 VON 13:00 BIS 16:00 UHR***
-Energieausweis besteht noch nicht, da es ein Neubauprojekt ist
-Wir freuen uns auf Ihre Anfrage
Setzen Sie sich gerne mit uns in Verbindung unter 08395 910769 0
Impressum
Max Wild GmbH
Leutkircher Straße 22
88450 Berkheim
Telefon: +49 8395 920-0
Telefax: +49 8395 920-650
info@maxwild.com
www.maxwild.com
Vertretungsberechtigte Geschäftsführer: Max Wild, Roland Wild, Elmar Wild, Jochen Wild, Christian Wild
Registergericht: Amtsgericht Ulm
Registernummer: HRB 640308
Umsatzsteuer-Identifikationsnummer gemäß § 27 a Umsatzsteuergesetz:
DE 144891755
Haftungshinweis: Trotz sorgfältiger inhaltlicher Kontrolle übernehmen wir keine Haftung für die Inhalte externer Links. Für den Inhalt der verlinkten Seiten sind ausschließlich deren Betreiber verantwortlich.
https://www.maxwild.com/impressum/
Makleranfragen nicht erwünscht. Nach § 7 UWG sind unaufgeforderte Kontaktaufnahmen durch Makler ohne ausdrückliche Einwilligung des Empfängers verboten!
ohne-makler (OM) ist weder Anbieter noch Vermittler der Immobilie. OM betreibt eine Plattform für Immobilieneigentümer, die unter anderem die gleichzeitige Veröffentlichung einzelner Inserate auf mehreren Immobilienportalen ermöglicht. Die Inhalte dieser Inserate werden ausschließlich von Dritten verantwortet. Für die Richtigkeit, Vollständigkeit oder Rechtmäßigkeit der Angaben übernimmt OM keine Haftung. Hinweise auf mögliche Rechtsverstöße können jederzeit gemeldet werden und werden nach Prüfung umgehend bearbeitet.
Karte wird geladen...
Objektstandort
Schwabenweg
88451 Dettingen an der Iller
- Baden-Württemberg
Lage & Infrastruktur
Objektstandort
Schwabenweg
88451 Dettingen an der Iller
- Baden-Württemberg
Im Herzen von Dettingen an der Iller, einer idyllischen Gemeinde im Landkreis Biberach (Baden-Württemberg), entsteht ein attraktives Neubaugebiet, das ab Sommer 2025 zur Bebauung freigegeben ist. Die zentrale Lage des Baugebiets vereint die Vorteile dörflicher Ruhe mit einer hervorragenden Anbindung an die Infrastruktur der Region.
Das Baugebiet liegt mitten im Ortskern und ist umgeben von gewachsener Wohnbebauung sowie gepflegten Gärten. Einkaufsmöglichkeiten für den täglichen Bedarf, ein Bäcker, Kindergarten sowie die örtliche Grundschule befinden sich fußläufig in wenigen Minuten. Auch soziale Einrichtungen, Spielplätze und Freizeitmöglichkeiten sind bequem erreichbar, was den Standort besonders für Familien attraktiv macht.
Die verkehrsgünstige Lage mit Anschluss an die Bundesstraße und Autobahn ermöglicht eine schnelle Erreichbarkeit der Städte Memmingen, Ulm und Biberach an der Riß. Öffentliche Verkehrsmittel wie Busverbindungen sind vorhanden und schaffen eine gute Anbindung an das regionale Verkehrsnetz.
Die landschaftlich reizvolle Umgebung entlang der Iller lädt zu ausgedehnten Spaziergängen, Rad- und Wandertouren ein.
Die naturnahe Lage kombiniert mit einer lebendigen Dorfgemeinschaft macht das neue Baugebiet zu einem idealen Ort für ein nachhaltiges und familienfreundliches Wohnen.
Infrastruktur (im Umkreis von 5 km):
Apotheke, Lebensmittel-Discount, Allgemeinmediziner, Kindergarten, Grundschule, Hauptschule, Realschule, Gesamtschule, Öffentliche Verkehrsmittel
Das Baugebiet liegt mitten im Ortskern und ist umgeben von gewachsener Wohnbebauung sowie gepflegten Gärten. Einkaufsmöglichkeiten für den täglichen Bedarf, ein Bäcker, Kindergarten sowie die örtliche Grundschule befinden sich fußläufig in wenigen Minuten. Auch soziale Einrichtungen, Spielplätze und Freizeitmöglichkeiten sind bequem erreichbar, was den Standort besonders für Familien attraktiv macht.
Die verkehrsgünstige Lage mit Anschluss an die Bundesstraße und Autobahn ermöglicht eine schnelle Erreichbarkeit der Städte Memmingen, Ulm und Biberach an der Riß. Öffentliche Verkehrsmittel wie Busverbindungen sind vorhanden und schaffen eine gute Anbindung an das regionale Verkehrsnetz.
Die landschaftlich reizvolle Umgebung entlang der Iller lädt zu ausgedehnten Spaziergängen, Rad- und Wandertouren ein.
Die naturnahe Lage kombiniert mit einer lebendigen Dorfgemeinschaft macht das neue Baugebiet zu einem idealen Ort für ein nachhaltiges und familienfreundliches Wohnen.
Infrastruktur (im Umkreis von 5 km):
Apotheke, Lebensmittel-Discount, Allgemeinmediziner, Kindergarten, Grundschule, Hauptschule, Realschule, Gesamtschule, Öffentliche Verkehrsmittel
Kontaktanfrage senden
Über den Anbieter
OM PropTech GmbH
Humboldtstraße 25a
21509 Glinde
Kontakt
| Telefon | - |
| Fax | - |
| Website | www.ohne-makler.net |
Ansprechpartner/in
Angebot von Michael Hüller
Weitere Angebote des Anbieters
14
Büro-Praxis - Räume, Altbau am Kaiserplatz
Büro / Praxen
76133 Karlsruhe
In einem repräsentativen Stadthaus mit 10 Wohn- und 2 Gewerbeeinheiten befinden sich diese Büro-Praxis-Räume in der ersten Etage. 2 Zimmer gehen zur Stephanienstraße, 2 zur Hofseite. Ein Raum ist Durchgangszimmer. Nach ...
1.500 €
Kaltmiete (netto)
112 m²
Gesamtfläche
15
*Wohntraum in KA-Neureut: 143 m² Lifestyle mit ...
Wohnung
76149 Karlsruhe-Neureut
Vergessen Sie alles, was Sie über Etagenwohnungen wissen. Diese 3,5-Zimmer-Wohnung im 1. OG einer gepflegten Anlage im Herzen von Neureut bietet Ihnen ein Freiheitsgefühl, das sonst nur Penthouses vorbehalten ist. Das ...
1.650 €
Kaltmiete (netto)
143 m²
Wohnfläche
3,5
Zimmer
22
Moderne, helle Doppelhaushälfte mit 5,5 Zimmern, ...
Haus
69493 Hirschberg an der Bergstraße
Doppelhaushälfte auf drei Etagen in gehobener Ausstattung (hochwertiger Parkettboden, Fußbodenheizung, elektrische Rollläden, integrierte Lüftungsanlage, Wasserenthärtungsanlage, elektrische Markise) in bester ...
2.750 €
Kaltmiete (netto)
189 m²
Wohnfläche
5,5
Zimmer
11
Neubau Erstbezug! Wunderschöne 3 ZW mit Terrasse plus ...
Wohnung
90765 Fürth
Moderner Wohngenuss im Zweifamilienhaus! Herzlich willkommen in Ihrem neuen Zuhause! Diese großzügig geschnittene 3-Zimmer-Wohnung befindet sich im EG in einem neu erbauten Mehrfamilienhaus mit nur zwei Wohneinheiten – ...
1.375 €
Kaltmiete (netto)
87 m²
Wohnfläche
3
Zimmer
7
Bezugsfreie Eigentumswohnung mit Balkon
Wohnung
38444 Wolfsburg
Die Wohnung eird derzeit saniert - die Fotos zeigen die unsanierte Wohnung. Sanierung: Es werden die Wände, Bodenbeläge und das Bad erneuert. Die helle Wohnung befindet sich im 5. OG. Das Haus hat 6 Etagen und umfasst ...
148.000 €
Kaufpreis
89,85 m²
Wohnfläche
3
Zimmer