***Praktisch und stillvoll: Doppelhaushälfte mit zeitgemäßer Ausstattung und Klinkeraktion!**
477.428 €
Kaufpreis
140 m²
Wohnfläche
25 m²
Nutzfläche
5
Zimmer
immobilien.de Nr.: 9529968
Objektnummer: KR260324_251SH
Kaufpreis
| Kaufpreis | 477.428 € |
Wohnfläche, Grundstück & Bausubstanz
| Wohnfläche | 140 m² |
| Nutzfläche | 25 m² |
| Grundstücksfläche | 491 m² |
| Zimmer | 5 |
| Baujahr | 2026 |
| Verfügbar ab | 2026 |
| Zustand | Projektiert |
Energie
| Energietyp | KfW-40 |
| Heizungsart | Zentralheizung |
| Energieträger/Befeuerung | Luft-Wärme-Pumpe |
Beschreibung der Immobilie
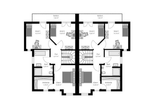
Entdecken Sie die perfekte Symbiose aus modernem Design und funktionalem Wohnkomfort mit unserem projektierten Doppelhaus in Salzhemmendorf. Auf einem Grundstück von 491 m² erstreckt sich Ihr zukünftiges Zuhause, das auf 140 m² Wohnfläche großzügigen Platz für Ihre Familie bietet. Mit fünf Zimmern, darunter drei Schlafzimmer und zwei elegante Badezimmer, erleben Sie ein Wohnerlebnis der Extraklasse. Die durchdachte Raumaufteilung über zwei Etagen ermöglicht es Ihnen, jeden Winkel optimal zu nutzen und sich in Ihrem neuen Heim rundum wohlzufühlen.
Ausstattungsmerkmale
| Anzahl der Etagen im Haus | 2 |
| Küche | Offene Küche |
| Bad | 2 |
| Bad | Dusche, Wanne, Fenster |
| Boden | Fliesen |
| Terrassen | 1 |
Unser Doppelhaus besticht durch eine gehobene Ausstattung, die keine Wünsche offenlässt. Hochwertige Fliesen und Bodenbeläge nach Wahl verleihen den Räumen eine individuelle Note und sorgen für ein angenehmes Wohngefühl. Die moderne Wärmepumpe sorgt nicht nur für wohlige Wärme in den kalten Monaten, sondern auch für niedrige Heizkosten und einen geringen CO2-Ausstoß. Der KfW40 Standard garantiert exzellente Energieeffizienz und nachhaltiges Wohnen auf höchstem Niveau.
Sonstige Informationen
Achtung: Klinkeraktion verlängert!
STREIF Haus - der Pionier der deutschen Fertighausbranche
Die langjährige Firmentradition des Unternehmens reicht bis in das Jahr 1929 zurück. In den 50er und 60er Jahren wurde in Deutschland schnell und viel Wohnraum für Familien benötigt, seitdem konzentrierte sich das Unternehmen auf die Entwicklung und Produktion von Fertighaustypen, die im Werk in großen Stückzahlen hergestellt werden konnten. So kann das Unternehmen auf 90.000 gebaute Hausobjekte zurückblicken und sich zu Recht als Pionier der deutschen Fertighausbranche bezeichnen.
Die neuen Energiesparhäuser - So baut man heute.
Unser Anspruch ist es, in enger Partnerschaft mit unseren Kunden langlebige Häuser zu bauen, mit einer hohen architektonischen Qualität, individuell geplant und dabei energieeffizient und ressourcenschonend. Jedes STREIF-Haus ist einzigartig und wird speziell für jeden Kunden "maßgeschneidert" und gebaut. Passend zu den persönlichen Wünschen, dem vorgegebenen Budget und dem vorhandenen Grundstück planen und bauen wir jedes Haus mit viel Liebe zum Detail.
STREIF Haus - der Pionier der deutschen Fertighausbranche
Die langjährige Firmentradition des Unternehmens reicht bis in das Jahr 1929 zurück. In den 50er und 60er Jahren wurde in Deutschland schnell und viel Wohnraum für Familien benötigt, seitdem konzentrierte sich das Unternehmen auf die Entwicklung und Produktion von Fertighaustypen, die im Werk in großen Stückzahlen hergestellt werden konnten. So kann das Unternehmen auf 90.000 gebaute Hausobjekte zurückblicken und sich zu Recht als Pionier der deutschen Fertighausbranche bezeichnen.
Die neuen Energiesparhäuser - So baut man heute.
Unser Anspruch ist es, in enger Partnerschaft mit unseren Kunden langlebige Häuser zu bauen, mit einer hohen architektonischen Qualität, individuell geplant und dabei energieeffizient und ressourcenschonend. Jedes STREIF-Haus ist einzigartig und wird speziell für jeden Kunden "maßgeschneidert" und gebaut. Passend zu den persönlichen Wünschen, dem vorgegebenen Budget und dem vorhandenen Grundstück planen und bauen wir jedes Haus mit viel Liebe zum Detail.
Karte wird geladen...
Objektstandort
31020 Salzhemmendorf
Lage & Infrastruktur
Objektstandort
31020 Salzhemmendorf
Salzhemmendorf bietet Ihnen eine ideale Wohnlage mit einer hervorragenden Infrastruktur. In unmittelbarer Nähe befinden sich Apotheken, Einkaufsmöglichkeiten sowie ein Bahnhof und Busanbindungen, die Ihnen eine flexible Mobilität ermöglichen. Für Familien sind Grundschulen, Kindergärten sowie weiterführende Schulen leicht erreichbar. Zahlreiche Freizeitmöglichkeiten wie Spielplätze laden zu gemeinsamen Aktivitäten ein und runden das Angebot perfekt ab.
Kontaktanfrage senden
Über den Anbieter
STREIF Haus GmbH
Josef-Streif-Straße 1
54595 Weinsheim
Kontakt
| Telefon | 06551 12 00 |
| Mobil | +49 174 6403310 |
| Website | www.streif.de |
Ansprechpartner/in
Herr Andreas Maurer
Weitere Angebote des Anbieters
15
Modernes Einfamilienhaus in ruhiger Lage in Brombach ...
Haus
61389 Schmitten-Brombach
Willkommen in Ihrem zukünftigen Traumhaus! Dieses moderne Einfamilienhaus im beliebten Wohngebiet von Schmitten-Brombach bietet Ihnen auf zwei Etagen und einer großzügigen Wohnfläche von 114 m² genügend Platz für die ...
424.000 €
Kaufpreis
114 m²
Wohnfläche
4
Zimmer
13
Zeitlose Luxuriöse Villa auf ruhig gelegenem ...
Haus
65191 Wiesbaden
Willkommen in Ihrer zukünftigen Stadtvilla in Wiesbaden, einem Ort, an dem modernes Wohnen auf individuelle Gestaltung trifft. Diese beeindruckende Stadtvilla, mit einer großzügigen Wohnfläche von 175,56 m² und auf ...
1.290.000 €
Kaufpreis
175,56 m²
Wohnfläche
6
Zimmer
8
Neubau von Doppelhäusern in Hannover Misburg -jetzt ...
Haus
30629 Hannover
Der Preis bezieht sich auf das Haus inkl. Baunebenkosten und einschließlich Grundstück. Die Grunderwerbsteuer fällt nur auf die Grundstückskosten an. Herzlich willkommen bei STREIF, Ihrem zuverlässigen Partner für den ...
595.000 €
Kaufpreis
120 m²
Wohnfläche
5
Zimmer
8
-inkl. Grundstück-Ihre neue STREIF Doppelhaushälfte in ...
Haus
38179 Schwülper
Der Preis bezieht sich auf das Haus inkl. Baunebenkosten und einschließlich Grundstück. Die Grunderwerbsteuer fällt nur auf die Grundstückskosten an. Herzlich willkommen bei STREIF, Ihrem zuverlässigen Partner für den ...
595.000 €
Kaufpreis
135 m²
Wohnfläche
5
Zimmer
39
***Praktisch und stillvoll: Doppelhaushälfte mit ...
Haus
31020 Salzhemmendorf
Entdecken Sie die perfekte Symbiose aus modernem Design und funktionalem Wohnkomfort mit unserem projektierten Doppelhaus in Salzhemmendorf. Auf einem Grundstück von 491 m² erstreckt sich Ihr zukünftiges Zuhause, das ...
477.428 €
Kaufpreis
140 m²
Wohnfläche
5
Zimmer