Moderne Doppelhaushälfte mit durchdachtem Raumkonzept
714.994 €
Kaufpreis
130 m²
Wohnfläche
5
Zimmer
immobilien.de Nr.: 9528783
Objektnummer: 2026-080
Kaufpreis
| Kaufpreis | 714.994 € |
Wohnfläche, Grundstück & Bausubstanz
| Wohnfläche | 130 m² |
| Grundstücksfläche | 580 m² |
| Zimmer | 5 |
| Baujahr | 2027 |
| Verfügbar ab | keine Angabe |
| Zustand | Projektiert |
Energie
| Energietyp | KfW-40 |
| Heizungsart | Zentralheizung |
| Energieträger/Befeuerung | Luft-Wärme-Pumpe |
Beschreibung der Immobilie
Modernes Wohnen für die junge Familie: Viel Platz für Groß und Klein im charmanten Doppelhaus
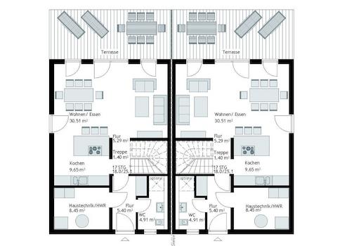
Diese einladende Doppelhaushälfte bietet Ihnen und Ihrer Familie auf zwei durchdachten Wohnebenen alles, was Sie für ein harmonisches und komfortables Zusammenleben benötigen. Der Grundriss wurde konzipiert, um sowohl gesellige Familienmomente als auch Rückzugsmöglichkeiten für jeden Einzelnen zu schaffen.
Erdgeschoss: Ein Lebensmittelpunkt voller Licht und Leben
Der großzügige und offene Wohn- und Essbereich ist zweifellos das Herzstück dieser Immobilie. Auf über 30 m² erstreckt sich ein lichtdurchfluteter Raum, der viel Platz für eine gemütliche Sofaecke und einen großen Esstisch bietet, an dem die ganze Familie zusammenkommen kann. Die direkt angrenzende, offene Küche (9,65 m²) lädt zu gemeinsamen Kocherlebnissen ein und lässt sich nach Ihren individuellen Vorstellungen gestalten. Dank der großen Fensterelemente wird der Wohnbereich zu jeder Tageszeit in natürliches Licht getaucht.
Obergeschoss: Ein privates Reich für Ruhe und Erholung
Über eine elegante Treppe gelangen Sie ins Obergeschoss, das den privaten Rückzugsbereich der Familie beherbergt. Hier finden Sie ein geräumiges Elternschlafzimmer (17,74 m²), das Ihnen viel Platz für ein großes Doppelbett und einen Kleiderschrank bietet. Die beiden großzügig geschnittenen Kinderzimmer (jeweils über 14 m²) sind wahre Platzwunder und lassen viel Spielraum für die individuelle Gestaltung als Spiel-, Lern- oder Schlummerparadies. Durch die großen Fenster sind auch diese Räume hell und einladend.
Das Badezimmer (9,70 m²) besticht durch seine Größe und die Tageslichtoption. Hier haben Sie die Möglichkeit, sowohl eine entspannende Badewanne als auch eine komfortable Dusche zu integrieren. Die durchdachte Raumaufteilung sorgt dafür, dass auch am Morgen kein Stau entsteht. Ein kleiner Flur verbindet die Zimmer miteinander.
Einzigartige Services, umfangreiche Inklusiv-Leistungen und komplette Gestaltungsfreiheit; eine Kombination, die Sie nur bei STREIF Haus finden.
Sie möchten größer oder kleiner bauen? Oder in einer anderen Dachform? Sehr gerne! Rufen Sie mich an unter 0173/3678139 und wir besprechen die Anforderungen an Ihr individuelles STREIF-Haus.
Diese einladende Doppelhaushälfte bietet Ihnen und Ihrer Familie auf zwei durchdachten Wohnebenen alles, was Sie für ein harmonisches und komfortables Zusammenleben benötigen. Der Grundriss wurde konzipiert, um sowohl gesellige Familienmomente als auch Rückzugsmöglichkeiten für jeden Einzelnen zu schaffen.
Erdgeschoss: Ein Lebensmittelpunkt voller Licht und Leben
Der großzügige und offene Wohn- und Essbereich ist zweifellos das Herzstück dieser Immobilie. Auf über 30 m² erstreckt sich ein lichtdurchfluteter Raum, der viel Platz für eine gemütliche Sofaecke und einen großen Esstisch bietet, an dem die ganze Familie zusammenkommen kann. Die direkt angrenzende, offene Küche (9,65 m²) lädt zu gemeinsamen Kocherlebnissen ein und lässt sich nach Ihren individuellen Vorstellungen gestalten. Dank der großen Fensterelemente wird der Wohnbereich zu jeder Tageszeit in natürliches Licht getaucht.
Obergeschoss: Ein privates Reich für Ruhe und Erholung
Über eine elegante Treppe gelangen Sie ins Obergeschoss, das den privaten Rückzugsbereich der Familie beherbergt. Hier finden Sie ein geräumiges Elternschlafzimmer (17,74 m²), das Ihnen viel Platz für ein großes Doppelbett und einen Kleiderschrank bietet. Die beiden großzügig geschnittenen Kinderzimmer (jeweils über 14 m²) sind wahre Platzwunder und lassen viel Spielraum für die individuelle Gestaltung als Spiel-, Lern- oder Schlummerparadies. Durch die großen Fenster sind auch diese Räume hell und einladend.
Das Badezimmer (9,70 m²) besticht durch seine Größe und die Tageslichtoption. Hier haben Sie die Möglichkeit, sowohl eine entspannende Badewanne als auch eine komfortable Dusche zu integrieren. Die durchdachte Raumaufteilung sorgt dafür, dass auch am Morgen kein Stau entsteht. Ein kleiner Flur verbindet die Zimmer miteinander.
Einzigartige Services, umfangreiche Inklusiv-Leistungen und komplette Gestaltungsfreiheit; eine Kombination, die Sie nur bei STREIF Haus finden.
Sie möchten größer oder kleiner bauen? Oder in einer anderen Dachform? Sehr gerne! Rufen Sie mich an unter 0173/3678139 und wir besprechen die Anforderungen an Ihr individuelles STREIF-Haus.
Ausstattungsmerkmale
| Anzahl der Etagen im Haus | 2 |
| Küche | Offene Küche |
| Bad | 1 |
| Bad | Dusche, Wanne, Fenster |
STREIF-Häuser sind Energiesparhäuser mit Außenwänden im Passivhausstandard und einer effizienten Heiztechnik, die eine integrierte Wohnraumlüftung und Wärmerückgewinnung bietet. Dies gewährleistet nicht nur einen geringen Energieverbrauch, sondern auch ein fantastisches Raumklima.
Die Leistungen von STREIF sind umfangreich und bereits im Grundpreis enthalten:
- 20-monatige Festpreisgarantie
- Energieeffizienzhaus KfW 40 EE im Standard
- Individuelle Grundrissgestaltung und Raumaufteilung inklusive
- Fundamentplatte inklusive
- Luft-Luft-Wärmepumpe mit integrierter Lüftungsanlage und Wärmerückgewinnung
- Haustür von KERA und Fenster von Porta/Kömmerling
- Massivholz-Geschosstreppe aus eigener Produktion
- uvm.
Die Leistungen von STREIF sind umfangreich und bereits im Grundpreis enthalten:
- 20-monatige Festpreisgarantie
- Energieeffizienzhaus KfW 40 EE im Standard
- Individuelle Grundrissgestaltung und Raumaufteilung inklusive
- Fundamentplatte inklusive
- Luft-Luft-Wärmepumpe mit integrierter Lüftungsanlage und Wärmerückgewinnung
- Haustür von KERA und Fenster von Porta/Kömmerling
- Massivholz-Geschosstreppe aus eigener Produktion
- uvm.
Sonstige Informationen
Das angegebene Grundstück wird von Dritten vermittelt und separat erworben. Der Preis ist bereits im Gesamtpreis berücksichtigt. Hinzu kommen noch Erwerbs- und Baunebenkosten - alle Details erkläre ich Ihnen gerne persönlich.
Die gezeigten Hausabbildungen und Inneneinrichtungen enthalten Sonderausstattungen, die nicht im angegebenen Preis inbegriffen sind.
Fragen? Kontaktieren Sie mich unter 0173/3678139 für ein unverbindliches Beratungsgespräch.
Die gezeigten Hausabbildungen und Inneneinrichtungen enthalten Sonderausstattungen, die nicht im angegebenen Preis inbegriffen sind.
Fragen? Kontaktieren Sie mich unter 0173/3678139 für ein unverbindliches Beratungsgespräch.
Karte wird geladen...
Objektstandort
90441 Nürnberg
Lage & Infrastruktur
Objektstandort
90441 Nürnberg
Nürnberg‑Werderau ist ein gewachsener Stadtteil im Süden Nürnbergs und bekannt für seinen hohen Grünanteil, den Volckamerplatz als Quartiersmittelpunkt und eine starke Nachbarschaftsstruktur. Die Mischung aus Einfamilienhäusern, historischen Siedlungsbauten und moderner Bebauung verleiht dem Viertel einen besonderen Charakter. Einkaufsmöglichkeiten, Schulen, Kindergärten sowie Straßenbahn‑ und S‑Bahn‑Anbindung sind fußläufig erreichbar, während die Nähe zur Innenstadt und zum Main‑Donau‑Kanal eine hohe Lebensqualität bietet.
Hinweis:
Als STREIF-Berater (nicht als Makler) teile ich Grundstücksinformationen ausschließlich mit meinen Bauherren. Alle Angebote sind unverbindlich und freibleibend - Irrtümer sowie zwischenzeitliche Verkäufe möglich. Die Angaben beruhen auf mir vorliegenden Informationen, für deren Vollständigkeit und Richtigkeit ich trotz sorgfältiger Prüfung nicht hafte.
Lassen Sie uns sprechen! Kontaktieren Sie mich gerne unter 0173/3678139 für ein unverbindliches Erstgespräch. Dabei schauen wir, ob das Grundstück zu Ihren Vorstellungen passt oder ob andere Optionen besser geeignet sind.
Hinweis:
Als STREIF-Berater (nicht als Makler) teile ich Grundstücksinformationen ausschließlich mit meinen Bauherren. Alle Angebote sind unverbindlich und freibleibend - Irrtümer sowie zwischenzeitliche Verkäufe möglich. Die Angaben beruhen auf mir vorliegenden Informationen, für deren Vollständigkeit und Richtigkeit ich trotz sorgfältiger Prüfung nicht hafte.
Lassen Sie uns sprechen! Kontaktieren Sie mich gerne unter 0173/3678139 für ein unverbindliches Erstgespräch. Dabei schauen wir, ob das Grundstück zu Ihren Vorstellungen passt oder ob andere Optionen besser geeignet sind.
Kontaktanfrage senden
Über den Anbieter
STREIF Haus GmbH
Josef-Streif-Straße 1
54595 Weinsheim
Kontakt
| Mobil | +49 173 3678139 |
| Website | www.streif.de |
Ansprechpartner/in
Herr Frank Bohnert
Weitere Angebote des Anbieters
8
Wohnen mit Gartenstadt‑Charakter - Nürnberg‑Kettelersie ...
Haus
90469 Nürnberg
Stellen Sie sich vor: 143 m², auf denen sich ihr Familienleben so richtig entfalten kann. Hier trifft modernes Design auf echte Gemütlichkeit. Der Logenplatz für die Kids: Im Obergeschoss haben wir richtig viel Platz ...
915.689 €
Kaufpreis
143 m²
Wohnfläche
5
Zimmer
11
Ideal für Familien: Wohnen zwischen Stadt & Natur - ...
Haus
90480 Nürnberg
Ihr neues Familienkapitel auf 163 m² Vergessen Sie Kompromisse - hier erwartet Sie ein Zuhause, das mit Ihrer Familie mitwächst. Modern, lichtdurchflutet und durchdacht bis ins kleinste Detail. Das Herzstück Ihres ...
1.149.997 €
Kaufpreis
163 m²
Wohnfläche
6
Zimmer
10
Wohnen mit Weitblick
Haus
91247 Vorra
Ihr neues Familienkapitel auf 163 m² Vergessen Sie Kompromisse - hier erwartet Sie ein Zuhause, das mit Ihrer Familie mitwächst. Modern, lichtdurchflutet und durchdacht bis ins kleinste Detail. Das Herzstück Ihres ...
532.153 €
Kaufpreis
143 m²
Wohnfläche
6
Zimmer
10
Familienfreundlich wohnen nahe Pegnitzauen - ...
Haus
90427 Nürnberg
Ihr neues Familienkapitel auf 163 m² Vergessen Sie Kompromisse - hier erwartet Sie ein Zuhause, das mit Ihrer Familie mitwächst. Modern, lichtdurchflutet und durchdacht bis ins kleinste Detail. Das Herzstück Ihres ...
938.188 €
Kaufpreis
143 m²
Wohnfläche
6
Zimmer
6
Moderne Doppelhaushälfte mit durchdachtem Raumkonzept
Haus
90441 Nürnberg
Modernes Wohnen für die junge Familie: Viel Platz für Groß und Klein im charmanten Doppelhaus Diese einladende Doppelhaushälfte bietet Ihnen und Ihrer Familie auf zwei durchdachten Wohnebenen alles, was Sie für ein ...
714.994 €
Kaufpreis
130 m²
Wohnfläche
5
Zimmer