Ruhige 2 Zimmer-Wohnung mit Balkon (unmöbiliert)
690 €
Kaltmiete (netto)
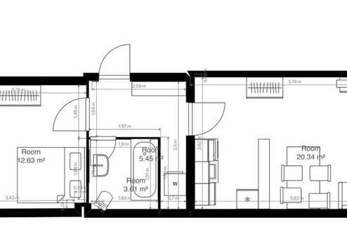
44 m²
Wohnfläche
2
Zimmer
immobilien.de Nr.: 9523764
Objektnummer: 439417
Mietpreis & Nebenkosten
| Kaltmiete (netto) | 690 € |
| Nebenkosten | 230 € |
| Heizkosten enthalten | Ja |
| Kaution | 2.070 € |
Wohnfläche, Grundstück & Bausubstanz
| Wohnfläche | 44 m² |
| Zimmer | 2 |
| Verfügbar ab | sofort |
| Zustand | Teil Vollsaniert |
Energie
| Heizungsart | Zentralheizung |
| Energieträger/Befeuerung | Gas |
Beschreibung der Immobilie
Diese attraktive, helle 2-Zimmer-Wohnung mit ca. 44 m² Wohnfläche befindet sich im 3. Obergeschoss eines gepflegten Mehrfamilienhauses in der in Nürnberg-Südstadt. Das Gebäude stammt aus dem Jahr 1962 und wurde 2024 umfangreich restauriert. Die Wohnung präsentiert sich in einem ansprechenden, modernen Zustand und überzeugt durch ihren durchdachten Grundriss sowie den sonnigen Balkon mit Blick in den ruhigen Innenhof.
Die Wohnung wird unmöbliert vermietet!
Der Wohnbereich ist mit einer neuen und hochwertigen Küche ausgestattet. Das separate Schlafzimmer mit Zugang zum Balkon bietet ausreichend Platz für ein Doppelbett und einen großen Kleiderschrank. Der Balkon lädt im Sommer ideal zum Verweilen ein. Das Bad ist mit einer Duschwanne ausgestattet. In der gesamten Wohnung wurde ein neuer hochwertiger Vinylboden in Holzoptik verlegt. Ein Waschmaschinen Anschluss in einer praktischen Nische ist ebenfalls vorhanden.
Die Wohnung eignet sich ideal für Singles, Paare oder Pendler, die eine helle und ruhige Stadtwohnung mit guter Anbindung suchen.
Objektzustand: Erstbezug nach Sanierung
Die Wohnung wird unmöbliert vermietet!
Der Wohnbereich ist mit einer neuen und hochwertigen Küche ausgestattet. Das separate Schlafzimmer mit Zugang zum Balkon bietet ausreichend Platz für ein Doppelbett und einen großen Kleiderschrank. Der Balkon lädt im Sommer ideal zum Verweilen ein. Das Bad ist mit einer Duschwanne ausgestattet. In der gesamten Wohnung wurde ein neuer hochwertiger Vinylboden in Holzoptik verlegt. Ein Waschmaschinen Anschluss in einer praktischen Nische ist ebenfalls vorhanden.
Die Wohnung eignet sich ideal für Singles, Paare oder Pendler, die eine helle und ruhige Stadtwohnung mit guter Anbindung suchen.
Objektzustand: Erstbezug nach Sanierung
Ausstattungsmerkmale
| Inserat befindet sich im Stockwerk | 4 |
| Küche | Einbauküche |
| Bad | 1 |
| Balkone | 1 |
| Terrassen | 0 |
| Keller |
Balkon, Keller, Einbauküche
Bemerkungen:
•Erstbezug nach Teilrenovierung
•Heller Wohn-/Essbereich
•Offene, moderne Einbauküche (Backofen, Kühlschrank, Induktionskochfeld, Dunstabzugshaube)
•Separates Schlafzimmer
•Schöner Nord/Westbalkon
•Waschmaschinenanschluss vorhanden
•Hochwertiger Vinylboden in Holzoptik in allen Wohnräumen
•Separate Abstellfläche im Keller
•Überdachte Fahrradstellplätze im Innenhof
Bemerkungen:
•Erstbezug nach Teilrenovierung
•Heller Wohn-/Essbereich
•Offene, moderne Einbauküche (Backofen, Kühlschrank, Induktionskochfeld, Dunstabzugshaube)
•Separates Schlafzimmer
•Schöner Nord/Westbalkon
•Waschmaschinenanschluss vorhanden
•Hochwertiger Vinylboden in Holzoptik in allen Wohnräumen
•Separate Abstellfläche im Keller
•Überdachte Fahrradstellplätze im Innenhof
Sonstige Informationen
Heizungsart: Zentralheizung
Energieträger: Gas
Makleranfragen nicht erwünscht. Nach § 7 UWG sind unaufgeforderte Kontaktaufnahmen durch Makler ohne ausdrückliche Einwilligung des Empfängers verboten!
ohne-makler (OM) ist weder Anbieter noch Vermittler der Immobilie. OM betreibt eine Plattform für Immobilieneigentümer, die unter anderem die gleichzeitige Veröffentlichung einzelner Inserate auf mehreren Immobilienportalen ermöglicht. Die Inhalte dieser Inserate werden ausschließlich von Dritten verantwortet. Für die Richtigkeit, Vollständigkeit oder Rechtmäßigkeit der Angaben übernimmt OM keine Haftung. Hinweise auf mögliche Rechtsverstöße können jederzeit gemeldet werden und werden nach Prüfung umgehend bearbeitet.
Energieträger: Gas
Makleranfragen nicht erwünscht. Nach § 7 UWG sind unaufgeforderte Kontaktaufnahmen durch Makler ohne ausdrückliche Einwilligung des Empfängers verboten!
ohne-makler (OM) ist weder Anbieter noch Vermittler der Immobilie. OM betreibt eine Plattform für Immobilieneigentümer, die unter anderem die gleichzeitige Veröffentlichung einzelner Inserate auf mehreren Immobilienportalen ermöglicht. Die Inhalte dieser Inserate werden ausschließlich von Dritten verantwortet. Für die Richtigkeit, Vollständigkeit oder Rechtmäßigkeit der Angaben übernimmt OM keine Haftung. Hinweise auf mögliche Rechtsverstöße können jederzeit gemeldet werden und werden nach Prüfung umgehend bearbeitet.
Karte wird geladen...
Objektstandort
Sperberstraße 19
90461 Nürnberg
- Bayern
Lage & Infrastruktur
Objektstandort
Sperberstraße 19
90461 Nürnberg
- Bayern
Die Wohnung liegt in einer ruhigen Fahrradstraße der beliebten Südstadt – zentral, aber angenehm abgeschirmt vom Verkehr.
Tram- und Bushaltestellen sind nur ca. 2 Gehminuten entfernt, der Frankenschnellweg (A73) ist in 5 Fahrminuten erreichbar.
Einkaufsmöglichkeiten befinden sich direkt vor der Haustür: Ein Edeka-Markt, ein Bäcker und weitere Geschäfte des täglichen Bedarfs liegen nur 1 Gehminute entfernt.
Die Umgebung bietet zudem eine gute Auswahl an Restaurants, Grünflächen und Freizeitmöglichkeiten – ideal für alle, die urbanes Wohnen mit Ruhe und Komfort verbinden möchten.
Infrastruktur (im Umkreis von 5 km):
Apotheke, Allgemeinmediziner, Öffentliche Verkehrsmittel
Tram- und Bushaltestellen sind nur ca. 2 Gehminuten entfernt, der Frankenschnellweg (A73) ist in 5 Fahrminuten erreichbar.
Einkaufsmöglichkeiten befinden sich direkt vor der Haustür: Ein Edeka-Markt, ein Bäcker und weitere Geschäfte des täglichen Bedarfs liegen nur 1 Gehminute entfernt.
Die Umgebung bietet zudem eine gute Auswahl an Restaurants, Grünflächen und Freizeitmöglichkeiten – ideal für alle, die urbanes Wohnen mit Ruhe und Komfort verbinden möchten.
Infrastruktur (im Umkreis von 5 km):
Apotheke, Allgemeinmediziner, Öffentliche Verkehrsmittel
Kontaktanfrage senden
Über den Anbieter
OM PropTech GmbH
Humboldtstraße 25a
21509 Glinde
Kontakt
| Telefon | - |
| Fax | - |
| Website | www.ohne-makler.net |
Ansprechpartner/in
Privat von C. Stoerrle
Weitere Angebote des Anbieters
10
Zwei-Zimmerwohnung im Energiehaus mit fantastischem ...
Wohnung
21147 Hamburg
Attraktive und kompakt geschnittene Zwei-Zimmer-Wohnung in innovativer, ökologischer Holz-Beton-Bauweise eines KfW-Effizienzhauses 40. Die Wohnung bietet eine großzügige Raumaufteilung mit offenem Wohn- und Essbereich, ...
1.150 €
Kaltmiete (netto)
70 m²
Wohnfläche
2
Zimmer
19
PROVISIONSFREI: bezugsfreie renovierte 3-Zimmer-Wohnung ...
Wohnung
96103 Hallstadt
Sie sparen 8.925 Euro Maklerprovision! Achtung echte Bilder! Keine KI! Highlights auf einen Blick: -4. Stock mit Aufzug -Frisch renoviert – sofort bezugsfertig -Helles, großzügiges Wohnzimmer mit Balkon -Traumhafter ...
229.900 €
Kaufpreis
78,5 m²
Wohnfläche
3
Zimmer
17
3,5 Zimmer Maisonette in ruhiger Lage
Wohnung
76694 Forst
Ab sofort steht Ihnen diese schöne Maisonette Wohnung mit 3,5 Zimmern, verteilt auf 97m², in einem ruhigen und gepflegten 3-Familienhaus zur Verfügung. Nach Betreten der Wohnung eröffnet sich Ihnen der großzügige Wohn- ...
267.000 €
Kaufpreis
97 m²
Wohnfläche
3,5
Zimmer
39
Schönes Zweifamilienhaus in Böbingen zu verkaufen
Haus
73560 Böbingen
Gepflegtes, schönes Zweifamilienhaus mit Doppelgarage und großem Garten in ruhiger Lage zu verkaufen. Das Erdgeschoss ist sofort bezugsfertig, das Obergeschoss ist aktuell vermietet ! Wohnflächen: Erdgeschoss: 131 m2 ( ...
659.000 €
Kaufpreis
209 m²
Wohnfläche
6
Zimmer
48
Sylt, Landhaus, Meerblick Blidsel Bucht, Wattenmeer, ...
Haus
25992 List a. Sylt
Hausteil mit 2 separaten Wohnungen für Dauerwohnen oder für Eigen- oder Feriennutzung unter neuem Reetdach mit neuer Wärme-Dämmung (4.2024) in Traumlage -direkter Meerblick - zu verkaufen. Ebenfalls NEU : Schornstein ...
1.275.000 €
Kaufpreis
165 m²
Wohnfläche
6
Zimmer