4-Zimmer Wohnung - Erstbezug nach umfangreicher Renovierung
377.000 €
Kaufpreis
112 m²
Wohnfläche
4
Zimmer
immobilien.de Nr.: 9523161
Objektnummer: 439175
Kaufpreis
| Kaufpreis | 377.000 € |
| Maklerprovision | keine Provision, courtagefrei |
| Stellplatz Garage Kaufpreis | 20.000 € |
Wohnfläche, Grundstück & Bausubstanz
| Wohnfläche | 112 m² |
| Zimmer | 4 |
| Baujahr | 1972 |
| Verfügbar ab | sofort |
| Zustand | Teil Vollsaniert |
Energie
| Heizungsart | Zentralheizung |
| Energieträger/Befeuerung | Gas |
Beschreibung der Immobilie
360°-Rundgang: https://www.ohne-makler.net/panorama/439175/
4-Zimmer-Wohnung | Würzburg-Versbach | Erstbezug nach Renovierung 2026
Zum Verkauf steht eine hochwertig renovierte 4-Zimmer-Eigentumswohnung im Hochparterre eines gepflegten Dreifamilienhauses in der begehrten Würzburger Wohnlage Versbach.
Zur Wohnung gehören:
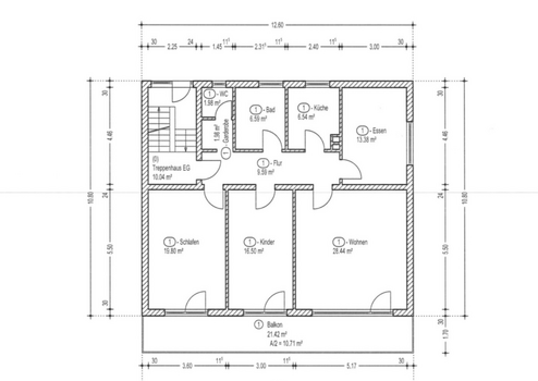
4 Zimmer (Wohnen, Schlafen, Kinderzimmer, Esszimmer) auf ca. 115 m²
Großer Balkon (ca. 21 m²) mit herrlichem Blick ins Grüne
Eigene Garage direkt am Haus
Separates Kellerabteil
Renovierung 2026 – Erstbezug nach Renovierung:
Die Wohnung wurde 2026 vollständig renoviert. Alle Maßnahmen erfolgten nach einem zertifizierten Renovierungsfahrplan unter Hinzuziehung eines Energieberaters:
✔ Neue 3-fach verglaste Fenster
✔ Wärmedämmung Fassade + neu verputzt
✔ Neue Haustüre
✔ Oberste Geschossdecke gedämmt
✔ Wohnung komplett renoviert (Erstbezug)
✔ Gaszentralheizung (2023)
Kaufpreis: 397.000 € VB (inkl. Garage) | – keine Maklerprovision
Besichtigungen finden ausschließlich nach Vorlage einer Finanzierungsbestätigung statt. Kontaktdaten werden auf Anfrage mitgeteilt.
Ich freue mich auf Ihre Anfrage und auf die Gelegenheit ihnen die Wohnung zeigen zu dürfen.
Objektzustand: Erstbezug nach Sanierung
4-Zimmer-Wohnung | Würzburg-Versbach | Erstbezug nach Renovierung 2026
Zum Verkauf steht eine hochwertig renovierte 4-Zimmer-Eigentumswohnung im Hochparterre eines gepflegten Dreifamilienhauses in der begehrten Würzburger Wohnlage Versbach.
Zur Wohnung gehören:
4 Zimmer (Wohnen, Schlafen, Kinderzimmer, Esszimmer) auf ca. 115 m²
Großer Balkon (ca. 21 m²) mit herrlichem Blick ins Grüne
Eigene Garage direkt am Haus
Separates Kellerabteil
Renovierung 2026 – Erstbezug nach Renovierung:
Die Wohnung wurde 2026 vollständig renoviert. Alle Maßnahmen erfolgten nach einem zertifizierten Renovierungsfahrplan unter Hinzuziehung eines Energieberaters:
✔ Neue 3-fach verglaste Fenster
✔ Wärmedämmung Fassade + neu verputzt
✔ Neue Haustüre
✔ Oberste Geschossdecke gedämmt
✔ Wohnung komplett renoviert (Erstbezug)
✔ Gaszentralheizung (2023)
Kaufpreis: 397.000 € VB (inkl. Garage) | – keine Maklerprovision
Besichtigungen finden ausschließlich nach Vorlage einer Finanzierungsbestätigung statt. Kontaktdaten werden auf Anfrage mitgeteilt.
Ich freue mich auf Ihre Anfrage und auf die Gelegenheit ihnen die Wohnung zeigen zu dürfen.
Objektzustand: Erstbezug nach Sanierung
Ausstattungsmerkmale
| Anzahl der Etagen im Haus | 3 |
| Inserat befindet sich im Stockwerk | 1 |
| Bad | 2 |
| Garage/Stellplätze | 1 |
Sonstige Informationen
Heizungsart: Zentralheizung
Energieträger: Gas
Energieausweis nicht vorhanden
Makleranfragen nicht erwünscht. Nach § 7 UWG sind unaufgeforderte Kontaktaufnahmen durch Makler ohne ausdrückliche Einwilligung des Empfängers verboten!
ohne-makler (OM) ist weder Anbieter noch Vermittler der Immobilie. OM betreibt eine Plattform für Immobilieneigentümer, die unter anderem die gleichzeitige Veröffentlichung einzelner Inserate auf mehreren Immobilienportalen ermöglicht. Die Inhalte dieser Inserate werden ausschließlich von Dritten verantwortet. Für die Richtigkeit, Vollständigkeit oder Rechtmäßigkeit der Angaben übernimmt OM keine Haftung. Hinweise auf mögliche Rechtsverstöße können jederzeit gemeldet werden und werden nach Prüfung umgehend bearbeitet.
Energieträger: Gas
Energieausweis nicht vorhanden
Makleranfragen nicht erwünscht. Nach § 7 UWG sind unaufgeforderte Kontaktaufnahmen durch Makler ohne ausdrückliche Einwilligung des Empfängers verboten!
ohne-makler (OM) ist weder Anbieter noch Vermittler der Immobilie. OM betreibt eine Plattform für Immobilieneigentümer, die unter anderem die gleichzeitige Veröffentlichung einzelner Inserate auf mehreren Immobilienportalen ermöglicht. Die Inhalte dieser Inserate werden ausschließlich von Dritten verantwortet. Für die Richtigkeit, Vollständigkeit oder Rechtmäßigkeit der Angaben übernimmt OM keine Haftung. Hinweise auf mögliche Rechtsverstöße können jederzeit gemeldet werden und werden nach Prüfung umgehend bearbeitet.
Karte wird geladen...
Objektstandort
97078 Würzburg
- Bayern
Lage & Infrastruktur
Objektstandort
97078 Würzburg
- Bayern
Ruhige, grüne Wohnlage in Versbach – hervorragende ÖPNV-Anbindung, alle Einrichtungen des täglichen Bedarfs fußläufig erreichbar, schnelle Anbindung an B19 und A7.
Kontaktanfrage senden
Über den Anbieter
OM PropTech GmbH
Humboldtstraße 25a
21509 Glinde
Kontakt
| Telefon | - |
| Fax | - |
| Website | www.ohne-makler.net |
Ansprechpartner/in
Privat vom Eigentümer
Weitere Angebote des Anbieters
37
Haus mit 2 separaten Wohnungen
Haus
55246 Mainz-Kostheim
Dieses Haus in Mainz-Kostheim bietet auf charmante Weise historischen Charakter und modernen Wohnkomfort. Das ursprünglich um ca. 1901 errichtete Gebäude wurde nach der Beseitigung der Kriegsschäden im Jahr 1946 ...
399.000 €
Kaufpreis
109,73 m²
Wohnfläche
4
Zimmer
13
Euskirchen-Elsig Freistehendes Einfamilienhaus mit ...
Haus
53881 Euskirchen-Elsig
Freistehendes Einfamilienhaus in Massivbauweise (Bimsstein, Stahlbetondecken), 2 volle Geschosse, ganz unterkellert mit einem großen Speicher bietet viel Platz für eine Familie. Zum Haus gehört ein großer gepflegter ...
360.000 €
Kaufpreis
150 m²
Wohnfläche
6
Zimmer
38
Luxuriöse Penthouse-Wohnung mit Dachterrasse in ...
Wohnung
23570 Lübeck
Wohnen, wo andere Urlaub machen Eindrucksvolle Penthouse-Wohnung mit sehr großer Dachterrasse und extra Balkon in Travemünde am Ostsee-Strand. Dieses äußerst repräsentative Wohn-Ensemble aus einer Architektenfeder ist ...
699.000 €
Kaufpreis
102 m²
Wohnfläche
2
Zimmer
18
Möblierte Wohnung Citylage, Einbauküche, Parkett, WLAN
Wohnung
40215 Düsseldorf
Das Appartement ist vollständig möbliert. Die Nebenkosten enthalten alle Energiekosten (Strom, Heizung und Wasser) und das WLAN. Das Appartement ist zentral in Düsseldorf -Friedrichstadt gelegen und besteht aus einem ...
890 €
Kaltmiete (netto)
38 m²
Wohnfläche
1
Zimmer
1
Arbeiten und wohnen ohne Stress! Sicherer ...
Parken
28195 Bremen
Verschwenden Sie nicht Ihre Zeit mit Parkplatzsuche! Für Wohnende und Arbeitende im Bremer Zentrum. Durch die Position der Stützpfeiler ist der Parkplatz sehr breit und bequem zu nutzen. Keine Provision! Keine ...
90 €
Kaltmiete (netto)
keine Angabe
Wohnfläche
keine Angabe
Zimmer