**Doppelhaushälfte links mit Charme und Charakter / mit Klinkeraktion**
523.535 €
Kaufpreis
140,8 m²
Wohnfläche
25 m²
Nutzfläche
5
Zimmer
immobilien.de Nr.: 9522559
Objektnummer: KR260320_258NS
Kaufpreis
| Kaufpreis | 523.535 € |
Wohnfläche, Grundstück & Bausubstanz
| Wohnfläche | 140,8 m² |
| Nutzfläche | 25 m² |
| Grundstücksfläche | 402 m² |
| Zimmer | 5 |
| Baujahr | 2026 |
| Verfügbar ab | 2026 |
| Zustand | Projektiert |
Energie
| Energietyp | KfW-40 |
| Heizungsart | Zentralheizung |
| Energieträger/Befeuerung | Luft-Wärme-Pumpe |
Beschreibung der Immobilie
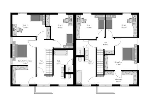
Willkommen in Ihrem zukünftigen Traumhaus in Nienstädt! Dieses moderne Doppelhaus-links wurde nach Ihren individuellen Wünschen projektiert und bietet Ihnen und Ihrer Familie großzügigen Wohnraum auf 140,80 m². Mit 5 Zimmern, darunter 3 Schlafzimmer und 2 Badezimmer, finden Sie hier ausreichend Platz für persönliche Rückzugsorte und geselliges Beisammensein. Die durchdachte Architektur ermöglicht ein komfortables Wohnen auf zwei Etagen und schafft ein harmonisches Zuhause für jede Lebenssituation. Profitieren Sie von den Vorteilen eines Energieeffizienzhauses gemäß KfW 40-Standard - dies schont nicht nur die Umwelt, sondern auch Ihren Geldbeutel!
Ausstattungsmerkmale
| Anzahl der Etagen im Haus | 2 |
| Küche | Offene Küche |
| Bad | 2 |
| Bad | Wanne |
| Boden | Fliesen |
| Terrassen | 1 |
| Barrierefrei |
Die gehobene Ausstattung dieses Doppelhauses-links lässt keine Wünsche offen. Genießen Sie hochwertige Bodenbeläge aus Fliesen und nach Wunsch, die nicht nur ästhetisch ansprechend sind, sondern auch pflegeleicht und langlebig. Die Badezimmer sind mit einer komfortablen Wanne ausgestattet, die Entspannung nach einem langen Tag verspricht. Die Beheizung erfolgt durch eine moderne Wärmepumpe, die effizient und umweltfreundlich arbeitet und Ihnen somit Heizkosten spart. Die STREIF Wandkonstruktion sorgt zudem für hervorragende Schallisolierung, sodass Sie in Ihrem neuen Zuhause ungestört leben können.
Sonstige Informationen
Achtung: Klinkeraktion ist verlängert!
STREIF Haus - der Pionier der deutschen Fertighausbranche
Die langjährige Firmentradition des Unternehmens reicht bis in das Jahr 1929 zurück. In den 50er und 60er Jahren wurde in Deutschland schnell und viel Wohnraum für Familien benötigt, seitdem konzentrierte sich das Unternehmen auf die Entwicklung und Produktion von Fertighaustypen, die im Werk in großen Stückzahlen hergestellt werden konnten. So kann das Unternehmen auf 90.000 gebaute Hausobjekte zurückblicken und sich zu Recht als Pionier der deutschen Fertighausbranche bezeichnen.
Die neuen Energiesparhäuser - So baut man heute.
Unser Anspruch ist es, in enger Partnerschaft mit unseren Kunden langlebige Häuser zu bauen, mit einer hohen architektonischen Qualität, individuell geplant und dabei energieeffizient und ressourcenschonend. Jedes STREIF-Haus ist einzigartig und wird speziell für jeden Kunden "maßgeschneidert" und gebaut. Passend zu den persönlichen Wünschen, dem vorgegebenen Budget und dem vorhandenen Grundstück planen und bauen wir jedes Haus mit viel Liebe zum Detail.
STREIF Haus - der Pionier der deutschen Fertighausbranche
Die langjährige Firmentradition des Unternehmens reicht bis in das Jahr 1929 zurück. In den 50er und 60er Jahren wurde in Deutschland schnell und viel Wohnraum für Familien benötigt, seitdem konzentrierte sich das Unternehmen auf die Entwicklung und Produktion von Fertighaustypen, die im Werk in großen Stückzahlen hergestellt werden konnten. So kann das Unternehmen auf 90.000 gebaute Hausobjekte zurückblicken und sich zu Recht als Pionier der deutschen Fertighausbranche bezeichnen.
Die neuen Energiesparhäuser - So baut man heute.
Unser Anspruch ist es, in enger Partnerschaft mit unseren Kunden langlebige Häuser zu bauen, mit einer hohen architektonischen Qualität, individuell geplant und dabei energieeffizient und ressourcenschonend. Jedes STREIF-Haus ist einzigartig und wird speziell für jeden Kunden "maßgeschneidert" und gebaut. Passend zu den persönlichen Wünschen, dem vorgegebenen Budget und dem vorhandenen Grundstück planen und bauen wir jedes Haus mit viel Liebe zum Detail.
Karte wird geladen...
Objektstandort
31688 Nienstädt
Lage & Infrastruktur
Objektstandort
31688 Nienstädt
Das Doppelhaus-links befindet sich in einem ruhigen Wohngebiet in Nienstädt, umgeben von einer hervorragenden Infrastruktur. In unmittelbarer Nähe finden Sie alles, was Sie für den täglichen Bedarf benötigen: Apotheke, Einkaufsmöglichkeiten, Grundschule, Kindergarten und weiterführende Schulen. Auch Spielplätze für die Kleinen sind schnell erreichbar. Die Anbindung an den öffentlichen Nahverkehr ist optimal - sowohl der Bahnhof als auch die Bushaltestelle sind nur wenige Minuten entfernt. Hier wohnen Sie in einer familienfreundlichen Umgebung mit vielen Freizeitmöglichkeiten.
Kontaktanfrage senden
Über den Anbieter
STREIF Haus GmbH
Josef-Streif-Straße 1
54595 Weinsheim
Kontakt
| Telefon | 06551 12 00 |
| Mobil | +49 174 6403310 |
| Website | www.streif.de |
Ansprechpartner/in
Herr Andreas Maurer
Weitere Angebote des Anbieters
21
Der optimale Weg zum richtigen Grundstück !
Haus
66386 St. Ingbert
Der Stellenwert des Grundstücks für Ihr Zuhause Zweifellos spielen die Beschaffenheit und Lage des Grundstücks eine ausschlaggebende Rolle bei der Planung ihres zukünftigen Zuhauses. Angefangen bei der Infrastruktur ...
607.000 €
Kaufpreis
186 m²
Wohnfläche
5
Zimmer
19
Stadtvilla in Thalexweiler
Haus
66822 Lebach
Tauchen Sie ein in die moderne Eleganz dieser zweigeschossigen Stadtvilla mit Walmdach - ein wahrhaft inspirierender Hausentwurf, der Ihnen ein Zuhause voller Licht und Lebensfreude bietet! An der sonnigen Südseite ...
448.529 €
Kaufpreis
154 m²
Wohnfläche
5
Zimmer
16
Zweifamilienhaus in Ensdorf !
Haus
66806 Ensdorf
Das großzügige Haus kann entweder für die große Familie, als Zweigenerationenhaus oder als Zweifamilienhaus individuell geplant werden. Behagliche Modernität strahlt der Zweifamilien-Hausentwurf des STREIF-Satteldachhau ...
569.000 €
Kaufpreis
178 m²
Wohnfläche
7
Zimmer
21
Einfamilienhaus auf parkähnlichem Grundstück !
Grundstück
66822 Lebach
Das behagliche Haus mit Satteldach punktet mit einem gut durchdachten Grundriss. Der offen gestaltete Wohn-/Ess- und Kochbereich ist lichtdurchflutet. Ein praktischer Hauswirtschaftsraum ist direkt neben der Küche ...
438.529 €
Kaufpreis
1.400 m²
Grundstücksfläche
21
Schönes Einfamilienhaus auf parkähnlichem Grundstück !
Haus
66822 Lebach
Das behagliche Haus mit Satteldach punktet mit einem gut durchdachten Grundriss. Der offen gestaltete Wohn-/Ess- und Kochbereich ist lichtdurchflutet. Ein praktischer Hauswirtschaftsraum ist direkt neben der Küche ...
438.529 €
Kaufpreis
152 m²
Wohnfläche
5
Zimmer