Großzügiger Bungalow mit Einliegerwohnung
495.000 €
Kaufpreis
206 m²
Wohnfläche
6,5
Zimmer
immobilien.de Nr.: 9521559
Objektnummer: 418371
Kaufpreis
| Kaufpreis | 495.000 € |
| Maklerprovision | keine Provision, courtagefrei |
Wohnfläche, Grundstück & Bausubstanz
| Wohnfläche | 206 m² |
| Grundstücksfläche | 1.000 m² |
| Zimmer | 6,5 |
| Baujahr | 1975 |
| Verfügbar ab | nach Absprache |
| Zustand | Gepflegt |
Energie
| Energieausweistyp | Bedarfsausweis |
| Energieeffizienzklasse | H |
| Endenergiebedarf | 310 |
| Heizungsart | Zentralheizung |
| Energieträger/Befeuerung | Öl |
Beschreibung der Immobilie
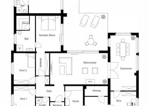
Auf einem ca. 1.000 m² großen, liebevoll angelegten Grundstück präsentiert sich dieser Bungalow mit ca. 185 m² Wohnfläche und 5,5 Zimmern, einer 1-Zimmer-Einliegerwohnung mit ca. 21 m² sowie umfangreichen Nebenflächen.
Ein ideales Zuhause für Familien oder für Wohnen und Arbeiten unter einem Dach.
Ihr Zuhause auf einem Blick:
Haupthaus mit ca. 185 m² Wohnfläche (Bj. 1975)
- 2 Kinderzimmer
- 1 Gäste-Duschbad mit Fenster
- 1 Elternschlafzimmer mit Ankleidebereich
- 1 Bad en Suite (vom Elternschlafzimmer) mit Dusche, Sauna und Fenster
- großzügiges Wohnzimmer mit traumhaftem, gemauertem Kamin
- separates Esszimmer
- kleines Büro mit separatem Eingang
- Küche mit Einbauküche und Miele-Geräten
- angrenzende Speisekammer
1-Zimmer-Einliegerwohnung mit separatem Eingang (Bj. 1985)
- bodentiefe Fenster
- Pantry-Küche
- Duschbad mit Fenster
Außenanlagen
Das Grundstück verfügt über ca. 1.000 m² Fläche und ist liebevoll angelegt. In Süd-West-Ausrichtung erwartet Sie eine großzügige, überdachte Terrasse mit einem gemauerten Kamin und Blick in den Garten. Neben der großzügigen Garage mit zwei PKW-Stellplätzen und elektrischen Toren (ca. 50 m²), verfügt das Grundstück auch über ein kleines Gartenhäuschen im Bereich des Hauseinganges, welches zusätzlichen Platz bietet.
Ein außergewöhnlich gepflegtes Grundstück, das viele Möglichkeiten bietet: großzügiges Familienwohnen, Mehrgenerationenkonzept oder Wohnen & Arbeiten. Die durchdachte Raumaufteilung und ein wunderschönes Grundstück vereinen sich hier zu einem besonderen Immobilienangebot.
Ein ideales Zuhause für Familien oder für Wohnen und Arbeiten unter einem Dach.
Ihr Zuhause auf einem Blick:
Haupthaus mit ca. 185 m² Wohnfläche (Bj. 1975)
- 2 Kinderzimmer
- 1 Gäste-Duschbad mit Fenster
- 1 Elternschlafzimmer mit Ankleidebereich
- 1 Bad en Suite (vom Elternschlafzimmer) mit Dusche, Sauna und Fenster
- großzügiges Wohnzimmer mit traumhaftem, gemauertem Kamin
- separates Esszimmer
- kleines Büro mit separatem Eingang
- Küche mit Einbauküche und Miele-Geräten
- angrenzende Speisekammer
1-Zimmer-Einliegerwohnung mit separatem Eingang (Bj. 1985)
- bodentiefe Fenster
- Pantry-Küche
- Duschbad mit Fenster
Außenanlagen
Das Grundstück verfügt über ca. 1.000 m² Fläche und ist liebevoll angelegt. In Süd-West-Ausrichtung erwartet Sie eine großzügige, überdachte Terrasse mit einem gemauerten Kamin und Blick in den Garten. Neben der großzügigen Garage mit zwei PKW-Stellplätzen und elektrischen Toren (ca. 50 m²), verfügt das Grundstück auch über ein kleines Gartenhäuschen im Bereich des Hauseinganges, welches zusätzlichen Platz bietet.
Ein außergewöhnlich gepflegtes Grundstück, das viele Möglichkeiten bietet: großzügiges Familienwohnen, Mehrgenerationenkonzept oder Wohnen & Arbeiten. Die durchdachte Raumaufteilung und ein wunderschönes Grundstück vereinen sich hier zu einem besonderen Immobilienangebot.
Ausstattungsmerkmale
| Anzahl der Etagen im Haus | 1 |
| Küche | Einbauküche |
| Bad | 3 |
| Bad | Dusche |
| Boden | Fliesen, Parkett |
| Balkone | 0 |
| Garten | |
| Terrassen | 1 |
| Barrierefrei | |
| Garage/Stellplätze | 2 |
Terrasse, Garten, Duschbad, Sauna, Einbauküche, Gäste-WC, Kamin, Barrierefrei, Parkett, Fliesen
Sonstige Informationen
Heizungsart: Zentralheizung
Energieträger: Öl
Makleranfragen nicht erwünscht. Nach § 7 UWG sind unaufgeforderte Kontaktaufnahmen durch Makler ohne ausdrückliche Einwilligung des Empfängers verboten!
ohne-makler (OM) ist weder Anbieter noch Vermittler der Immobilie. OM betreibt eine Plattform für Immobilieneigentümer, die unter anderem die gleichzeitige Veröffentlichung einzelner Inserate auf mehreren Immobilienportalen ermöglicht. Die Inhalte dieser Inserate werden ausschließlich von Dritten verantwortet. Für die Richtigkeit, Vollständigkeit oder Rechtmäßigkeit der Angaben übernimmt OM keine Haftung. Hinweise auf mögliche Rechtsverstöße können jederzeit gemeldet werden und werden nach Prüfung umgehend bearbeitet.
Energieträger: Öl
Makleranfragen nicht erwünscht. Nach § 7 UWG sind unaufgeforderte Kontaktaufnahmen durch Makler ohne ausdrückliche Einwilligung des Empfängers verboten!
ohne-makler (OM) ist weder Anbieter noch Vermittler der Immobilie. OM betreibt eine Plattform für Immobilieneigentümer, die unter anderem die gleichzeitige Veröffentlichung einzelner Inserate auf mehreren Immobilienportalen ermöglicht. Die Inhalte dieser Inserate werden ausschließlich von Dritten verantwortet. Für die Richtigkeit, Vollständigkeit oder Rechtmäßigkeit der Angaben übernimmt OM keine Haftung. Hinweise auf mögliche Rechtsverstöße können jederzeit gemeldet werden und werden nach Prüfung umgehend bearbeitet.
Karte wird geladen...
Objektstandort
Quarrendorfer Weg 8
21442 Toppenstedt
- Niedersachsen
Lage & Infrastruktur
Objektstandort
Quarrendorfer Weg 8
21442 Toppenstedt
- Niedersachsen
Toppenstedt liegt am nördlichen Rand der Lüneburger Heide und befindet sich eingebettet in eine ländlich-naturnahe Umgebung rund um den Garlstorfer Wald. Einkaufsmöglichkeiten für den täglichen Bedarf, Gastronomien sowie Arztpraxen sind schnell erreichbar. Familien profitieren von kurzen Wegen zu Kindertagesstätten und Schulen im näheren Umfeld.
Toppenstedt verbindet ruhiges, naturnahes Wohnen mit sehr guter Anbindung sowohl an Großstadt als auch an regionale Zentren. Die Nähe zu Hamburg, Winsen (Luhe) und Lüneburg macht den Ort ideal für Pendler oder Menschen, die ländliches Leben schätzen, aber auf urbane Infrastruktur nicht verzichten wollen. Die kurzen Distanzen zur A7 und zur A39 unterstreichen die gute Verkehrsanbindung — ein Pluspunkt für Familien, Pendler oder Investoren. Die Kombination aus Natur, Ruhe, ländlichem Charme und gleichzeitig guter Erreichbarkeit macht Toppenstedt zu einem attraktiven Wohnort, wenn man Leben und Mobilität verbinden möchte.
Infrastruktur (im Umkreis von 5 km):
Apotheke, Lebensmittel-Discount, Allgemeinmediziner, Kindergarten, Grundschule, Öffentliche Verkehrsmittel
Toppenstedt verbindet ruhiges, naturnahes Wohnen mit sehr guter Anbindung sowohl an Großstadt als auch an regionale Zentren. Die Nähe zu Hamburg, Winsen (Luhe) und Lüneburg macht den Ort ideal für Pendler oder Menschen, die ländliches Leben schätzen, aber auf urbane Infrastruktur nicht verzichten wollen. Die kurzen Distanzen zur A7 und zur A39 unterstreichen die gute Verkehrsanbindung — ein Pluspunkt für Familien, Pendler oder Investoren. Die Kombination aus Natur, Ruhe, ländlichem Charme und gleichzeitig guter Erreichbarkeit macht Toppenstedt zu einem attraktiven Wohnort, wenn man Leben und Mobilität verbinden möchte.
Infrastruktur (im Umkreis von 5 km):
Apotheke, Lebensmittel-Discount, Allgemeinmediziner, Kindergarten, Grundschule, Öffentliche Verkehrsmittel
Kontaktanfrage senden
Über den Anbieter
OM PropTech GmbH
Humboldtstraße 25a
21509 Glinde
Kontakt
| Telefon | - |
| Fax | - |
| Website | www.ohne-makler.net |
Ansprechpartner/in
Privat vom Eigentümer
Weitere Angebote des Anbieters
12
2Raumwohnung mit Wohnküche
Wohnung
58452 Witten
Diese Wohnung wird nur an maximal zwei Personen über 25 Jahren, die arbeiten, vermietet. Voraussetzung für einen Mietvertrag ist Berufstätig und Deutschsprachigkeit. Besichtigungen können nur Vormittags angeboten ...
450 €
Kaltmiete (netto)
65 m²
Wohnfläche
2
Zimmer
21
Traumwohnung! 3-Zi Wohnung m. Garten - KFW 40 NH
Wohnung
94086 Bad Griesbach im Rottal
360°-Rundgang: https://www.ohne-makler.net/panorama/360066/ Traumhaft Wohnen & Leben in Bad Griesbach Hier kommt Architektur und Wohngefühl in Einklang. Die Wohnungen vereinen ein angenehmes Gefühl von Qualität und ...
1.100 €
Kaltmiete (netto)
103,49 m²
Wohnfläche
3
Zimmer
23
Erstbezug nach Kernsanierung: helle 3-Zi-Wohnung (92 ...
Wohnung
14109 Berlin
360°-Rundgang: https://www.ohne-makler.net/panorama/415591/ Wohnungsbeschreibung Diese hochwertig kernsanierte 3-Zimmerwohnung im zweiten Obergeschoss (oberste Etage) eines gepflegten Mehrfamilienhauses aus den 1970er ...
620.000 €
Kaufpreis
92 m²
Wohnfläche
3
Zimmer
31
ruhige WG Zimmer, alles NEU , Top Lage
Zimmer
90439 Nürnberg
Bei diesem ansprechenden Angebot handelt es sich um möblierte WG - Zimmer in einer möblierten Wohnung. Die Wohnung wurde hatte eine komplett Sanierung 2025 . Das attraktive Zimmer Z2 in einer 2er WG liegt im ...
499 €
Kaltmiete (netto)
15,9 m²
Wohnfläche
1
Zimmer
14
Frechen-City: Einfamilienhaus, Garage, Innenhof, Top ...
Haus
50226 Frechen
Das Haus ist für maximal zwei Personen geeignet. Es verfügt über ein Voll- sowie ein Dachgeschoss. Neben einer angenehmen, ruhigen Wohnlage hat das Haus ein besonderes Highlight zu bieten: der sehr private, gemütliche ...
1.150 €
Kaltmiete (netto)
75 m²
Wohnfläche
3
Zimmer