Neubau mit Fußbodenheizung im Erstbezug / WBS 180
803,42 €
Kaltmiete (netto)
1.124,78 €
Warmmiete
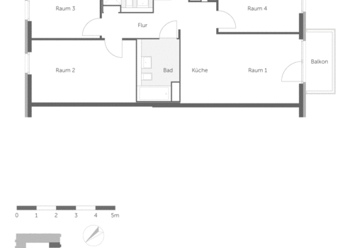
84,57 m²
Wohnfläche
4
Zimmer
immobilien.de Nr.: 9521502
Objektnummer: 6011/31047/0102/0043
Dateien
Mietpreis & Nebenkosten
| Kaltmiete (netto) | 803,42 € |
| Warmmiete | 1.124,78 € |
| Nebenkosten | 160,68 € |
| Heizkosten | 160,68 € |
| Kaution | 2410,26 € |
Wohnfläche, Grundstück & Bausubstanz
| Wohnfläche | 84,57 m² |
| Zimmer | 4 |
| Baujahr | 2025 |
| Verfügbar ab | 01.03.2026 |
Energie
| Energieausweistyp | Bedarfsausweis |
| Energieeffizienzklasse | B |
| Endenergiebedarf | 58.90 |
| Heizungsart | Fernwärme |
| Energieträger/Befeuerung | Fernwärme |
Beschreibung der Immobilie
Willkommen im naturnahen Quartier „Neues Gartenfeld“ in Siemensstadt. Diese Neubauwohnung im Erstbezug lässt kaum Wünsche offen und präsentiert sich mit strapazierfähigen Vinylboden in Holzoptik, Fußbodenheizung, hochwertigen Fenstern und einem modern gefliesten Bad. Erfreuen Sie sich an dem geräumigen Balkon, der viel Platz zum Entspannen bietet. Der offen gehaltene Wohn- und Küchenbereich lässt vielfältige Gestaltungsmöglichkeiten zu. Der Gebäudekomplex verfügt über keine Mieterkeller. Bitte beachten Sie, dass für die Anmietung ein Wohnberechtigungsschein 140, 160 oder 180 erforderlich ist. Sie sind an einer Besichtigung interessiert? Dann senden Sie uns bitte eine einfache Anfrage über den entsprechenden Button ("Anbieter kontaktieren" oder "Anfrage senden").
Ausstattungsmerkmale
| Anzahl der Etagen im Haus | 6 |
| Inserat befindet sich im Stockwerk | 4 |
| Balkone | 1 |
| Fahrstuhl | |
| Haustiere |
Fernheizung/Zentralheizung, Fern-/Zentralwarmwasserversorgung, Handtuchheizkörper, Fußbodenheizung, Barrierearme Wohnungsgestaltung
Sonstige Informationen
Hinweis zu Ihrem Schutz: Wir vermieten provisionsfrei gemäß § 2 WoVermG. Personen, die im Auftrag der Gewobag tätig sind, dürfen keine Provision von Ihnen verlangen.
Anbieter
Eigentümer/Vermieter oder Verwalter des jeweiligen Mietobjekts ist Gewobag Wohnungsbau-Aktien- gesellschaft Berlin. Die Gewobag MB Mieterberatungsgesellschaft mbH übernimmt den Vermietungsservice für diese Gesellschaft. Weitere Informationen finden Sie unter www.gewobag.de/datenschutz .
Anbieter
Eigentümer/Vermieter oder Verwalter des jeweiligen Mietobjekts ist Gewobag Wohnungsbau-Aktien- gesellschaft Berlin. Die Gewobag MB Mieterberatungsgesellschaft mbH übernimmt den Vermietungsservice für diese Gesellschaft. Weitere Informationen finden Sie unter www.gewobag.de/datenschutz .
Karte wird geladen...
Objektstandort
Rotfederstraße 66
13599 Berlin
Lage & Infrastruktur
Objektstandort
Rotfederstraße 66
13599 Berlin
Insellage trifft Industriecharme und frische Ideen: In Berlin-Spandau entsteht ein neues, naturnahes Quartier. Eingerahmt von Schifffahrtskanälen entsteht in den kommenden Jahren eine „Stadt in der Stadt“ – unweit von Havel, Tegeler See und Jungfernheide, ganzheitlich konzipiert, mit vielfältigem Flair und bezahlbaren Mieten.
Kontaktanfrage senden
Über den Anbieter
Gewobag Wohnungsbau-Aktiengesellschaft Berlin
Alt-Moabit 101 A
10559 Berlin
Kontakt
| Telefon | +49 30 47084000 |
| Website | www.gewobag.de |
Ansprechpartner/in
Gewobag MB Mieterberat.ges. mbH (Vermietungs-Service)
Weitere Angebote des Anbieters
15
Großzügige Neubauwohnung an der Dahme mit 2 Bädern, ...
Wohnung
12557 Berlin
Willkommen in dieser wunderschönen und hellen Wohnung am Ufer der Dahme. Diese Neubauwohnung im Erstbezug lässt kaum Wünsche offen und präsentiert sich mit strapazierfähigen Vinylboden in Holzoptik, Fußbodenheizung, ...
1.692,73 €
Kaltmiete (netto)
116,74 m²
Wohnfläche
4
Zimmer
12
Leben am Wasser / Geräumige Wohnung mit Fußbodenheizung ...
Wohnung
12557 Berlin
Willkommen in dieser wunderschönen und hellen Wohnung am Ufer der Dahme. Diese Neubauwohnung im Erstbezug lässt kaum Wünsche offen und präsentiert sich mit strapazierfähigen Vinylboden in Holzoptik, Fußbodenheizung, ...
1.268,02 €
Kaltmiete (netto)
79,85 m²
Wohnfläche
3
Zimmer
15
Geräumige Neubauwohnung an der Dahme mit ...
Wohnung
12557 Berlin
Willkommen in dieser wunderschönen und hellen Wohnung am Ufer der Dahme. Diese Neubauwohnung im Erstbezug lässt kaum Wünsche offen und präsentiert sich mit strapazierfähigen Vinylboden in Holzoptik, Fußbodenheizung, ...
1.802,06 €
Kaltmiete (netto)
113,48 m²
Wohnfläche
4
Zimmer
13
Geräumige Neubauwohnung an der Dahme mit ...
Wohnung
12557 Berlin
Willkommen in dieser wunderschönen und hellen Wohnung am Ufer der Dahme. Diese Neubauwohnung im Erstbezug lässt kaum Wünsche offen und präsentiert sich mit strapazierfähigen Vinylboden in Holzoptik, Fußbodenheizung, ...
1.737,91 €
Kaltmiete (netto)
109,44 m²
Wohnfläche
5
Zimmer
11
Wohnen am Wasser / Achtung, nur mit passender ...
Wohnung
12557 Berlin
Sie sind im Besitz eines gültigen WBS (bis 160, 180 oder 220 %) für zwei Räume oder liegen mit Ihrem Haushaltsnettoeinkommen in der entsprechenden Einkommensspanne? Dann sind Sie vielleicht der/ die zukünftige Mieter/ ...
623,3 €
Kaltmiete (netto)
54,2 m²
Wohnfläche
2
Zimmer