Doppelbungalow in Eisenhüttenstadt/ OT Fürstenberg
410.000 €
Kaufpreis
160 m²
Wohnfläche
6
Zimmer
immobilien.de Nr.: 9520810
Objektnummer: 438681
Kaufpreis
| Kaufpreis | 410.000 € |
| Maklerprovision | keine Provision, courtagefrei |
Wohnfläche, Grundstück & Bausubstanz
| Wohnfläche | 160 m² |
| Grundstücksfläche | 800 m² |
| Zimmer | 6 |
| Baujahr | 2014 |
| Verfügbar ab | 01.06.2026 |
| Zustand | Gepflegt |
Energie
| Energieausweistyp | Bedarfsausweis |
| Energieeffizienzklasse | D |
| Endenergiebedarf | 100 |
| Heizungsart | Fußbodenheizung |
| Energieträger/Befeuerung | Gas |
Beschreibung der Immobilie
Objektbeschreibung:
Die im Jahr 2014 errichtete Immobilie überzeugt durch zeitgemäße Architektur, energieeffiziente Technik und eine durchdachte, barrierearme Raumaufteilung.
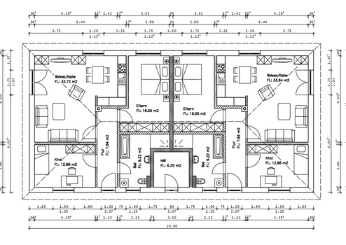
Der Doppelbungalow besteht aus zwei identischen, vollständig getrennten Wohneinheiten mit jeweils ca. 80 m² Wohnfläche. Beide Wohnungen verfügen über 3 Zimmer und bieten durch die ebenerdige Bauweise komfortables Wohnen ohne Treppen – perfekt für Jung und Alt.
Großzügige Fensterflächen sorgen für helle, freundliche Räume. Die offene Küche bildet mit dem Wohnzimmer das Herzstück der Wohnung. Ein Kamin schafft eine besonders gemütliche Atmosphäre, während die Fußbodenheizung in allen Räumen für angenehmen Wohnkomfort sorgt.
Die modern ausgestatteten Badezimmer verfügen sowohl über eine Badewanne als auch über eine ebenerdige Dusche.
Von jedem Wohnbereich gelangt man direkt auf die eigene Terrasse mit angrenzendem Gartenanteil von jeweils ca. 170 m² – ideal zum Entspannen oder für gesellige Stunden im Freien. Zu jeder Einheit gehört zudem ein eigenes Gartenhaus.
Die Immobilie ist derzeit vollständig vermietet und bietet somit eine sofortige Einnahmequelle für Kapitalanleger. Beide Wohneinheiten sind seit der Fertigstellung im Jahr 2014 durchgehend vermietet gewesen – Leerstände oder Mietrückstände gab es in diesem Zeitraum nicht.
Zum 01.06.2026 wird jedoch die hintere Wohneinheit frei, wodurch sich für Käufer eine besonders attraktive Gelegenheit eröffnet.
Flexible Nutzungsmöglichkeiten für Käufer
1. Eigennutzung mit zusätzlicher Mieteinnahme
Der zukünftige Eigentümer kann die freiwerdende Wohnung selbst beziehen und gleichzeitig die zweite, weiterhin vermietete Einheit als regelmäßige Einnahmequelle nutzen. Diese zusätzliche Miete kann bei einer möglichen Immobilienfinanzierung positiv berücksichtigt werden und die monatliche Belastung deutlich reduzieren.
2. Klassische Kapitalanlage
Alternativ kann die freiwerdende Wohnung erneut vermietet werden. In diesem Fall profitieren Investoren weiterhin von zwei vermieteten Einheiten und stabilen Mieteinnahmen.
Dank der attraktiven Ausstattung, der modernen Bauweise und der beliebten Wohnform als ebenerdiger Bungalow mit Gartenanteil zeigte sich in der Vergangenheit eine sehr konstante Nachfrage nach beiden Wohnungen, sodass eine erneute Vermietung erfahrungsgemäß gut realisierbar ist.
Diese Kombination aus sofortiger Vermietungssicherheit und gleichzeitig möglicher Eigennutzung macht die Immobilie sowohl für Kapitalanleger als auch für Käufer mit Eigennutzungswunsch besonders interessant.
Ausstattung im Überblick
Baujahr: 2014
Massivbauweise als Doppelbungalow
Gasheizung
Solarthermie
Fußbodenheizung in beiden Wohneinheiten
Rollläden an allen Fenstern
Kamin in jeder Wohnung
HWR von außen separat zugänglich
Wohneinheiten (je Wohnung)
ca. 80 m² Wohnfläche
3 Zimmer
offene Wohnküche
die Küche der freiwerdenden Wohnung gehört zum Inventar
Bad mit Badewanne und ebenerdiger Dusche in jeder Wohnung
Terrasse zu jeder Wohnung
ca. 170 m² eigener Gartenanteil
eigenes Gartenhaus
Grundstück & Außenbereich
Grundstücksgröße: ca. 800 m²
Carport mit 2 Stellplätzen
gepflegtes, großzügiges und eingezäuntes Grundstück
elektrisches Hoftor
Die im Jahr 2014 errichtete Immobilie überzeugt durch zeitgemäße Architektur, energieeffiziente Technik und eine durchdachte, barrierearme Raumaufteilung.
Der Doppelbungalow besteht aus zwei identischen, vollständig getrennten Wohneinheiten mit jeweils ca. 80 m² Wohnfläche. Beide Wohnungen verfügen über 3 Zimmer und bieten durch die ebenerdige Bauweise komfortables Wohnen ohne Treppen – perfekt für Jung und Alt.
Großzügige Fensterflächen sorgen für helle, freundliche Räume. Die offene Küche bildet mit dem Wohnzimmer das Herzstück der Wohnung. Ein Kamin schafft eine besonders gemütliche Atmosphäre, während die Fußbodenheizung in allen Räumen für angenehmen Wohnkomfort sorgt.
Die modern ausgestatteten Badezimmer verfügen sowohl über eine Badewanne als auch über eine ebenerdige Dusche.
Von jedem Wohnbereich gelangt man direkt auf die eigene Terrasse mit angrenzendem Gartenanteil von jeweils ca. 170 m² – ideal zum Entspannen oder für gesellige Stunden im Freien. Zu jeder Einheit gehört zudem ein eigenes Gartenhaus.
Die Immobilie ist derzeit vollständig vermietet und bietet somit eine sofortige Einnahmequelle für Kapitalanleger. Beide Wohneinheiten sind seit der Fertigstellung im Jahr 2014 durchgehend vermietet gewesen – Leerstände oder Mietrückstände gab es in diesem Zeitraum nicht.
Zum 01.06.2026 wird jedoch die hintere Wohneinheit frei, wodurch sich für Käufer eine besonders attraktive Gelegenheit eröffnet.
Flexible Nutzungsmöglichkeiten für Käufer
1. Eigennutzung mit zusätzlicher Mieteinnahme
Der zukünftige Eigentümer kann die freiwerdende Wohnung selbst beziehen und gleichzeitig die zweite, weiterhin vermietete Einheit als regelmäßige Einnahmequelle nutzen. Diese zusätzliche Miete kann bei einer möglichen Immobilienfinanzierung positiv berücksichtigt werden und die monatliche Belastung deutlich reduzieren.
2. Klassische Kapitalanlage
Alternativ kann die freiwerdende Wohnung erneut vermietet werden. In diesem Fall profitieren Investoren weiterhin von zwei vermieteten Einheiten und stabilen Mieteinnahmen.
Dank der attraktiven Ausstattung, der modernen Bauweise und der beliebten Wohnform als ebenerdiger Bungalow mit Gartenanteil zeigte sich in der Vergangenheit eine sehr konstante Nachfrage nach beiden Wohnungen, sodass eine erneute Vermietung erfahrungsgemäß gut realisierbar ist.
Diese Kombination aus sofortiger Vermietungssicherheit und gleichzeitig möglicher Eigennutzung macht die Immobilie sowohl für Kapitalanleger als auch für Käufer mit Eigennutzungswunsch besonders interessant.
Ausstattung im Überblick
Baujahr: 2014
Massivbauweise als Doppelbungalow
Gasheizung
Solarthermie
Fußbodenheizung in beiden Wohneinheiten
Rollläden an allen Fenstern
Kamin in jeder Wohnung
HWR von außen separat zugänglich
Wohneinheiten (je Wohnung)
ca. 80 m² Wohnfläche
3 Zimmer
offene Wohnküche
die Küche der freiwerdenden Wohnung gehört zum Inventar
Bad mit Badewanne und ebenerdiger Dusche in jeder Wohnung
Terrasse zu jeder Wohnung
ca. 170 m² eigener Gartenanteil
eigenes Gartenhaus
Grundstück & Außenbereich
Grundstücksgröße: ca. 800 m²
Carport mit 2 Stellplätzen
gepflegtes, großzügiges und eingezäuntes Grundstück
elektrisches Hoftor
Ausstattungsmerkmale
| Anzahl der Etagen im Haus | 1 |
| Küche | Einbauküche |
| Bad | 2 |
| Boden | Fliesen, Laminat |
| Balkone | 0 |
| Garten | |
| Terrassen | 1 |
| Barrierefrei | |
| Carport | 1 |
Terrasse, Garten, Einbauküche, Kamin, Barrierefrei, Laminat, Fliesen
Sonstige Informationen
Heizungsart: Fußbodenheizung
Energieträger: Gas
Makleranfragen nicht erwünscht. Nach § 7 UWG sind unaufgeforderte Kontaktaufnahmen durch Makler ohne ausdrückliche Einwilligung des Empfängers verboten!
ohne-makler (OM) ist weder Anbieter noch Vermittler der Immobilie. OM betreibt eine Plattform für Immobilieneigentümer, die unter anderem die gleichzeitige Veröffentlichung einzelner Inserate auf mehreren Immobilienportalen ermöglicht. Die Inhalte dieser Inserate werden ausschließlich von Dritten verantwortet. Für die Richtigkeit, Vollständigkeit oder Rechtmäßigkeit der Angaben übernimmt OM keine Haftung. Hinweise auf mögliche Rechtsverstöße können jederzeit gemeldet werden und werden nach Prüfung umgehend bearbeitet.
Energieträger: Gas
Makleranfragen nicht erwünscht. Nach § 7 UWG sind unaufgeforderte Kontaktaufnahmen durch Makler ohne ausdrückliche Einwilligung des Empfängers verboten!
ohne-makler (OM) ist weder Anbieter noch Vermittler der Immobilie. OM betreibt eine Plattform für Immobilieneigentümer, die unter anderem die gleichzeitige Veröffentlichung einzelner Inserate auf mehreren Immobilienportalen ermöglicht. Die Inhalte dieser Inserate werden ausschließlich von Dritten verantwortet. Für die Richtigkeit, Vollständigkeit oder Rechtmäßigkeit der Angaben übernimmt OM keine Haftung. Hinweise auf mögliche Rechtsverstöße können jederzeit gemeldet werden und werden nach Prüfung umgehend bearbeitet.
Karte wird geladen...
Objektstandort
Wilhelmstraße 13
15890 Eisenhüttenstadt
- Brandenburg
Lage & Infrastruktur
Objektstandort
Wilhelmstraße 13
15890 Eisenhüttenstadt
- Brandenburg
Lagebeschreibung:
Fürstenberg, ein gewachsener und besonders charmanter Ortsteil von Eisenhüttenstadt, verbindet ruhiges Wohnen mit einer hervorragend ausgebauten Infrastruktur. Die grüne Umgebung, gepflegte Wohnstraßen und die Nähe zur Natur schaffen eine angenehme Wohnatmosphäre für Familien, Paare und Senioren gleichermaßen.
Im direkten Umfeld finden sich zahlreiche Einrichtungen des täglichen Bedarfs: Verschiedene Einkaufsmöglichkeiten, Ärzte unterschiedlicher Fachrichtungen sowie Apotheken sind bequem erreichbar und gewährleisten eine optimale Versorgung. Auch Familien profitieren von kurzen Wegen – eine Schule und Kindergärten befinden sich in der Nähe und sind gut erreichbar.
Die Verkehrsanbindung ist ebenfalls komfortabel: Der Bahnhof von Eisenhüttenstadt bietet regelmäßige Zugverbindungen in die umliegenden Städte und nach Berlin. Ergänzt wird dies durch eine gut ausgebaute Busverbindung, die eine flexible Mobilität auch ohne eigenen PKW ermöglicht.
Infrastruktur (im Umkreis von 5 km):
Apotheke, Lebensmittel-Discount, Allgemeinmediziner, Kindergarten, Grundschule, Öffentliche Verkehrsmittel
Fürstenberg, ein gewachsener und besonders charmanter Ortsteil von Eisenhüttenstadt, verbindet ruhiges Wohnen mit einer hervorragend ausgebauten Infrastruktur. Die grüne Umgebung, gepflegte Wohnstraßen und die Nähe zur Natur schaffen eine angenehme Wohnatmosphäre für Familien, Paare und Senioren gleichermaßen.
Im direkten Umfeld finden sich zahlreiche Einrichtungen des täglichen Bedarfs: Verschiedene Einkaufsmöglichkeiten, Ärzte unterschiedlicher Fachrichtungen sowie Apotheken sind bequem erreichbar und gewährleisten eine optimale Versorgung. Auch Familien profitieren von kurzen Wegen – eine Schule und Kindergärten befinden sich in der Nähe und sind gut erreichbar.
Die Verkehrsanbindung ist ebenfalls komfortabel: Der Bahnhof von Eisenhüttenstadt bietet regelmäßige Zugverbindungen in die umliegenden Städte und nach Berlin. Ergänzt wird dies durch eine gut ausgebaute Busverbindung, die eine flexible Mobilität auch ohne eigenen PKW ermöglicht.
Infrastruktur (im Umkreis von 5 km):
Apotheke, Lebensmittel-Discount, Allgemeinmediziner, Kindergarten, Grundschule, Öffentliche Verkehrsmittel
Kontaktanfrage senden
Über den Anbieter
OM PropTech GmbH
Humboldtstraße 25a
21509 Glinde
Kontakt
| Telefon | - |
| Fax | - |
| Website | www.ohne-makler.net |
Ansprechpartner/in
Privat vom Eigentümer
Weitere Angebote des Anbieters
12
Großzügige 5 Zimmer Wohnung mit Terrasse und Garten
Wohnung
91080 Uttenreuth
Diese schöne, geräumige 5 Zimmer Wohnung befindet sich im EG eines Zweifamlienhauses und wurde 2017 komplett renoviert. Beim Betreten der Wohnung überrascht der große Flur. Von hier gehen alle Räumlichkeiten ab. Die ...
1.950 €
Kaltmiete (netto)
140 m²
Wohnfläche
5
Zimmer
5
Frisch renoviertes 1-Zimmer-Apartment in Fulda – ...
Wohnung
36037 Fulda
Frisch renoviertes 1-Zimmer-Apartment in Fulda – Stadtmitte Ab sofort steht im Erdgeschoss ein modern saniertes Apartment zur Verfügung: - Wohnfläche: ca. 40 m² - Zimmer: 1 (Küchenbereich + separates Zimmer) - ...
580 €
Kaltmiete (netto)
40 m²
Wohnfläche
1
Zimmer
5
Attraktive 2-Zimmer-Wohnung in Fulda – Stadtmitte
Wohnung
36037 Fulda
Attraktive frisch renovierte 2-Zimmer-Wohnung in Fulda – Stadtmitte Ab sofort steht im 3. Obergeschoss ein modern saniertes Apartment zur Verfügung: - Wohnfläche: ca. 55 m² - Zimmer: 2 - separate Küche und Badezimmer - ...
780 €
Kaltmiete (netto)
55 m²
Wohnfläche
2
Zimmer
7
Moderne 1-Zimmer Wohnung in Paderborner Top-Lage
Wohnung
33102 Paderborn
Diese charmante 1-Zimmer-Wohnung mit ca. 21,93 m² befindet sich im beliebten Riemekeviertel – einer der gefragtesten Lagen in Paderborn. Hier wohnen Sie zentral und dennoch angenehm ruhig. Die Wohnung liegt im 1. ...
430 €
Kaltmiete (netto)
21,93 m²
Wohnfläche
1
Zimmer
3
Urbanes Leben trifft Naturidylle – Ihr neues Zuhause ...
Wohnung
90491 Nürnberg
Urbanes Design-Juwel im Nürnberger Osten: Erstbezug nach Luxus-Sanierung Wo Ästhetik auf Lebensqualität trifft Willkommen in Ihrem neuen Zuhause. Diese ca. 65 m² große 2-Zimmer-Wohnung im Erdgeschoss mit Fussbodenheizun ...
1.290 €
Kaltmiete (netto)
65 m²
Wohnfläche
2
Zimmer