***Zentral und einladend: Entdecken Sie Ihr neues Wohnparadies mit Klinkeraktion!***
742.682 €
Kaufpreis
183,88 m²
Wohnfläche
25 m²
Nutzfläche
6
Zimmer
immobilien.de Nr.: 9520115
Objektnummer: KR260318_246AH
Kaufpreis
| Kaufpreis | 742.682 € |
Wohnfläche, Grundstück & Bausubstanz
| Wohnfläche | 183,88 m² |
| Nutzfläche | 25 m² |
| Grundstücksfläche | 664 m² |
| Zimmer | 6 |
| Baujahr | 2026 |
| Verfügbar ab | 2026 |
| Zustand | Projektiert |
Energie
| Energietyp | KfW-40 |
| Heizungsart | Zentralheizung |
| Energieträger/Befeuerung | Luft-Wärme-Pumpe |
Beschreibung der Immobilie
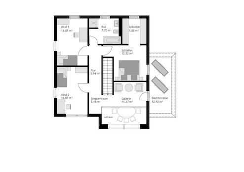
Erfüllen Sie sich den Traum von einer modernen Stadtvilla, die ganz nach Ihren Wünschen und Bedürfnissen gestaltet wird. Dieses beeindruckende Projekt umfasst eine Wohnfläche von 183,88 m², verteilt auf zwei Etagen und sechs großzügigen Zimmern. Das Herz dieses Hauses sind die drei Schlafzimmer und die zwei luxuriös ausgestatteten Badezimmer, die mit Dusche, Wanne und Fenstern für viel Tageslicht ausgestattet sind. Ein zusätzliches Gäste-WC sorgt für Komfort im Alltag. Die Villa steht auf einem 491 m² großen Grundstück in einem attraktiven Wohngebiet von Salzhemmendorf, das Ihnen sowohl Ruhe als auch hervorragende Anbindungen bietet.
Ausstattungsmerkmale
| Anzahl der Etagen im Haus | 2 |
| Küche | Offene Küche |
| Bad | 2 |
| Bad | Dusche, Wanne, Fenster |
| Boden | Fliesen |
| Terrassen | 1 |
| Barrierefrei |
Die Luxusausstattung dieser Stadtvilla lässt keine Wünsche offen: Hochwertige Fliesenböden sorgen für ein elegantes Ambiente und können nach Ihren individuellen Vorlieben ergänzt werden. Die moderne Wärmepumpe als Befeuerungsart garantiert nicht nur umweltfreundliches Heizen, sondern auch niedrige Betriebskosten. Zudem erfüllt das Haus den KFW40 Standard, was Ihnen einen hohen energetischen Nutzen bietet. Diese Premium-Ausstattung wird Ihr Leben komfortabel und effizient gestalten.
Sonstige Informationen
Achtung: Klinkeraktion ist verlängert!
STREIF Haus - der Pionier der deutschen Fertighausbranche
Die langjährige Firmentradition des Unternehmens reicht bis in das Jahr 1929 zurück. In den 50er und 60er Jahren wurde in Deutschland schnell und viel Wohnraum für Familien benötigt, seitdem konzentrierte sich das Unternehmen auf die Entwicklung und Produktion von Fertighaustypen, die im Werk in großen Stückzahlen hergestellt werden konnten. So kann das Unternehmen auf 90.000 gebaute Hausobjekte zurückblicken und sich zu Recht als Pionier der deutschen Fertighausbranche bezeichnen.
Die neuen Energiesparhäuser - So baut man heute.
Unser Anspruch ist es, in enger Partnerschaft mit unseren Kunden langlebige Häuser zu bauen, mit einer hohen architektonischen Qualität, individuell geplant und dabei energieeffizient und ressourcenschonend. Jedes STREIF-Haus ist einzigartig und wird speziell für jeden Kunden "maßgeschneidert" und gebaut. Passend zu den persönlichen Wünschen, dem vorgegebenen Budget und dem vorhandenen Grundstück planen und bauen wir jedes Haus mit viel Liebe zum Detail.
STREIF Haus - der Pionier der deutschen Fertighausbranche
Die langjährige Firmentradition des Unternehmens reicht bis in das Jahr 1929 zurück. In den 50er und 60er Jahren wurde in Deutschland schnell und viel Wohnraum für Familien benötigt, seitdem konzentrierte sich das Unternehmen auf die Entwicklung und Produktion von Fertighaustypen, die im Werk in großen Stückzahlen hergestellt werden konnten. So kann das Unternehmen auf 90.000 gebaute Hausobjekte zurückblicken und sich zu Recht als Pionier der deutschen Fertighausbranche bezeichnen.
Die neuen Energiesparhäuser - So baut man heute.
Unser Anspruch ist es, in enger Partnerschaft mit unseren Kunden langlebige Häuser zu bauen, mit einer hohen architektonischen Qualität, individuell geplant und dabei energieeffizient und ressourcenschonend. Jedes STREIF-Haus ist einzigartig und wird speziell für jeden Kunden "maßgeschneidert" und gebaut. Passend zu den persönlichen Wünschen, dem vorgegebenen Budget und dem vorhandenen Grundstück planen und bauen wir jedes Haus mit viel Liebe zum Detail.
Karte wird geladen...
Objektstandort
31708 Ahnsen
Lage & Infrastruktur
Objektstandort
31708 Ahnsen
Das Objekt befindet sich in einem attraktiven Wohngebiet in Ahnsen auf einem 664 m² großen Grundstück. Die Lage besticht durch ihre hervorragende Infrastruktur: In unmittelbarer Nähe finden Sie eine Apotheke, Einkaufsmöglichkeiten, einen Bahnhof sowie Busverbindungen. Für Familien sind Grundschulen, weiterführende Schulen, Kindergärten und Spielplätze schnell erreichbar.
Kontaktanfrage senden
Über den Anbieter
STREIF Haus GmbH
Josef-Streif-Straße 1
54595 Weinsheim
Kontakt
| Telefon | 06551 12 00 |
| Mobil | +49 174 6403310 |
| Website | www.streif.de |
Ansprechpartner/in
Herr Andreas Maurer
Weitere Angebote des Anbieters
15
HOLZVERKLEIDETES TRAUMHAUS MIT SATTELDACH
Haus
56651 Niederzissen
Unser FLEXIHAUS - FAMILYBASE: Raumwunder mit Verstand - ökologisch durchdacht. Profitieren Sie von einem Haus, das schon alles mitbringt: KfW 40+ Standard, Photovoltaikanlage, Batteriespeicher, gedämmte Bodenplatte, ...
452.000 €
Kaufpreis
130 m²
Wohnfläche
4
Zimmer
19
Stadtvilla mit Stil - Exklusiv & zeitlos schön! inkl. ...
Haus
56751 Polch
Erleben Sie großzügiges Wohnen mit stilvoller Architektur und individueller Raumplanung! Die City XL von STREIF begeistert auf ca. 144 m² Netto-Raumfläche mit klaren Linien, moderner Gestaltung und flexiblen ...
577.000 €
Kaufpreis
144 m²
Wohnfläche
5
Zimmer
19
Rheinblick pur - Traumlage mit Architektenplanung
Haus
56341 Kamp-Bornhofen
Willkommen in Ihrem neuen Zuhause! Dieses moderne Doppelhaushälfte wurde von einem Architekten mit höchstem Anspruch an Ästhetik, Funktionalität und Lebensqualität entworfen. Das Haus vereint klare Linien, hochwertige ...
699.700 €
Kaufpreis
150 m²
Wohnfläche
5
Zimmer
19
Wohnen auf einer Ebene im Streif Haus Bungalow
Haus
56753 Mertloch
Der Bungalow umfasst 2 Schlafzimmer sowie ein Badezimmer mit Dusche, Wanne und Fenster, ergänzt durch ein zusätzliches Gäste-WC. Die Wahl der Bodenbeläge liegt dabei ganz in Ihrem Ermessen - ob stilvolle Fliesen oder ...
533.900 €
Kaufpreis
115 m²
Wohnfläche
4
Zimmer
17
Neubau-Stadtvilla mit Platz für die ganze Familie.
Haus
57632 Flammersfeld
Willkommen in Ihrer neuen Stadtvilla, die nach Ihren individuellen Wünschen projektiert wurde. Diese moderne Stadtvilla in Flammersfeld bietet Ihnen auf einer großzügigen Wohnfläche von 144 m² bei 5 Zimmern ein ideales ...
464.860 €
Kaufpreis
144 m²
Wohnfläche
5
Zimmer