STREIF baut Euer perfektes Zuhause
853.493 €
Kaufpreis
210 m²
Wohnfläche
8
Zimmer
immobilien.de Nr.: 9519942
Objektnummer: AM68305004
Kaufpreis
| Kaufpreis | 853.493 € |
Wohnfläche, Grundstück & Bausubstanz
| Wohnfläche | 210 m² |
| Grundstücksfläche | 365 m² |
| Zimmer | 8 |
| Verfügbar ab | keine Angabe |
| Zustand | Erstbezug |
Energie
| Energietyp | KfW-40 |
| Heizungsart | Zentralheizung |
| Energieträger/Befeuerung | Luft-Wärme-Pumpe |
Beschreibung der Immobilie
STREIF-Villa 4: Exklusives Wohnen mit Flachdach, zwei Erkern, Galerie und Dachterrasse
Der Entwurf der exklusiven STREIF-Villa 4 bietet seinen Bewohnern zahlreiche luxuriöse Merkmale, darunter eine zweigeschossige Glasfront, einen zweigeschossigen Erker sowie einen eingeschossigen Erker mit einer einladenden Dachterrasse. Auch für dieses Modell stehen drei verschiedene Grundrissvarianten zur Auswahl: L, XL und XXL, die flexibel an den persönlichen Raumbedarf angepasst werden können.
In der Variante L bietet der Wohn-, Ess- und Kochbereich bereits großzügige 64,7 m², was für ein komfortables Wohnen sorgt. Besonders beeindruckend ist der Bereich vor der Glasfront, der sich ideal als stilvoller Essplatz eignet. Der weitläufige Wohnbereich lässt sich zudem durch eine zusätzliche Wand unterteilen, um beispielsweise einen weiteren Raum für ein Gästezimmer, Homeoffice oder Schlafzimmer zu schaffen.
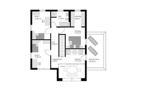
Im Obergeschoss ist die Galerie ein echtes Highlight, die das Gefühl vermittelt, sich in einem großen Wintergarten zu befinden. Von hier aus besteht ein direkter Zugang zur möglichen Dachterrasse, die zum Entspannen einlädt. Ergänzt wird das Raumangebot durch einen Elternschlafbereich mit angrenzender Ankleide, zwei Kinderzimmer und ein geräumiges Familienbad.
STREIF-Villa 04
- Variante L: 184 m² / Hausmaße 11,83 x 11,205 m
- Variante XL: 194 m² / Hausmaße 12,455 x 11,83 m
- Variante XXL: 213 m² / Hausmaße 13,08 x 11,83 m
Der Entwurf der exklusiven STREIF-Villa 4 bietet seinen Bewohnern zahlreiche luxuriöse Merkmale, darunter eine zweigeschossige Glasfront, einen zweigeschossigen Erker sowie einen eingeschossigen Erker mit einer einladenden Dachterrasse. Auch für dieses Modell stehen drei verschiedene Grundrissvarianten zur Auswahl: L, XL und XXL, die flexibel an den persönlichen Raumbedarf angepasst werden können.
In der Variante L bietet der Wohn-, Ess- und Kochbereich bereits großzügige 64,7 m², was für ein komfortables Wohnen sorgt. Besonders beeindruckend ist der Bereich vor der Glasfront, der sich ideal als stilvoller Essplatz eignet. Der weitläufige Wohnbereich lässt sich zudem durch eine zusätzliche Wand unterteilen, um beispielsweise einen weiteren Raum für ein Gästezimmer, Homeoffice oder Schlafzimmer zu schaffen.
Im Obergeschoss ist die Galerie ein echtes Highlight, die das Gefühl vermittelt, sich in einem großen Wintergarten zu befinden. Von hier aus besteht ein direkter Zugang zur möglichen Dachterrasse, die zum Entspannen einlädt. Ergänzt wird das Raumangebot durch einen Elternschlafbereich mit angrenzender Ankleide, zwei Kinderzimmer und ein geräumiges Familienbad.
STREIF-Villa 04
- Variante L: 184 m² / Hausmaße 11,83 x 11,205 m
- Variante XL: 194 m² / Hausmaße 12,455 x 11,83 m
- Variante XXL: 213 m² / Hausmaße 13,08 x 11,83 m
Ausstattungsmerkmale
| Anzahl der Etagen im Haus | 2 |
| Bad | 2 |
| Balkone | 1 |
| Terrassen | 1 |
| Barrierefrei |
STREIF-Energiesparhäuser sind für die Effizienzhaus-Klasse 40* vorbereitet. (*In Abhängigkeit von Gebäudestandort, Gebäudeausrichtung, Fensterflächenanteilen, Haustechnik, örtlich geltenden baulichen Vorschriften usw. können zusätzlich oder abweichende Leistungen bzw. die Anpassung der Grundrisse erforderlich werden, die im Zuge der Bauantragsbewertung/-erstellung bewerten werden.) Alle Angaben sind Circa-Werte.
Eine Zertifizierung in der Nachhaltigkeitsklasse ist ab der Premiumline möglich, die im Standard für die Effizienzhaus-Klasse 40 ausgestattet ist. Hierfür können wir eine Ökobilanz (bei Ausbaustufe fastfertig+ und schlüsselfertig) erstellen, die bescheinigt, dass Ihr STREIF-Haus den Richtlinien in der Stufe KFWG für den Klimafreundlichen Neubau (KFN) entspricht. Auf Wunsch kann ergänzend auch eine Nachhaltigkeitszertifizierung nach QNG in der Stufe KFWG-Q (ebenfalls bei Ausbaustufe fastfertig+ und schlüsselfertig) geprüft und angeboten werden. Für das Erfüllen der Voraussetzungen ist eine Photovoltaik-Anlage mit Batteriespeicher erforderlich.
Die STREIF-Passiv-Außenwand und eine sparsame Heiztechnik mit integrierter Wohnraumlüftung und Wärmerückgewinnung garantieren eine geringen Energieverbrauch und ein fantastisches Raumklima, das insbesondere Allergiker aufatmen lässt.
Folgende STREIF-Leistungen sind bei den Hauspreisen für die exklusiven STREIF-Villen bei Ausbaustufe fastfertig+ in der Ausstattungslinie Premiumline enthalten:
Inklusive gedämmte Fundamentplatte
Inklusive STREIF-Luft-Luft-Wärmepumpen-Technologie, mit integrierter Lüftungsanlage mit Wärmerückgewinnung
Inklusive Holzhaustür von KERA-Tür
Inklusive Fenster von Porta/Kömmerling
Inklusive Treppe aus eigener Produktion
Inklusive Sanitärobjekten von Markenherstellern in Bad/WC
Inklusive Elektroinstallation u.v.m.
Inklusive Vorbereitung zur Installation einer Photovoltaik-Anlage
Inklusive Photovoltaikanlage 7,12 KWP
Inklusive Batteriespeicher mit 7,70 KWH
Individuelle Grundrissgestaltung und Raumaufteilung möglich
Die hohe Wertigkeit und Langlebigkeit eines STREIF-Energiespar-Hauses wird durch zahlreiche Auszeichnungen, Qualitäts- und Gütesiegel unabhängiger Institute und Verbände dokumentiert.
Bilder können evtl. Anbauteile, Carports, Balkone, Gauben usw. zeigen, die nicht im Angebotspreis enthalten sind. Änderungen und Irrtümer vorbehalten.
Eine Zertifizierung in der Nachhaltigkeitsklasse ist ab der Premiumline möglich, die im Standard für die Effizienzhaus-Klasse 40 ausgestattet ist. Hierfür können wir eine Ökobilanz (bei Ausbaustufe fastfertig+ und schlüsselfertig) erstellen, die bescheinigt, dass Ihr STREIF-Haus den Richtlinien in der Stufe KFWG für den Klimafreundlichen Neubau (KFN) entspricht. Auf Wunsch kann ergänzend auch eine Nachhaltigkeitszertifizierung nach QNG in der Stufe KFWG-Q (ebenfalls bei Ausbaustufe fastfertig+ und schlüsselfertig) geprüft und angeboten werden. Für das Erfüllen der Voraussetzungen ist eine Photovoltaik-Anlage mit Batteriespeicher erforderlich.
Die STREIF-Passiv-Außenwand und eine sparsame Heiztechnik mit integrierter Wohnraumlüftung und Wärmerückgewinnung garantieren eine geringen Energieverbrauch und ein fantastisches Raumklima, das insbesondere Allergiker aufatmen lässt.
Folgende STREIF-Leistungen sind bei den Hauspreisen für die exklusiven STREIF-Villen bei Ausbaustufe fastfertig+ in der Ausstattungslinie Premiumline enthalten:
Inklusive gedämmte Fundamentplatte
Inklusive STREIF-Luft-Luft-Wärmepumpen-Technologie, mit integrierter Lüftungsanlage mit Wärmerückgewinnung
Inklusive Holzhaustür von KERA-Tür
Inklusive Fenster von Porta/Kömmerling
Inklusive Treppe aus eigener Produktion
Inklusive Sanitärobjekten von Markenherstellern in Bad/WC
Inklusive Elektroinstallation u.v.m.
Inklusive Vorbereitung zur Installation einer Photovoltaik-Anlage
Inklusive Photovoltaikanlage 7,12 KWP
Inklusive Batteriespeicher mit 7,70 KWH
Individuelle Grundrissgestaltung und Raumaufteilung möglich
Die hohe Wertigkeit und Langlebigkeit eines STREIF-Energiespar-Hauses wird durch zahlreiche Auszeichnungen, Qualitäts- und Gütesiegel unabhängiger Institute und Verbände dokumentiert.
Bilder können evtl. Anbauteile, Carports, Balkone, Gauben usw. zeigen, die nicht im Angebotspreis enthalten sind. Änderungen und Irrtümer vorbehalten.
Sonstige Informationen
Zur Realisierung des Bauvorhabens und zur Bezugsfertigkeit des Gebäudes kommen zzgl. noch Baunebenkosten und Fertigstellungskosten.
Karte wird geladen...
Objektstandort
68305 Mannheim-Waldhof
Lage & Infrastruktur
Objektstandort
68305 Mannheim-Waldhof
Der Waldhof ist einer der traditionsreichsten und bekanntesten Stadtteile im Norden Mannheims. Heute präsentiert sich der Stadtteil als vielseitiger Wohn- und Arbeitsstandort, der den Spagat zwischen industrieller Dynamik und grüner Naherholung meistert. Waldhof liegt im Norden von Mannheim und grenzt an die Stadtteile Käfertal, Gartenstadt und Luzenberg sowie an die Gemeinde Lampertheim (Hessen).
Der Bahnhof Mannheim-Waldhof ist ein wichtiger Knotenpunkt für den Regionalverkehr (Richtung Frankfurt und Mannheim Hbf) sowie für die S-Bahn Rhein-Neckar. Mit den Stadtbahnlinien 1 und 4/5 ist der Waldhof hervorragend an die Mannheimer Innenstadt angebunden.
Mit mehreren Grundschulen (z.B. Waldhof-Grundschule) und weiterführenden Schulen ist der Nachwuchs bestens versorgt.
Bekannte Firmen haben hier ihre Wurzeln oder große Standorte, darunter EvoBus (Daimler Truck), Roche (Grenzbereich zu Sandhofen/Waldhof) und die Spiegelglas-Fabrik (Saint-Gobain).
Der Stadtteil bewahrt bis heute seinen Stolz als Arbeiterquartier, was sich in der Architektur der älteren Siedlungen und im starken Zusammenhalt der Bewohner widerspiegelt.
Der Verein SV Waldhof Mannheim ist das emotionale Herzstück des Stadtteils. Das Carl-Benz-Stadion liegt zwar technisch gesehen im benachbarten Oststadt-Viertel, aber die Identität der "Waldhof-Buben" ist hier in jeder Straße spürbar.
Neben Fußball bietet der Waldhof zahlreiche weitere Sportvereine (z.B. TV 1877 Waldhof), die eine wichtige soziale Funktion für Jugendliche und Familien übernehmen.
Der Käfertaler Wald grenzt direkt an den Stadtteil an und ist das größte Naherholungsgebiet Mannheims. Hier finden Bewohner Ruhe, Wildgehege und endlose Wege zum Joggen oder Radfahren. Das Kulturhaus Waldhof bietet ein abwechslungsreiches Programm aus Kleinkunst, Musik und Stadtteilfesten.
Perfekte Mobilität durch S-Bahn und Straßenbahn, sowie der hohe Freizeitwert durch die direkte Nachbarschaft zum Käfertaler Wald machen den Stadtteil Waldhof zu einem attraktiven Wohnort für alle, die das echte, authentische Mannheim suchen und gleichzeitig schnell im Grünen sein möchten.
Der Bahnhof Mannheim-Waldhof ist ein wichtiger Knotenpunkt für den Regionalverkehr (Richtung Frankfurt und Mannheim Hbf) sowie für die S-Bahn Rhein-Neckar. Mit den Stadtbahnlinien 1 und 4/5 ist der Waldhof hervorragend an die Mannheimer Innenstadt angebunden.
Mit mehreren Grundschulen (z.B. Waldhof-Grundschule) und weiterführenden Schulen ist der Nachwuchs bestens versorgt.
Bekannte Firmen haben hier ihre Wurzeln oder große Standorte, darunter EvoBus (Daimler Truck), Roche (Grenzbereich zu Sandhofen/Waldhof) und die Spiegelglas-Fabrik (Saint-Gobain).
Der Stadtteil bewahrt bis heute seinen Stolz als Arbeiterquartier, was sich in der Architektur der älteren Siedlungen und im starken Zusammenhalt der Bewohner widerspiegelt.
Der Verein SV Waldhof Mannheim ist das emotionale Herzstück des Stadtteils. Das Carl-Benz-Stadion liegt zwar technisch gesehen im benachbarten Oststadt-Viertel, aber die Identität der "Waldhof-Buben" ist hier in jeder Straße spürbar.
Neben Fußball bietet der Waldhof zahlreiche weitere Sportvereine (z.B. TV 1877 Waldhof), die eine wichtige soziale Funktion für Jugendliche und Familien übernehmen.
Der Käfertaler Wald grenzt direkt an den Stadtteil an und ist das größte Naherholungsgebiet Mannheims. Hier finden Bewohner Ruhe, Wildgehege und endlose Wege zum Joggen oder Radfahren. Das Kulturhaus Waldhof bietet ein abwechslungsreiches Programm aus Kleinkunst, Musik und Stadtteilfesten.
Perfekte Mobilität durch S-Bahn und Straßenbahn, sowie der hohe Freizeitwert durch die direkte Nachbarschaft zum Käfertaler Wald machen den Stadtteil Waldhof zu einem attraktiven Wohnort für alle, die das echte, authentische Mannheim suchen und gleichzeitig schnell im Grünen sein möchten.
Kontaktanfrage senden
Über den Anbieter
STREIF Haus GmbH
Josef-Streif-Straße 1
54595 Weinsheim
Kontakt
| Telefon | +49 176 43417486 |
| Website | www.streif.de |
Ansprechpartner/in
Achim Machmeier
Weitere Angebote des Anbieters
10
Großstadt-Anschluss, Dorf-Charakter - Ihr neues ...
Haus
90475 Nürnberg
Ihr neuer Lieblingsort auf 143 m² Vergessen Sie sterile Kataloghäuser - hier erwartet Sie ein Zuhause, das mit Ihnen mitatmet. Modern, gemütlich und durchdacht bis in den letzten Winkel. Das Herzstück für alle: Auf ...
853.547 €
Kaufpreis
143 m²
Wohnfläche
5
Zimmer
10
Platz für die ganze Familie
Haus
90592 Schwarzenbruck
Ihr neues Familienkapitel auf 163 m² Vergessen Sie Kompromisse - hier erwartet Sie ein Zuhause, das mit Ihrer Familie mitwächst. Modern, lichtdurchflutet und durchdacht bis ins kleinste Detail. Das Herzstück Ihres ...
713.384 €
Kaufpreis
163 m²
Wohnfläche
5
Zimmer
13
Daheim in Feucht
Haus
90537 Feucht
Auf 143 m² präsentiert sich das behagliche und moderne Familien-Zuhause. Im Obergeschoss punktet die Grundrissplanung mit zwei großen Kindernzimmern, einem Schlafzimmer mit Ankleide und einem Familienbad. Auf 40 m² ...
862.868 €
Kaufpreis
143 m²
Wohnfläche
5
Zimmer
5
Neubau von Doppelhäusern in Hannover Bemerode -jetzt ...
Haus
30539 Hannover
Der Preis bezieht sich auf das Haus inkl. Baunebenkosten und einschließlich Grundstück. Die Grunderwerbsteuer fällt nur auf die Grundstückskosten an. Herzlich willkommen bei STREIF, Ihrem zuverlässigen Partner für den ...
879.000 €
Kaufpreis
130 m²
Wohnfläche
5
Zimmer
18
Der Weg zum richtigen Grundstück !
Haus
66763 Dillingen
Der Stellenwert des Grundstücks für Ihr Zuhause Zweifellos spielen die Beschaffenheit und Lage des Grundstücks eine ausschlaggebende Rolle bei der Planung ihres zukünftigen Zuhauses. Angefangen bei der Infrastruktur ...
425.000 €
Kaufpreis
152 m²
Wohnfläche
5
Zimmer