Charmante 2-Zimmer-Wohnung mit Balkon – vermietet und ideal für Kapitalanleger

119.000 €
Kaufpreis
40,57 m²
Wohnfläche
2
Zimmer
immobilien.de Nr.: 9518834 Objektnummer: FALC-CoMa-82594
Wohnzimmer - (KI generiert) - (KI generiert)
Eingang - Küche - KI
Schlafzimmer - (KI generiert)
Badezimmer - Ki
Balkon - Ki
Makrolage
Mikrolage
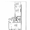
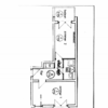
Grundriss
Grundriss.png

Kaufpreis

Kaufpreis 119.000 €
Kaufpreis pro m² 2933,2 €
Hausgeld 365 €
Maklerprovision 3,57 % inkl. MwSt.

Wohnfläche, Grundstück & Bausubstanz

Wohnfläche 40,57 m²
Zimmer 2
Baujahr 1995
Verfügbar ab keine Angabe
Zustand Gepflegt

Energie

Energieausweistyp Verbrauch
Ausstellungsdatum 22. 02. 2018
Gültig bis 21.02.2028
Energieeffizienzklasse C
Energieverbrauchkennwert 91.4 kWh/(m²*a)
Heizungsart Zentralheizung
Wesentlicher Energieträger Gas
Energieträger/Befeuerung Gas

Beschreibung der Immobilie

Charmante 2-Zimmer-Wohnung mit Balkon – vermietet und ideal für Kapitalanleger

Diese gepflegte 2-Zimmer-Wohnung mit ca. 40,57 m² Wohnfläche befindet sich in einem ruhigen und gepflegten Mehrfamilienhaus und stellt eine attraktive Kapitalanlage mit stabilen Mieteinnahmen dar.

Der helle Wohnbereich überzeugt durch eine durchdachte Raumaufteilung und ist mit einem hochwertigen Laminatboden ausgestattet. Große Fenster sorgen für eine angenehme Lichtatmosphäre und schaffen ein freundliches Wohngefühl.

Das separate Schlafzimmer bietet ausreichend Platz für Ruhe und Privatsphäre.

Das modern geflieste Badezimmer ist mit Dusche, Waschbecken und WC ausgestattet und präsentiert sich funktional sowie zeitlos gepflegt.

Ein Personenaufzug im Haus ermöglicht einen komfortablen Zugang zur Wohnung und erhöht zusätzlich die Attraktivität für Mieter.

🚗 Tiefgaragenstellplatz (Duplex):
Zusätzlich besteht die Möglichkeit, einen Duplex-Tiefgaragenstellplatz zu erwerben.
Der Stellplatz befindet sich in der Tiefgarage des Hauses und ist nicht im Kaufpreis der Wohnung enthalten, sondern kann separat erworben werden.

💰 Besonders interessant für Kapitalanleger:
Die Wohnung ist bereits vermietet und erzielt aktuell eine jährliche Sollmiete von 5.796 € p.a. Somit profitieren Investoren von sofortigen und stabilen Mieteinnahmen.

Die kompakte Wohnungsgröße, die angenehme Helligkeit sowie die ruhige Wohnlage machen dieses Objekt zu einer nachhaltig gut vermietbaren Immobilie.

Ob als renditestarke Kapitalanlage oder perspektivisch zur Eigennutzung – hier investieren Sie in eine gefragte Wohnform mit langfristigem Potenzial.

Ausstattungsmerkmale

Anzahl der Etagen im Haus 3
Inserat befindet sich im Stockwerk 3
 
Bad 1
Bad Dusche
Boden Fliesen, Parkett
Balkone 1
Fahrstuhl
Barrierefrei
Keller
Ausstattung im Überblick
Wohnfläche: ca. 40,57 m²

Baujahr: 1995 – gepflegtes Mehrfamilienhaus mit zeitloser Architektur

Räumlichkeiten: 2 gut geschnittene, helle Zimmer mit durchdachter Aufteilung

Bodenbeläge: Wohnbereich mit modernem, pflegeleichtem Laminatboden

Badezimmer: Zeitlos gefliest, mit Dusche, Waschbecken und WC

Komfort: Personenaufzug für barrierearmen Zugang

Zustand: Sehr gepflegter Gesamtzustand des Hauses und der Wohnung

Sonstige Informationen

Falls Sie Wert auf eine ruhige Lage, eine durchdachte Raumaufteilung und ein gehobenes Wohnumfeld legen, könnte dieses Objekt genau das Richtige für Sie sein. Wir bieten Ihnen eine kostenlose 24/7-Hotline unter der Rufnummer 0800-6460646, über die Sie uns jederzeit erreichen können.

Wenn Sie Interesse an der Immobilie haben, fordern Sie gerne das ausführliche Exposé an, das Ihnen in der Regel kurzfristig und automatisch zugesandt wird. Sollten Sie eine Besichtigung wünschen, antworten Sie am besten direkt per E-Mail auf das Exposé. Wir setzen uns umgehend mit Ihnen in Verbindung und unterbreiten Ihnen passende Terminvorschläge. Bitte geben Sie dabei stets Ihre vollständigen Kontaktdaten an.

Die Objektbeschreibung basiert ganz oder teilweise auf den Angaben des Eigentümers. Für die Richtigkeit und Vollständigkeit dieser Informationen übernehmen wir keine Gewähr.

Möchten auch Sie Ihre Immobilie professionell vermarkten? Dann kontaktieren Sie uns gerne! Wir stehen Ihnen täglich von Montag bis Sonntag zwischen 6:00 und 22:00 Uhr persönlich zur Verfügung. Über 200.000 aktive Interessenten warten bereits auf Ihr Angebot.

Bitte beachten Sie, dass das Exposé möglicherweise unter Zuhilfenahme von Künstlicher Intelligenz (KI) erstellt oder überarbeitet wurde. Dabei wurden jedoch keine wesentlichen Merkmale verändert.

Karte wird geladen...
Objektstandort
90763 Fürth - Bayern

Lage & Infrastruktur

Diese Immobilie befindet sich in einem lebhaften Wohnviertel von Fürth, das sowohl durch seine zentrale Lage als auch durch die Vielfalt an verfügbaren Annehmlichkeiten überzeugt. Die ruhige Straße strahlt eine einladende Atmosphäre aus und ist von historischen Gebäuden umgeben, die dem Viertel seinen charmanten Charakter verleihen.

In unmittelbarer Nähe finden sich zahlreiche Supermärkte, darunter Edeka und ALDI Süd, die bequem zu Fuß erreichbar sind. Auch mehrere Restaurants wie das beliebte Shiva und die Pizzeria Da Francesco bieten vielseitige kulinarische Optionen. Für Familien erweist sich das Wohngebiet mit diversen Spielplätzen und der nahegelegenen Kinderkrippe besonders attraktiv.

Die hervorragende Anbindung an den öffentlichen Nahverkehr, mit Bushaltestellen und einem Bahnhof nur wenige Gehminuten entfernt, unterstreicht die Bequemlichkeit dieser Lage. Zusätzlich gelangen Autofahrer rasch zu wichtigen Autobahnen. Der nächstgelegene internationale Flughafen ist etwa 30 Minuten Fahrzeit entfernt, was diese Immobilie auch für Pendler sehr interessant macht.

Was die Gesundheitsversorgung angeht, sind sowohl Zahnärzte als auch Ärzte in der Nähe angesiedelt. Apotheken und Drogerien, darunter Rossmann, stehen ebenfalls in Reichweite zur Verfügung. Für sportlich Aktive liegt ein modernes Fitnessstudio in der Nachbarschaft, und die Grünanlagen der Umgebung bieten Möglichkeiten zur Erholung im Freien.

Mit einem Durchschnittsalter von rund 40 Jahren und einem geringen Leerstand ist die Gegend sowohl bei jungen Familien als auch bei Paaren und Singles beliebt. Die hohe Dichte an kulturellen und sportlichen Angeboten sowie Freizeitmöglichkeiten spricht eine vielfältige Zielgruppe an, während das dichte Netz an Geschäften des täglichen Bedarfs und Dienstleistern eine ausgezeichnete Versorgung sicherstellt.

Kontaktanfrage senden

Über den Anbieter

FALC Immobilien GmbH & Co. KG
Humperdickstr. 3
53773 Hennef (Sieg)
Kontakt
Telefon +49 911 25323135
Mobil +49 163 6277729
Fax +49 2242 9010319
Website www.falcimmo.de
Ansprechpartner/in
Herr Cono Manzione
Weitere Anbieterdaten

Weitere Angebote des Anbieters

Sichern Sie Ihr Kapital mitten in Eschweiler - ...

Zinshaus Renditeobjekt
Garten
52249 Eschweiler
Sie suchen noch nach einer passenden Kapitalanlage - vielleicht in Eschweiler-Mitte? Ihre neue Kapitalanlage befindet sich in zentraler, gut angebundener Lage fußläufig von der Eschweiler Innenstadt. Der erste Eindruck ...
499.000 €
Kaufpreis
285 m²
Wohnfläche
12
Zimmer

Exklusive Villa mit Pool & Garten und Vermietungslizenz ...

Haus
Balkon Einbauküche Garten
07141 Marratxi / Urbanització Sant Marçal
Diese hochwertige Villa in ruhiger und begehrter Lage von Marratxí überzeugt durch ihre exklusive Ausstattung und bietet dank vorhandener Ferienvermietungslizenz eine attraktive Möglichkeit, Wohnen und Investition zu ...
3.350.000 €
Kaufpreis
490 m²
Wohnfläche
10
Zimmer

Modernes Neubauprojekt in Neckarbischofsheim

Wohnung
Balkon Garten
74924 Neckarbischofsheim
In attraktiver Wohnlage entsteht ein modernes Mehrfamilienhaus mit insgesamt acht hochwertigen Wohneinheiten in solider Massivbauweise. Das Gebäude wird als KfW-Effizienzhaus 55 errichtet und verbindet energieeffiziente ...
233.000 €
Kaufpreis
4102 €
Kaufpreis pro m²
56,8 m²
Wohnfläche
2
Zimmer

Modernes Neubauprojekt in Neckarbischofsheim

Wohnung
Balkon Garten
74924 Neckarbischofsheim
In attraktiver Wohnlage entsteht ein modernes Mehrfamilienhaus mit insgesamt acht hochwertigen Wohneinheiten in solider Massivbauweise. Das Gebäude wird als KfW-Effizienzhaus 55 errichtet und verbindet energieeffiziente ...
303.000 €
Kaufpreis
3982 €
Kaufpreis pro m²
76,1 m²
Wohnfläche
3
Zimmer

Modernes Neubauprojekt in Neckarbischofsheim

Wohnung
Balkon Garten
74924 Neckarbischofsheim
In attraktiver Wohnlage entsteht ein modernes Mehrfamilienhaus mit insgesamt acht hochwertigen Wohneinheiten in solider Massivbauweise. Das Gebäude wird als KfW-Effizienzhaus 55 errichtet und verbindet energieeffiziente ...
244.000 €
Kaufpreis
4301 €
Kaufpreis pro m²
56,8 m²
Wohnfläche
2
Zimmer