Im Herzen Lübecks: Altbau-Charme & Atelier-Flair, 4‑Z-DG mit neuer EBK
349.000 €
Kaufpreis
110 m²
Wohnfläche
3,5
Zimmer
immobilien.de Nr.: 9518641
Objektnummer: 437821
Kaufpreis
| Kaufpreis | 349.000 € |
| Hausgeld | 300 € |
| Maklerprovision | keine Provision, courtagefrei |
Wohnfläche, Grundstück & Bausubstanz
| Wohnfläche | 110 m² |
| Zimmer | 3,5 |
| Baujahr | 1900 |
| Verfügbar ab | sofort |
| Zustand | Teil Vollrenoviert |
Energie
| Energieausweistyp | Verbrauch |
| Energieeffizienzklasse | C |
| Energieverbrauchkennwert | 100 kWh/(m²*a) |
| Heizungsart | Etagenheizung |
| Energieträger/Befeuerung | Gas |
Beschreibung der Immobilie
VINTAGE-VIBES & GARTENFREUDEN – GROSSE ALTBAUWOHNUNG FÜR FREIGEISTER:
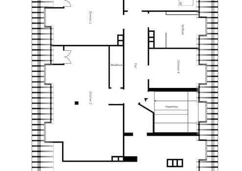
Mit seinen 4 hellen, separaten Zimmern, dem Vollbad mit Fenster, der neuen Einbauküche, dem alten, großen Gemeinschaftsgarten und einem eigenen Kellerraum ist das angebotene Objekt ein echter Allrounder!
Denn diese Wohnung mit lichtdurchfluteten 110m² eignet sich sowohl als Atelier und Künstler-WG, als auch für Familien oder Studentenfreund:innen.
Und als Kapitalanlage bietet das Objekt eine sichere Rendite.
Die Dachgeschoss-Wohnung befindet sich in einem gepflegten Altbau im charakteristischen, hanseatischen Rotklinkerstil aus dem Jahre 1900 - mit insgesamt 11 Parteien.
Der großzügige und geschützte Gemeinschaftsgarten mit wunderschönem Baumbestand und einer alten Backsteinmauer- als sicheren Gartenbegrenzung - bietet insbesondere kleineren Kindern die Möglichkeit, unbeschwert und geschützt herumzutollen.
Die Wohnung wurde frisch renoviert und hat eine nagelneue Einbauküche erhalten. Sie verfügt über viele romantische Altbaudetails wie Gaubenfenster, Dielenböden und Holztüren.
Hinzu kommt, dass vor wenigen Monaten eine neue Gasbrennwerttherme (Baujahr 2025) der Marke Vaillant eingebaut wurde. (Das Warmwasser läuft separat.)
Das monatliche Wohngeld beträgt 300,00 €
Kaufpreis: 349.000 € (provisionsfrei)
Mit seinen 4 hellen, separaten Zimmern, dem Vollbad mit Fenster, der neuen Einbauküche, dem alten, großen Gemeinschaftsgarten und einem eigenen Kellerraum ist das angebotene Objekt ein echter Allrounder!
Denn diese Wohnung mit lichtdurchfluteten 110m² eignet sich sowohl als Atelier und Künstler-WG, als auch für Familien oder Studentenfreund:innen.
Und als Kapitalanlage bietet das Objekt eine sichere Rendite.
Die Dachgeschoss-Wohnung befindet sich in einem gepflegten Altbau im charakteristischen, hanseatischen Rotklinkerstil aus dem Jahre 1900 - mit insgesamt 11 Parteien.
Der großzügige und geschützte Gemeinschaftsgarten mit wunderschönem Baumbestand und einer alten Backsteinmauer- als sicheren Gartenbegrenzung - bietet insbesondere kleineren Kindern die Möglichkeit, unbeschwert und geschützt herumzutollen.
Die Wohnung wurde frisch renoviert und hat eine nagelneue Einbauküche erhalten. Sie verfügt über viele romantische Altbaudetails wie Gaubenfenster, Dielenböden und Holztüren.
Hinzu kommt, dass vor wenigen Monaten eine neue Gasbrennwerttherme (Baujahr 2025) der Marke Vaillant eingebaut wurde. (Das Warmwasser läuft separat.)
Das monatliche Wohngeld beträgt 300,00 €
Kaufpreis: 349.000 € (provisionsfrei)
Ausstattungsmerkmale
| Anzahl der Etagen im Haus | 3 |
| Inserat befindet sich im Stockwerk | 3 |
| Küche | Einbauküche |
| Bad | 1 |
| Boden | Fliesen, Parkett |
| Garten | |
| Keller |
Garten, Keller, Einbauküche, Parkett, Fliesen
Bemerkungen:
- frische renoviert
- neue Einbauküche
- neue Gasbrennwert-Therme der Marke Vaillant
- Dielenböden und Fliesen
- weißes Vollbad mit Fenster
- romantischer Gemeinschaftsgarten
- eigener Kellerraum
Bemerkungen:
- frische renoviert
- neue Einbauküche
- neue Gasbrennwert-Therme der Marke Vaillant
- Dielenböden und Fliesen
- weißes Vollbad mit Fenster
- romantischer Gemeinschaftsgarten
- eigener Kellerraum
Sonstige Informationen
Heizungsart: Etagenheizung
Energieträger: Gas
HAFERKAMP GMBH
Strandallee 11
23683 Scharbeutz (Haffkrug)
Telefon: 04563 / 423998-0
Fax: 04563 / 423998-9
E-Mail: info(at)haferkamp-grundbesitz.de
Geschäftsführer: Jens-Hendrik Haferkamp
Amtsgericht Lübeck HRB 23030 HL
Ust-IdNr.: DE304113136
Haferkamp Grundbesitz ist eine Geschäftsbezeichnung der Haferkamp GmbH.
Erlaubnispflichtige Tätigkeit nach § 34c Abs. 1 der Gewerbeordnung
Aufsichtsbehörde:
Gemeinde Scharbeutz (Gewerbeamt) · Am Bürgerhaus 2, 23683 Scharbeutz
Inhaltlich Verantwortlicher gemäß § 6 MDStV:
Jens-Hendrik Haferkamp
Makleranfragen unerwünscht! Nach § 7 UWG sind unaufgeforderte Kontaktaufnahmen durch Makler ohne ausdrückliche Einwilligung des Empfängers verboten!
Makleranfragen nicht erwünscht. Nach § 7 UWG sind unaufgeforderte Kontaktaufnahmen durch Makler ohne ausdrückliche Einwilligung des Empfängers verboten!
ohne-makler (OM) ist weder Anbieter noch Vermittler der Immobilie. OM betreibt eine Plattform für Immobilieneigentümer, die unter anderem die gleichzeitige Veröffentlichung einzelner Inserate auf mehreren Immobilienportalen ermöglicht. Die Inhalte dieser Inserate werden ausschließlich von Dritten verantwortet. Für die Richtigkeit, Vollständigkeit oder Rechtmäßigkeit der Angaben übernimmt OM keine Haftung. Hinweise auf mögliche Rechtsverstöße können jederzeit gemeldet werden und werden nach Prüfung umgehend bearbeitet.
Energieträger: Gas
HAFERKAMP GMBH
Strandallee 11
23683 Scharbeutz (Haffkrug)
Telefon: 04563 / 423998-0
Fax: 04563 / 423998-9
E-Mail: info(at)haferkamp-grundbesitz.de
Geschäftsführer: Jens-Hendrik Haferkamp
Amtsgericht Lübeck HRB 23030 HL
Ust-IdNr.: DE304113136
Haferkamp Grundbesitz ist eine Geschäftsbezeichnung der Haferkamp GmbH.
Erlaubnispflichtige Tätigkeit nach § 34c Abs. 1 der Gewerbeordnung
Aufsichtsbehörde:
Gemeinde Scharbeutz (Gewerbeamt) · Am Bürgerhaus 2, 23683 Scharbeutz
Inhaltlich Verantwortlicher gemäß § 6 MDStV:
Jens-Hendrik Haferkamp
Makleranfragen unerwünscht! Nach § 7 UWG sind unaufgeforderte Kontaktaufnahmen durch Makler ohne ausdrückliche Einwilligung des Empfängers verboten!
Makleranfragen nicht erwünscht. Nach § 7 UWG sind unaufgeforderte Kontaktaufnahmen durch Makler ohne ausdrückliche Einwilligung des Empfängers verboten!
ohne-makler (OM) ist weder Anbieter noch Vermittler der Immobilie. OM betreibt eine Plattform für Immobilieneigentümer, die unter anderem die gleichzeitige Veröffentlichung einzelner Inserate auf mehreren Immobilienportalen ermöglicht. Die Inhalte dieser Inserate werden ausschließlich von Dritten verantwortet. Für die Richtigkeit, Vollständigkeit oder Rechtmäßigkeit der Angaben übernimmt OM keine Haftung. Hinweise auf mögliche Rechtsverstöße können jederzeit gemeldet werden und werden nach Prüfung umgehend bearbeitet.
Karte wird geladen...
Objektstandort
Schwartauer Allee 121a
23554 Lübeck
- Schleswig-Holstein
Lage & Infrastruktur
Objektstandort
Schwartauer Allee 121a
23554 Lübeck
- Schleswig-Holstein
In unmittelbarer Nähe befinden sich alle Einkaufmöglichkeiten des täglichen Bedarfs; ebenso sind Kindergärten und Schulen im Umkreis fußläufig bzw. mit dem öffentlichen Nahverkehr schnell zu erreichen.
Lübeck ist eine alte, gut erhaltene Hansestadt und liegt nur ca. 65 Kilometer von Hamburg entfernt. Ihre zauberhafte Altstadt, die auf einer Insel in der Trave liegt, gehört zum UNESCO-Welterbe. Zudem besitzt Lübeck ein reiches und vielfältiges Kulturangebot und ist auch mit seinem Buddenbrookhaus in der Mengestraße 4 sowie der traditionsreichen Niederegger-Marzipanmanufaktur weltberühmt.
Infrastruktur (im Umkreis von 5 km):
Apotheke, Lebensmittel-Discount, Allgemeinmediziner, Kindergarten, Grundschule, Hauptschule, Realschule, Gymnasium, Gesamtschule, Öffentliche Verkehrsmittel
Lübeck ist eine alte, gut erhaltene Hansestadt und liegt nur ca. 65 Kilometer von Hamburg entfernt. Ihre zauberhafte Altstadt, die auf einer Insel in der Trave liegt, gehört zum UNESCO-Welterbe. Zudem besitzt Lübeck ein reiches und vielfältiges Kulturangebot und ist auch mit seinem Buddenbrookhaus in der Mengestraße 4 sowie der traditionsreichen Niederegger-Marzipanmanufaktur weltberühmt.
Infrastruktur (im Umkreis von 5 km):
Apotheke, Lebensmittel-Discount, Allgemeinmediziner, Kindergarten, Grundschule, Hauptschule, Realschule, Gymnasium, Gesamtschule, Öffentliche Verkehrsmittel
Kontaktanfrage senden
Über den Anbieter
OM PropTech GmbH
Humboldtstraße 25a
21509 Glinde
Kontakt
| Telefon | 0173 2636531 |
| Fax | - |
| Website | www.ohne-makler.net |
Ansprechpartner/in
Privat von Verkaufsteam
Weitere Angebote des Anbieters
1
Pirmasens Petersberg - Büro - Lager - leichte Fertigung ...
Büro / Praxen
66989 Petersberg
Petersberg, Büro / Praxis / Leichte Fertigung / Physio mit Parkplätze, Kundenparkplätze,
keine Angabe
Preis
224 m²
Gesamtfläche
14
Handwerker und Gewerbepark Pirmasens verschiedene ...
Hallen / Lager / Produktion
66954 Pirmasens
Handwerker und Gewerbepark Pirmasens verschiedene Hallenflächen und Container zu vermieten für Produktion/Werkstatt/Lager Container 20Fuß 100.- Halle Teilbar ab 120m² B11/1 altes Büro: Lager/Büro/Werkstatt, 200m2 D5 ...
keine Angabe
Preis
31000 m²
Gesamtfläche
0
Grundstück Prämium-Lage
Grundstück
79541 Lörrach
NOTVERKAUF – aus gesundheitlichen Gründen Grundstück in Prämium-Lage für Wohnbau (14-15 WEH) Besonderheit - Großer Bedarf an Wohnungen. Interessant für Investoren, Kapitalanleger, Bauunternehmer und Projektentwickler. ...
695.000 €
Kaufpreis
1.000 m²
Grundstücksfläche
45
Witten-Bommern: grosses Haus mit großem Grundstück zu ...
Haus
58452 Witten
Individuell ausgestattetes freistehendes Haus mit Fernblick, einem uneinsehbaren Innenhof und einem uneinsehbaren Grundstück mit einem großen Garten! Das Mietobjekt ist nur etwas für Gartenfreunde! Details werden nach ...
2.000 €
Kaltmiete (netto)
250 m²
Wohnfläche
8
Zimmer
12
2Raumwohnung mit Wohnküche
Wohnung
58452 Witten
Diese Wohnung wird nur an maximal zwei Personen über 25 Jahren, die arbeiten, vermietet. Voraussetzung für einen Mietvertrag ist Berufstätig und Deutschsprachigkeit. Besichtigungen können nur Vormittags angeboten ...
500 €
Kaltmiete (netto)
65 m²
Wohnfläche
2
Zimmer