Charmante 2-Zimmer-Wohnung mit Balkon – vermietet und ideal für Kapitalanleger

119.000 €
Kaufpreis
40,57 m²
Wohnfläche
2
Zimmer
immobilien.de Nr.: 9518102 Objektnummer: FALC-CoMa-78313
Wohnzimmer - (KI generiert) - (KI generiert)
Schlafzimmer - (KI generiert)
Badezimmer
Balkon
Balkon
Makrolage
Mikrolage
Lageplan
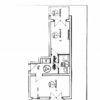
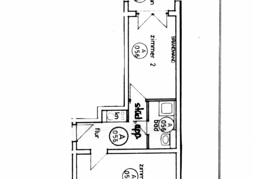
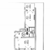
Grundriss
Grundriss.png

Kaufpreis

Kaufpreis 119.000 €
Kaufpreis pro m² 2933,2 €
Hausgeld 365 €
Maklerprovision 3,57 % inkl. MwSt.

Wohnfläche, Grundstück & Bausubstanz

Wohnfläche 40,57 m²
Zimmer 2
Baujahr 1995
Verfügbar ab keine Angabe
Zustand Gepflegt

Energie

Energieausweistyp Verbrauch
Ausstellungsdatum 22. 02. 2018
Gültig bis 21.02.2028
Energieeffizienzklasse C
Energieverbrauchkennwert 91.4 kWh/(m²*a)
Heizungsart Zentralheizung
Wesentlicher Energieträger Gas
Energieträger/Befeuerung Gas

Beschreibung der Immobilie

Charmante 2-Zimmer-Wohnung mit Balkon – vermietet und ideal für Kapitalanleger

Diese gepflegte 2-Zimmer-Wohnung mit ca. 40,57 m² Wohnfläche befindet sich in einem ruhigen und gepflegten Mehrfamilienhaus und stellt eine attraktive Kapitalanlage mit stabilen Mieteinnahmen dar.

Der helle Wohnbereich überzeugt durch eine durchdachte Raumaufteilung und ist mit einem hochwertigen Laminatboden ausgestattet. Große Fenster sorgen für eine angenehme Lichtatmosphäre und schaffen ein freundliches Wohngefühl.

Das separate Schlafzimmer bietet ausreichend Platz für Ruhe und Privatsphäre.

Das modern geflieste Badezimmer ist mit Dusche, Waschbecken und WC ausgestattet und präsentiert sich funktional sowie zeitlos gepflegt.

Ein Personenaufzug im Haus ermöglicht einen komfortablen Zugang zur Wohnung und erhöht zusätzlich die Attraktivität für Mieter.

🚗 Tiefgaragenstellplatz (Duplex):
Zusätzlich besteht die Möglichkeit, einen Duplex-Tiefgaragenstellplatz zu erwerben.
Der Stellplatz befindet sich in der Tiefgarage des Hauses und ist nicht im Kaufpreis der Wohnung enthalten, sondern kann separat erworben werden.

💰 Besonders interessant für Kapitalanleger:
Die Wohnung ist bereits vermietet und erzielt aktuell eine jährliche Sollmiete von 5.796 € p.a. Somit profitieren Investoren von sofortigen und stabilen Mieteinnahmen.

Die kompakte Wohnungsgröße, die angenehme Helligkeit sowie die ruhige Wohnlage machen dieses Objekt zu einer nachhaltig gut vermietbaren Immobilie.

Ob als renditestarke Kapitalanlage oder perspektivisch zur Eigennutzung – hier investieren Sie in eine gefragte Wohnform mit langfristigem Potenzial.

Ausstattungsmerkmale

Anzahl der Etagen im Haus 3
Inserat befindet sich im Stockwerk 3
 
Bad 1
Bad Dusche
Boden Fliesen, Parkett
Balkone 1
Fahrstuhl
Barrierefrei
Keller
Ausstattung im Überblick
Wohnfläche: ca. 40,57 m²

Baujahr: 1995 – gepflegtes Mehrfamilienhaus mit zeitloser Architektur

Räumlichkeiten: 2 gut geschnittene, helle Zimmer mit durchdachter Aufteilung

Bodenbeläge: Wohnbereich mit modernem, pflegeleichtem Laminatboden

Badezimmer: Zeitlos gefliest, mit Dusche, Waschbecken und WC

Komfort: Personenaufzug für barrierearmen Zugang

Zustand: Sehr gepflegter Gesamtzustand des Hauses und der Wohnung

Sonstige Informationen

Falls Sie Wert auf eine ruhige Lage, eine durchdachte Raumaufteilung und ein gehobenes Wohnumfeld legen, könnte dieses Objekt genau das Richtige für Sie sein. Wir bieten Ihnen eine kostenlose 24/7-Hotline unter der Rufnummer 0800-6460646, über die Sie uns jederzeit erreichen können.

Wenn Sie Interesse an der Immobilie haben, fordern Sie gerne das ausführliche Exposé an, das Ihnen in der Regel kurzfristig und automatisch zugesandt wird. Sollten Sie eine Besichtigung wünschen, antworten Sie am besten direkt per E-Mail auf das Exposé. Wir setzen uns umgehend mit Ihnen in Verbindung und unterbreiten Ihnen passende Terminvorschläge. Bitte geben Sie dabei stets Ihre vollständigen Kontaktdaten an.

Die Objektbeschreibung basiert ganz oder teilweise auf den Angaben des Eigentümers. Für die Richtigkeit und Vollständigkeit dieser Informationen übernehmen wir keine Gewähr.

Möchten auch Sie Ihre Immobilie professionell vermarkten? Dann kontaktieren Sie uns gerne! Wir stehen Ihnen täglich von Montag bis Sonntag zwischen 6:00 und 22:00 Uhr persönlich zur Verfügung. Über 200.000 aktive Interessenten warten bereits auf Ihr Angebot.

Bitte beachten Sie, dass das Exposé möglicherweise unter Zuhilfenahme von Künstlicher Intelligenz (KI) erstellt oder überarbeitet wurde. Dabei wurden jedoch keine wesentlichen Merkmale verändert.

Karte wird geladen...
Objektstandort
90763 Fürth - Bayern

Lage & Infrastruktur

Diese Immobilie befindet sich in einem lebhaften Wohnviertel von Fürth, das sowohl durch seine zentrale Lage als auch durch die Vielfalt an verfügbaren Annehmlichkeiten überzeugt. Die ruhige Straße strahlt eine einladende Atmosphäre aus und ist von historischen Gebäuden umgeben, die dem Viertel seinen charmanten Charakter verleihen.

In unmittelbarer Nähe finden sich zahlreiche Supermärkte, darunter Edeka und ALDI Süd, die bequem zu Fuß erreichbar sind. Auch mehrere Restaurants wie das beliebte Shiva und die Pizzeria Da Francesco bieten vielseitige kulinarische Optionen. Für Familien erweist sich das Wohngebiet mit diversen Spielplätzen und der nahegelegenen Kinderkrippe besonders attraktiv.

Die hervorragende Anbindung an den öffentlichen Nahverkehr, mit Bushaltestellen und einem Bahnhof nur wenige Gehminuten entfernt, unterstreicht die Bequemlichkeit dieser Lage. Zusätzlich gelangen Autofahrer rasch zu wichtigen Autobahnen. Der nächstgelegene internationale Flughafen ist etwa 30 Minuten Fahrzeit entfernt, was diese Immobilie auch für Pendler sehr interessant macht.

Was die Gesundheitsversorgung angeht, sind sowohl Zahnärzte als auch Ärzte in der Nähe angesiedelt. Apotheken und Drogerien, darunter Rossmann, stehen ebenfalls in Reichweite zur Verfügung. Für sportlich Aktive liegt ein modernes Fitnessstudio in der Nachbarschaft, und die Grünanlagen der Umgebung bieten Möglichkeiten zur Erholung im Freien.

Mit einem Durchschnittsalter von rund 40 Jahren und einem geringen Leerstand ist die Gegend sowohl bei jungen Familien als auch bei Paaren und Singles beliebt. Die hohe Dichte an kulturellen und sportlichen Angeboten sowie Freizeitmöglichkeiten spricht eine vielfältige Zielgruppe an, während das dichte Netz an Geschäften des täglichen Bedarfs und Dienstleistern eine ausgezeichnete Versorgung sicherstellt.

Kontaktanfrage senden

Über den Anbieter

FALC Immobilien GmbH & Co. KG
Humperdickstr. 3
53773 Hennef (Sieg)
Kontakt
Telefon +49 911 25323135
Mobil +49 163 6277729
Fax +49 2242 9010319
Website www.falcimmo.de
Ansprechpartner/in
Herr Cono Manzione
Weitere Anbieterdaten

Weitere Angebote des Anbieters

Attraktive Gewerbeimmobilie mit langfristigem Mieter ...

Zinshaus Renditeobjekt
64760 Oberzent
Diese gepflegte Gewerbeimmobilie ist langfristig an den bekannten Non-Food-Discounter TEDi vermietet und stellt damit ein solides Investment mit stabilen Einnahmen dar. Das Objekt wurde im Jahr 1988 in massiver ...
550.000 €
Kaufpreis
743,24 €
Kaufpreis pro m²
keine Angabe
Wohnfläche
keine Angabe
Zimmer

Charmante 2-Zimmer-Wohnung mit Balkon – vermietet und ...

Wohnung
Balkon
90763 Fürth
Charmante 2-Zimmer-Wohnung mit Balkon – vermietet und ideal für Kapitalanleger Diese gepflegte 2-Zimmer-Wohnung mit ca. 40,57 m² Wohnfläche befindet sich in einem ruhigen und gepflegten Mehrfamilienhaus und stellt eine ...
119.000 €
Kaufpreis
2933,2 €
Kaufpreis pro m²
40,57 m²
Wohnfläche
2
Zimmer

Charmante 2-Zimmer-Wohnung mit Balkon – vermietet und ...

Zinshaus Renditeobjekt
Balkon
90763 Fürth
Charmante 2-Zimmer-Wohnung mit Balkon – vermietet und ideal für Kapitalanleger Diese gepflegte 2-Zimmer-Wohnung mit ca. 40,57 m² Wohnfläche befindet sich in einem ruhigen und gepflegten Mehrfamilienhaus und stellt eine ...
119.000 €
Kaufpreis
2933,2 €
Kaufpreis pro m²
40,57 m²
Wohnfläche
2
Zimmer

Baugrundstück mit Werkstatt & Zirkuswagen

Grundstück
8796 Türje
Verkauf eines vollständig erschlossenen Grundstücks in ruhiger, naturnaher Lage im Komitat Zala (Westungarn). Gesamtpaket: Grundstück, Inventar und Zirkuswagen: 43.000 Euro Optional auch ohne Zirkuswagen möglich: 20 ...
43.000 €
Kaufpreis
2.172 m²
Grundstücksfläche

Büroraum mit Vorzimmer - Dein Arbeitsplatz in Stadtlohn ...

Büro / Praxen
Einbauküche
48703 Stadtlohn
Willkommen in diesem gepflegten, freistehenden Bürohaus aus dem Jahr 2010, das nun als Gemeinschaftsbüro vermietet wird. Mit einer großzügigen Gesamtfläche von 205 m² bieten wir Ihnen die Möglichkeit, einzelne Büros zu ...
305 €
Kaltmiete
33,2 m²
Gesamtfläche