Haus im Bungalowstil mit Pool, Nebengelass und großem Grundstück mit Potential für ein 2 Haus
650.000 €
Kaufpreis
157 m²
Wohnfläche
5
Zimmer
immobilien.de Nr.: 9517962
Objektnummer: 329020
Dateien
Kaufpreis
| Kaufpreis | 650.000 € |
| Maklerprovision | keine Provision, courtagefrei |
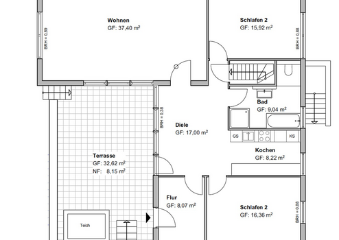
Wohnfläche, Grundstück & Bausubstanz
| Wohnfläche | 157 m² |
| Grundstücksfläche | 1.163 m² |
| Zimmer | 5 |
| Baujahr | 1975 |
| Verfügbar ab | sofort |
| Zustand | Gepflegt |
Energie
| Energieausweistyp | Verbrauch |
| Energieeffizienzklasse | B |
| Energieverbrauchkennwert | 55 kWh/(m²*a) |
| Energieträger/Befeuerung | Elektro |
Beschreibung der Immobilie
Dieser moderne Bungalow bietet ideale Voraussetzungen für eine Familie mit Kindern oder Paare, die sich den Traum vom Leben und Arbeiten im eigenen Heim erfüllen möchten.
Eine Besonderheit ist das ausgebaute und wohnlich gestaltete Nebengelass mit bodentiefen Fenstern, zwei Räumen, einer Einbauküche und einem eigenen Bad mit Dusche. Dieser Bereich eignet sich nicht nur perfekt für Gäste oder größere Kinder, die hier ein Gefühl von Unabhängigkeit genießen können, sondern auch hervorragend als Homeoffice, für gewerbliche Zwecke oder als Gästehaus.
Der lichtdurchflutete Wohnbereich mit eine großen Fensterfront sorgt für eine angenehme Wohlfühlatmosphäre. Beheizt wird das Haus über Nachtspeicheröfen, während die thermische Solaranlage von Viessmann für die Warmwasserbereitung sorgt. Vom offen gestalteten Essbereich gelangt man bequem in alle Zimmer sowie auf die ca. 48 m² große Terrasse mit Südwest-Ausrichtung, die ideale Bedingungen bietet, um die Abendsonne zu genießen. Für schlechtes Wetter ist ein Teil der Terrasse mit einem Lamellendach überdacht.
Ein weiteres Highlight des großzügigen Grundstücks ist der Außenpool mit Überdachung, der in der warmen Jahreszeit für Erholung und Freizeitspaß sorgt und sowohl zum Entspannen als auch für sportliche Aktivitäten genutzt werden kann.
Die Einbauküche ist mit hochwertigen Geräten von NEFF und Miele ausgestattet. Neben drei weiteren Zimmern wartet ein modernes Badezimmer mit bodentiefer Dusche und Badewanne auf die neuen Bewohner.
Der Teilkeller bietet nicht nur Platz für die Heiz- und Solartechnik, sondern auch die Möglichkeit, einen Fitnessraum einzurichten oder die bereits vorhandene Sauna zu nutzen.
Alle Fenster sind für zusätzliche Sicherheit mit elektrischen Außenrollläden ausgestattet. Haben wir Ihr Interesse geweckt? Vereinbaren Sie gerne einen persönlichen Besichtigungstermin!Das großzügige Grundstück ist teilbar und bietet somit auch Potenzial für zukünftige Bauvorhaben oder separate Nutzungsmöglichkeiten. Zudem liegt es außerhalb der Einflugschneise des Flughafens BER Schönefeld und ist daher nicht von Fluglärm betroffen.
Eine Besonderheit ist das ausgebaute und wohnlich gestaltete Nebengelass mit bodentiefen Fenstern, zwei Räumen, einer Einbauküche und einem eigenen Bad mit Dusche. Dieser Bereich eignet sich nicht nur perfekt für Gäste oder größere Kinder, die hier ein Gefühl von Unabhängigkeit genießen können, sondern auch hervorragend als Homeoffice, für gewerbliche Zwecke oder als Gästehaus.
Der lichtdurchflutete Wohnbereich mit eine großen Fensterfront sorgt für eine angenehme Wohlfühlatmosphäre. Beheizt wird das Haus über Nachtspeicheröfen, während die thermische Solaranlage von Viessmann für die Warmwasserbereitung sorgt. Vom offen gestalteten Essbereich gelangt man bequem in alle Zimmer sowie auf die ca. 48 m² große Terrasse mit Südwest-Ausrichtung, die ideale Bedingungen bietet, um die Abendsonne zu genießen. Für schlechtes Wetter ist ein Teil der Terrasse mit einem Lamellendach überdacht.
Ein weiteres Highlight des großzügigen Grundstücks ist der Außenpool mit Überdachung, der in der warmen Jahreszeit für Erholung und Freizeitspaß sorgt und sowohl zum Entspannen als auch für sportliche Aktivitäten genutzt werden kann.
Die Einbauküche ist mit hochwertigen Geräten von NEFF und Miele ausgestattet. Neben drei weiteren Zimmern wartet ein modernes Badezimmer mit bodentiefer Dusche und Badewanne auf die neuen Bewohner.
Der Teilkeller bietet nicht nur Platz für die Heiz- und Solartechnik, sondern auch die Möglichkeit, einen Fitnessraum einzurichten oder die bereits vorhandene Sauna zu nutzen.
Alle Fenster sind für zusätzliche Sicherheit mit elektrischen Außenrollläden ausgestattet. Haben wir Ihr Interesse geweckt? Vereinbaren Sie gerne einen persönlichen Besichtigungstermin!Das großzügige Grundstück ist teilbar und bietet somit auch Potenzial für zukünftige Bauvorhaben oder separate Nutzungsmöglichkeiten. Zudem liegt es außerhalb der Einflugschneise des Flughafens BER Schönefeld und ist daher nicht von Fluglärm betroffen.
Ausstattungsmerkmale
| Anzahl der Etagen im Haus | 1 |
| Küche | Einbauküche |
| Bad | 2 |
| Bad | Dusche, Wanne |
| Boden | Fliesen, Parkett |
| Balkone | 0 |
| Garten | |
| Terrassen | 1 |
| Garage/Stellplätze | 1 |
| Carport | 1 |
| Keller |
Terrasse, Garten, Keller, Vollbad, Duschbad, Sauna, Pool · Schwimmbad, Einbauküche, Parkett, Fliesen
Bemerkungen:
Moderne Bäder, Einbauküchen, Parkett, Holzdielen, Fliesen, Elektrische Rollläden, Sauna, Terrasse teilüberdacht, Granit Arbeitsplatten.
Bemerkungen:
Moderne Bäder, Einbauküchen, Parkett, Holzdielen, Fliesen, Elektrische Rollläden, Sauna, Terrasse teilüberdacht, Granit Arbeitsplatten.
Sonstige Informationen
Heizungsart: Sonstiges (s. Text)
Energieträger: Strom
Verkauf ohne Provision.
Makleranfragen nicht erwünscht. Nach § 7 UWG sind unaufgeforderte Kontaktaufnahmen durch Makler ohne ausdrückliche Einwilligung des Empfängers verboten!
ohne-makler (OM) ist weder Anbieter noch Vermittler der Immobilie. OM betreibt eine Plattform für Immobilieneigentümer, die unter anderem die gleichzeitige Veröffentlichung einzelner Inserate auf mehreren Immobilienportalen ermöglicht. Die Inhalte dieser Inserate werden ausschließlich von Dritten verantwortet. Für die Richtigkeit, Vollständigkeit oder Rechtmäßigkeit der Angaben übernimmt OM keine Haftung. Hinweise auf mögliche Rechtsverstöße können jederzeit gemeldet werden und werden nach Prüfung umgehend bearbeitet.
Energieträger: Strom
Verkauf ohne Provision.
Makleranfragen nicht erwünscht. Nach § 7 UWG sind unaufgeforderte Kontaktaufnahmen durch Makler ohne ausdrückliche Einwilligung des Empfängers verboten!
ohne-makler (OM) ist weder Anbieter noch Vermittler der Immobilie. OM betreibt eine Plattform für Immobilieneigentümer, die unter anderem die gleichzeitige Veröffentlichung einzelner Inserate auf mehreren Immobilienportalen ermöglicht. Die Inhalte dieser Inserate werden ausschließlich von Dritten verantwortet. Für die Richtigkeit, Vollständigkeit oder Rechtmäßigkeit der Angaben übernimmt OM keine Haftung. Hinweise auf mögliche Rechtsverstöße können jederzeit gemeldet werden und werden nach Prüfung umgehend bearbeitet.
Karte wird geladen...
Objektstandort
12524 Berlin
- Berlin
Lage & Infrastruktur
Objektstandort
12524 Berlin
- Berlin
In Altglienicke, im Südwesten des Berliner Bezirks Treptow-Köpenick, befindet sich dieses großzügige Haus mit Nebengelass auf einem 1.163 m² großen, vollständig eingefriedeten Grundstück. Altglienicke vereint naturnahes Wohnen mit einer schnellen Anbindung an die Berliner Innenstadt. Der Ortsteil bietet eine Mischung aus charmanten Wohngebieten mit Einfamilien- und Reihenhäusern sowie modernen Neubaugebieten.
Die Infrastruktur ist hervorragend ausgebaut. Mehrere Kitas, Grundschulen, das Anne-Frank-Gymnasium sowie zahlreiche Spiel- und Sportstätten sind in der unmittelbaren Umgebung vorhanden. Einkaufsmöglichkeiten für den täglichen Bedarf sind bequem erreichbar, und auch das Berliner Stadtzentrum mit seinen vielfältigen Shopping- und Freizeitmöglichkeiten ist durch die gute Verkehrsanbindung schnell zu erreichen.
Die Autobahn A113 und die Bundesstraße B96a ermöglichen eine zügige Fahrt ins Zentrum, das in etwa 30 Minuten mit dem Auto erreichbar ist. Der öffentliche Nahverkehr ist durch die S-Bahn-Linien S8, S9, S45, S46, S85 sowie mehrere Buslinien (160, 163 und 260) hervorragend ausgebaut.
Die Umgebung bietet zahlreiche Freizeit- und Erholungsmöglichkeiten. Der angrenzende Natur- und Landschaftspark Rudow-Altglienicke lädt mit seiner weitläufigen, abwechslungsreichen Parklandschaft zur Erholung und Freizeitgestaltung ein. Auch die Rudower Höhe, der Falkenberg und die Spree bieten vielseitige Möglichkeiten für Entspannung und aktive Erholung. Altglienicke ist ein idealer Wohnort für alle, die ein ruhiges Leben im Grünen mit einer schnellen Anbindung an die Stadt suchen.
Infrastruktur (im Umkreis von 5 km):
Apotheke, Lebensmittel-Discount, Allgemeinmediziner, Kindergarten, Grundschule, Hauptschule, Realschule, Gymnasium, Gesamtschule, Öffentliche Verkehrsmittel
Die Infrastruktur ist hervorragend ausgebaut. Mehrere Kitas, Grundschulen, das Anne-Frank-Gymnasium sowie zahlreiche Spiel- und Sportstätten sind in der unmittelbaren Umgebung vorhanden. Einkaufsmöglichkeiten für den täglichen Bedarf sind bequem erreichbar, und auch das Berliner Stadtzentrum mit seinen vielfältigen Shopping- und Freizeitmöglichkeiten ist durch die gute Verkehrsanbindung schnell zu erreichen.
Die Autobahn A113 und die Bundesstraße B96a ermöglichen eine zügige Fahrt ins Zentrum, das in etwa 30 Minuten mit dem Auto erreichbar ist. Der öffentliche Nahverkehr ist durch die S-Bahn-Linien S8, S9, S45, S46, S85 sowie mehrere Buslinien (160, 163 und 260) hervorragend ausgebaut.
Die Umgebung bietet zahlreiche Freizeit- und Erholungsmöglichkeiten. Der angrenzende Natur- und Landschaftspark Rudow-Altglienicke lädt mit seiner weitläufigen, abwechslungsreichen Parklandschaft zur Erholung und Freizeitgestaltung ein. Auch die Rudower Höhe, der Falkenberg und die Spree bieten vielseitige Möglichkeiten für Entspannung und aktive Erholung. Altglienicke ist ein idealer Wohnort für alle, die ein ruhiges Leben im Grünen mit einer schnellen Anbindung an die Stadt suchen.
Infrastruktur (im Umkreis von 5 km):
Apotheke, Lebensmittel-Discount, Allgemeinmediziner, Kindergarten, Grundschule, Hauptschule, Realschule, Gymnasium, Gesamtschule, Öffentliche Verkehrsmittel
Kontaktanfrage senden
Über den Anbieter
OM PropTech GmbH
Humboldtstraße 25a
21509 Glinde
Kontakt
| Telefon | - |
| Fax | - |
| Website | www.ohne-makler.net |
Ansprechpartner/in
Privat vom Eigentümer
Weitere Angebote des Anbieters
12
2Raumwohnung mit Wohnküche
Wohnung
58452 Witten
Diese Wohnung wird nur an maximal zwei Personen über 25 Jahren, die arbeiten, vermietet. Voraussetzung für einen Mietvertrag ist Berufstätig und Deutschsprachigkeit. Besichtigungen können nur Vormittags angeboten ...
500 €
Kaltmiete (netto)
65 m²
Wohnfläche
2
Zimmer
45
Witten-Bommern: grosses Haus mit großem Grundstück zu ...
Haus
58452 Witten
Individuell ausgestattetes freistehendes Haus mit Fernblick, einem uneinsehbaren Innenhof und einem uneinsehbaren Grundstück mit einem großen Garten! Das Mietobjekt ist nur etwas für Gartenfreunde! Details werden nach ...
2.000 €
Kaltmiete (netto)
250 m²
Wohnfläche
8
Zimmer
4
Grundstück für Einfamilenhaus zu verkaufen
Grundstück
46244 Bottrop
Errichtet werden kann hier ein Einfamilienhaus. Das Einfamilienhaus ist nicht freistehend, sondern müsste direkt an das bereits bestehende Haus angebaut werden. Hier kann ein Einfamilienhaus mit einer Wohnfläche ...
200.000 €
Kaufpreis
400 m²
Grundstücksfläche
18
Top Lage für Laden,Bäckereicafe,Pizzeria ...
Einzelhandel
73312 Geislingen
Es handelt sich um eine sehr schöne, ebenerdige Tageslicht-Geschäftsfläche von 130 m², die ohne störende Säulen sehr großzügig ist und eine freie Gestaltung und Einteilung ermöglicht. Höhe EG ca. 3,40 Meter Den ...
keine Angabe
Preis
180 m²
Gesamtfläche
6
Private kleine Büros im Zuckerspeicher - 15 - 30 m² ...
Büro / Praxen
24103 Kiel
Der Zuckerspeicher in der Kieler Altstadt verbindet historische Architektur mit zeitgemäßer Ausstattung. Nach der umfassenden Kernsanierung entsteht ein repräsentatives Arbeitsumfeld in zentraler Lage. Im Erdgeschoss ...
keine Angabe
Preis
225 m²
Gesamtfläche