Nachmieter für helle 2-Z.-Wohnung mit Balkon gesucht–barrierefreie Objektgestaltung - provisionsfrei
655,44 €
Kaltmiete (netto)
798,22 €
Warmmiete
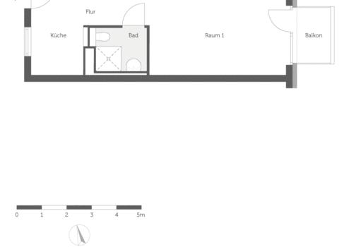
38,71 m²
Wohnfläche
1
Zimmer
immobilien.de Nr.: 9517925
Objektnummer: 0100/01035/0201/0061
Dateien
Mietpreis & Nebenkosten
| Kaltmiete (netto) | 655,44 € |
| Warmmiete | 798,22 € |
| Nebenkosten | 96,78 € |
| Heizkosten | 46 € |
| Kaution | 1966,32 € |
Wohnfläche, Grundstück & Bausubstanz
| Wohnfläche | 38,71 m² |
| Zimmer | 1 |
| Baujahr | 2022 |
| Verfügbar ab | 01.06.2026 |
Energie
| Energieausweistyp | Bedarfsausweis |
| Energieeffizienzklasse | B |
| Endenergiebedarf | 62.00 |
| Heizungsart | Zentralheizung |
| Energieträger/Befeuerung | Fernwärme |
Beschreibung der Immobilie
Die gut geschnittene Neubauwohnung befindet sich in neuer und gepflegter Wohnanlage. Der offen gehaltene Wohn- und Küchenbereich lässt vielfältige Gestaltungsmöglichkeiten zu. Alle Wohnungen verfügen über zentrale Warmwasserversorgung, Fußbodenheizung, hochwertigen Bodenbelag und Dusch- und/oder Wannenbad. Die Einbauküche sowie jegliches Inventar gehören nicht zur Mietsache und sind Eigentum des aktuellen Mieters. Die Küche kann jedoch gegen eine Abstandszahlung übernommen werden. Die Häuser der Waterkant wurden ohne zusätzliche Kellerräume erbaut. Sie sind an einer Besichtigung interessiert? Dann senden Sie uns bitte eine einfache Anfrage über den entsprechenden Button ("Anbieter kontaktieren" oder "Anfrage senden").
Ausstattungsmerkmale
| Anzahl der Etagen im Haus | 4 |
| Inserat befindet sich im Stockwerk | 3 |
| Balkone | 1 |
| Fahrstuhl | |
| Barrierefrei | |
| Haustiere |
bodengleiche Dusche, Fliesenboden, Fernheizung/Zentralheizung, Fern-/Zentralwarmwasserversorgung, Kunststoff-Bodenbelag, Steinboden, Schallschutzfenster, Glasfaserleitung, Fußbodenheizung, Barrierearme Wohnungsgestaltung
Sonstige Informationen
Hinweis zu Ihrem Schutz: Wir vermieten provisionsfrei gemäß § 2 WoVermG. Personen, die im Auftrag der Gewobag tätig sind, dürfen keine Provision von Ihnen verlangen.
Anbieter
Eigentümer/Vermieter oder Verwalter des jeweiligen Mietobjekts ist Gewobag Wohnungsbau-Aktien- gesellschaft Berlin. Die Gewobag MB Mieterberatungsgesellschaft mbH übernimmt den Vermietungsservice für diese Gesellschaft. Weitere Informationen finden Sie unter www.gewobag.de/datenschutz .
Anbieter
Eigentümer/Vermieter oder Verwalter des jeweiligen Mietobjekts ist Gewobag Wohnungsbau-Aktien- gesellschaft Berlin. Die Gewobag MB Mieterberatungsgesellschaft mbH übernimmt den Vermietungsservice für diese Gesellschaft. Weitere Informationen finden Sie unter www.gewobag.de/datenschutz .
Karte wird geladen...
Objektstandort
Rhenaniastr. 50
13599 Berlin
Lage & Infrastruktur
Objektstandort
Rhenaniastr. 50
13599 Berlin
Am östlichen Ufer der Oberhavel in Berlin Spandau entsteht ein modernes Wohnquartier - die Waterkant Berlin. Die natürliche Grenze im Westen bildet die Havel. Kitas, Schulen, ein Krankenhaus und die Nähe zur beliebten Einkaufsstraße der Altstadt Spandau machen diese naturnahe Lage besonders attraktiv.
Kontaktanfrage senden
Über den Anbieter
Gewobag Wohnungsbau-Aktiengesellschaft Berlin
Alt-Moabit 101 A
10559 Berlin
Kontakt
| Telefon | +49 30 47084000 |
| Website | www.gewobag.de |
Ansprechpartner/in
Gewobag MB Mieterberat.ges. mbH (Vermietungs-Service)
Weitere Angebote des Anbieters
11
Neubauwohnung mit Fußbodenheizung und Terrasse im ...
Wohnung
13599 Berlin
Die gut geschnittene Neubauwohnung befindet sich in neuer und gepflegter Wohnanlage. Der offen gehaltene Wohn- und Küchenbereich lässt vielfältige Gestaltungsmöglichkeiten zu. Die Wohnungen verfügen über Fußbodenheizung ...
1.560,47 €
Kaltmiete (netto)
98,25 m²
Wohnfläche
5
Zimmer
6
Nachmieter für helle 2-Z.-Wohnung mit Balkon ...
Wohnung
13599 Berlin
Die gut geschnittene Neubauwohnung befindet sich in neuer und gepflegter Wohnanlage. Der offen gehaltene Wohn- und Küchenbereich lässt vielfältige Gestaltungsmöglichkeiten zu. Alle Wohnungen verfügen über zentrale ...
655,44 €
Kaltmiete (netto)
38,71 m²
Wohnfläche
1
Zimmer
15
Großzügige Neubauwohnung an der Dahme mit 2 Bädern, ...
Wohnung
12557 Berlin
Willkommen in dieser wunderschönen und hellen Wohnung am Ufer der Dahme. Diese Neubauwohnung im Erstbezug lässt kaum Wünsche offen und präsentiert sich mit strapazierfähigen Vinylboden in Holzoptik, Fußbodenheizung, ...
1.692,73 €
Kaltmiete (netto)
116,74 m²
Wohnfläche
4
Zimmer
12
Geräumige Dachgeschosswohnung im Erstbezug
Wohnung
13599 Berlin
Die gut geschnittene Neubauwohnung befindet sich in neuer und gepflegter Wohnanlage. Der offen gehaltene Wohn- und Küchenbereich lässt vielfältige Gestaltungsmöglichkeiten zu. Alle Wohnungen verfügen über zentrale ...
1.773,61 €
Kaltmiete (netto)
111,67 m²
Wohnfläche
5
Zimmer
8
Neubau mit Fußbodenheizung und Balkon im Erstbezug / ...
Wohnung
13599 Berlin
Die gut geschnittene Neubauwohnung befindet sich in neuer und gepflegter Wohnanlage. Der offen gehaltene Wohn- und Küchenbereich lässt vielfältige Gestaltungsmöglichkeiten zu. Die Wohnungen verfügen über zentrale ...
638,02 €
Kaltmiete (netto)
55,48 m²
Wohnfläche
2
Zimmer