Die perfekte Balance aus Ruhe und Stadtleben: Ihr neues Reihenhaus – ab sofort provisionsfrei
199.900 €
Kaufpreis
143,9 m²
Wohnfläche
8
Zimmer
immobilien.de Nr.: 9517141
Objektnummer: 437748
Kaufpreis
| Kaufpreis | 199.900 € |
| Maklerprovision | keine Provision, courtagefrei |
Wohnfläche, Grundstück & Bausubstanz
| Wohnfläche | 143,9 m² |
| Grundstücksfläche | 318,45 m² |
| Zimmer | 8 |
| Baujahr | 1937 |
| Verfügbar ab | sofort |
| Zustand | Teil Vollrenovierungsbed |
Energie
| Energieausweistyp | Bedarfsausweis |
| Energieeffizienzklasse | F |
| Endenergiebedarf | 168 |
| Heizungsart | Zentralheizung |
| Energieträger/Befeuerung | Gas |
Beschreibung der Immobilie
Dieses Reihenhaus mit 8 Zimmern bietet auf rund 144 m² Wohnfläche viele Möglichkeiten zur individuellen Gestaltung. Es eignet sich besonders für:
Familien, die ihre Räume flexibel und nach eigenen Vorstellungen nutzen möchten
Mehrgenerationen-Haushalte mit getrennten Wohn- und Arbeitsbereichen
Wohnen und Arbeiten unter einem Dach, z. B. mit Büro oder Studio
Hobby- oder Handwerker, die Platz für Werkstatt und Lager benötigen.
Im Erdgeschoss befinden sich Küche, Wohn- und Essbereich auf großzügigen 55,38 m². Die offene Gestaltung schafft ein modernes Wohngefühl. Von hier aus gelangen Sie direkt in den Garten mit Terrasse.
Das Obergeschoss bietet auf 51,60 m² ruhige Rückzugsräume für die ganze Familie.
Im ausgebauten Dachgeschoss stehen Ihnen weitere 41,55 m² mit eigenem WC zur Verfügung – ideal als Kinderzimmer, Arbeitsbereich oder Studio.
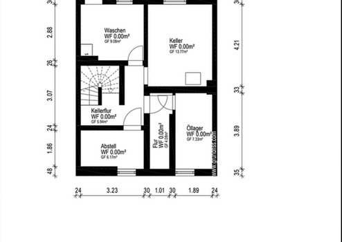
Der Keller ergänzt das Raumangebot mit 49,70 m² und bietet viel Stauraum sowie Platz für Waschmaschine und Trockner.
Familien, die ihre Räume flexibel und nach eigenen Vorstellungen nutzen möchten
Mehrgenerationen-Haushalte mit getrennten Wohn- und Arbeitsbereichen
Wohnen und Arbeiten unter einem Dach, z. B. mit Büro oder Studio
Hobby- oder Handwerker, die Platz für Werkstatt und Lager benötigen.
Im Erdgeschoss befinden sich Küche, Wohn- und Essbereich auf großzügigen 55,38 m². Die offene Gestaltung schafft ein modernes Wohngefühl. Von hier aus gelangen Sie direkt in den Garten mit Terrasse.
Das Obergeschoss bietet auf 51,60 m² ruhige Rückzugsräume für die ganze Familie.
Im ausgebauten Dachgeschoss stehen Ihnen weitere 41,55 m² mit eigenem WC zur Verfügung – ideal als Kinderzimmer, Arbeitsbereich oder Studio.
Der Keller ergänzt das Raumangebot mit 49,70 m² und bietet viel Stauraum sowie Platz für Waschmaschine und Trockner.
Ausstattungsmerkmale
| Anzahl der Etagen im Haus | 3 |
| Bad | 2 |
| Bad | Dusche, Wanne |
| Boden | Fliesen |
| Balkone | 1 |
| Garten | |
| Terrassen | 1 |
| Keller |
Balkon, Terrasse, Garten, Keller, Vollbad, Duschbad, Gäste-WC, Fliesen
Sonstige Informationen
Heizungsart: Zentralheizung
Energieträger: Gas
Nutzen Sie die Chance, dieses Haus in Bremerhaven-Lehe zu Ihrem persönlichen Zuhause zu machen. Der Renovierungsbedarf ist keine Einschränkung, sondern bietet viel Raum für eigene Ideen und kreative Gestaltung.
Bitte keine Makleranfragen!
Makleranfragen nicht erwünscht. Nach § 7 UWG sind unaufgeforderte Kontaktaufnahmen durch Makler ohne ausdrückliche Einwilligung des Empfängers verboten!
ohne-makler (OM) ist weder Anbieter noch Vermittler der Immobilie. OM betreibt eine Plattform für Immobilieneigentümer, die unter anderem die gleichzeitige Veröffentlichung einzelner Inserate auf mehreren Immobilienportalen ermöglicht. Die Inhalte dieser Inserate werden ausschließlich von Dritten verantwortet. Für die Richtigkeit, Vollständigkeit oder Rechtmäßigkeit der Angaben übernimmt OM keine Haftung. Hinweise auf mögliche Rechtsverstöße können jederzeit gemeldet werden und werden nach Prüfung umgehend bearbeitet.
Energieträger: Gas
Nutzen Sie die Chance, dieses Haus in Bremerhaven-Lehe zu Ihrem persönlichen Zuhause zu machen. Der Renovierungsbedarf ist keine Einschränkung, sondern bietet viel Raum für eigene Ideen und kreative Gestaltung.
Bitte keine Makleranfragen!
Makleranfragen nicht erwünscht. Nach § 7 UWG sind unaufgeforderte Kontaktaufnahmen durch Makler ohne ausdrückliche Einwilligung des Empfängers verboten!
ohne-makler (OM) ist weder Anbieter noch Vermittler der Immobilie. OM betreibt eine Plattform für Immobilieneigentümer, die unter anderem die gleichzeitige Veröffentlichung einzelner Inserate auf mehreren Immobilienportalen ermöglicht. Die Inhalte dieser Inserate werden ausschließlich von Dritten verantwortet. Für die Richtigkeit, Vollständigkeit oder Rechtmäßigkeit der Angaben übernimmt OM keine Haftung. Hinweise auf mögliche Rechtsverstöße können jederzeit gemeldet werden und werden nach Prüfung umgehend bearbeitet.
Karte wird geladen...
Objektstandort
27576 Bremerhaven
- Bremen
Lage & Infrastruktur
Objektstandort
27576 Bremerhaven
- Bremen
Das Reihenhaus liegt in einer ruhigen Nebenstraße in einer beliebten Wohnlage im Bremerhavener Stadtteil Lehe. Die Umgebung ist geprägt von grünen Gärten und einer angenehmen Nachbarschaft.
Einkaufsmöglichkeiten für den täglichen Bedarf sowie Schulen und Kindergärten sind bequem erreichbar. Eine sehr gute Anbindung an den öffentlichen Nahverkehr sowie die Nähe zur B 212 und A 27 sorgen für kurze Wege in alle Richtungen.
Freizeit- und Erholungsmöglichkeiten entlang der Weser, kulturelle Angebote und das Stadtzentrum sind ebenfalls schnell zu erreichen.
Infrastruktur (im Umkreis von 5 km):
Apotheke, Lebensmittel-Discount, Allgemeinmediziner, Kindergarten, Grundschule, Hauptschule, Realschule, Gymnasium, Gesamtschule, Öffentliche Verkehrsmittel
Einkaufsmöglichkeiten für den täglichen Bedarf sowie Schulen und Kindergärten sind bequem erreichbar. Eine sehr gute Anbindung an den öffentlichen Nahverkehr sowie die Nähe zur B 212 und A 27 sorgen für kurze Wege in alle Richtungen.
Freizeit- und Erholungsmöglichkeiten entlang der Weser, kulturelle Angebote und das Stadtzentrum sind ebenfalls schnell zu erreichen.
Infrastruktur (im Umkreis von 5 km):
Apotheke, Lebensmittel-Discount, Allgemeinmediziner, Kindergarten, Grundschule, Hauptschule, Realschule, Gymnasium, Gesamtschule, Öffentliche Verkehrsmittel
Kontaktanfrage senden
Über den Anbieter
OM PropTech GmbH
Humboldtstraße 25a
21509 Glinde
Kontakt
| Telefon | - |
| Fax | - |
| Website | www.ohne-makler.net |
Ansprechpartner/in
Privat von Marvin Schwiers-Boddien
Weitere Angebote des Anbieters
12
2Raumwohnung mit Wohnküche
Wohnung
58452 Witten
Diese Wohnung wird nur an maximal zwei Personen über 25 Jahren, die arbeiten, vermietet. Voraussetzung für einen Mietvertrag ist Berufstätig und Deutschsprachigkeit. Besichtigungen können nur Vormittags angeboten ...
500 €
Kaltmiete (netto)
65 m²
Wohnfläche
2
Zimmer
45
Witten-Bommern: grosses Haus mit großem Grundstück zu ...
Haus
58452 Witten
Individuell ausgestattetes freistehendes Haus mit Fernblick, einem uneinsehbaren Innenhof und einem uneinsehbaren Grundstück mit einem großen Garten! Das Mietobjekt ist nur etwas für Gartenfreunde! Details werden nach ...
2.000 €
Kaltmiete (netto)
250 m²
Wohnfläche
8
Zimmer
4
Grundstück für Einfamilenhaus zu verkaufen
Grundstück
46244 Bottrop
Errichtet werden kann hier ein Einfamilienhaus. Das Einfamilienhaus ist nicht freistehend, sondern müsste direkt an das bereits bestehende Haus angebaut werden. Hier kann ein Einfamilienhaus mit einer Wohnfläche ...
200.000 €
Kaufpreis
400 m²
Grundstücksfläche
18
Top Lage für Laden,Bäckereicafe,Pizzeria ...
Einzelhandel
73312 Geislingen
Es handelt sich um eine sehr schöne, ebenerdige Tageslicht-Geschäftsfläche von 130 m², die ohne störende Säulen sehr großzügig ist und eine freie Gestaltung und Einteilung ermöglicht. Höhe EG ca. 3,40 Meter Den ...
keine Angabe
Preis
180 m²
Gesamtfläche
6
Private kleine Büros im Zuckerspeicher - 15 - 30 m² ...
Büro / Praxen
24103 Kiel
Der Zuckerspeicher in der Kieler Altstadt verbindet historische Architektur mit zeitgemäßer Ausstattung. Nach der umfassenden Kernsanierung entsteht ein repräsentatives Arbeitsumfeld in zentraler Lage. Im Erdgeschoss ...
keine Angabe
Preis
225 m²
Gesamtfläche