Modernes Wohnen in Nottuln/Appelhülsen - Neubau-/ Sanierungsprojekt - Erdgeschoss - Nr.2
295.560 €
Kaufpreis
65,68 m²
Wohnfläche
2
Zimmer
immobilien.de Nr.: 9513498
Objektnummer: FALC-LeEi-77288
Kaufpreis
| Kaufpreis | 295.560 € |
Wohnfläche, Grundstück & Bausubstanz
| Wohnfläche | 65,68 m² |
| Zimmer | 2 |
| Baujahr | 2026 |
| Verfügbar ab | keine Angabe |
| Zustand | Voll Saniert |
Energie
| Wesentlicher Energieträger | Luftwärmepumpe |
| Energieträger/Befeuerung | Luft-Wärme-Pumpe |
Beschreibung der Immobilie
Diese hochwertige Erdgeschosswohnung mit privatem Zugang, befindet sich in einem massiv errichteten Mehrfamilienhaus in der Steverstraße 17 in Nottuln/Appelhülsen. Das Gebäude wurde im Zuge einer umfassenden Effizienzhaussanierung auf den Standard Effizienzhaus 55 EE gebracht und erfüllt damit hohe Anforderungen an Energieeffizienz und Wohnkomfort.
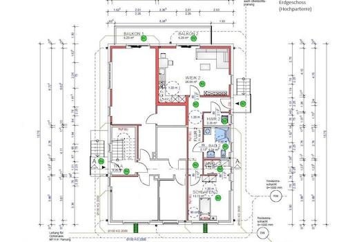
Die Wohnung verfügt über eine gut geschnittene Zwei-Zimmer-Aufteilung mit einem großzügigen Wohnbereich sowie einem separaten Schlafzimmer. Ein modernes Badezimmer ergänzt das Raumangebot. Die Wohnfläche beträgt 65,68 m² und wird durch eine Balkonfläche von 6,29 m² erweitert, die einen angenehmen Außenbereich auf Erdgeschossebene bietet.
Im Rahmen der Sanierung wurde das Gebäude mit einer modernen, wärmegedämmten und verputzten Außenfassade versehen. Die Fenster sind dreifach verglast. Die Beheizung sowie die Warmwasserbereitung erfolgen über eine Wärmepumpe auf Basis erneuerbarer Energien, ausgelegt als energieeffizientes Niedertemperatursystem. Zusätzlich sorgt eine kontrollierte Wohnraumlüftung für ein dauerhaft angenehmes Raumklima und unterstützt die nachhaltige Bauweise.
Zur Wohnung gehört ein eigener Kellerraum mit einer Fläche von 5,04 m², der praktischen Stauraum bietet. Ein Stellplatz ist ebenfalls vorhanden. Die gemeinschaftlich genutzten Außenanlagen umfassen gepflegte Grünflächen, einen Fahrradschuppen sowie eine Kinderspielfläche und tragen zu einem angenehmen Wohnumfeld bei.
Diese Wohnung eignet sich ideal für Singles oder Paare, die modernes, energieeffizientes Wohnen schätzen, ebenso wie für Kapitalanleger, die in ein nachhaltig saniertes Objekt mit guter Vermietbarkeit investieren möchten.
Die Wohnung verfügt über eine gut geschnittene Zwei-Zimmer-Aufteilung mit einem großzügigen Wohnbereich sowie einem separaten Schlafzimmer. Ein modernes Badezimmer ergänzt das Raumangebot. Die Wohnfläche beträgt 65,68 m² und wird durch eine Balkonfläche von 6,29 m² erweitert, die einen angenehmen Außenbereich auf Erdgeschossebene bietet.
Im Rahmen der Sanierung wurde das Gebäude mit einer modernen, wärmegedämmten und verputzten Außenfassade versehen. Die Fenster sind dreifach verglast. Die Beheizung sowie die Warmwasserbereitung erfolgen über eine Wärmepumpe auf Basis erneuerbarer Energien, ausgelegt als energieeffizientes Niedertemperatursystem. Zusätzlich sorgt eine kontrollierte Wohnraumlüftung für ein dauerhaft angenehmes Raumklima und unterstützt die nachhaltige Bauweise.
Zur Wohnung gehört ein eigener Kellerraum mit einer Fläche von 5,04 m², der praktischen Stauraum bietet. Ein Stellplatz ist ebenfalls vorhanden. Die gemeinschaftlich genutzten Außenanlagen umfassen gepflegte Grünflächen, einen Fahrradschuppen sowie eine Kinderspielfläche und tragen zu einem angenehmen Wohnumfeld bei.
Diese Wohnung eignet sich ideal für Singles oder Paare, die modernes, energieeffizientes Wohnen schätzen, ebenso wie für Kapitalanleger, die in ein nachhaltig saniertes Objekt mit guter Vermietbarkeit investieren möchten.
Ausstattungsmerkmale
| Inserat befindet sich im Stockwerk | 0 |
| Bad | 1 |
| Bad | Dusche, Fenster |
| Balkone | 1 |
| Keller |
– Vorderes Haus Nr. 17 | | Effizienzhaus 55 EE –
Effizienzhaus 55 EE
Wohnungsnummer: 2
Geschoss: Erdgeschoss
Zimmeranzahl: 2 Zimmer
Anzahl Badezimmer: 1
Wohnfläche: 65,68 m²
Terrassenfläche: 6,29 m²
Kellerraumfläche: 5,04 m²
Stellplatz: vorhanden
– Gebäude & Technik –
Massiv errichtetes Gebäude mit moderner, wärmegedämmter und verputzter Außenfassade.
Kernsanierung gemäß Effizienzhaus 55 EE
Wärmeerzeugung auf Basis erneuerbarer Energien
Wärmepumpe
Fußbodenheizung
Niedrige Vorlauftemperaturen
Hochwärmegedämmte Gebäudehülle
Wärmebrückenminimierte Bauweise
3-fach verglaste Fenster
Luftdichte Gebäudehülle
Kontrollierte Wohnraumlüftung
– Außenanlagen & Gemeinschaft –
Gemeinschaftsflächen
Fahrradschuppen
Kinderspielfläche im Außenbereich
Effizienzhaus 55 EE
Wohnungsnummer: 2
Geschoss: Erdgeschoss
Zimmeranzahl: 2 Zimmer
Anzahl Badezimmer: 1
Wohnfläche: 65,68 m²
Terrassenfläche: 6,29 m²
Kellerraumfläche: 5,04 m²
Stellplatz: vorhanden
– Gebäude & Technik –
Massiv errichtetes Gebäude mit moderner, wärmegedämmter und verputzter Außenfassade.
Kernsanierung gemäß Effizienzhaus 55 EE
Wärmeerzeugung auf Basis erneuerbarer Energien
Wärmepumpe
Fußbodenheizung
Niedrige Vorlauftemperaturen
Hochwärmegedämmte Gebäudehülle
Wärmebrückenminimierte Bauweise
3-fach verglaste Fenster
Luftdichte Gebäudehülle
Kontrollierte Wohnraumlüftung
– Außenanlagen & Gemeinschaft –
Gemeinschaftsflächen
Fahrradschuppen
Kinderspielfläche im Außenbereich
Sonstige Informationen
Wir bieten nicht nur eine kostenlose Hotline, sondern auch einen Service am Wochenende. Bei Interesse geben Sie bitte immer Ihre vollständigen Kontaktdaten an.
Die Objektbeschreibung beruht ganz oder zum Teil auf Angaben des Eigentümers. Für die Richtigkeit oder Vollständigkeit übernehmen wir keine Gewähr.
Sie wollen Ihre Immobilie ebenfalls professionell vermarkten, rufen Sie uns an, wir stehen Ihnen von Mo. bis So. von 6.00 - 22.00h persönlich zur Seite! Über 40.000 aktive Interessenten warten bereits auf Sie.
HINWEIS: Die gezeigten Darstellungen sind unverbindliche computergenerierte Visualisierungen eines noch nicht vollständig fertiggestellten Bauvorhabens. Sie dienen ausschließlich der Illustration des geplanten Endzustands. Der tatsächliche Ausführungszustand kann insbesondere hinsichtlich Gestaltung, Materialien, Farbgebung, Ausstattung sowie baulicher Details vom dargestellten Konzept abweichen.
FALC-Immobilien Nottuln
Alexander Jundt
alexander.jundt@falcimmo.de
Mobil (Mo-So/24/7/356): 0152 576 427 89
Hotline (6:00 - 22:00 Uhr): 0800 - 646 0 646
Die Objektbeschreibung beruht ganz oder zum Teil auf Angaben des Eigentümers. Für die Richtigkeit oder Vollständigkeit übernehmen wir keine Gewähr.
Sie wollen Ihre Immobilie ebenfalls professionell vermarkten, rufen Sie uns an, wir stehen Ihnen von Mo. bis So. von 6.00 - 22.00h persönlich zur Seite! Über 40.000 aktive Interessenten warten bereits auf Sie.
HINWEIS: Die gezeigten Darstellungen sind unverbindliche computergenerierte Visualisierungen eines noch nicht vollständig fertiggestellten Bauvorhabens. Sie dienen ausschließlich der Illustration des geplanten Endzustands. Der tatsächliche Ausführungszustand kann insbesondere hinsichtlich Gestaltung, Materialien, Farbgebung, Ausstattung sowie baulicher Details vom dargestellten Konzept abweichen.
FALC-Immobilien Nottuln
Alexander Jundt
alexander.jundt@falcimmo.de
Mobil (Mo-So/24/7/356): 0152 576 427 89
Hotline (6:00 - 22:00 Uhr): 0800 - 646 0 646
Karte wird geladen...
Objektstandort
48301 Nottuln
- Nordrhein-Westfalen
Lage & Infrastruktur
Objektstandort
48301 Nottuln
- Nordrhein-Westfalen
Die Immobilie befindet sich in Appelhülsen, einer Gemeinde im Münsterland mit sehr guter Verkehrsanbindung und gewachsener Infrastruktur. Die Lage eignet sich gleichermaßen für Pendler, Eigennutzer und Kapitalanleger.
Ein wesentlicher Standortvorteil ist die Nähe zum Bahnhof Appelhülsen, der bequem und fußläufig zu erreichbar ist. Von hier bestehen regelmäßige Zugverbindungen in Richtung Münster sowie zu weiteren regionalen Zielen. Die Innenstadt von Münster ist damit zügig und unkompliziert erreichbar, was insbesondere für Berufspendler und Studierende attraktiv ist.
Auch die Anbindung an den Individualverkehr ist sehr gut. Über die nahegelegene Autobahn A43 besteht eine schnelle Verbindung sowohl in Richtung Münster als auch in Richtung Ruhrgebiet.
Appelhülsen verfügt über eine solide Infrastruktur mit Einkaufsmöglichkeiten für den täglichen Bedarf, Kindergärten, Schulen und medizinischer Versorgung. Ergänzt wird dies durch das grüne Umland des Münsterlandes mit vielfältigen Freizeit- und Erholungsmöglichkeiten, Radwegen und Naherholungsflächen.
Die Lage überzeugt insgesamt durch die Kombination aus ruhigem Wohnen, guter ÖPNV-Anbindung und kurzen Wegen zu den wirtschaftlich starken Regionen Münster und Ruhrgebiet.
Ein wesentlicher Standortvorteil ist die Nähe zum Bahnhof Appelhülsen, der bequem und fußläufig zu erreichbar ist. Von hier bestehen regelmäßige Zugverbindungen in Richtung Münster sowie zu weiteren regionalen Zielen. Die Innenstadt von Münster ist damit zügig und unkompliziert erreichbar, was insbesondere für Berufspendler und Studierende attraktiv ist.
Auch die Anbindung an den Individualverkehr ist sehr gut. Über die nahegelegene Autobahn A43 besteht eine schnelle Verbindung sowohl in Richtung Münster als auch in Richtung Ruhrgebiet.
Appelhülsen verfügt über eine solide Infrastruktur mit Einkaufsmöglichkeiten für den täglichen Bedarf, Kindergärten, Schulen und medizinischer Versorgung. Ergänzt wird dies durch das grüne Umland des Münsterlandes mit vielfältigen Freizeit- und Erholungsmöglichkeiten, Radwegen und Naherholungsflächen.
Die Lage überzeugt insgesamt durch die Kombination aus ruhigem Wohnen, guter ÖPNV-Anbindung und kurzen Wegen zu den wirtschaftlich starken Regionen Münster und Ruhrgebiet.
Kontaktanfrage senden
Über den Anbieter
FALC Immobilien GmbH & Co. KG
Humperdickstr. 3
53773 Hennef (Sieg)
Kontakt
| Telefon | 0800 - 646 0 646 |
| Mobil | +49 152 57642789 |
| Fax | +49 2242 9010319 |
| Website | www.falcimmo.de |
Ansprechpartner/in
Herr Alexander Jundt
Weitere Angebote des Anbieters
13
Hervorragendes Familienhaus im Norden von Tapolca
Haus
8300 Tapolca
In einer der gefragtesten Wohnlagen von Tapolca präsentiert sich dieses hervorragend erhaltene Einfamilienhaus als ideale Immobilie für Menschen, die ein neues Leben in Ungarn beginnen möchten oder eine wertstabile ...
293.000 €
Kaufpreis
93 m²
Wohnfläche
3
Zimmer
13
Sanierungsbedürftiges Haus im schönen Zalatal
Haus
8796 Türje
- Wohnfläche: 81 m², Grundstücksfläche: 1060 m² - Mischbauweise (Lehmziegel + Ziegel), Außenansicht in gutem Zustand, Innenbereich renovierungsbedürftig - Ziegeldach, Dachkonstruktion in gutem Zustand - Wasseranschluss ...
34.400 €
Kaufpreis
81 m²
Wohnfläche
2
Zimmer
19
Provisionsfrei. Modernisiertes Einfamilienhaus in ...
Haus
39175 Biederitz
Jetzt bitte aufgepasst! Sie und Ihre Familie sind auf der Suche nach einem gepflegten Einfamilienhaus in guter Lage? Herr Morris Rymarczyk von FALC Immobilien Magdeburg freut sich, Ihnen ein attraktives Immobilienangebo ...
299.000 €
Kaufpreis
118 m²
Wohnfläche
4
Zimmer
15
Gemütliches Landhaus mit großem Grundstück in ruhiger ...
Haus
8767 Felsőrajk
Großzügiges Einfamilienhaus mit mehreren Parzellen Im Kreis Zala, in einer ruhigen Gegend bei Pacsa, bieten wir ein 75 m² großes, massives Einfamilienhaus auf einem 5040 m² großen, in mehrere Parzellen aufgeteilten ...
67.000 €
Kaufpreis
75 m²
Wohnfläche
3
Zimmer
46
Seltene Gelegenheit in Dülmen – Großzügiges ...
Haus
48249 Dülmen
Ein einmaliges Mehrgenerationenhaus in Dülmen – Wohnen für die ganze Familie Dieses einzigartige Immobilien-Unikat in Dülmen vereint großzügiges Wohnen, moderne Ausstattung und eine familienfreundliche Aufteilung auf ...
599.000 €
Kaufpreis
240 m²
Wohnfläche
8
Zimmer