Provisionsfrei* Grundstück in Wiehl-Hückhausen inkl. gültiger Baugenehmigung 300qm WFL / Unverbaubare Weitsicht
175.000 €
Kaufpreis
immobilien.de Nr.: 9512848
Objektnummer: 135417-[25671]
Kaufpreis
| Kaufpreis | 175.000 € |
| Maklerprovision |
Wohnfläche, Grundstück & Bausubstanz
| Grundstücksfläche | 1.209 m² |
| Verfügbar ab | sofort |
Beschreibung der Immobilie
Zum Verkauf steht ein 1.209 qm großes Grundstück in 51674 Wiehl, Ortsteil Hückhausen, Im Burscheid 8b. Für das Grundstück liegt eine erteilte Baugenehmigung (einfaches Genehmigungsverfahren) zur Errichtung eines Mehrfamilienhauses mit 3 Wohneinheiten sowie eines Carports mit 5 Stellplätzen vor.
Besonderes Highlight: Der reine Grundstückswert liegt laut Bodenrichtwert 2026 bereits bei ca. 132.990 EUR (110 EUR/qm x 1.209 qm) - die vorhandene, verlängerte Baugenehmigung und die kompletten Planunterlagen kommen damit faktisch "on top".
Die Baugenehmigung wurde am 30.08.2022 erteilt und am 07.08.2025 bis zum 29.08.2026 verlängert, weitere Verlängerungen sind möglich. Damit bietet das Angebot eine seltene Kombination aus Grundstück und kurzfristig realisierbarer, bereits genehmigter Planung.
Aktuell sind 2 nutzbare Garagen auf dem Grundstück vorhanden.
Mit dem Bau des genehmigten 3 Parteienhaus kann sofort begonnen werden.
Ideal als Anlage + zusätzliche 5% Sonder-AFA on TOP.
Oder zur Selbstnutzung, z.b. eine Partei nutzen und über die anderen beiden vermieteten das eigene Haus abzahlen lassen.
Der Bauantrag insgesamt und die Grundrisse / Aufteilung kann natürlich durch Sie auch weiter auf ihre Wünsche angepasst und umgeplant werden.
Die Baugenehmigung und alle relevanten Unterlagen können per E-Mail angefordert werden.
Besonderes Highlight: Der reine Grundstückswert liegt laut Bodenrichtwert 2026 bereits bei ca. 132.990 EUR (110 EUR/qm x 1.209 qm) - die vorhandene, verlängerte Baugenehmigung und die kompletten Planunterlagen kommen damit faktisch "on top".
Die Baugenehmigung wurde am 30.08.2022 erteilt und am 07.08.2025 bis zum 29.08.2026 verlängert, weitere Verlängerungen sind möglich. Damit bietet das Angebot eine seltene Kombination aus Grundstück und kurzfristig realisierbarer, bereits genehmigter Planung.
Aktuell sind 2 nutzbare Garagen auf dem Grundstück vorhanden.
Mit dem Bau des genehmigten 3 Parteienhaus kann sofort begonnen werden.
Ideal als Anlage + zusätzliche 5% Sonder-AFA on TOP.
Oder zur Selbstnutzung, z.b. eine Partei nutzen und über die anderen beiden vermieteten das eigene Haus abzahlen lassen.
Der Bauantrag insgesamt und die Grundrisse / Aufteilung kann natürlich durch Sie auch weiter auf ihre Wünsche angepasst und umgeplant werden.
Die Baugenehmigung und alle relevanten Unterlagen können per E-Mail angefordert werden.
Sonstige Informationen
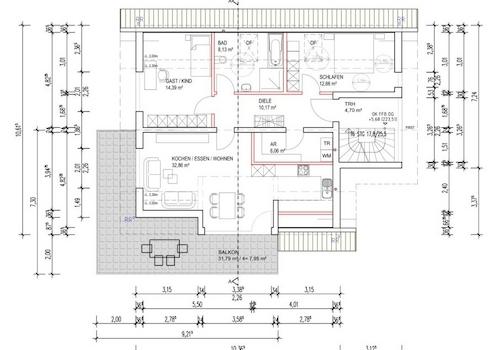
Wohnflächen der 3 Einheiten (laut genehmigten Grundrissen)
- Wohnung 1 (EG): 101,21 qm Wohnfläche (+ 15,24 qm Nutzfläche)
- Wohnung 2 (OG): 106,86 qm Wohnfläche
- Wohnung 3 (DG): 92,22 qm Wohnfläche
- Summe Wohnfläche: ca. 300,29 qm
- Planungsrecht: genehmigt nach Paragraph 34 BauGB (gem. amtlichem
- Baulasten: keine Baulast eingetragen
- Wohnung 1 (EG): 101,21 qm Wohnfläche (+ 15,24 qm Nutzfläche)
- Wohnung 2 (OG): 106,86 qm Wohnfläche
- Wohnung 3 (DG): 92,22 qm Wohnfläche
- Summe Wohnfläche: ca. 300,29 qm
- Planungsrecht: genehmigt nach Paragraph 34 BauGB (gem. amtlichem
- Baulasten: keine Baulast eingetragen
Karte wird geladen...
Objektstandort
Im Burscheid 8b
51674 Wiehl
- Nordrhein-Westfalen
Lage & Infrastruktur
Objektstandort
Im Burscheid 8b
51674 Wiehl
- Nordrhein-Westfalen
Adresse: Im Burscheid 8b, 51674 Wiehl (Hückhausen)
- Fläche: 1.209 qm
- Gemarkung/Flur/Flurstück: Weiershagen / Flur 24 / Flurstück 217
- Straßenfront: ca. 32 m
- Topographie: steil ansteigend von der Straße, dadurch wunderschöner Weitblick
- Fläche: 1.209 qm
- Gemarkung/Flur/Flurstück: Weiershagen / Flur 24 / Flurstück 217
- Straßenfront: ca. 32 m
- Topographie: steil ansteigend von der Straße, dadurch wunderschöner Weitblick
Kontaktanfrage senden
Über den Anbieter
immo-for-less Privat vom Eigentümer
Bierweg 19
99310 Arnstadt
Kontakt
| Telefon | |
| Mobil | |
| Fax | |
| Website | www.immo-for-less.de |
Ansprechpartner/in
von
Privat
Weitere Angebote des Anbieters
14
Provisionsfrei* LUXUSPUR 5 Zi. 147m² Penthousefeeling ...
Wohnung
73547 Lorch
. Gepflegte 5 - Zi. DG Wohnung LUXUSPUR ca. 147 qm Grundflächewohnfläche über das gesamte Dachgeschoss nach DIN 110 qm # Niedrigenergiebauweise extrem niedriger Verbrauch Energieverbrauch 58 kwh ( m2 a) Gas # .
418.000 €
Kaufpreis
110 m²
Wohnfläche
5
Zimmer
15
Provisionsfrei* Neu! Geräumiges, solides 2-FH mit ...
Haus
46485 Wesel
Es handelt sich um ein gepflegtes Zweifamilienhaus (oder auch Einfamilienhaus), voll unterkellert, auf einem großen Grundstück in bevorzugter und ruhiger Wohnlage. Das Haus vermittelt einen freundlichen und hellen ...
450.000 €
Kaufpreis
135 m²
Wohnfläche
6
Zimmer
10
Provisionsfrei* Grundstück in Wiehl-Hückhausen inkl. ...
Grundstück
51674 Wiehl
Zum Verkauf steht ein 1.209 qm großes Grundstück in 51674 Wiehl, Ortsteil Hückhausen, Im Burscheid 8b. Für das Grundstück liegt eine erteilte Baugenehmigung (einfaches Genehmigungsverfahren) zur Errichtung eines ...
175.000 €
Kaufpreis
1.209 m²
Grundstücksfläche
22
Provisionsfrei* Exklusives Reihenhaus in Toplage mit ...
Haus
14089 Berlin
Dieses neuwertige Reihenmittelhaus im modernen Townhouse-Stil bietet eine gelungene Kombination aus zeitgemäßer Architektur, energieeffizienter Bauweise (KfW-55) und hochwertiger Ausstattung - ideal für Familien, Paare ...
799.000 €
Kaufpreis
157 m²
Wohnfläche
6
Zimmer
18
Provisionsfrei* Modernisierte Kapitalanlage in ...
Haus
47053 Duisburg
Zum Verkauf steht ein gepflegtes und in den letzten Jahren umfassend modernisiertes Mehrfamilienhaus in Duisburg-Hochfeld. Die Immobilie eignet sich ideal als langfristige Kapitalanlage und überzeugt durch ihre solide ...
479.000 €
Kaufpreis
277,24 m²
Wohnfläche
20
Zimmer