Modernes, großes, vielseitiges Haus inkl. Garage * in Kordel
249.000 €
Kaufpreis
277 m²
Wohnfläche
9
Zimmer
immobilien.de Nr.: 9512483
Objektnummer: 432535
Kaufpreis
| Kaufpreis | 249.000 € |
| Maklerprovision | keine Provision, courtagefrei |
Wohnfläche, Grundstück & Bausubstanz
| Wohnfläche | 277 m² |
| Grundstücksfläche | 803 m² |
| Zimmer | 9 |
| Baujahr | 1997 |
| Verfügbar ab | sofort |
| Zustand | Neuwertig |
Energie
| Heizungsart | Zentralheizung |
| Energieträger/Befeuerung | Öl |
Beschreibung der Immobilie
Dieses großzügige, massiv gebaute Haus wurde ca. 1976 errichtet und im Laufe der Jahre kontinuierlich modernisiert. Durch die zahlreichen Erneuerungen ergibt sich ein fiktives Baujahr von etwa 1997. Die Immobilie befindet sich in ruhiger und angenehmer Wohnlage von Kordel und überzeugt durch eine durchdachte Raumaufteilung sowie einen gepflegten Gesamtzustand.
Das Haus bietet vielfältige Nutzungsmöglichkeiten:
Es eignet sich ideal als großzügiges Einfamilienhaus, Mehrgenerationenhaus oder auch als Haus mit Einliegerwohnung. Mit wenigen Anpassungen lässt sich die Immobilie zudem problemlos als 3-Familienhaus nutzen.
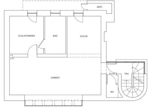
Im Erdgeschoss erwartet Sie ein großzügiges und lichtdurchflutetes Wohnzimmer mit angeschlossener Küche. Darüber hinaus befindet sich hier ein weiteres Zimmer, das sich ideal als Gästezimmer oder Büro nutzen lässt, mit direktem Zugang zum Badezimmer.
Das 1. Obergeschoss verfügt über zwei Schlafzimmer, ein Badezimmer sowie ein weiteres großes Wohnzimmer mit angeschlossener Küche.
Im Dachgeschoss befinden sich ein Studio-Zimmer sowie ein kompaktes Badezimmer, wodurch zusätzlicher Wohnraum mit vielseitigen Nutzungsmöglichkeiten entsteht.
Das Haus ist vollständig unterkellert und bietet mehrere Kellerräume mit reichlich Abstell- und Stauraum. Zusätzlich befinden sich im Untergeschoss drei Schlafzimmer sowie ein großer Wohnraum mit integrierter Küche und ein Badezimmer sowie Gäste-WC.
Vom Erdgeschoss aus gelangen Sie auf die großzügige Terrasse, die zum Entspannen und Verweilen einlädt.
Der Energieausweis wird derzeit erstellt.
Makler Anfragen sind ausdrücklich nicht erwünscht und werden nicht beantwortet.
Das Haus bietet vielfältige Nutzungsmöglichkeiten:
Es eignet sich ideal als großzügiges Einfamilienhaus, Mehrgenerationenhaus oder auch als Haus mit Einliegerwohnung. Mit wenigen Anpassungen lässt sich die Immobilie zudem problemlos als 3-Familienhaus nutzen.
Im Erdgeschoss erwartet Sie ein großzügiges und lichtdurchflutetes Wohnzimmer mit angeschlossener Küche. Darüber hinaus befindet sich hier ein weiteres Zimmer, das sich ideal als Gästezimmer oder Büro nutzen lässt, mit direktem Zugang zum Badezimmer.
Das 1. Obergeschoss verfügt über zwei Schlafzimmer, ein Badezimmer sowie ein weiteres großes Wohnzimmer mit angeschlossener Küche.
Im Dachgeschoss befinden sich ein Studio-Zimmer sowie ein kompaktes Badezimmer, wodurch zusätzlicher Wohnraum mit vielseitigen Nutzungsmöglichkeiten entsteht.
Das Haus ist vollständig unterkellert und bietet mehrere Kellerräume mit reichlich Abstell- und Stauraum. Zusätzlich befinden sich im Untergeschoss drei Schlafzimmer sowie ein großer Wohnraum mit integrierter Küche und ein Badezimmer sowie Gäste-WC.
Vom Erdgeschoss aus gelangen Sie auf die großzügige Terrasse, die zum Entspannen und Verweilen einlädt.
Der Energieausweis wird derzeit erstellt.
Makler Anfragen sind ausdrücklich nicht erwünscht und werden nicht beantwortet.
Ausstattungsmerkmale
| Anzahl der Etagen im Haus | 3 |
| Bad | 4 |
| Bad | Dusche, Wanne |
| Boden | Fliesen, Laminat |
| Balkone | 0 |
| Garten | |
| Terrassen | 1 |
| Garage/Stellplätze | 1 |
| Keller |
Terrasse, Wintergarten, Garten, Keller, Vollbad, Duschbad, Gäste-WC, Laminat, Fliesen
Sonstige Informationen
Heizungsart: Zentralheizung
Energieträger: Öl
Energieausweis nicht vorhanden
Makleranfragen nicht erwünscht. Nach § 7 UWG sind unaufgeforderte Kontaktaufnahmen durch Makler ohne ausdrückliche Einwilligung des Empfängers verboten!
ohne-makler (OM) ist weder Anbieter noch Vermittler der Immobilie. OM betreibt eine Plattform für Immobilieneigentümer, die unter anderem die gleichzeitige Veröffentlichung einzelner Inserate auf mehreren Immobilienportalen ermöglicht. Die Inhalte dieser Inserate werden ausschließlich von Dritten verantwortet. Für die Richtigkeit, Vollständigkeit oder Rechtmäßigkeit der Angaben übernimmt OM keine Haftung. Hinweise auf mögliche Rechtsverstöße können jederzeit gemeldet werden und werden nach Prüfung umgehend bearbeitet.
Energieträger: Öl
Energieausweis nicht vorhanden
Makleranfragen nicht erwünscht. Nach § 7 UWG sind unaufgeforderte Kontaktaufnahmen durch Makler ohne ausdrückliche Einwilligung des Empfängers verboten!
ohne-makler (OM) ist weder Anbieter noch Vermittler der Immobilie. OM betreibt eine Plattform für Immobilieneigentümer, die unter anderem die gleichzeitige Veröffentlichung einzelner Inserate auf mehreren Immobilienportalen ermöglicht. Die Inhalte dieser Inserate werden ausschließlich von Dritten verantwortet. Für die Richtigkeit, Vollständigkeit oder Rechtmäßigkeit der Angaben übernimmt OM keine Haftung. Hinweise auf mögliche Rechtsverstöße können jederzeit gemeldet werden und werden nach Prüfung umgehend bearbeitet.
Karte wird geladen...
Objektstandort
Butzweiler Str. 52
54306 Kordel
- Rheinland-Pfalz
Kontaktanfrage senden
Über den Anbieter
OM PropTech GmbH
Humboldtstraße 25a
21509 Glinde
Kontakt
| Telefon | 0170 9763297 |
| Fax | - |
| Website | www.ohne-makler.net |
Ansprechpartner/in
Privat von Herr Mate.
Weitere Angebote des Anbieters
12
2Raumwohnung mit Wohnküche
Wohnung
58452 Witten
Diese Wohnung wird nur an maximal zwei Personen über 25 Jahren, die arbeiten, vermietet. Voraussetzung für einen Mietvertrag ist Berufstätig und Deutschsprachigkeit. Besichtigungen können nur Vormittags angeboten ...
500 €
Kaltmiete (netto)
65 m²
Wohnfläche
2
Zimmer
45
Witten-Bommern: grosses Haus mit großem Grundstück zu ...
Haus
58452 Witten
Individuell ausgestattetes freistehendes Haus mit Fernblick, einem uneinsehbaren Innenhof und einem uneinsehbaren Grundstück mit einem großen Garten! Das Mietobjekt ist nur etwas für Gartenfreunde! Details werden nach ...
2.000 €
Kaltmiete (netto)
250 m²
Wohnfläche
8
Zimmer
4
Grundstück für Einfamilenhaus zu verkaufen
Grundstück
46244 Bottrop
Errichtet werden kann hier ein Einfamilienhaus. Das Einfamilienhaus ist nicht freistehend, sondern müsste direkt an das bereits bestehende Haus angebaut werden. Hier kann ein Einfamilienhaus mit einer Wohnfläche ...
200.000 €
Kaufpreis
400 m²
Grundstücksfläche
18
Top Lage für Laden,Bäckereicafe,Pizzeria ...
Einzelhandel
73312 Geislingen
Es handelt sich um eine sehr schöne, ebenerdige Tageslicht-Geschäftsfläche von 130 m², die ohne störende Säulen sehr großzügig ist und eine freie Gestaltung und Einteilung ermöglicht. Höhe EG ca. 3,40 Meter Den ...
keine Angabe
Preis
180 m²
Gesamtfläche
6
Private kleine Büros im Zuckerspeicher - 15 - 30 m² ...
Büro / Praxen
24103 Kiel
Der Zuckerspeicher in der Kieler Altstadt verbindet historische Architektur mit zeitgemäßer Ausstattung. Nach der umfassenden Kernsanierung entsteht ein repräsentatives Arbeitsumfeld in zentraler Lage. Im Erdgeschoss ...
keine Angabe
Preis
225 m²
Gesamtfläche