Erstbezug kernsanierte Wohnung 111m2 4-Zimmer NEU mit großem Balkon
1.165 €
Kaltmiete (netto)
111 m²
Wohnfläche
4
Zimmer
immobilien.de Nr.: 9511675
Objektnummer: 437018
Mietpreis & Nebenkosten
| Kaltmiete (netto) | 1.165 € |
| Nebenkosten | 300 € |
| Heizkosten enthalten | Ja |
Wohnfläche, Grundstück & Bausubstanz
| Wohnfläche | 111 m² |
| Zimmer | 4 |
| Baujahr | 2026 |
| Verfügbar ab | 01.07.2026 |
| Zustand | Teil Vollsaniert |
Energie
| Heizungsart | Fußbodenheizung |
| Energieträger/Befeuerung | Luft-Wärme-Pumpe |
Beschreibung der Immobilie
Vermietet wird ab 01.07.2026 die großzügige 4 Zimmer Wohnung eines gepflegten 8‑Parteienhauses in der Crailsheimer Str. 2 Frankenhardt‑Gründelhardt (ehem. Gasthof Hirsch).
Das Haus wird aktuell energetisch kernsaniert und rundum erneuert, u.a. neue Elektrik, Wasser / Abwasser, Heizung (Fußbodenheizung durch Wärmepumpe mit PV Anlage für günstigeren Strom), neues Dach, Dämmung, Fenster, neue Oberflächen (Böden, Decken, Wände)...
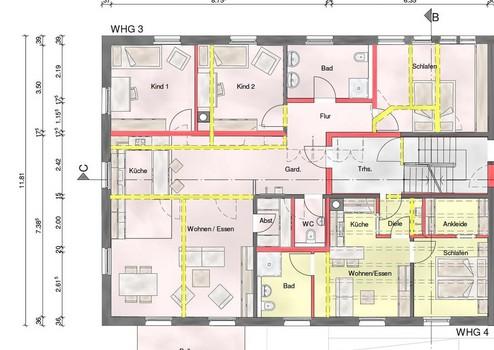
Die Wohnung hat einen großzügigen Wohn-/ Essbereich mit Zugang zum großen Balkon, 3 Schlafzimmer, ein Bad, Gäste WC und eine Abstellkammer.
Die Einbauküche kann für 60€/ Monat gemietet werden.
Neben dieser Wohnung gibt es eine weitere 3-Zimmer Wohnung mit ca. 113m2 und eine 2-Zimmer Wohnung mit ca. 74m2.
Objektzustand: Erstbezug nach Sanierung
Das Haus wird aktuell energetisch kernsaniert und rundum erneuert, u.a. neue Elektrik, Wasser / Abwasser, Heizung (Fußbodenheizung durch Wärmepumpe mit PV Anlage für günstigeren Strom), neues Dach, Dämmung, Fenster, neue Oberflächen (Böden, Decken, Wände)...
Die Wohnung hat einen großzügigen Wohn-/ Essbereich mit Zugang zum großen Balkon, 3 Schlafzimmer, ein Bad, Gäste WC und eine Abstellkammer.
Die Einbauküche kann für 60€/ Monat gemietet werden.
Neben dieser Wohnung gibt es eine weitere 3-Zimmer Wohnung mit ca. 113m2 und eine 2-Zimmer Wohnung mit ca. 74m2.
Objektzustand: Erstbezug nach Sanierung
Ausstattungsmerkmale
| Anzahl der Etagen im Haus | 3 |
| Inserat befindet sich im Stockwerk | 1 |
| Küche | Einbauküche |
| Bad | 2 |
| Bad | Dusche |
| Boden | Fliesen, Kunststoff |
| Balkone | 1 |
| Terrassen | 0 |
Balkon, Duschbad, Einbauküche, Gäste-WC, Fliesen
Bemerkungen:
Aufwändig und energetisch hochwertig saniert, angenehme Fußbodenheizung.
Der erzeugte Strom der PV Anlage wird u.a. eingesetzt um die Wärmepumpe zu betreiben und senkt dadurch die Nebenkosten.
Eine Einbauküche mit Geräten wird eingebaut und kostet 60€ / Monat.
Bemerkungen:
Aufwändig und energetisch hochwertig saniert, angenehme Fußbodenheizung.
Der erzeugte Strom der PV Anlage wird u.a. eingesetzt um die Wärmepumpe zu betreiben und senkt dadurch die Nebenkosten.
Eine Einbauküche mit Geräten wird eingebaut und kostet 60€ / Monat.
Sonstige Informationen
Heizungsart: Fußbodenheizung
Energieträger: Luft-/Wasserwärme
Energieausweis nicht vorhanden
Makleranfragen nicht erwünscht. Nach § 7 UWG sind unaufgeforderte Kontaktaufnahmen durch Makler ohne ausdrückliche Einwilligung des Empfängers verboten!
ohne-makler (OM) ist weder Anbieter noch Vermittler der Immobilie. OM betreibt eine Plattform für Immobilieneigentümer, die unter anderem die gleichzeitige Veröffentlichung einzelner Inserate auf mehreren Immobilienportalen ermöglicht. Die Inhalte dieser Inserate werden ausschließlich von Dritten verantwortet. Für die Richtigkeit, Vollständigkeit oder Rechtmäßigkeit der Angaben übernimmt OM keine Haftung. Hinweise auf mögliche Rechtsverstöße können jederzeit gemeldet werden und werden nach Prüfung umgehend bearbeitet.
Energieträger: Luft-/Wasserwärme
Energieausweis nicht vorhanden
Makleranfragen nicht erwünscht. Nach § 7 UWG sind unaufgeforderte Kontaktaufnahmen durch Makler ohne ausdrückliche Einwilligung des Empfängers verboten!
ohne-makler (OM) ist weder Anbieter noch Vermittler der Immobilie. OM betreibt eine Plattform für Immobilieneigentümer, die unter anderem die gleichzeitige Veröffentlichung einzelner Inserate auf mehreren Immobilienportalen ermöglicht. Die Inhalte dieser Inserate werden ausschließlich von Dritten verantwortet. Für die Richtigkeit, Vollständigkeit oder Rechtmäßigkeit der Angaben übernimmt OM keine Haftung. Hinweise auf mögliche Rechtsverstöße können jederzeit gemeldet werden und werden nach Prüfung umgehend bearbeitet.
Karte wird geladen...
Objektstandort
Crailsheimer Str. 2
74586 Frankenhardt-Gründelhardt
- Baden-Württemberg
Lage & Infrastruktur
Objektstandort
Crailsheimer Str. 2
74586 Frankenhardt-Gründelhardt
- Baden-Württemberg
Das Haus befindet sich im Ortskern von Gründelhardt. Alle Dinge des täglichen Lebens wie Lebensmittel / Discounter, Kindergarten, Grundschule, Ärzte etc. sind zu Fuß in kurzer Zeit zu erreichen.
Die Stellplätze befinden sich auf dem Grundstück direkt neben dem Haus.
Mit dem Auto ist man schnell in Crailsheim oder Schwäbisch Hall.
Infrastruktur (im Umkreis von 5 km):
Apotheke, Lebensmittel-Discount, Allgemeinmediziner, Kindergarten, Grundschule, Hauptschule, Realschule, Gesamtschule, Öffentliche Verkehrsmittel
Die Stellplätze befinden sich auf dem Grundstück direkt neben dem Haus.
Mit dem Auto ist man schnell in Crailsheim oder Schwäbisch Hall.
Infrastruktur (im Umkreis von 5 km):
Apotheke, Lebensmittel-Discount, Allgemeinmediziner, Kindergarten, Grundschule, Hauptschule, Realschule, Gesamtschule, Öffentliche Verkehrsmittel
Kontaktanfrage senden
Über den Anbieter
OM PropTech GmbH
Humboldtstraße 25a
21509 Glinde
Kontakt
| Telefon | - |
| Fax | - |
| Website | www.ohne-makler.net |
Ansprechpartner/in
Privat von Claudius Göller
Weitere Angebote des Anbieters
17
4 ZKB nach vollständiger Renovierung in zentraler Lage
Wohnung
55286 Wörrstadt
Frisch sanierte 4-Zimmer-Wohnung mit ca. 115 m² Wohnfläche in einem ruhigen Dreifamilienhaus in Wörrstadt. Die Wohnung wurde vollständig erneuert: neue Böden, neue Decken, frisch verputzte und gestrichene Wände, ...
1.300 €
Kaltmiete (netto)
115 m²
Wohnfläche
4
Zimmer
9
Bezugsfreie Wohnung nahe Hermannplatz
Wohnung
12053 Berlin
Bezugsfrei. Direkt vom Eigentümer. In einem gepflegten Haus in der Neuköllner Reuterstraße befindet sich diese frisch renovierte Wohnung! Die Wohnung verfügt über hohe Decken mit Stuck, eine große separate Küche und ...
225.000 €
Kaufpreis
36 m²
Wohnfläche
1
Zimmer
7
Kernsanierte 2-Zimmer-Wohnung im grünen Forstenried
Wohnung
81475 München
Diese soeben kernsanierte 2-Zimmer-Dachgeschosswohnung in München Fürstenried präsentiert sich als idealer Rückzugsort für erholungssuchende Bewohner. Mit einer Wohnfläche von ca. 58 m² bietet sie Raum für modernes ...
440.000 €
Kaufpreis
58,3 m²
Wohnfläche
2
Zimmer
11
Sanierungsobjekt hohe Abschreibung geringe Steuern, ...
Hallen / Lager / Produktion
78713 Schramberg
Ehemalige Papierfabrik mit großem Entwicklungspotenzial in 78713 Schramberg Zum Verkauf steht eine historische ehemalige Papierfabrik in attraktiver Lage von Schramberg. Das Ensemble umfasst zwei Gebäudeteile sowie ein ...
keine Angabe
Preis
1149 m²
Gesamtfläche
43
Provisionsfreies Wohn- und Geschäftshaus in Toplage ...
Haus
41238 Nordrhein-Westfalen - Mönchengladbach
🏢 Objektbeschreibung Bei dem angebotenen Objekt handelt es sich um ein gepflegtes Wohn- und Geschäftshaus in absoluter Top-Lage direkt am Marktplatz von Mönchengladbach-Giesenkirchen. Die Immobilie kombiniert eine ...
4.690.000 €
Kaufpreis
1.780 m²
Wohnfläche
80
Zimmer