Moderne Doppelhaushälfte mit durchdachtem Raumkonzept
753.535 €
Kaufpreis
130 m²
Wohnfläche
5
Zimmer
immobilien.de Nr.: 9511671
Objektnummer: 2026-053
Kaufpreis
| Kaufpreis | 753.535 € |
Wohnfläche, Grundstück & Bausubstanz
| Wohnfläche | 130 m² |
| Grundstücksfläche | 400 m² |
| Zimmer | 5 |
| Baujahr | 2027 |
| Verfügbar ab | keine Angabe |
| Zustand | Projektiert |
Energie
| Energietyp | KfW-40 |
| Heizungsart | Zentralheizung |
| Energieträger/Befeuerung | Luft-Wärme-Pumpe |
Beschreibung der Immobilie
Willkommen in Ihrem neuen Zuhause!
Ob als Mehrgenerationenprojekt mit den Eltern oder als "Best-Buddy-Siedlung": Dieses Objekt ist mehr als nur ein Haus - es ist das Fundament für eine lebendige Nachbarschaft, die man sich selbst ausgesucht hat.
Jede Doppelhaushälfte vereint zeitlose, klare Architektur mit einem Höchstmaß an Wohnkomfort.
Das Haus wurde speziell für die Bedürfnisse junger Familien konzipiert. Während die Vorderseite durch ihre klare Struktur und praktische Details überzeugt, eröffnet sich zur Rückseite hin eine private Oase: Eine großzügige Terrasse mit direktem Zugang zum eigenen Garten bietet den idealen Raum für entspannte Sommerabende, während die Kinder sicher im Grünen spielen.
Raumaufteilung & Highlights
Erdgeschoss: Offenes Wohnen & Kommunikation
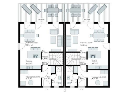
Das Herzstück des Hauses ist der ca. 30,5 m² große Wohn- und Essbereich. Durch bodentiefe Fensterelemente flutet das Tageslicht den Raum und schafft eine nahtlose Verbindung zur Terrasse.
Küche: Die offene Küche (9,65 m²) ist perfekt in den Wohnbereich integriert - ideal für gemeinsame Kochabende.
Funktionalität: Ein separates Gäste-WC mit Tageslicht sowie ein großzügiger Hauswirtschaftsraum (HWR), der gleichzeitig als Technikzentrale dient, ergänzen das Erdgeschoss.
Dachgeschoss: Rückzugsort für die ganze Familie
Über die zentrale Treppe gelangen Sie in das privat genutzte Obergeschoss, das ohne störende Dachschrägen im unteren Bereich maximale Stellfläche bietet.
Elternschlafzimmer: Ein weitläufiges Refugium mit ca. 17,7 m² bietet ausreichend Platz für ein großes Doppelbett und eine Ankleidenische.
Kinderzimmer: Zwei nahezu identisch geschnittene, helle Kinderzimmer (je ca. 14,6 m²) bieten jedem Kind sein eigenes Reich zum Spielen und Lernen.
Wellness-Bad: Das geräumige Familienbad (9,7 m²) bietet Platz für eine Badewanne und eine separate Dusche - ein perfekter Start in den Tag.
Einzigartige Services, umfangreiche Inklusiv-Leistungen und komplette Gestaltungsfreiheit; eine Kombination, die Sie nur bei STREIF Haus finden.
Sie möchten größer oder kleiner bauen? Oder in einer anderen Dachform? Sehr gerne! Rufen Sie mich an unter 0173/3678139 und wir besprechen die Anforderungen an Ihr individuelles STREIF-Haus.
Ob als Mehrgenerationenprojekt mit den Eltern oder als "Best-Buddy-Siedlung": Dieses Objekt ist mehr als nur ein Haus - es ist das Fundament für eine lebendige Nachbarschaft, die man sich selbst ausgesucht hat.
Jede Doppelhaushälfte vereint zeitlose, klare Architektur mit einem Höchstmaß an Wohnkomfort.
Das Haus wurde speziell für die Bedürfnisse junger Familien konzipiert. Während die Vorderseite durch ihre klare Struktur und praktische Details überzeugt, eröffnet sich zur Rückseite hin eine private Oase: Eine großzügige Terrasse mit direktem Zugang zum eigenen Garten bietet den idealen Raum für entspannte Sommerabende, während die Kinder sicher im Grünen spielen.
Raumaufteilung & Highlights
Erdgeschoss: Offenes Wohnen & Kommunikation
Das Herzstück des Hauses ist der ca. 30,5 m² große Wohn- und Essbereich. Durch bodentiefe Fensterelemente flutet das Tageslicht den Raum und schafft eine nahtlose Verbindung zur Terrasse.
Küche: Die offene Küche (9,65 m²) ist perfekt in den Wohnbereich integriert - ideal für gemeinsame Kochabende.
Funktionalität: Ein separates Gäste-WC mit Tageslicht sowie ein großzügiger Hauswirtschaftsraum (HWR), der gleichzeitig als Technikzentrale dient, ergänzen das Erdgeschoss.
Dachgeschoss: Rückzugsort für die ganze Familie
Über die zentrale Treppe gelangen Sie in das privat genutzte Obergeschoss, das ohne störende Dachschrägen im unteren Bereich maximale Stellfläche bietet.
Elternschlafzimmer: Ein weitläufiges Refugium mit ca. 17,7 m² bietet ausreichend Platz für ein großes Doppelbett und eine Ankleidenische.
Kinderzimmer: Zwei nahezu identisch geschnittene, helle Kinderzimmer (je ca. 14,6 m²) bieten jedem Kind sein eigenes Reich zum Spielen und Lernen.
Wellness-Bad: Das geräumige Familienbad (9,7 m²) bietet Platz für eine Badewanne und eine separate Dusche - ein perfekter Start in den Tag.
Einzigartige Services, umfangreiche Inklusiv-Leistungen und komplette Gestaltungsfreiheit; eine Kombination, die Sie nur bei STREIF Haus finden.
Sie möchten größer oder kleiner bauen? Oder in einer anderen Dachform? Sehr gerne! Rufen Sie mich an unter 0173/3678139 und wir besprechen die Anforderungen an Ihr individuelles STREIF-Haus.
Ausstattungsmerkmale
| Anzahl der Etagen im Haus | 2 |
| Küche | Offene Küche |
| Bad | 1 |
| Bad | Dusche, Wanne, Fenster |
STREIF-Häuser sind Energiesparhäuser mit Außenwänden im Passivhausstandard und einer effizienten Heiztechnik, die eine integrierte Wohnraumlüftung und Wärmerückgewinnung bietet. Dies gewährleistet nicht nur einen geringen Energieverbrauch, sondern auch ein fantastisches Raumklima.
Die Leistungen von STREIF sind umfangreich und bereits im Grundpreis enthalten:
- 20-monatige Festpreisgarantie
- Energieeffizienzhaus KfW 40 EE im Standard
- Individuelle Grundrissgestaltung und Raumaufteilung inklusive
- Fundamentplatte inklusive
- Luft-Luft-Wärmepumpe mit integrierter Lüftungsanlage und Wärmerückgewinnung
- Haustür von KERA und Fenster von Porta/Kömmerling
- Massivholz-Geschosstreppe aus eigener Produktion
- uvm.
Die Leistungen von STREIF sind umfangreich und bereits im Grundpreis enthalten:
- 20-monatige Festpreisgarantie
- Energieeffizienzhaus KfW 40 EE im Standard
- Individuelle Grundrissgestaltung und Raumaufteilung inklusive
- Fundamentplatte inklusive
- Luft-Luft-Wärmepumpe mit integrierter Lüftungsanlage und Wärmerückgewinnung
- Haustür von KERA und Fenster von Porta/Kömmerling
- Massivholz-Geschosstreppe aus eigener Produktion
- uvm.
Sonstige Informationen
Das angegebene Grundstück wird von Dritten vermittelt und separat erworben. Der Preis ist bereits im Gesamtpreis berücksichtigt. Hinzu kommen noch Erwerbs- und Baunebenkosten - alle Details erkläre ich Ihnen gerne persönlich.
Die gezeigten Hausabbildungen und Inneneinrichtungen enthalten Sonderausstattungen, die nicht im angegebenen Preis inbegriffen sind.
Fragen? Kontaktieren Sie mich unter 0173/3678139 für ein unverbindliches Beratungsgespräch.
Die gezeigten Hausabbildungen und Inneneinrichtungen enthalten Sonderausstattungen, die nicht im angegebenen Preis inbegriffen sind.
Fragen? Kontaktieren Sie mich unter 0173/3678139 für ein unverbindliches Beratungsgespräch.
Karte wird geladen...
Objektstandort
90475 Nürnberg
Lage & Infrastruktur
Objektstandort
90475 Nürnberg
Röthenbach bei Schweinau ist der perfekte Stadtteil für junge Familien, die Ruhe schätzen, aber nicht auf städtische Vorzüge verzichten möchten. Mit der S-Bahn S4 erreichen Sie den Nürnberger Hauptbahnhof in nur 15 Minuten, während die A73 in 5 Minuten erreichbar ist.
Der Stadtteil bietet alles für Familien: Kindergärten und die örtliche Grundschule sind fußläufig erreichbar, Nahversorger und Kinderärzte befinden sich in der Nähe.
Hier leben Sie entspannt auf großzügigen Grundstücken, haben aber trotzdem schnelle Verbindungen in alle Richtungen.
Hinweis:
Als STREIF-Berater (nicht als Makler) teile ich Grundstücksinformationen ausschließlich mit meinen Bauherren. Alle Angebote sind unverbindlich und freibleibend - Irrtümer sowie zwischenzeitliche Verkäufe möglich. Die Angaben beruhen auf mir vorliegenden Informationen, für deren Vollständigkeit und Richtigkeit ich trotz sorgfältiger Prüfung nicht hafte.
Lassen Sie uns sprechen! Kontaktieren Sie mich gerne unter 0173/3678139 für ein unverbindliches Erstgespräch. Dabei schauen wir, ob das Grundstück zu Ihren Vorstellungen passt oder ob andere Optionen besser geeignet sind.
Der Stadtteil bietet alles für Familien: Kindergärten und die örtliche Grundschule sind fußläufig erreichbar, Nahversorger und Kinderärzte befinden sich in der Nähe.
Hier leben Sie entspannt auf großzügigen Grundstücken, haben aber trotzdem schnelle Verbindungen in alle Richtungen.
Hinweis:
Als STREIF-Berater (nicht als Makler) teile ich Grundstücksinformationen ausschließlich mit meinen Bauherren. Alle Angebote sind unverbindlich und freibleibend - Irrtümer sowie zwischenzeitliche Verkäufe möglich. Die Angaben beruhen auf mir vorliegenden Informationen, für deren Vollständigkeit und Richtigkeit ich trotz sorgfältiger Prüfung nicht hafte.
Lassen Sie uns sprechen! Kontaktieren Sie mich gerne unter 0173/3678139 für ein unverbindliches Erstgespräch. Dabei schauen wir, ob das Grundstück zu Ihren Vorstellungen passt oder ob andere Optionen besser geeignet sind.
Kontaktanfrage senden
Über den Anbieter
STREIF Haus GmbH
Josef-Streif-Straße 1
54595 Weinsheim
Kontakt
| Mobil | +49 173 3678139 |
| Website | www.streif.de |
Ansprechpartner/in
Herr Frank Bohnert
Weitere Angebote des Anbieters
7
Rarität am Bodensee: Exklusives Baugrundstück in ...
Grundstück
88662 Überlingen
Lage, Lage, Seebrise! Zum Verkauf steht eines der seltenen, noch verfügbaren Baugrundstücke in einer der begehrtesten Wohnlagen von Überlingen. In nur etwa 15 Gehminuten erreichen Sie das Ufer des Bodensees sowie die ...
723.850 €
Kaufpreis
467 m²
Grundstücksfläche
7
Große Doppelhaushälfte nahe der City
Haus
90475 Nürnberg
"Endlich ankommen - in einer Nachbarschaft, die man liebt. Dieses Haus ist das ideale Fundament für alle, die gerne nah bei ihren Liebsten sind, egal ob Eltern oder Freunde. Hier verbinden sich moderner Wohnkomfort und ...
753.535 €
Kaufpreis
141 m²
Wohnfläche
5
Zimmer
6
Moderne Doppelhaushälfte mit durchdachtem Raumkonzept
Haus
90475 Nürnberg
Willkommen in Ihrem neuen Zuhause! Ob als Mehrgenerationenprojekt mit den Eltern oder als "Best-Buddy-Siedlung": Dieses Objekt ist mehr als nur ein Haus - es ist das Fundament für eine lebendige Nachbarschaft, die man ...
753.535 €
Kaufpreis
130 m²
Wohnfläche
5
Zimmer
6
Den nächsten Winterabend im eigenen Haus erleben
Haus
90429 Nürnberg
Dieses moderne Zuhause ist perfekt auf die Bedürfnisse einer jungen Familie zugeschnitten. Das Herzstück bildet der beeindruckende, 40 m² große Wohn-, Ess- und Kochbereich, der dank seiner Lichtfülle zum gemeinsamen ...
949.971 €
Kaufpreis
143 m²
Wohnfläche
5
Zimmer
7
Baugenehmigung? Wir sind startklar! Ihr Projekt in ...
Grundstück
88662 Überlingen
Lage, Lage, Seebrise! Zum Verkauf steht eines der seltenen, noch verfügbaren Baugrundstücke in einer der begehrtesten Wohnlagen von Überlingen. In nur etwa 15 Gehminuten erreichen Sie das Ufer des Bodensees sowie die ...
711.450 €
Kaufpreis
459 m²
Grundstücksfläche