Platz für die ganze Familie! Traumhafte Doppelhaushälfte mit Blick ins Grüne
555.000 €
Kaufpreis
198 m²
Wohnfläche
6
Zimmer
immobilien.de Nr.: 9511507
Objektnummer: 373276
Dateien
Kaufpreis
| Kaufpreis | 555.000 € |
| Maklerprovision | keine Provision, courtagefrei |
Wohnfläche, Grundstück & Bausubstanz
| Wohnfläche | 198 m² |
| Grundstücksfläche | 200 m² |
| Zimmer | 6 |
| Baujahr | 1992 |
| Verfügbar ab | 01.04.2026 |
| Zustand | Gepflegt |
Energie
| Energieausweistyp | Verbrauch |
| Energieeffizienzklasse | C |
| Energieverbrauchkennwert | 86 kWh/(m²*a) |
| Heizungsart | Zentralheizung |
| Energieträger/Befeuerung | Gas |
Beschreibung der Immobilie
Die sehr gepflegte, 1992 erbaute Doppelhaushälfte hat eine großzügige Wohnfläche von ca. 198m² auf einem 200m² großen Grundstück.
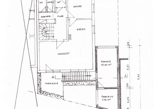
Das Haus besteht aus Erdgeschoss, Obergeschoss, ausgebautem Dachgeschoss und ist zudem voll unterkellert.
Im Erdgeschoss befindet sich ein Gäste WC, eine Speis, die Küche sowie ein großer Wohn- Essbereich inkl. Schwedenofen mit Zugang zur Terrasse, die mit einem wunderschönen Blick ins Grüne punktet. Aus dem Garten hat man zusätzlich die Möglichkeit, die überdachte Rückseite der voll unterkellerten Einzelgarage zu betreten, welche zudem mit einem elektrischen Tor ausgestattet ist. Der Garagenboden verfügt über einen vergitterten Schacht, worüber ein direkter Zugang zum Kellerbereich ermöglicht wird. Darüber kann man bspw. einen Fahrzeugunterboden warten oder auch schwere Gegenstände direkt in den Kellerbereich befördern.
Im Obergeschoss befinden sich vier Zimmer sowie ein geräumiges Badezimmer mit einer großen Badewanne sowie einer Duschkabine und WC.
Das 50m² große Dachgeschoss ist voll ausgebaut und hat ein gemütliches helles Ambiente u.a. durch die dort verbauten Holzbalken.
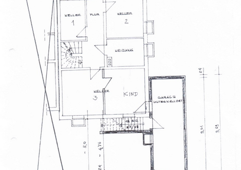
Das Kellergeschoss beinhaltet eine weitere beheizbare Küche, einen beheizbaren Hobbyraum, eine Werkstatt, einen Waschraum inkl. Duschkabine und WC, sowie den Heizraum.
Geheizt wird über die 2012 neu angeschaffte Buderus Gaszentralheizung.
Der Energieausweis bestätigt die Energieeffizienzklasse C.
Die Immobilie ist voraussichtlich ab dem 01.01.2026 bezugsfrei. Ein früherer Einzugstermin kann nach vorheriger Absprache vereinbart werden.
Da der Kauf privat erfolgt, sparen Sie sich die Maklerprovision.
Das Haus besteht aus Erdgeschoss, Obergeschoss, ausgebautem Dachgeschoss und ist zudem voll unterkellert.
Im Erdgeschoss befindet sich ein Gäste WC, eine Speis, die Küche sowie ein großer Wohn- Essbereich inkl. Schwedenofen mit Zugang zur Terrasse, die mit einem wunderschönen Blick ins Grüne punktet. Aus dem Garten hat man zusätzlich die Möglichkeit, die überdachte Rückseite der voll unterkellerten Einzelgarage zu betreten, welche zudem mit einem elektrischen Tor ausgestattet ist. Der Garagenboden verfügt über einen vergitterten Schacht, worüber ein direkter Zugang zum Kellerbereich ermöglicht wird. Darüber kann man bspw. einen Fahrzeugunterboden warten oder auch schwere Gegenstände direkt in den Kellerbereich befördern.
Im Obergeschoss befinden sich vier Zimmer sowie ein geräumiges Badezimmer mit einer großen Badewanne sowie einer Duschkabine und WC.
Das 50m² große Dachgeschoss ist voll ausgebaut und hat ein gemütliches helles Ambiente u.a. durch die dort verbauten Holzbalken.
Das Kellergeschoss beinhaltet eine weitere beheizbare Küche, einen beheizbaren Hobbyraum, eine Werkstatt, einen Waschraum inkl. Duschkabine und WC, sowie den Heizraum.
Geheizt wird über die 2012 neu angeschaffte Buderus Gaszentralheizung.
Der Energieausweis bestätigt die Energieeffizienzklasse C.
Die Immobilie ist voraussichtlich ab dem 01.01.2026 bezugsfrei. Ein früherer Einzugstermin kann nach vorheriger Absprache vereinbart werden.
Da der Kauf privat erfolgt, sparen Sie sich die Maklerprovision.
Ausstattungsmerkmale
| Anzahl der Etagen im Haus | 2 |
| Küche | Einbauküche |
| Bad | 2 |
| Boden | Fliesen, Parkett, Laminat |
| Balkone | 0 |
| Garten | |
| Terrassen | 1 |
| Garage/Stellplätze | 1 |
| Keller |
Terrasse, Garten, Keller, Einbauküche, Gäste-WC, Kamin, Parkett, Laminat, Fliesen
Bemerkungen:
Aufgrund der großen Wohnfläche ist das Doppelhaus bestens für Familien geeignet! Das Haus ist aufgrund seines guten und gepflegten Zustandes direkt wohnbereit!
Weitere Merkmale:
- EG durchgängig gefliest
- Einbauküche im EG
- Schwedenofen im Wohnzimmer
- 3-fach verglaste Fenster & Terrassentür im Wohn-Essbereich (2013 erneuert)
- Manuelle Rollläden an allen Fenstern
- Elektr. Rolläden an der Terassendoppeltür im Wohnzimmer
- Drei Räume im OG mit Buche Parkett
- Zusätzliche Einbauküche im KG (beheizbar)
- Lagerraum / Hobbyraum im KG ebenfalls beheizbar
- Werkstatt im KG
- Zusätzliches Bad mit Duschkabine, WC und Waschmaschinen- / Trockneranschlüssen im KG
- KG durchgängig gefliest
- Heizraum mit Buderus Gasheizung (2012 erneuert)
- Vollunterkellerte Einzelgarage mit elektrischem Tor und Zugangstür zum Garten
- Teilw. vergitterter Garagenboden mit Zugang zum KG
- TV SAT-Anschluss
- 100 Mbit/s DSL verfügbar
Bemerkungen:
Aufgrund der großen Wohnfläche ist das Doppelhaus bestens für Familien geeignet! Das Haus ist aufgrund seines guten und gepflegten Zustandes direkt wohnbereit!
Weitere Merkmale:
- EG durchgängig gefliest
- Einbauküche im EG
- Schwedenofen im Wohnzimmer
- 3-fach verglaste Fenster & Terrassentür im Wohn-Essbereich (2013 erneuert)
- Manuelle Rollläden an allen Fenstern
- Elektr. Rolläden an der Terassendoppeltür im Wohnzimmer
- Drei Räume im OG mit Buche Parkett
- Zusätzliche Einbauküche im KG (beheizbar)
- Lagerraum / Hobbyraum im KG ebenfalls beheizbar
- Werkstatt im KG
- Zusätzliches Bad mit Duschkabine, WC und Waschmaschinen- / Trockneranschlüssen im KG
- KG durchgängig gefliest
- Heizraum mit Buderus Gasheizung (2012 erneuert)
- Vollunterkellerte Einzelgarage mit elektrischem Tor und Zugangstür zum Garten
- Teilw. vergitterter Garagenboden mit Zugang zum KG
- TV SAT-Anschluss
- 100 Mbit/s DSL verfügbar
Sonstige Informationen
Heizungsart: Zentralheizung
Energieträger: Gas
Makleranfragen nicht erwünscht. Nach § 7 UWG sind unaufgeforderte Kontaktaufnahmen durch Makler ohne ausdrückliche Einwilligung des Empfängers verboten!
ohne-makler (OM) ist weder Anbieter noch Vermittler der Immobilie. OM betreibt eine Plattform für Immobilieneigentümer, die unter anderem die gleichzeitige Veröffentlichung einzelner Inserate auf mehreren Immobilienportalen ermöglicht. Die Inhalte dieser Inserate werden ausschließlich von Dritten verantwortet. Für die Richtigkeit, Vollständigkeit oder Rechtmäßigkeit der Angaben übernimmt OM keine Haftung. Hinweise auf mögliche Rechtsverstöße können jederzeit gemeldet werden und werden nach Prüfung umgehend bearbeitet.
Energieträger: Gas
Makleranfragen nicht erwünscht. Nach § 7 UWG sind unaufgeforderte Kontaktaufnahmen durch Makler ohne ausdrückliche Einwilligung des Empfängers verboten!
ohne-makler (OM) ist weder Anbieter noch Vermittler der Immobilie. OM betreibt eine Plattform für Immobilieneigentümer, die unter anderem die gleichzeitige Veröffentlichung einzelner Inserate auf mehreren Immobilienportalen ermöglicht. Die Inhalte dieser Inserate werden ausschließlich von Dritten verantwortet. Für die Richtigkeit, Vollständigkeit oder Rechtmäßigkeit der Angaben übernimmt OM keine Haftung. Hinweise auf mögliche Rechtsverstöße können jederzeit gemeldet werden und werden nach Prüfung umgehend bearbeitet.
Karte wird geladen...
Objektstandort
85077 Oberstimm
- Bayern
Lage & Infrastruktur
Objektstandort
85077 Oberstimm
- Bayern
Die angebotene Immobilie befindet sich in einer familienfreundlichen Wohngegend in Oberstimm bei Manching, einer Gemeinde im oberbayerischen Landkreis Pfaffenhofen an der Ilm.
In der näheren Umgebung befinden sich diverse Einkaufsmöglichkeiten, darunter Supermärkte, Bäckereien und Fachgeschäfte. Das Einkaufszentrum im nahegelegenen Ingolstadt bietet zudem eine Vielzahl an weiteren Handels- und Dienstleistungsangeboten.
Für Familien mit Kindern sind verschiedene Bildungseinrichtungen in der Nähe vorhanden. Dazu gehören Kindergärten, Grundschulen und weiterführende Schulen, die eine gute schulische Versorgung gewährleisten.
Die medizinische Versorgung ist durch ansässige Ärzte, Zahnärzte und Apotheken vor Ort sichergestellt. Größere Krankenhäuser und Fachkliniken sind in der benachbarten Stadt Ingolstadt erreichbar.
Insgesamt bietet die Lage eine hervorragende Lebensqualität mit einer gelungenen Mischung aus Erholung, guter Anbindung und umfangreicher Infrastruktur.
Entfernungen:
Bushaltestelle, Kapellenstr.- Manching (circa 3min Fußweg)
Hauptbahnhof Ingolstadt (circa 4km)
Grundschule Oberstimm (ca. 300m)
Einkaufsmöglichkeiten (ca. 2,4km)
Ärztliche Versorgung (ca. 2km)
Autobahnauffahrt Manching - A9 München und Nürnberg, ca. 3km
Der Oberstimmer See ist nur ca. 500m entfernt und lädt zum Baden an heißen Sommertagen ein.
Infrastruktur (im Umkreis von 5 km):
Apotheke, Lebensmittel-Discount, Allgemeinmediziner, Kindergarten, Grundschule, Hauptschule, Realschule, Öffentliche Verkehrsmittel
In der näheren Umgebung befinden sich diverse Einkaufsmöglichkeiten, darunter Supermärkte, Bäckereien und Fachgeschäfte. Das Einkaufszentrum im nahegelegenen Ingolstadt bietet zudem eine Vielzahl an weiteren Handels- und Dienstleistungsangeboten.
Für Familien mit Kindern sind verschiedene Bildungseinrichtungen in der Nähe vorhanden. Dazu gehören Kindergärten, Grundschulen und weiterführende Schulen, die eine gute schulische Versorgung gewährleisten.
Die medizinische Versorgung ist durch ansässige Ärzte, Zahnärzte und Apotheken vor Ort sichergestellt. Größere Krankenhäuser und Fachkliniken sind in der benachbarten Stadt Ingolstadt erreichbar.
Insgesamt bietet die Lage eine hervorragende Lebensqualität mit einer gelungenen Mischung aus Erholung, guter Anbindung und umfangreicher Infrastruktur.
Entfernungen:
Bushaltestelle, Kapellenstr.- Manching (circa 3min Fußweg)
Hauptbahnhof Ingolstadt (circa 4km)
Grundschule Oberstimm (ca. 300m)
Einkaufsmöglichkeiten (ca. 2,4km)
Ärztliche Versorgung (ca. 2km)
Autobahnauffahrt Manching - A9 München und Nürnberg, ca. 3km
Der Oberstimmer See ist nur ca. 500m entfernt und lädt zum Baden an heißen Sommertagen ein.
Infrastruktur (im Umkreis von 5 km):
Apotheke, Lebensmittel-Discount, Allgemeinmediziner, Kindergarten, Grundschule, Hauptschule, Realschule, Öffentliche Verkehrsmittel
Kontaktanfrage senden
Über den Anbieter
OM PropTech GmbH
Humboldtstraße 25a
21509 Glinde
Kontakt
| Telefon | - |
| Fax | - |
| Website | www.ohne-makler.net |
Ansprechpartner/in
Privat von Weber
Weitere Angebote des Anbieters
9
WG-Zimmer in neu renovierter Wohnung in Köpenick – ...
Zimmer
12557 Berlin
Die helle und modern ausgestattete Wohnung im 1. Obergeschoss wurde 2025 vollständig renoviert und bietet ideale Bedingungen für ein angenehmes WG-Leben. Alle drei Zimmer sind voll möbliert, lichtdurchflutet und sofort ...
550 €
Kaltmiete (netto)
74 m²
Wohnfläche
1
Zimmer
16
3 Zimmer-Erdgeschosswohnung in Toplage von ...
Wohnung
35396 Gießen
Die gut gelegene 3-Zimmer-Wohnung im 2. Obergeschoss eines modernen Hauses am Nordhäuser Weg 12 in Gießen-Wieseck bietet auf ca. 77 m² eine offene und funktionale Raumaufteilung. Das moderne Gebäude verfügt auch über ...
900 €
Kaltmiete (netto)
77 m²
Wohnfläche
3
Zimmer
22
Parkähnliches Grundstück mit B-Plan am Ufer des ...
Grundstück
14712 Rathenow OT Semlin
Einmalige Gelegenheit: Dieses außergewöhnliche Grundstück mit 6.217 m² in traumhafter Lage am Hohennauener See bietet die seltene Möglichkeit, ein naturnahes exklusives Zweitwohnsitz-, Freizeit- oder Wochenendrefugium ...
keine Angabe
Preis
6.217 m²
Grundstücksfläche
10
3-Zimmer-Wohnung (Neubau) mit Terrasse in ...
Wohnung
15926 Luckau
Die neu errichtete Wohnanlage im Zaackoer Weg besteht aus drei Mehrfamilienhäusern mit jeweils vier Wohneinheiten und dient als Ausgangspunkt eines neu entstehenden Wohnareals. Hier werden praktikables Wohnen mit ...
913 €
Kaltmiete (netto)
83 m²
Wohnfläche
3
Zimmer
22
Erstbezug nach Komplettrenovierung 5 Zimmerwohnung mit ...
Wohnung
85376 Massenhausen
Zur Vermietung steht eine renovierte große 5-Zimmer-Wohnung im 1. OG in Massenhausen (Ortsteil von Neufahrn bei Freising). Die Wohnung bietet ca. 154 m² Wohn- Nutzfläche. Bezugsfrei: ab 16. April , 1. Mai, oder 1. Juni ...
1.900 €
Kaltmiete (netto)
120 m²
Wohnfläche
5
Zimmer