STREIF-Herzenshäuser - Ihr individueller Grundriss wartet!
448.800 €
Kaufpreis
142,92 m²
Wohnfläche
4
Zimmer
immobilien.de Nr.: 9511193
Objektnummer: 9093
Kaufpreis
| Kaufpreis | 448.800 € |
Wohnfläche, Grundstück & Bausubstanz
| Wohnfläche | 142,92 m² |
| Grundstücksfläche | 545 m² |
| Zimmer | 4 |
| Verfügbar ab | keine Angabe |
Beschreibung der Immobilie
Mehr Raum für Ihre Ideen - modernes Familyhaus mit flexibler Planung und zusätzlichem Gästezimmer
Willkommen in Ihrem neuen Zuhause, das Ihnen auf jeder Ebene mehr Möglichkeiten eröffnet! Das Family XL von STREIF begeistert auf großzügigen ca. 143 m² Netto-Raumfläche mit einem flexiblen Wohnkonzept, das sich perfekt an Ihre individuellen Bedürfnisse anpasst.
Ein besonderes Highlight: Sie wählen aus drei verschiedenen Treppenvarianten - gradläufig, viertelgewendelt oder doppelt gewendelt. Jede Treppenart schafft ein eigenes Raumgefühl und ermöglicht ein individuelles Wohnkonzept, das genau zu Ihrem Lebensstil passt.
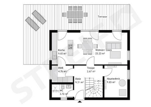
Im Erdgeschoss öffnet sich ein großzügiger, lichtdurchfluteter Wohn-/Ess- und Küchenbereich, der mit bodentiefen Fenstern zur Terrassenseite ein offenes, freundliches Ambiente schafft. Ein Gäste-WC ist ebenfalls integriert. Auf Wunsch können Sie im Erdgeschoss zusätzlich ein Gästezimmer oder ein komfortables Home-Office einplanen - perfekt für berufliche Flexibilität oder Besuch.
Im Obergeschoss bietet das Family XL weitere Anpassungsoptionen: Je nach Wunsch gestalten Sie zwei oder drei Schlafzimmer, ergänzt um großzügige Zuschnitte für Ankleide, Büro oder individuelle Bedürfnisse.
Zur hochwertigen Ausstattung gehört eine energieeffiziente Haustechnik für nachhaltiges, modernes Wohnen.
Ihre Vorteile auf einen Blick:
Ca. 143 m² großzügige Netto-Raumfläche
Flexible Raumkonzepte durch Auswahl zwischen drei Treppenvarianten
Optional zusätzliches Gästezimmer oder Büro im Erdgeschoss möglich
Großer, lichtdurchfluteter Wohn-/Ess-/Küchenbereich
Bodentiefe Fenster zur Terrassenseite
Zwei oder drei Schlafzimmer im Obergeschoss möglich
Gäste-WC im Erdgeschoss
Energieeffiziente Haustechnik für nachhaltiges Bauen
Mehr Raum, mehr Möglichkeiten - gestalten Sie Ihr Zuhause individuell mit dem STREIF Family XL.
Willkommen in Ihrem neuen Zuhause, das Ihnen auf jeder Ebene mehr Möglichkeiten eröffnet! Das Family XL von STREIF begeistert auf großzügigen ca. 143 m² Netto-Raumfläche mit einem flexiblen Wohnkonzept, das sich perfekt an Ihre individuellen Bedürfnisse anpasst.
Ein besonderes Highlight: Sie wählen aus drei verschiedenen Treppenvarianten - gradläufig, viertelgewendelt oder doppelt gewendelt. Jede Treppenart schafft ein eigenes Raumgefühl und ermöglicht ein individuelles Wohnkonzept, das genau zu Ihrem Lebensstil passt.
Im Erdgeschoss öffnet sich ein großzügiger, lichtdurchfluteter Wohn-/Ess- und Küchenbereich, der mit bodentiefen Fenstern zur Terrassenseite ein offenes, freundliches Ambiente schafft. Ein Gäste-WC ist ebenfalls integriert. Auf Wunsch können Sie im Erdgeschoss zusätzlich ein Gästezimmer oder ein komfortables Home-Office einplanen - perfekt für berufliche Flexibilität oder Besuch.
Im Obergeschoss bietet das Family XL weitere Anpassungsoptionen: Je nach Wunsch gestalten Sie zwei oder drei Schlafzimmer, ergänzt um großzügige Zuschnitte für Ankleide, Büro oder individuelle Bedürfnisse.
Zur hochwertigen Ausstattung gehört eine energieeffiziente Haustechnik für nachhaltiges, modernes Wohnen.
Ihre Vorteile auf einen Blick:
Ca. 143 m² großzügige Netto-Raumfläche
Flexible Raumkonzepte durch Auswahl zwischen drei Treppenvarianten
Optional zusätzliches Gästezimmer oder Büro im Erdgeschoss möglich
Großer, lichtdurchfluteter Wohn-/Ess-/Küchenbereich
Bodentiefe Fenster zur Terrassenseite
Zwei oder drei Schlafzimmer im Obergeschoss möglich
Gäste-WC im Erdgeschoss
Energieeffiziente Haustechnik für nachhaltiges Bauen
Mehr Raum, mehr Möglichkeiten - gestalten Sie Ihr Zuhause individuell mit dem STREIF Family XL.
Ausstattungsmerkmale
| Anzahl der Etagen im Haus | 1 |
| Bad | 1 |
Das Streif City Haus wird im Standard KFW 40 PLUS ausgeführt. KfW Effizienshaus inkl. Haustechnik aus dem STREIF-Programm in der Ausbaustufe FF+ inklusive einer gedämmten Fundamentplatte.
■ Rohbau (geschlossene Gebäudehülle) mit Fenstern, Haustür, Dacheindeckung
■ Außenfassade inkl. Außenputz, vor Ort komplett fertiggestellt
■ Komplette Blechner-/Spenglerarbeiten
■ lnnen-/Außenwände wärme- und schallgedämmt und mit Gipsfaserplatten geschlossen
■ Geschosstreppe (außer Bungalow)
■ Decken wärme- und schallgedämmt und mit Gipskarton Bauplatten geschlossen
■ Elektroinstallation, einschließlich erforderlichem Zählerschrank und Inbetriebnahme
■ Heizungsanlage inkl. Inbetriebnahme
■ Innenfensterbänke Kunststeinbänke (Gussmarmorbänke) inkl. Einbau
■ Estrich
■ Sanitärräume mit Wand- und Bodenfliesen
■ Sanitärräume mit Sanitärobjekten
■ 6,23 kWp Photovoltaikanlage und 7,7 kWh Speicher
Die Innentüren sowie Wand-, Decken- und Bodenbeläge der übrigen Räume sind Eigenleistungen des Bauherren.
STREIF Frischluft-Wärmepumpen-Technologie - inklusive
- Heizen mit frischer Außenluft
- Kein Gasanschluss, kein Öl- oder Pelletlagerraum
- Keine Heizkörper
- Wärmetauscher mit bis zu 85% Wärmerückgewinnung
Die dargestellten Bilder können Sonderausstattungen beinhalten, die nicht im Preis enthalten sind!
zzgl. Ortüblicher Baunebenkosten
Selbstverständlich können wir Ihr Haus auch schlüsselfertig / bezugsfertig errichten.
■ Bodenbeläge, Sockelleisten verlegt
■ Maler- und Tapezierarbeiten
■ Innentüren inkl. Einbau
■ Rohbau (geschlossene Gebäudehülle) mit Fenstern, Haustür, Dacheindeckung
■ Außenfassade inkl. Außenputz, vor Ort komplett fertiggestellt
■ Komplette Blechner-/Spenglerarbeiten
■ lnnen-/Außenwände wärme- und schallgedämmt und mit Gipsfaserplatten geschlossen
■ Geschosstreppe (außer Bungalow)
■ Decken wärme- und schallgedämmt und mit Gipskarton Bauplatten geschlossen
■ Elektroinstallation, einschließlich erforderlichem Zählerschrank und Inbetriebnahme
■ Heizungsanlage inkl. Inbetriebnahme
■ Innenfensterbänke Kunststeinbänke (Gussmarmorbänke) inkl. Einbau
■ Estrich
■ Sanitärräume mit Wand- und Bodenfliesen
■ Sanitärräume mit Sanitärobjekten
■ 6,23 kWp Photovoltaikanlage und 7,7 kWh Speicher
Die Innentüren sowie Wand-, Decken- und Bodenbeläge der übrigen Räume sind Eigenleistungen des Bauherren.
STREIF Frischluft-Wärmepumpen-Technologie - inklusive
- Heizen mit frischer Außenluft
- Kein Gasanschluss, kein Öl- oder Pelletlagerraum
- Keine Heizkörper
- Wärmetauscher mit bis zu 85% Wärmerückgewinnung
Die dargestellten Bilder können Sonderausstattungen beinhalten, die nicht im Preis enthalten sind!
zzgl. Ortüblicher Baunebenkosten
Selbstverständlich können wir Ihr Haus auch schlüsselfertig / bezugsfertig errichten.
■ Bodenbeläge, Sockelleisten verlegt
■ Maler- und Tapezierarbeiten
■ Innentüren inkl. Einbau
Sonstige Informationen
Sie wünschen Bauplanung und Begleitung aus einer Hand? Dann sind wir Ihr Baupartner! Wir stehen Ihnen von Anfang an zur Seite und führen Sie auf dem Weg in Ihr neues perfektes Zuhause!
Mit STREIF haben Sie einen Baupartner mit Bau-Know-how, der seit 1929 auf fast 100 Jahre und 100.000 realisierte Wohnträume zurückblicken kann.
Jedes Haus von STREIF wird individuell als Energiesparhaus geplant und gebaut. Eine nachhaltige, ökologische und wohngesunde Bauweise, eine zertifizierte Ausführungsqualität und eine kurze Bauzeit, dafür stehen wir.
Im Anschluss der gemeinsamen Bedarfsermittlung erstellen wir Ihnen Ihren individuellen Planungsvorschlag mit einer detaillierten & realistisch ermittelten Aufstellung der Gesamt-Investition.
Wir freuen uns auf Ihren Anruf / Nachricht:
Mit STREIF haben Sie einen Baupartner mit Bau-Know-how, der seit 1929 auf fast 100 Jahre und 100.000 realisierte Wohnträume zurückblicken kann.
Jedes Haus von STREIF wird individuell als Energiesparhaus geplant und gebaut. Eine nachhaltige, ökologische und wohngesunde Bauweise, eine zertifizierte Ausführungsqualität und eine kurze Bauzeit, dafür stehen wir.
Im Anschluss der gemeinsamen Bedarfsermittlung erstellen wir Ihnen Ihren individuellen Planungsvorschlag mit einer detaillierten & realistisch ermittelten Aufstellung der Gesamt-Investition.
Wir freuen uns auf Ihren Anruf / Nachricht:
Karte wird geladen...
Objektstandort
59494 Soest
Lage & Infrastruktur
Objektstandort
59494 Soest
Unsere Grundstücke befinden sich in ausgewählten, attraktiven Lagen und erfüllen höchste Ansprüche an Lebensqualität und Wertbeständigkeit.
Aus Diskretions- und Datenschutzgründen bitten wir um Verständnis, dass Grundstücksdaten ausschließlich im Rahmen eines persönlichen Beratungstermins und ausschließlich für unsere Kunden weitergegeben werden.
Aus Diskretions- und Datenschutzgründen bitten wir um Verständnis, dass Grundstücksdaten ausschließlich im Rahmen eines persönlichen Beratungstermins und ausschließlich für unsere Kunden weitergegeben werden.
Kontaktanfrage senden
Über den Anbieter
STREIF Haus GmbH
Josef-Streif-Straße 1
54595 Weinsheim
Kontakt
| Telefon | +49 2595 9909690 |
| Mobil | +49 157 53710612 |
| Website | www.streif.de |
Ansprechpartner/in
Herr Andreas Rogge
Weitere Angebote des Anbieters
31
**Luxuriöses Wohnen: Entdecken Sie die Stadtvilla ...
Haus
38176 Wendeburg
Willkommen in Ihrer zukünftigen Traumstadtvilla in Wendeburg/ Neubrück, die mit STREIF nach Ihren individuellen Wünschen projektiert wird. Diese exklusive Residenz bietet Ihnen auf 190,29 m² Wohnfläche ein geräumiges ...
713.782,2 €
Kaufpreis
190,29 m²
Wohnfläche
6
Zimmer
35
**Endlich raus aus der Miete - jetzt starten mit ...
Haus
31688 Nienstädt
Willkommen in Ihrem Traumhaus! Dieses Einfamilienhaus, projektiert nach Ihren individuellen Wünschen, bietet Ihnen die perfekte Kombination aus modernem Design und höchstem Wohnkomfort. Mit einer großzügigen Wohnfläche ...
481.229 €
Kaufpreis
143,84 m²
Wohnfläche
4
Zimmer
32
**Familienfreundlicher Bungalow mit perfekter ...
Haus
31226 Peine
Tauchen Sie ein in die Welt des modernen Wohnens mit unserem projektierten Bungalow, der individuell nach Ihren Wünschen gestaltet wird. Auf einer großzügigen Wohnfläche von 93,51 m² verteilen sich geschmackvoll 3,0 ...
495.050 €
Kaufpreis
93,51 m²
Wohnfläche
3
Zimmer
9
Vorankündigung - Wohnen next Level by STREIF DHH
Haus
53844 Troisdorf
Hochwertiges Effizienzhaus-40-PLUS >> Planung nach modernsten Wohnkriterien.
649.800 €
Kaufpreis
149 m²
Wohnfläche
6
Zimmer
8
-inkl. Grundstück-Ihre neue STREIF Doppelhaushälfte in ...
Haus
38108 Braunschweig
Der Preis bezieht sich auf das Haus inkl. Baunebenkosten und einschließlich Grundstück. Die Grunderwerbsteuer fällt nur auf die Grundstückskosten an. Herzlich willkommen bei STREIF, Ihrem zuverlässigen Partner für den ...
620.000 €
Kaufpreis
140 m²
Wohnfläche
4
Zimmer