Doppelter Wohnkomfort: STREIF Doppelhaushälfte, KfW 40 Standard
702.550 €
Kaufpreis
143 m²
Wohnfläche
4
Zimmer
immobilien.de Nr.: 9511173
Objektnummer: 9020
Kaufpreis
| Kaufpreis | 702.550 € |
Wohnfläche, Grundstück & Bausubstanz
| Wohnfläche | 143 m² |
| Grundstücksfläche | 499 m² |
| Zimmer | 4 |
| Verfügbar ab | keine Angabe |
Beschreibung der Immobilie
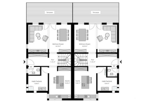
Der repräsentative Doppelhausentwurf mit Satteldach ist mit einem Zwerchgiebel mit Flachdach und einem Erker mit Flachdach geplant und ist deshalb sehr besonders. Die Küche liegt an der Frontseite des Hauses, bietet Fenster übereck und die Möglichkeit, einen Kochtisch in der Mitte der Küche zu platzieren.
Ausstattungsmerkmale
| Anzahl der Etagen im Haus | 2 |
| Bad | 1 |
Das Streif City Haus wird im Standard KFW 40 PLUS ausgeführt. KfW Effizienshaus inkl. Haustechnik aus dem STREIF-Programm in der Ausbaustufe FF+ inklusive einer gedämmten Fundamentplatte.
■ Rohbau (geschlossene Gebäudehülle) mit Fenstern, Haustür, Dacheindeckung
■ Außenfassade inkl. Außenputz, vor Ort komplett fertiggestellt
■ Komplette Blechner-/Spenglerarbeiten
■ lnnen-/Außenwände wärme- und schallgedämmt und mit Gipsfaserplatten geschlossen
■ Geschosstreppe (außer Bungalow)
■ Decken wärme- und schallgedämmt und mit Gipskarton Bauplatten geschlossen
■ Elektroinstallation, einschließlich erforderlichem Zählerschrank und Inbetriebnahme
■ Heizungsanlage inkl. Inbetriebnahme
■ Innenfensterbänke Kunststeinbänke (Gussmarmorbänke) inkl. Einbau
■ Estrich
■ Sanitärräume mit Wand- und Bodenfliesen
■ Sanitärräume mit Sanitärobjekten
■ 6,23 kWp Photovoltaikanlage und 7,7 kWh Speicher
Die Innentüren sowie Wand-, Decken- und Bodenbeläge der übrigen Räume sind Eigenleistungen des Bauherren.
STREIF Frischluft-Wärmepumpen-Technologie - inklusive
- Heizen mit frischer Außenluft
- Kein Gasanschluss, kein Öl- oder Pelletlagerraum
- Keine Heizkörper
- Wärmetauscher mit bis zu 85% Wärmerückgewinnung
Die dargestellten Bilder können Sonderausstattungen beinhalten, die nicht im Preis enthalten sind!
zzgl. Ortüblicher Baunebenkosten
Selbstverständlich können wir Ihr Haus auch schlüsselfertig / bezugsfertig errichten.
■ Bodenbeläge, Sockelleisten verlegt
■ Maler- und Tapezierarbeiten
■ Innentüren inkl. Einbau
■ Rohbau (geschlossene Gebäudehülle) mit Fenstern, Haustür, Dacheindeckung
■ Außenfassade inkl. Außenputz, vor Ort komplett fertiggestellt
■ Komplette Blechner-/Spenglerarbeiten
■ lnnen-/Außenwände wärme- und schallgedämmt und mit Gipsfaserplatten geschlossen
■ Geschosstreppe (außer Bungalow)
■ Decken wärme- und schallgedämmt und mit Gipskarton Bauplatten geschlossen
■ Elektroinstallation, einschließlich erforderlichem Zählerschrank und Inbetriebnahme
■ Heizungsanlage inkl. Inbetriebnahme
■ Innenfensterbänke Kunststeinbänke (Gussmarmorbänke) inkl. Einbau
■ Estrich
■ Sanitärräume mit Wand- und Bodenfliesen
■ Sanitärräume mit Sanitärobjekten
■ 6,23 kWp Photovoltaikanlage und 7,7 kWh Speicher
Die Innentüren sowie Wand-, Decken- und Bodenbeläge der übrigen Räume sind Eigenleistungen des Bauherren.
STREIF Frischluft-Wärmepumpen-Technologie - inklusive
- Heizen mit frischer Außenluft
- Kein Gasanschluss, kein Öl- oder Pelletlagerraum
- Keine Heizkörper
- Wärmetauscher mit bis zu 85% Wärmerückgewinnung
Die dargestellten Bilder können Sonderausstattungen beinhalten, die nicht im Preis enthalten sind!
zzgl. Ortüblicher Baunebenkosten
Selbstverständlich können wir Ihr Haus auch schlüsselfertig / bezugsfertig errichten.
■ Bodenbeläge, Sockelleisten verlegt
■ Maler- und Tapezierarbeiten
■ Innentüren inkl. Einbau
Sonstige Informationen
Mit STREIF haben Sie einen Baupartner mit Bau-Know-how, der seit 1929 auf fast 100 Jahre und 100.000 realisierte Wohnträume zurückblicken kann.
Jedes Haus von STREIF wird individuell als Energiesparhaus geplant und gebaut. Eine nachhaltige, ökologische und wohngesunde Bauweise, eine zertifizierte Ausführungsqualität und eine kurze Bauzeit, dafür stehen wir.
Im Anschluss der gemeinsamen Bedarfsermittlung erstellen wir Ihnen Ihren individuellen Planungsvorschlag mit einer detaillierten & realistisch ermittelten Aufstellung der Gesamt-Investition.
Jedes Haus von STREIF wird individuell als Energiesparhaus geplant und gebaut. Eine nachhaltige, ökologische und wohngesunde Bauweise, eine zertifizierte Ausführungsqualität und eine kurze Bauzeit, dafür stehen wir.
Im Anschluss der gemeinsamen Bedarfsermittlung erstellen wir Ihnen Ihren individuellen Planungsvorschlag mit einer detaillierten & realistisch ermittelten Aufstellung der Gesamt-Investition.
Karte wird geladen...
Objektstandort
15831 Blankenfelde-Mahlow
Lage & Infrastruktur
Objektstandort
15831 Blankenfelde-Mahlow
Sie haben bereits ein Grundstück?
Perfekt! Gemeinsam mit Ihnen plane ich gerne die Bebauung. Egal ob Einfamilienhaus, Mehrgenerationenhaus, Bungalow oder Cityvilla: Wir finden genau Ihr Traumhaus. Mit STREIF können Sie natürlich auch komplett individuell bauen.
Sie haben kein Grundstück?
Auch kein Problem! Ich bin Ihr Ansprechpartner in der Region und unterstütze Sie gerne bei der Suche nach der passenden Immobilie. Alle meine Angebote basieren auf einem real existierendem Grundstück.
Perfekt! Gemeinsam mit Ihnen plane ich gerne die Bebauung. Egal ob Einfamilienhaus, Mehrgenerationenhaus, Bungalow oder Cityvilla: Wir finden genau Ihr Traumhaus. Mit STREIF können Sie natürlich auch komplett individuell bauen.
Sie haben kein Grundstück?
Auch kein Problem! Ich bin Ihr Ansprechpartner in der Region und unterstütze Sie gerne bei der Suche nach der passenden Immobilie. Alle meine Angebote basieren auf einem real existierendem Grundstück.
Kontaktanfrage senden
Über den Anbieter
STREIF Haus GmbH
Josef-Streif-Straße 1
54595 Weinsheim
Kontakt
| Telefon | +49 30 67390424 |
| Mobil | +49 172 1588519 |
| Website | www.streif.de |
Ansprechpartner/in
Herr Andreas Ott
Weitere Angebote des Anbieters
6
IM DOPPELPACK AUF GUTE NACHBARSCHAFT
Haus
15366 Hoppegarten
STREIF-Häuser sind Energiesparhäuser. Jedes STREIF-Haus wird im Standard bereits als Energieeffizienzhaus KfW 40 EE* gebaut. (* In Abhängigkeit von Gebäudestandort, Gebäudeausrichtung, Fensterflächenanteile usw. können ...
559.990 €
Kaufpreis
115 m²
Wohnfläche
4
Zimmer
6
VOR DEN ÖSTLICHEN TOREN BERLINS
Haus
15366 Hoppegarten
Das moderne Stadthaus von STREIF wird von einem Übereck-Erker und einem überdachten Hauseingang mit angeschlossenem Carport akzentuiert. Auf einer Raumgrundfläche von 143 m² sind 3 Schlafräume, 2 Bäder, ein ...
857.700 €
Kaufpreis
158 m²
Wohnfläche
5
Zimmer
8
HÄUSER MIT CHARME UND CHARAKTER
Haus
15366 Hoppegarten
Das moderne Stadthaus von STREIF wird von einem Übereck-Erker und einem überdachten Hauseingang mit angeschlossenem Carport akzentuiert. Auf einer Raumgrundfläche von 125 m² sind 3 Schlafräume, 2 Bäder, ein ...
616.299 €
Kaufpreis
140 m²
Wohnfläche
5
Zimmer
7
2 X JETZT BEGINNEN UND NICHT IRGENDWANN
Haus
15366 Hoppegarten
Das moderne Stadthaus von STREIF wird von einem Übereck-Erker und einem überdachten Hauseingang mit angeschlossenem Carport akzentuiert. Auf einer Raumgrundfläche von 125 m² sind 3 Schlafräume, 2 Bäder, ein ...
619.299 €
Kaufpreis
125 m²
Wohnfläche
5
Zimmer
11
Stadthaus mit Carport: Stilvolles Wohnen und ...
Haus
72510 Stetten am kalten Markt
Die Architektur des Stadthauses bietet auf einer kompakten Grundfläche zahlreiche Highlights. Der repräsentative Wohn-/Ess- und Kochbereich wird durch eine Wohnraumerweiterung ergänzt und ist mit einem überdachten ...
680.800 €
Kaufpreis
147 m²
Wohnfläche
4
Zimmer