👨👩👧👦 Gemeinsam leben, individuell wohnen - Zweifamilienhäuser zum Sonderpreis
791.550 €
Kaufpreis
190 m²
Wohnfläche
6
Zimmer
immobilien.de Nr.: 9511164
Objektnummer: 9014
Kaufpreis
| Kaufpreis | 791.550 € |
Wohnfläche, Grundstück & Bausubstanz
| Wohnfläche | 190 m² |
| Grundstücksfläche | 598 m² |
| Zimmer | 6 |
| Verfügbar ab | keine Angabe |
Beschreibung der Immobilie
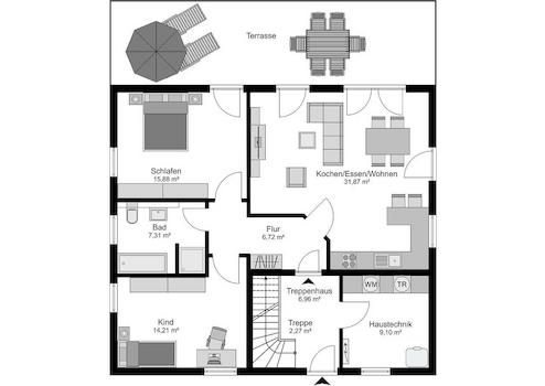
Der Hausentwurf zum Zweifamilienhaus CITY 190 HOME&GENERATION bietet aufgrund der großen Fensterelemente und Terrassentüren, die im Wohnbereich übereck angelegt sind, ein lichterfülltes Wohnambiente in beiden Wohnungen. Die Architektur ist die Interpretation einer modernen Stadtvilla. Durch mögliche Anbauteile, wie Übereckerker, Erker oder eine Haustürüberdachung, kann der Hausentwurf individualisiert werden.
Ausstattungsmerkmale
| Anzahl der Etagen im Haus | 2 |
| Bad | 2 |
Das Streif City Haus wird im Standard KFW 40 PLUS ausgeführt. Grundstück inkl. Innenausstattung aus dem STREIF-Programm in der Ausbaustufe FF+ inklusive Fundamentplatte.
■ Rohbau (geschlossene Gebäudehülle) mit Fenstern, Haustür1 inkl. Dacheindeckung
■ Außenfassade inkl. Außenputz, vor Ort komplett fertiggestellt
■ Komplette Blechner-/Spenglerarbeiten
■ lnnen-/Außenwände wärme- und schallgedämmt und mit Gipsfaserplatten geschlossen
■ Geschosstreppe (außer Bungalow)
■ Decken wärme- und schallgedämmt und mit Gipskartonbau platten geschlossen
■ Elektroinstallation, einschließlich erforderlichem Zählerschrank und Inbetriebnahme
■ Heizungsanlage inkl. Inbetriebnahme
■ Innenfensterbänke Kunststeinbänke (Gussmarmorbänke) inkl. Einbau
■ Estrich
■ Sanitärräume mit Wand- und Bodenfliesen
■ Sanitärräume mit Sanitärobjekten
■ 6,23 kWP Photovoltaikanlage und 7,7 kWh Speicher
Die Innentüren sowie Wand-, Decken- und Bodenbeläge der übrigen Räume sind Eigenleistungen des Bauherren.
STREIF Frischluft-Wärmepumpen-Technologie - inklusive
- Heizen mit frischer Außenluft
- Kein Gasanschluss, kein Öl- oder Pelletlagerraum
- Keine Heizkörper
- Wärmetauscher mit bis zu 85% Wärmerückgewinnung
Die dargestellten Bilder können Sonderausstattungen beinhalten, die nicht im Preis enthalten sind!
zzgl. Ortüblicher Baunebenkosten
Selbstverständlich können wir Ihr Haus auch schlüsselfertig / bezugsfertig errichten.
■ Bodenbeläge, Sockel leisten verlegt
■ Maler- und Tapezierarbeiten
■ Innentüren inkl. Einbau
■ Rohbau (geschlossene Gebäudehülle) mit Fenstern, Haustür1 inkl. Dacheindeckung
■ Außenfassade inkl. Außenputz, vor Ort komplett fertiggestellt
■ Komplette Blechner-/Spenglerarbeiten
■ lnnen-/Außenwände wärme- und schallgedämmt und mit Gipsfaserplatten geschlossen
■ Geschosstreppe (außer Bungalow)
■ Decken wärme- und schallgedämmt und mit Gipskartonbau platten geschlossen
■ Elektroinstallation, einschließlich erforderlichem Zählerschrank und Inbetriebnahme
■ Heizungsanlage inkl. Inbetriebnahme
■ Innenfensterbänke Kunststeinbänke (Gussmarmorbänke) inkl. Einbau
■ Estrich
■ Sanitärräume mit Wand- und Bodenfliesen
■ Sanitärräume mit Sanitärobjekten
■ 6,23 kWP Photovoltaikanlage und 7,7 kWh Speicher
Die Innentüren sowie Wand-, Decken- und Bodenbeläge der übrigen Räume sind Eigenleistungen des Bauherren.
STREIF Frischluft-Wärmepumpen-Technologie - inklusive
- Heizen mit frischer Außenluft
- Kein Gasanschluss, kein Öl- oder Pelletlagerraum
- Keine Heizkörper
- Wärmetauscher mit bis zu 85% Wärmerückgewinnung
Die dargestellten Bilder können Sonderausstattungen beinhalten, die nicht im Preis enthalten sind!
zzgl. Ortüblicher Baunebenkosten
Selbstverständlich können wir Ihr Haus auch schlüsselfertig / bezugsfertig errichten.
■ Bodenbeläge, Sockel leisten verlegt
■ Maler- und Tapezierarbeiten
■ Innentüren inkl. Einbau
Sonstige Informationen
Sie wünschen Bauplanung und Begleitung aus einer Hand? Dann sind wir Ihr Baupartner! Wir stehen Ihnen von Anfang an zur Seite und führen Sie auf dem Weg in Ihr neues perfektes Zuhause!
Mit STREIF haben Sie einen Baupartner mit Bau-Know-how, der seit 1929 auf fast 100 Jahre und 100.000 realisierte Wohnträume zurückblicken kann.
Jedes Haus von STREIF wird individuell als Energiesparhaus geplant und gebaut. Eine nachhaltige, ökologische und wohngesunde Bauweise, eine zertifizierte Ausführungsqualität und eine kurze Bauzeit, dafür stehen wir.
Im Anschluss der gemeinsamen Bedarfsermittlung erstellen wir Ihnen Ihren individuellen Planungsvorschlag mit einer detaillierten & realistisch ermittelten Aufstellung der Gesamt-Investition.
Wir freuen uns auf Ihren Anruf / Nachricht:
Mit STREIF haben Sie einen Baupartner mit Bau-Know-how, der seit 1929 auf fast 100 Jahre und 100.000 realisierte Wohnträume zurückblicken kann.
Jedes Haus von STREIF wird individuell als Energiesparhaus geplant und gebaut. Eine nachhaltige, ökologische und wohngesunde Bauweise, eine zertifizierte Ausführungsqualität und eine kurze Bauzeit, dafür stehen wir.
Im Anschluss der gemeinsamen Bedarfsermittlung erstellen wir Ihnen Ihren individuellen Planungsvorschlag mit einer detaillierten & realistisch ermittelten Aufstellung der Gesamt-Investition.
Wir freuen uns auf Ihren Anruf / Nachricht:
Karte wird geladen...
Objektstandort
15344 Eggersdorf
Lage & Infrastruktur
Objektstandort
15344 Eggersdorf
"Exklusives Eckgrundstück in bester Lage - perfekt für Ihr individuelles Bauvorhaben und nur bei uns erhältlich."
Aus Diskretions- und Datenschutzgründen bitten wir um Verständnis, dass Grundstücksdaten ausschließlich im Rahmen eines persönlichen Beratungstermins und ausschließlich für unsere Kunden weitergegeben werden.
Aus Diskretions- und Datenschutzgründen bitten wir um Verständnis, dass Grundstücksdaten ausschließlich im Rahmen eines persönlichen Beratungstermins und ausschließlich für unsere Kunden weitergegeben werden.
Kontaktanfrage senden
Über den Anbieter
STREIF Haus GmbH
Josef-Streif-Straße 1
54595 Weinsheim
Kontakt
| Telefon | +49 30 67390424 |
| Mobil | +49 172 1588519 |
| Website | www.streif.de |
Ansprechpartner/in
Herr Andreas Ott
Weitere Angebote des Anbieters
31
**Luxuriöses Wohnen: Entdecken Sie die Stadtvilla ...
Haus
38176 Wendeburg
Willkommen in Ihrer zukünftigen Traumstadtvilla in Wendeburg/ Neubrück, die mit STREIF nach Ihren individuellen Wünschen projektiert wird. Diese exklusive Residenz bietet Ihnen auf 190,29 m² Wohnfläche ein geräumiges ...
713.782,2 €
Kaufpreis
190,29 m²
Wohnfläche
6
Zimmer
35
**Endlich raus aus der Miete - jetzt starten mit ...
Haus
31688 Nienstädt
Willkommen in Ihrem Traumhaus! Dieses Einfamilienhaus, projektiert nach Ihren individuellen Wünschen, bietet Ihnen die perfekte Kombination aus modernem Design und höchstem Wohnkomfort. Mit einer großzügigen Wohnfläche ...
481.229 €
Kaufpreis
143,84 m²
Wohnfläche
4
Zimmer
32
**Familienfreundlicher Bungalow mit perfekter ...
Haus
31226 Peine
Tauchen Sie ein in die Welt des modernen Wohnens mit unserem projektierten Bungalow, der individuell nach Ihren Wünschen gestaltet wird. Auf einer großzügigen Wohnfläche von 93,51 m² verteilen sich geschmackvoll 3,0 ...
495.050 €
Kaufpreis
93,51 m²
Wohnfläche
3
Zimmer
9
Vorankündigung - Wohnen next Level by STREIF DHH
Haus
53844 Troisdorf
Hochwertiges Effizienzhaus-40-PLUS >> Planung nach modernsten Wohnkriterien.
649.800 €
Kaufpreis
149 m²
Wohnfläche
6
Zimmer
8
-inkl. Grundstück-Ihre neue STREIF Doppelhaushälfte in ...
Haus
38108 Braunschweig
Der Preis bezieht sich auf das Haus inkl. Baunebenkosten und einschließlich Grundstück. Die Grunderwerbsteuer fällt nur auf die Grundstückskosten an. Herzlich willkommen bei STREIF, Ihrem zuverlässigen Partner für den ...
620.000 €
Kaufpreis
140 m²
Wohnfläche
4
Zimmer