Bezugsfrei im denkmalgeschützten Ensemble - provisionsfrei
199.000 €
Kaufpreis
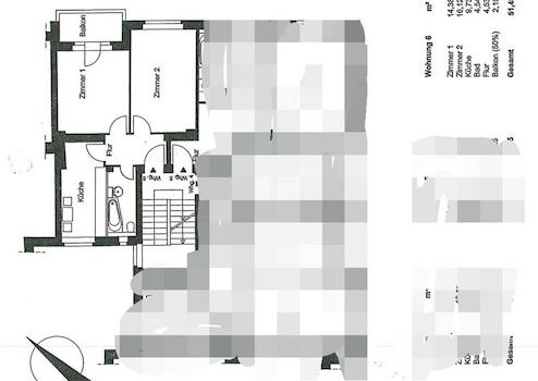
51,49 m²
Wohnfläche
2
Zimmer
immobilien.de Nr.: 9510127
Objektnummer: 432232
Kaufpreis
| Kaufpreis | 199.000 € |
| Hausgeld | 265 € |
| Maklerprovision | keine Provision, courtagefrei |
Wohnfläche, Grundstück & Bausubstanz
| Wohnfläche | 51,49 m² |
| Zimmer | 2 |
| Baujahr | 1930 |
| Verfügbar ab | sofort |
| Zustand | Gepflegt |
Energie
| Heizungsart | Zentralheizung |
| Energieträger/Befeuerung | Fernwärme |
Beschreibung der Immobilie
Das denkmalgeschützte Objekt wurde 1930 errichtet. 2003 fand eine Komplettsanierung statt. Dach, Stränge, Elektrik, Heizung, Fassade etc
Ausstattungsmerkmale
| Anzahl der Etagen im Haus | 2 |
| Inserat befindet sich im Stockwerk | 1 |
| Küche | Einbauküche |
| Bad | 1 |
| Bad | Wanne |
| Boden | Fliesen |
| Balkone | 1 |
| Terrassen | 0 |
| Keller |
Balkon, Keller, Vollbad, Einbauküche, Fliesen, Sonstiges (s. Text)
Bemerkungen:
Die Wohnung ist bezugsfrei und könnte sofort vom neuen Eigentümer bezogen werden. Die
Zimmer sind praktisch geschnitten und verfügen, wie der Flur, über Holzdielen. Das Bad mit
Wanne und Fenster ist gefliest. Die Küche mit Einbauküche hat einen Linoleumfußboden.
Den Balkon erreichen Sie über eines der Zimmer. Außerdem gibt es einen großzügigen trockenen Kellerraum.
Bemerkungen:
Die Wohnung ist bezugsfrei und könnte sofort vom neuen Eigentümer bezogen werden. Die
Zimmer sind praktisch geschnitten und verfügen, wie der Flur, über Holzdielen. Das Bad mit
Wanne und Fenster ist gefliest. Die Küche mit Einbauküche hat einen Linoleumfußboden.
Den Balkon erreichen Sie über eines der Zimmer. Außerdem gibt es einen großzügigen trockenen Kellerraum.
Sonstige Informationen
Heizungsart: Zentralheizung
Energieträger: Fernwärme
Die Instandhaltungsrücklage ist sehr hoch und beträgt zum 31.12.2025 für die WEG
160.257,83 Euro, also anteilig 9.644,65 Euro für die Wohneinheit.
Aufgrund Denkmalschutz ist ein Energieausweis nicht verpflichtend.
ohne-makler (OM) ist weder Anbieter noch Vermittler der Immobilie. OM betreibt eine Plattform für Immobilieneigentümer, die unter anderem die gleichzeitige Veröffentlichung einzelner Inserate auf mehreren Immobilienportalen ermöglicht. Die Inhalte dieser Inserate werden ausschließlich von Dritten verantwortet. Für die Richtigkeit, Vollständigkeit oder Rechtmäßigkeit der Angaben übernimmt OM keine Haftung. Hinweise auf mögliche Rechtsverstöße können jederzeit gemeldet werden und werden nach Prüfung umgehend bearbeitet.
Energieträger: Fernwärme
Die Instandhaltungsrücklage ist sehr hoch und beträgt zum 31.12.2025 für die WEG
160.257,83 Euro, also anteilig 9.644,65 Euro für die Wohneinheit.
Aufgrund Denkmalschutz ist ein Energieausweis nicht verpflichtend.
ohne-makler (OM) ist weder Anbieter noch Vermittler der Immobilie. OM betreibt eine Plattform für Immobilieneigentümer, die unter anderem die gleichzeitige Veröffentlichung einzelner Inserate auf mehreren Immobilienportalen ermöglicht. Die Inhalte dieser Inserate werden ausschließlich von Dritten verantwortet. Für die Richtigkeit, Vollständigkeit oder Rechtmäßigkeit der Angaben übernimmt OM keine Haftung. Hinweise auf mögliche Rechtsverstöße können jederzeit gemeldet werden und werden nach Prüfung umgehend bearbeitet.
Karte wird geladen...
Objektstandort
Otto-Franke-Straße 2
12489 Berlin
- Berlin
Lage & Infrastruktur
Objektstandort
Otto-Franke-Straße 2
12489 Berlin
- Berlin
Nur wenige Meter vom Altmarkt in Plauen entfernt. In der näheren Umgebung befinden sich Bäcker, Fleischer, Supermärkte, Bäcker sowie der öffentliche Nahverkehr.
Infrastruktur (im Umkreis von 5 km):
Apotheke, Lebensmittel-Discount, Allgemeinmediziner, Kindergarten, Grundschule, Hauptschule, Realschule, Gymnasium, Gesamtschule, Öffentliche Verkehrsmittel
Infrastruktur (im Umkreis von 5 km):
Apotheke, Lebensmittel-Discount, Allgemeinmediziner, Kindergarten, Grundschule, Hauptschule, Realschule, Gymnasium, Gesamtschule, Öffentliche Verkehrsmittel
Kontaktanfrage senden
Über den Anbieter
OM PropTech GmbH
Humboldtstraße 25a
21509 Glinde
Kontakt
| Telefon | - |
| Fax | - |
| Website | www.ohne-makler.net |
Ansprechpartner/in
Privat von Christopher Kempin
Weitere Angebote des Anbieters
4
Hachenburg: Rollstuhlgerechte Wohnung mit Balkon und ...
Wohnung
57627 Hachenburg
Diese großzügige 2-Zimmer-Wohnung (Schlafzimmer und großer Wohn-, Essbereich) im Erdgeschoss eines 2017 sanierten Mehrfamilienhauses überzeugt durch ihren durchdachten Grundriss, konsequent barrierefreies Wohnkonzept ...
782 €
Kaltmiete (netto)
92 m²
Wohnfläche
2
Zimmer
10
Komfortwohnung mit Wintergarten und Balkon in ruhiger ...
Wohnung
44359 Dortmund
Es bietet sich hier die Möglichkeit zur Anmietung einer außergewöhnlichen Komfort-Wohnung in grüner Wohnlage mit Balkon und Wintergarten in einem gepflegten Zwei-Parteien-Haus in 44359 Obernette.
1.219 €
Kaltmiete (netto)
106 m²
Wohnfläche
3
Zimmer
14
Rundum Grün in Stgt-Killesberg, helle, ruhige 3Zi-Whg, ...
Wohnung
70191 Stuttgart
Auf den Punkt gebracht: sehr gute beliebte, ruhige Anliegerwohnlage im Grünen ohne Durchgangsverkehr, sehr viel Licht in 3 hellen Räumen, Ausblick nach 3 Seiten, Balkon und EBK in STUTTGART-NORD, ganz in der Nähe des ...
1.175 €
Kaltmiete (netto)
68 m²
Wohnfläche
3
Zimmer
8
Möblierte 1-Zimmer-Wohnung in Rastatt-Niederbühl
Wohnung
76437 Rastatt-Niederbühl
Diese gepflegte und helle 1-Zimmer-Wohnung befindet sich im Erdgeschoss eines ruhigen Mehrfamilienhauses, Baujahr 1995. Mit rund 26 m² Wohnfläche bietet sie eine kompakte und funktional geschnittene Einheit – ideal für ...
550 €
Kaltmiete (netto)
25 m²
Wohnfläche
1
Zimmer
29
Charmante, helle 1-Zimmer Wohnung- ideal für ...
Wohnung
48703 Stadtlohn
Endlich eine Wohnung die sich rechnet. Die Wohnung ist frei und kann somit sofort vermietet oder selbstgenutzt werden. Das Gebäude wurde 2005 fertiggestellt und ist somit noch recht jung, was sich in der Energieeffizien ...
86.000 €
Kaufpreis
29 m²
Wohnfläche
1
Zimmer