NEUBAU Erstbezug DHH mit Garage | PV + Wärmepumpe | 3 Bäder | 173 qm | provisionsfrei | Top Lage
799.000 €
Kaufpreis
173 m²
Wohnfläche
5
Zimmer
immobilien.de Nr.: 9508386
Objektnummer: 436270
Kaufpreis
| Kaufpreis | 799.000 € |
| Maklerprovision | keine Provision, courtagefrei |
Wohnfläche, Grundstück & Bausubstanz
| Wohnfläche | 173 m² |
| Grundstücksfläche | 339 m² |
| Zimmer | 5 |
| Baujahr | 2026 |
| Verfügbar ab | nach Absprache |
| Zustand | Erstbezug |
Energie
| Heizungsart | Fußbodenheizung |
| Energieträger/Befeuerung | Luft-Wärme-Pumpe |
Beschreibung der Immobilie
Kurzprofil
Kisselfließ 15
799.000 €
ca. 173 m² Wohnfläche
ca. 339 m² Grundstück
Garage + Stellplatz
________________________________________
Folgende Eckdaten:
•173 m² Wohnfläche Neubau Erstbezug
•2 Vollgeschosse in Massivbauweise
•großer, heller Wohn-/Essbereich mit offener Küche
•Südterrasse mit schönem Blick
•3 Badezimmer
•zusätzliches Zimmer im Erdgeschoss
•Garage mit Wallbox + Stellplatz
•Daikin Luft-Wärmepumpe
•große PV-Anlage mit 20 Modulen
•Fußbodenheizung
•bodentiefe 3-fach verglaste Schüco-Fenster
•elektrische Rollläden
•LAN in jedem Zimmer
•provisionsfrei direkt vom Eigentümer
________________________________________
Kurzbeschreibung
Diese beiden modernen Doppelhaushälften in Laudenbach bieten genau das, was viele Käufer suchen: viel Platz, moderne Technik, starke Energieeffizienz und einen familienfreundlichen Grundriss.
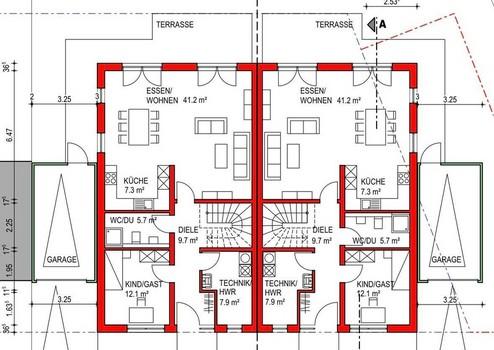
Der Mittelpunkt des Hauses ist der große, offene Wohn-/Essbereich mit offener Küche und vielen bodentiefen Fenstern. Dadurch wirken die Häuser hell, modern und einladend. Die Südterrasse erweitert den Wohnbereich nach draußen und bietet einen schönen Blick ins Umfeld.
Besonders praktisch: Im Erdgeschoss befindet sich zusätzlich ein weiteres großes Zimmer sowie ein voll ausgestattetes Badezimmer. Ideal für Homeoffice, Gäste oder Wohnen auf einer Ebene.
Im Obergeschoss erwarten Sie zwei Kinderzimmer mit eigenem Bad sowie ein großzügiger Elternbereich mit Schlafzimmer, Ankleide und eigenem Bad.
________________________________________
Fast bezugsfertig mit individuellem Finish
Die Häuser befinden sich in einem sehr weit fortgeschrittenen Ausbaustand und werden als fast bezugsfertige Neubauten angeboten.
Die wesentlichen Bau- und Technikleistungen sind bereits umgesetzt. Der Käufer profitiert damit von einem modernen Neubau, bei dem im Wesentlichen nur noch die sichtbaren Oberflächen nach eigenem Geschmack gewählt werden.
Im Wesentlichen betrifft dies:
•Bodenbeläge
•Badfliesen
•Innentüren
•Zaun und Begrünung
Vom Verkäufer werden noch übernommen:
•Malerarbeiten
•Befestigung von Terrasse und Hofeinfahrt
•moderne Treppengeländer
Für die noch individuell wählbaren Oberflächen im Innenausbau sollte – je nach Ausstattungswunsch – ein zusätzlicher Rahmen von ca. 30.000 € pro Haus eingeplant werden.
Bei Rückfragen gerne unter:
0176-77107652
Kisselfließ 15
799.000 €
ca. 173 m² Wohnfläche
ca. 339 m² Grundstück
Garage + Stellplatz
________________________________________
Folgende Eckdaten:
•173 m² Wohnfläche Neubau Erstbezug
•2 Vollgeschosse in Massivbauweise
•großer, heller Wohn-/Essbereich mit offener Küche
•Südterrasse mit schönem Blick
•3 Badezimmer
•zusätzliches Zimmer im Erdgeschoss
•Garage mit Wallbox + Stellplatz
•Daikin Luft-Wärmepumpe
•große PV-Anlage mit 20 Modulen
•Fußbodenheizung
•bodentiefe 3-fach verglaste Schüco-Fenster
•elektrische Rollläden
•LAN in jedem Zimmer
•provisionsfrei direkt vom Eigentümer
________________________________________
Kurzbeschreibung
Diese beiden modernen Doppelhaushälften in Laudenbach bieten genau das, was viele Käufer suchen: viel Platz, moderne Technik, starke Energieeffizienz und einen familienfreundlichen Grundriss.
Der Mittelpunkt des Hauses ist der große, offene Wohn-/Essbereich mit offener Küche und vielen bodentiefen Fenstern. Dadurch wirken die Häuser hell, modern und einladend. Die Südterrasse erweitert den Wohnbereich nach draußen und bietet einen schönen Blick ins Umfeld.
Besonders praktisch: Im Erdgeschoss befindet sich zusätzlich ein weiteres großes Zimmer sowie ein voll ausgestattetes Badezimmer. Ideal für Homeoffice, Gäste oder Wohnen auf einer Ebene.
Im Obergeschoss erwarten Sie zwei Kinderzimmer mit eigenem Bad sowie ein großzügiger Elternbereich mit Schlafzimmer, Ankleide und eigenem Bad.
________________________________________
Fast bezugsfertig mit individuellem Finish
Die Häuser befinden sich in einem sehr weit fortgeschrittenen Ausbaustand und werden als fast bezugsfertige Neubauten angeboten.
Die wesentlichen Bau- und Technikleistungen sind bereits umgesetzt. Der Käufer profitiert damit von einem modernen Neubau, bei dem im Wesentlichen nur noch die sichtbaren Oberflächen nach eigenem Geschmack gewählt werden.
Im Wesentlichen betrifft dies:
•Bodenbeläge
•Badfliesen
•Innentüren
•Zaun und Begrünung
Vom Verkäufer werden noch übernommen:
•Malerarbeiten
•Befestigung von Terrasse und Hofeinfahrt
•moderne Treppengeländer
Für die noch individuell wählbaren Oberflächen im Innenausbau sollte – je nach Ausstattungswunsch – ein zusätzlicher Rahmen von ca. 30.000 € pro Haus eingeplant werden.
Bei Rückfragen gerne unter:
0176-77107652
Ausstattungsmerkmale
| Anzahl der Etagen im Haus | 2 |
| Bad | 3 |
| Bad | Dusche, Wanne |
| Balkone | 0 |
| Garten | |
| Terrassen | 1 |
| Barrierefrei | |
| Garage/Stellplätze | 1 |
Terrasse, Garten, Vollbad, Duschbad, Gäste-WC, Barrierefrei
Sonstige Informationen
Heizungsart: Fußbodenheizung
Energieträger: Luft-/Wasserwärme
Energieausweis nicht vorhanden
Bei Rückfragen gerne unter:
0176-77107652
Makleranfragen nicht erwünscht. Nach § 7 UWG sind unaufgeforderte Kontaktaufnahmen durch Makler ohne ausdrückliche Einwilligung des Empfängers verboten!
ohne-makler (OM) ist weder Anbieter noch Vermittler der Immobilie. OM betreibt eine Plattform für Immobilieneigentümer, die unter anderem die gleichzeitige Veröffentlichung einzelner Inserate auf mehreren Immobilienportalen ermöglicht. Die Inhalte dieser Inserate werden ausschließlich von Dritten verantwortet. Für die Richtigkeit, Vollständigkeit oder Rechtmäßigkeit der Angaben übernimmt OM keine Haftung. Hinweise auf mögliche Rechtsverstöße können jederzeit gemeldet werden und werden nach Prüfung umgehend bearbeitet.
Energieträger: Luft-/Wasserwärme
Energieausweis nicht vorhanden
Bei Rückfragen gerne unter:
0176-77107652
Makleranfragen nicht erwünscht. Nach § 7 UWG sind unaufgeforderte Kontaktaufnahmen durch Makler ohne ausdrückliche Einwilligung des Empfängers verboten!
ohne-makler (OM) ist weder Anbieter noch Vermittler der Immobilie. OM betreibt eine Plattform für Immobilieneigentümer, die unter anderem die gleichzeitige Veröffentlichung einzelner Inserate auf mehreren Immobilienportalen ermöglicht. Die Inhalte dieser Inserate werden ausschließlich von Dritten verantwortet. Für die Richtigkeit, Vollständigkeit oder Rechtmäßigkeit der Angaben übernimmt OM keine Haftung. Hinweise auf mögliche Rechtsverstöße können jederzeit gemeldet werden und werden nach Prüfung umgehend bearbeitet.
Karte wird geladen...
Objektstandort
Im Kisselfließ 15
69514 Laudenbach
- Baden-Württemberg
Lage & Infrastruktur
Objektstandort
Im Kisselfließ 15
69514 Laudenbach
- Baden-Württemberg
Neubaugebiet - Kisselfließ I Laudenbach
Infrastruktur (im Umkreis von 5 km):
Apotheke, Lebensmittel-Discount, Allgemeinmediziner, Kindergarten, Grundschule, Hauptschule, Realschule, Gymnasium, Gesamtschule, Öffentliche Verkehrsmittel
Infrastruktur (im Umkreis von 5 km):
Apotheke, Lebensmittel-Discount, Allgemeinmediziner, Kindergarten, Grundschule, Hauptschule, Realschule, Gymnasium, Gesamtschule, Öffentliche Verkehrsmittel
Kontaktanfrage senden
Über den Anbieter
OM PropTech GmbH
Humboldtstraße 25a
21509 Glinde
Kontakt
| Telefon | - |
| Fax | - |
| Website | www.ohne-makler.net |
Ansprechpartner/in
Privat vom Eigentümer
Weitere Angebote des Anbieters
9
3 ZKB mit großem Balkon, KL-City
Wohnung
67657 Kaiserslautern
Die Wohnung liegt im 2. OG eines Mehrfamilienhauses ( insgesamt 10 Parteien). Die Wohnung wurde vor einigen Jahren vollkommen modernisiert: neue Elektrik, neue Badausstattung, moderne Fliesen in Küche, Bad und Flur, ...
580 €
Kaltmiete (netto)
80 m²
Wohnfläche
3
Zimmer
8
KR-Bockum! Hochwertig sanierte 2-Zimmer-ETW mit Balkon ...
Wohnung
47800 Krefeld
Diese frisch und umfassend sanierte 2-Zimmer-Eigentumswohnung mit ca. 61 m² Wohnfläche befindet sich in einer der begehrtesten Wohnlagen von Krefeld-Bockum – nur wenige Gehminuten vom beliebten Stadtwald sowie dem ...
199.900 €
Kaufpreis
60,72 m²
Wohnfläche
2
Zimmer
9
Luxuriöses 3-Zimmer Penthouse mit Dachterrasse in ...
Wohnung
80636 München
Erleben Sie exklusives Wohnen in diesem luxuriösen 3-Zimmer-Penthouse im 5. Obergeschoss eines sehr gepflegten Gebäudes in München-Maxvorstadt-Neuhausen. Mit einer großzügigen Wohnfläche von ca. 114 m² bietet diese ...
3.100 €
Kaltmiete (netto)
114 m²
Wohnfläche
3
Zimmer
6
Traumwohnung 2 Zimmer 58 m² in Dortmund mit Terrasse ...
Wohnung
44141 Dortmund
2 Etagen Haustiere erlaubt Ausgestattete Küche Keller Balkon Möbliert Badezimmer Mit einer großzügigen Wohnfläche von 58,69 m² bietet die Wohnung zwei Zimmer, darunter ein Schlafzimmer und ein Badezimmer. Die helle ...
500 €
Kaltmiete (netto)
58 m²
Wohnfläche
2
Zimmer
13
Helle grosszügige 3-Zimmer-Wohnung + Wohnküche + Bad + ...
Wohnung
66976 Rodalben
Sehr schöne helle großzügige 3 Zimmer-Wohnung in der verkehrsberuhigten Einbahn-Hauptstr Rodalben: - mit Wohnküche (16 qm) - mit Abstellkammer - Wannenbad mit Fenster - Gästetoilette - Einbauküche kann vom Vormieter ...
630 €
Kaltmiete (netto)
100 m²
Wohnfläche
3
Zimmer