Neubau in Lebach !
391.000 €
Kaufpreis
127 m²
Wohnfläche
5
Zimmer
immobilien.de Nr.: 9508205
Objektnummer: 251090A001-260311
Kaufpreis
| Kaufpreis | 391.000 € |
| Stellplatz Garage Kaufpreis | 9.000 € |
Wohnfläche, Grundstück & Bausubstanz
| Wohnfläche | 127 m² |
| Grundstücksfläche | 590 m² |
| Zimmer | 5 |
| Baujahr | 2026 |
| Verfügbar ab | nach Vereinbarung |
| Zustand | Erstbezug |
Energie
| Energieausweistyp | Verbrauch |
| Baujahr (laut Energieausweis) | 2026 |
| Energieeffizienzklasse | A+ |
| Energietyp | Niedrigenergie, Neubaustandard, KfW-40 |
| Energieverbrauchkennwert | 33.00 kWh/(m²*a) |
| Heizungsart | Zentralheizung |
| Wesentlicher Energieträger | Strom |
| Energieträger/Befeuerung | Luft-Wärme-Pumpe |
Beschreibung der Immobilie
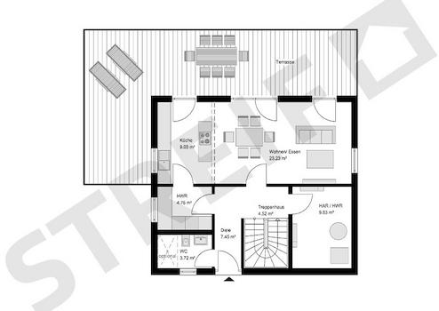
Dieses charmante Zuhause mit Satteldach bietet Ihnen nicht nur ein durchdachtes Raumkonzept, sondern auch ein lichtdurchflutetes Ambiente, das zum Wohlfühlen einlädt.
Der offene Wohn-, Ess- und Kochbereich ist der perfekte Ort für gesellige Abende mit der Familie oder Freunden. Der praktische Hauswirtschaftsraum direkt neben der Küche sorgt dafür, dass alles seinen Platz hat und Sie den Alltag entspannt meistern können.
Im Erdgeschoss finden Sie zudem ein Gäste-WC, das flexibel auch als Duschbad genutzt werden kann, sowie eine einladende Diele und einen Haustechnikraum, die den Komfort Ihres neuen Zuhauses abrunden.
Im Dachgeschoss erwarten Sie zwei wunderschöne Kinderzimmer, ein gemütliches Elternschlafzimmer, ein Flur und ein Familienbad - alles, was Sie für harmonische Familienmomente benötigen.
Die durchdachte Anordnung der Treppe und des Haustechnikraumes sorgt für eine optimale Nutzung des Raumes.
Lassen Sie sich von diesem Einfamilienhaus inspirieren und gestalten Sie Ihr neues Zuhause, in dem Erinnerungen geschaffen werden!
Der offene Wohn-, Ess- und Kochbereich ist der perfekte Ort für gesellige Abende mit der Familie oder Freunden. Der praktische Hauswirtschaftsraum direkt neben der Küche sorgt dafür, dass alles seinen Platz hat und Sie den Alltag entspannt meistern können.
Im Erdgeschoss finden Sie zudem ein Gäste-WC, das flexibel auch als Duschbad genutzt werden kann, sowie eine einladende Diele und einen Haustechnikraum, die den Komfort Ihres neuen Zuhauses abrunden.
Im Dachgeschoss erwarten Sie zwei wunderschöne Kinderzimmer, ein gemütliches Elternschlafzimmer, ein Flur und ein Familienbad - alles, was Sie für harmonische Familienmomente benötigen.
Die durchdachte Anordnung der Treppe und des Haustechnikraumes sorgt für eine optimale Nutzung des Raumes.
Lassen Sie sich von diesem Einfamilienhaus inspirieren und gestalten Sie Ihr neues Zuhause, in dem Erinnerungen geschaffen werden!
Ausstattungsmerkmale
| Anzahl der Etagen im Haus | 2 |
| Küche | Offene Küche |
| Bad | 1 |
| Bad | Dusche, Wanne, Fenster |
| Boden | Fliesen, Stein, Teppich, Parkett, Fertigparkett, Laminat, Dielen, Kunststoff, Linoleum, Marmor, Granit |
| Terrassen | 1 |
| Barrierefrei | |
| Garage/Stellplätze | 1 |
Ausstattung
STREIF-Häuser sind Energiesparhäuser. Die STREIF-Passiv-Außenwände und eine sparsame Heiztechnik mit integrierter Wohnraumlüftung und Wärmerückgewinnung, garantieren einen geringen Energieverbrauch und ein fantastisches Raumklima, das insbesondere Allergiker aufatmen lässt.
STREIF Leistungen sind MEHR WERT - schon im Grundpreis enthalten!
- 16-monatige Festpreisgarantie
- Energieeffizienzhaus KfW 40 EE im Standard
- Inkl. individuelle Grundrissgestaltung und Raumaufteilung
- Inkl. Fundamentplatte
- Inkl. STREIF-Luft-Luft-Wärmepumpe mit integrierter
Lüftungsanlage mit Wärmerückgewinnung
- Inkl. Haustür von KERA und Fenster von Porta/Kömmerling
- Inkl. Massivholz-Geschosstreppe aus eigener Produktion
- Inkl. Sanitärobjekte von Markenherstellern
- Inkl. Elektroinstallation
- Inkl. Baubetreuung u.v.m.
Die hohe Wertigkeit und Langlebigkeit eines STREIF-Energiespar-Hauses wird durch zahlreiche Auszeichnungen, Qualitäts- und Gütesiegel unabhängiger Institute und Verbände dokumentiert.
Der Angebotspreis ist inklusive Grundstück und bezieht sich auf die Standard-Ausbaustufe Fast-Fertig-Plus. Ihre Eigenleistungen: Spachtel-,Tapezier- und Malerarbeiten, Bodenbeläge, Innentüren.
Baunebenkosten fallen zuzüglich an.
Der Verkauf des Grundstücks erfolgt über einen unserer Netzwerkpartner.
Bilder können evtl. Anbauteile, Carports, Balkone, Gauben usw. zeigen, die nicht im Angebotspreis enthalten sind. Änderungen und Irrtümer vorbehalten.
STREIF-Häuser sind Energiesparhäuser. Die STREIF-Passiv-Außenwände und eine sparsame Heiztechnik mit integrierter Wohnraumlüftung und Wärmerückgewinnung, garantieren einen geringen Energieverbrauch und ein fantastisches Raumklima, das insbesondere Allergiker aufatmen lässt.
STREIF Leistungen sind MEHR WERT - schon im Grundpreis enthalten!
- 16-monatige Festpreisgarantie
- Energieeffizienzhaus KfW 40 EE im Standard
- Inkl. individuelle Grundrissgestaltung und Raumaufteilung
- Inkl. Fundamentplatte
- Inkl. STREIF-Luft-Luft-Wärmepumpe mit integrierter
Lüftungsanlage mit Wärmerückgewinnung
- Inkl. Haustür von KERA und Fenster von Porta/Kömmerling
- Inkl. Massivholz-Geschosstreppe aus eigener Produktion
- Inkl. Sanitärobjekte von Markenherstellern
- Inkl. Elektroinstallation
- Inkl. Baubetreuung u.v.m.
Die hohe Wertigkeit und Langlebigkeit eines STREIF-Energiespar-Hauses wird durch zahlreiche Auszeichnungen, Qualitäts- und Gütesiegel unabhängiger Institute und Verbände dokumentiert.
Der Angebotspreis ist inklusive Grundstück und bezieht sich auf die Standard-Ausbaustufe Fast-Fertig-Plus. Ihre Eigenleistungen: Spachtel-,Tapezier- und Malerarbeiten, Bodenbeläge, Innentüren.
Baunebenkosten fallen zuzüglich an.
Der Verkauf des Grundstücks erfolgt über einen unserer Netzwerkpartner.
Bilder können evtl. Anbauteile, Carports, Balkone, Gauben usw. zeigen, die nicht im Angebotspreis enthalten sind. Änderungen und Irrtümer vorbehalten.
Sonstige Informationen
Wahlweise kann Ihr Haus in den Ausbaustufen "AUSBAUFERTIG" oder "FASTFERTIG" oder FASTFERTIG PLUS" bis hin zu "SCHLÜSSELFERTIG" geplant werden.
Wir ermitteln in der Bedarfsanalyse gemeinsam mit Ihnen den gewünschten Fertigstellungsgrad und kalkulieren den entsprechenden Preis für Sie.
Abgesehen von den Ausbaustufen bestimmen Sie ebenso die technische und optische Ausstattung ganz nach Ihren Vorstellungen und Wünschen.
Diese ersten Gespräche und die Erstellung eines Angebotes sind für Sie kostenlos.
Ich freue mich schon jetzt auf unseren ersten gemeinsamen Termin damit wir mit den ersten Schritten beginnen können.
Thomas Heitz 0160 7038141 oder thomas.heitz@streif.de
Wir ermitteln in der Bedarfsanalyse gemeinsam mit Ihnen den gewünschten Fertigstellungsgrad und kalkulieren den entsprechenden Preis für Sie.
Abgesehen von den Ausbaustufen bestimmen Sie ebenso die technische und optische Ausstattung ganz nach Ihren Vorstellungen und Wünschen.
Diese ersten Gespräche und die Erstellung eines Angebotes sind für Sie kostenlos.
Ich freue mich schon jetzt auf unseren ersten gemeinsamen Termin damit wir mit den ersten Schritten beginnen können.
Thomas Heitz 0160 7038141 oder thomas.heitz@streif.de
Karte wird geladen...
Objektstandort
66822 Lebach
Lage & Infrastruktur
Objektstandort
66822 Lebach
Das Grundstück liegt in einer bemerkenswerten Süd-West Lage mit Fernblick im Randbereich von Lebach. Die Stadt verfügt über eine sehr gute Infrastruktur und direkte Anbindungen an die A1 und die A8. Das Schulsystem reicht bis zum Abitur und die nächste Universität liegt in der nahegelegenen Landeshauptstadt Saarbrücken.
Das Haus ist auf einem realen Baugrundstück geplant oder auf einem Grundstück in einer Planungsphase. Das Grundstück erwerben Sie direkt vom Eigentümer. Der Preis des Grundstücks ist im Angebotspreis bereits eingerechnet.
Bitte haben Sie Verständnis dafür, dass wir ohne ein persönliches Gespräch keine Grundstücksdaten weiterleiten können.
Gern sind wir bei der Wahl Ihres Traumgrundstückes behilflich!
Natürlich können wir ihren Haustraum auch auf einem anderen Grundstück realisieren, lassen Sie sich dazu in einem unverbindlichen Gespräch zu Ihrem Bauvorhaben beraten.
Das Haus ist auf einem realen Baugrundstück geplant oder auf einem Grundstück in einer Planungsphase. Das Grundstück erwerben Sie direkt vom Eigentümer. Der Preis des Grundstücks ist im Angebotspreis bereits eingerechnet.
Bitte haben Sie Verständnis dafür, dass wir ohne ein persönliches Gespräch keine Grundstücksdaten weiterleiten können.
Gern sind wir bei der Wahl Ihres Traumgrundstückes behilflich!
Natürlich können wir ihren Haustraum auch auf einem anderen Grundstück realisieren, lassen Sie sich dazu in einem unverbindlichen Gespräch zu Ihrem Bauvorhaben beraten.
Kontaktanfrage senden
Über den Anbieter
STREIF Haus GmbH
Josef-Streif-Straße 1
54595 Weinsheim
Kontakt
| Telefon | +49 681 70947955 |
| Mobil | +49 160 7038141 |
| Website | www.streif.de |
Ansprechpartner/in
Herr Thomas Heitz
Weitere Angebote des Anbieters
31
**Luxuriöses Wohnen: Entdecken Sie die Stadtvilla ...
Haus
38176 Wendeburg
Willkommen in Ihrer zukünftigen Traumstadtvilla in Wendeburg/ Neubrück, die mit STREIF nach Ihren individuellen Wünschen projektiert wird. Diese exklusive Residenz bietet Ihnen auf 190,29 m² Wohnfläche ein geräumiges ...
713.782,2 €
Kaufpreis
190,29 m²
Wohnfläche
6
Zimmer
35
**Endlich raus aus der Miete - jetzt starten mit ...
Haus
31688 Nienstädt
Willkommen in Ihrem Traumhaus! Dieses Einfamilienhaus, projektiert nach Ihren individuellen Wünschen, bietet Ihnen die perfekte Kombination aus modernem Design und höchstem Wohnkomfort. Mit einer großzügigen Wohnfläche ...
481.229 €
Kaufpreis
143,84 m²
Wohnfläche
4
Zimmer
32
**Familienfreundlicher Bungalow mit perfekter ...
Haus
31226 Peine
Tauchen Sie ein in die Welt des modernen Wohnens mit unserem projektierten Bungalow, der individuell nach Ihren Wünschen gestaltet wird. Auf einer großzügigen Wohnfläche von 93,51 m² verteilen sich geschmackvoll 3,0 ...
495.050 €
Kaufpreis
93,51 m²
Wohnfläche
3
Zimmer
9
Vorankündigung - Wohnen next Level by STREIF DHH
Haus
53844 Troisdorf
Hochwertiges Effizienzhaus-40-PLUS >> Planung nach modernsten Wohnkriterien.
649.800 €
Kaufpreis
149 m²
Wohnfläche
6
Zimmer
8
-inkl. Grundstück-Ihre neue STREIF Doppelhaushälfte in ...
Haus
38108 Braunschweig
Der Preis bezieht sich auf das Haus inkl. Baunebenkosten und einschließlich Grundstück. Die Grunderwerbsteuer fällt nur auf die Grundstückskosten an. Herzlich willkommen bei STREIF, Ihrem zuverlässigen Partner für den ...
620.000 €
Kaufpreis
140 m²
Wohnfläche
4
Zimmer