**Ein Zuhause in der Stadt, das Ihre Seele nährt! mit Klinkeraktion**
756.254 €
Kaufpreis
183,88 m²
Wohnfläche
25 m²
Nutzfläche
6
Zimmer
immobilien.de Nr.: 9508081
Objektnummer: KR260311_271GR
Kaufpreis
| Kaufpreis | 756.254 € |
Wohnfläche, Grundstück & Bausubstanz
| Wohnfläche | 183,88 m² |
| Nutzfläche | 25 m² |
| Grundstücksfläche | 737 m² |
| Zimmer | 6 |
| Baujahr | 2026 |
| Verfügbar ab | 2026 |
| Zustand | Projektiert |
Energie
| Energietyp | KfW-40 |
| Heizungsart | Fernwärme |
| Energieträger/Befeuerung | Solar, Fernwärme |
Beschreibung der Immobilie
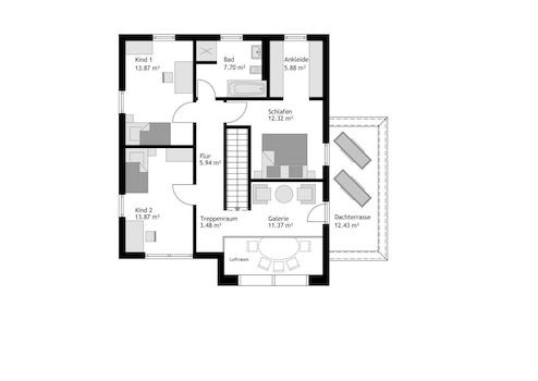
Willkommen in Ihrer neuen Stadtvilla, die ganz nach Ihren individuellen Wünschen projektiert wird. Diese exklusive Stadtvilla mit 6 Zimmern und einer großzügigen Wohnfläche von 183,88 m² bietet Ihnen und Ihrer Familie den perfekten Rückzugsort. Das moderne Baukonzept vereint stilvolle Architektur und durchdachte Raumgestaltung, die sowohl Funktionalität als auch Ästhetik in den Vordergrund stellt. Mit 2 Etagen, 3 eleganten Schlafzimmern und 2 komfortablen Badezimmern, darunter ein Badezimmer mit Dusche, Wanne und Fenster sowie einem zusätzlichen Gäste-WC, ist dieses Zuhause ideal für moderne Familien. Das großzügige Grundstück von 737 m² im Neubaugebiet von Gronau bietet ausreichend Platz für Ihre persönlichen Gestaltungsideen im Außenbereich und eine grüne Oase zum Entspannen. Ihr Traumhaus wird mit der Ausbaustufe "FastFertigPlus" realisiert, die es Ihnen ermöglicht, aktiv am Bauprozess teilzunehmen, während Sie die haustechnischen Gewerke von Fachbetrieben erledigen lassen. Ab einem Preis von 344.375 EUR wird Ihr Traumhaus Wirklichkeit!
Ausstattungsmerkmale
| Anzahl der Etagen im Haus | 2 |
| Küche | Offene Küche |
| Bad | 2 |
| Bad | Dusche, Wanne, Fenster |
| Boden | Fliesen |
| Terrassen | 1 |
Die Stadtvilla überzeugt durch ihre luxuriöse Ausstattung, die höchsten Ansprüchen gerecht wird. Die Bodenbeläge sind in eleganten Fliesen gehalten, die nicht nur pflegeleicht und langlebig sind, sondern auch eine ansprechende Optik bieten. Alternativ können Sie nach Wunsch weitere Bodenbeläge wählen, um Ihren persönlichen Stil auszudrücken. Die Beheizung erfolgt durch eine moderne Wärmepumpe, die nicht nur umweltfreundlich ist, sondern auch die Energiekosten erheblich senkt. Mit dem KFW40 Standard erfüllt Ihr neues Zuhause höchste Energieeffizienz-Standards, was nicht nur der Umwelt zugutekommt, sondern auch langfristig Ihre Kosten reduziert.
Sonstige Informationen
Achtung: Klinkeraktion ist verlängert.
Hinweis: Das Grundstück können Sie direkt über die Sparkasse Hildesheim Peine erwerben.
Bei STREIF haben Sie die Wahl zwischen vier verschiedenen Ausbaustufen, die es Ihnen ermöglichen, Ihr Traumhaus nach Ihren Vorstellungen zu gestalten. Die Ausbaustufe 3 - FastFertigPlus umfasst bereits eine Sanitär-Grundausstattung und ermöglicht es Ihnen, Eigenleistungen in Form einer Muskelhypothek einzubringen, um Kosten zu sparen. Sie können entscheiden, ob Sie Ihr Haus schlüsselfertig oder als Ausbauhaus erhalten möchten. Unsere individuelle Bauberatung wird Ihnen helfen, Ihre Wünsche zu realisieren und ein maßgeschneidertes Konzept zu entwickeln, das zu Ihrem Lebensstil und Budget passt.
Hinweis: Das Grundstück können Sie direkt über die Sparkasse Hildesheim Peine erwerben.
Bei STREIF haben Sie die Wahl zwischen vier verschiedenen Ausbaustufen, die es Ihnen ermöglichen, Ihr Traumhaus nach Ihren Vorstellungen zu gestalten. Die Ausbaustufe 3 - FastFertigPlus umfasst bereits eine Sanitär-Grundausstattung und ermöglicht es Ihnen, Eigenleistungen in Form einer Muskelhypothek einzubringen, um Kosten zu sparen. Sie können entscheiden, ob Sie Ihr Haus schlüsselfertig oder als Ausbauhaus erhalten möchten. Unsere individuelle Bauberatung wird Ihnen helfen, Ihre Wünsche zu realisieren und ein maßgeschneidertes Konzept zu entwickeln, das zu Ihrem Lebensstil und Budget passt.
Karte wird geladen...
Objektstandort
31028 Gronau (Leine)
Lage & Infrastruktur
Objektstandort
31028 Gronau (Leine)
Die Lage dieser Stadtvilla in Gronau ist ideal für Familien. In der unmittelbaren Umgebung finden Sie alle wichtigen Einrichtungen des täglichen Bedarfs, darunter eine Apotheke, einen Bahnhof, Busverbindungen sowie Einkaufsmöglichkeiten. Zudem sind eine Grundschule, ein Kindergarten, ein Spielplatz und eine weiterführende Schule in der Nähe, die eine optimale Bildung für Ihre Kinder garantieren. Die ruhige Wohngegend bietet zudem zahlreiche Freizeitmöglichkeiten, die die Lebensqualität in diesem Stadtteil erhöhen.
Kontaktanfrage senden
Über den Anbieter
STREIF Haus GmbH
Josef-Streif-Straße 1
54595 Weinsheim
Kontakt
| Telefon | 06551 12 00 |
| Mobil | +49 174 6403310 |
| Website | www.streif.de |
Ansprechpartner/in
Herr Andreas Maurer
Weitere Angebote des Anbieters
10
Inkl. PV-Anlage mit Batteriespeicher!
Haus
88697 Bermatingen
Im Erdgeschoss befindet sich der große Wohn-/Ess- und Kochbereich. Das Gäste-WC wird optional zum Duschbad erweitert und der Hauswirtschafts-/Haustechnikraum komplettiert das Ganze. Im Obergeschoss befinden sich ein ...
600.000 €
Kaufpreis
133 m²
Wohnfläche
4,5
Zimmer
31
**Luxuriöses Wohnen: Entdecken Sie die Stadtvilla ...
Haus
38176 Wendeburg
Willkommen in Ihrer zukünftigen Traumstadtvilla in Wendeburg/ Neubrück, die mit STREIF nach Ihren individuellen Wünschen projektiert wird. Diese exklusive Residenz bietet Ihnen auf 190,29 m² Wohnfläche ein geräumiges ...
713.782,2 €
Kaufpreis
190,29 m²
Wohnfläche
6
Zimmer
35
**Endlich raus aus der Miete - jetzt starten mit ...
Haus
31688 Nienstädt
Willkommen in Ihrem Traumhaus! Dieses Einfamilienhaus, projektiert nach Ihren individuellen Wünschen, bietet Ihnen die perfekte Kombination aus modernem Design und höchstem Wohnkomfort. Mit einer großzügigen Wohnfläche ...
481.229 €
Kaufpreis
143,84 m²
Wohnfläche
4
Zimmer
32
**Familienfreundlicher Bungalow mit perfekter ...
Haus
31226 Peine
Tauchen Sie ein in die Welt des modernen Wohnens mit unserem projektierten Bungalow, der individuell nach Ihren Wünschen gestaltet wird. Auf einer großzügigen Wohnfläche von 93,51 m² verteilen sich geschmackvoll 3,0 ...
495.050 €
Kaufpreis
93,51 m²
Wohnfläche
3
Zimmer
9
Vorankündigung - Wohnen next Level by STREIF DHH
Haus
53844 Troisdorf
Hochwertiges Effizienzhaus-40-PLUS >> Planung nach modernsten Wohnkriterien.
649.800 €
Kaufpreis
149 m²
Wohnfläche
6
Zimmer