**Stadtvilla-Ein Meisterwerk der Architektur und des Designs mit Klinkeraktion!**
799.497 €
Kaufpreis
183,88 m²
Wohnfläche
25 m²
Nutzfläche
6
Zimmer
immobilien.de Nr.: 9508074
Objektnummer: KR260311_267GA
Kaufpreis
| Kaufpreis | 799.497 € |
Wohnfläche, Grundstück & Bausubstanz
| Wohnfläche | 183,88 m² |
| Nutzfläche | 25 m² |
| Grundstücksfläche | 835 m² |
| Zimmer | 6 |
| Baujahr | 2026 |
| Verfügbar ab | 2026 |
| Zustand | Projektiert |
Energie
| Energietyp | KfW-40 |
| Heizungsart | Zentralheizung |
| Energieträger/Befeuerung | Luft-Wärme-Pumpe |
Beschreibung der Immobilie
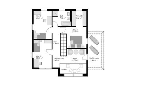
Willkommen in Ihrer zukünftigen Stadtvilla, die nach Ihren individuellen Wünschen projektiert wird. Dieser moderne Haustyp von STREIF bietet Ihnen auf 183,88 m² Wohnfläche und zwei Etagen genügend Platz für Ihre Familie. Mit sechs lichtdurchfluteten Zimmern, darunter drei Schlafzimmer und zwei elegante Badezimmer, wird jeder Raum zu einem Ort des Wohlbefindens. Das Badezimmer ist ausgestattet mit einer Dusche, einer Wanne und einem Fenster, was Ihnen sowohl Komfort als auch eine angenehme Atmosphäre bietet. Zudem sorgt ein zusätzliches Gäste-WC für zusätzlichen Komfort. Das großzügige Grundstück von 835 m² bietet Raum für Ihre persönlichen Gestaltungsideen und einen schönen Garten, in dem Sie entspannen können. Lassen Sie Ihrer Kreativität freien Lauf und gestalten Sie Ihre Stadtvilla genau nach Ihren Vorstellungen - ob mit Keller, Flachdach oder Walmdach, in modernen Farben oder klassisch dezent - alles ist möglich!
Ausstattungsmerkmale
| Anzahl der Etagen im Haus | 2 |
| Küche | Offene Küche |
| Bad | 2 |
| Bad | Dusche, Wanne, Fenster |
| Boden | Fliesen |
| Terrassen | 1 |
Die Ausstattung dieser Stadtvilla ist luxuriös und durchdacht. Hochwertige Bodenbeläge aus Fliesen und optionalen Materialien bieten sowohl Funktionalität als auch Eleganz. Die Fliesen sind pflegeleicht und langlebig, während Sie durch die Wahl von Bodenbelägen nach Wunsch zusätzliche Akzente setzen können. Die Befeuerungsart Wärmepumpe sorgt für eine effiziente und umweltfreundliche Heizlösung, die nicht nur Ihre Energiekosten senkt, sondern auch den KFW40 Standard erfüllt - ein Zeichen für höchste Energieeffizienz.
Sonstige Informationen
Achtung: Klinkeraktion ist verlängert.
Diese Stadtvilla wird in der Ausbaustufe "FastFertigPlus" angeboten, was bedeutet, dass Sie die Möglichkeit haben, aktiv am Bau Ihres Hauses mitzuwirken. Während Sie die haustechnischen Gewerke (Heizung, Lüftung, Sanitär und Estrich) von einem Fachbetrieb erledigen lassen, können Sie bei anderen Aspekten kreativ werden. Der Preis für diese Ausbaustufe beginnt ab 344.375 EUR. STREIF bietet Ihnen zudem die Wahl zwischen vier verschiedenen Ausbaustufen, sodass Sie je nach Budget und Eigenleistung entscheiden können, ob Sie ein schlüsselfertiges Haus oder ein Ausbauhaus wünschen. Mit Ihrer Muskelhypothek können Sie erheblich Geld sparen und die Kreditlaufzeiten verkürzen.
Diese Stadtvilla wird in der Ausbaustufe "FastFertigPlus" angeboten, was bedeutet, dass Sie die Möglichkeit haben, aktiv am Bau Ihres Hauses mitzuwirken. Während Sie die haustechnischen Gewerke (Heizung, Lüftung, Sanitär und Estrich) von einem Fachbetrieb erledigen lassen, können Sie bei anderen Aspekten kreativ werden. Der Preis für diese Ausbaustufe beginnt ab 344.375 EUR. STREIF bietet Ihnen zudem die Wahl zwischen vier verschiedenen Ausbaustufen, sodass Sie je nach Budget und Eigenleistung entscheiden können, ob Sie ein schlüsselfertiges Haus oder ein Ausbauhaus wünschen. Mit Ihrer Muskelhypothek können Sie erheblich Geld sparen und die Kreditlaufzeiten verkürzen.
Karte wird geladen...
Objektstandort
30826 Garbsen
Lage & Infrastruktur
Objektstandort
30826 Garbsen
Die Lage in Garbsen/ Osterwald, einem ruhigen Wohngebiet, bietet Ihnen eine hervorragende Infrastruktur. In unmittelbarer Nähe finden Sie eine Apotheke, den Bahnhof, Busverbindungen und diverse Einkaufsmöglichkeiten. Familien profitieren von der Nähe zu Grundschulen, Kindergärten und weiterführenden Schulen sowie von einem Spielplatz in der Umgebung - ideal für eine aktive und familienfreundliche Nachbarschaft.
Kontaktanfrage senden
Über den Anbieter
STREIF Haus GmbH
Josef-Streif-Straße 1
54595 Weinsheim
Kontakt
| Telefon | 06551 12 00 |
| Mobil | +49 174 6403310 |
| Website | www.streif.de |
Ansprechpartner/in
Herr Andreas Maurer
Weitere Angebote des Anbieters
31
**Luxuriöses Wohnen: Entdecken Sie die Stadtvilla ...
Haus
38176 Wendeburg
Willkommen in Ihrer zukünftigen Traumstadtvilla in Wendeburg/ Neubrück, die mit STREIF nach Ihren individuellen Wünschen projektiert wird. Diese exklusive Residenz bietet Ihnen auf 190,29 m² Wohnfläche ein geräumiges ...
713.782,2 €
Kaufpreis
190,29 m²
Wohnfläche
6
Zimmer
35
**Endlich raus aus der Miete - jetzt starten mit ...
Haus
31688 Nienstädt
Willkommen in Ihrem Traumhaus! Dieses Einfamilienhaus, projektiert nach Ihren individuellen Wünschen, bietet Ihnen die perfekte Kombination aus modernem Design und höchstem Wohnkomfort. Mit einer großzügigen Wohnfläche ...
481.229 €
Kaufpreis
143,84 m²
Wohnfläche
4
Zimmer
32
**Familienfreundlicher Bungalow mit perfekter ...
Haus
31226 Peine
Tauchen Sie ein in die Welt des modernen Wohnens mit unserem projektierten Bungalow, der individuell nach Ihren Wünschen gestaltet wird. Auf einer großzügigen Wohnfläche von 93,51 m² verteilen sich geschmackvoll 3,0 ...
495.050 €
Kaufpreis
93,51 m²
Wohnfläche
3
Zimmer
9
Vorankündigung - Wohnen next Level by STREIF DHH
Haus
53844 Troisdorf
Hochwertiges Effizienzhaus-40-PLUS >> Planung nach modernsten Wohnkriterien.
649.800 €
Kaufpreis
149 m²
Wohnfläche
6
Zimmer
8
-inkl. Grundstück-Ihre neue STREIF Doppelhaushälfte in ...
Haus
38108 Braunschweig
Der Preis bezieht sich auf das Haus inkl. Baunebenkosten und einschließlich Grundstück. Die Grunderwerbsteuer fällt nur auf die Grundstückskosten an. Herzlich willkommen bei STREIF, Ihrem zuverlässigen Partner für den ...
620.000 €
Kaufpreis
140 m²
Wohnfläche
4
Zimmer